There are no shipping fees if you buy one of our 2 plan packages "PDF file format" or "5 sets of blueprints + PDF". Shipping charges may apply if you buy additional sets of blueprints.
House plan West Coast (3737)
Perfect home for view land offering 3 bedrooms, open floor plan and garage!
Other useful information on this plan
Scandinavian-Inspired Home – Modern Design, Functionality, and Warmth
Discover this stunning Scandinavian-inspired home, designed to blend modern aesthetics, everyday functionality, and an inviting atmosphere. Built on a floating slab—with other foundation options available—it captivates at first glance with its clean lines, timeless materials, and a layout thoughtfully planned for contemporary family living.
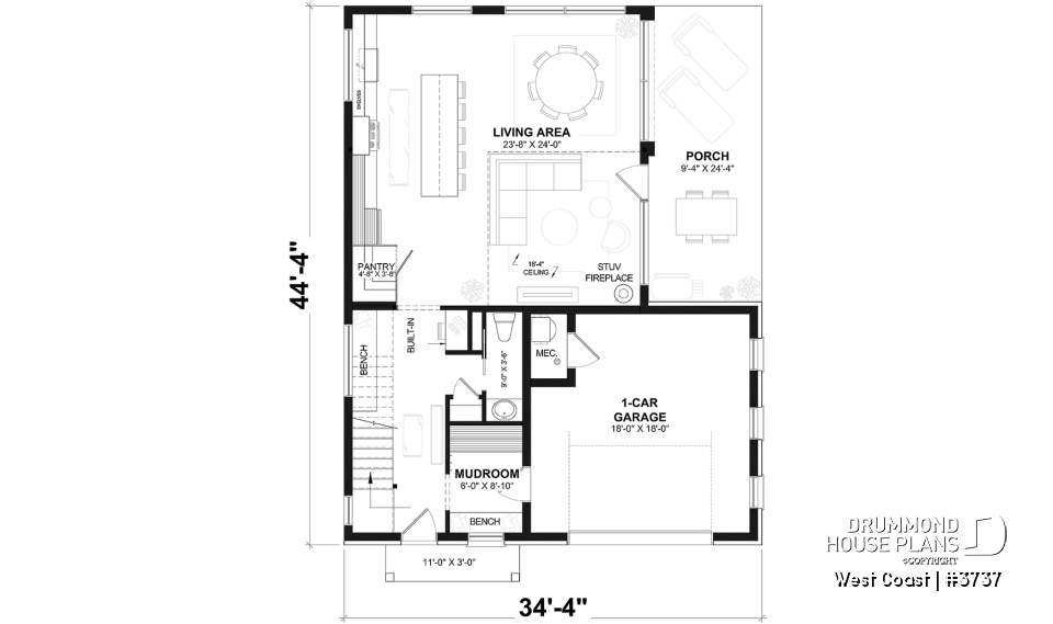
The welcoming entry opens into a spacious, practical mudroom—perfect for organizing coats and accessories—and provides direct access to the garage. This area also includes a dedicated mechanical space, ideal for storing tools, gardening equipment, and more. Nearby, a powder room and a private office nook are cleverly tucked away from the main living areas, offering peace and privacy for working from home.
Warmth and Scandinavian Ambiance with the STÛV Wood Stove
At the heart of the home, the kitchen features a large gathering island and a functional pantry. It flows seamlessly into a bright dining area overlooking the side yard, creating the perfect setting for family meals and entertaining friends. The living room impresses with its spectacular 18’4” ceiling, visible from the upstairs mezzanine. In this expansive space stands the STÛV s30C wood stove, positioned near the television to bring cozy warmth and Scandinavian ambiance throughout the colder seasons.
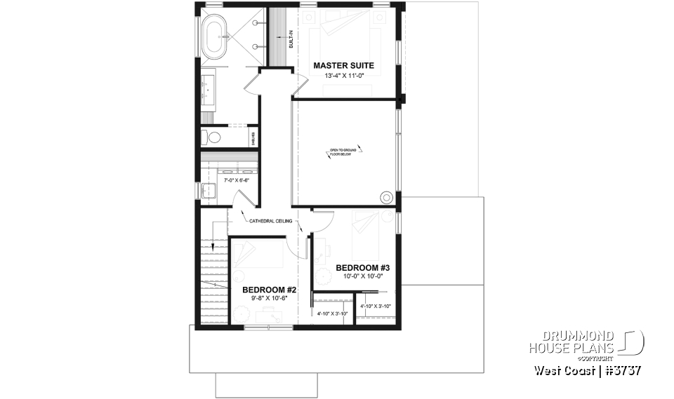
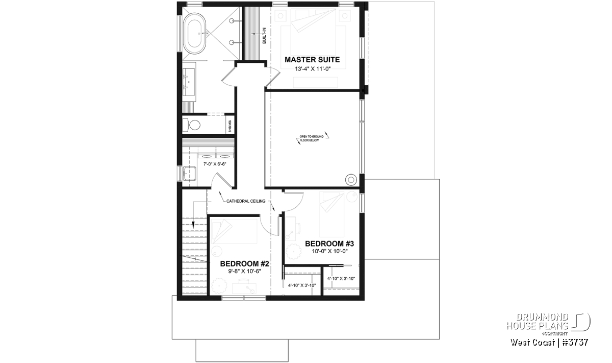
On the main level, the primary suite features a custom built-in for added style and practicality. Upstairs, two secondary bedrooms with small walk-in closets provide comfort and space for children or guests. A convenient laundry room on this floor simplifies daily routines, while the family bathroom is smartly divided with a bath and shower on one side and a private toilet on the other—ensuring both privacy and ease of use.
This Nordic-style home seamlessly combines contemporary architecture, durable materials, and functional design. Its clean lines, abundant natural light, and STÛV wood stove create an atmosphere that’s both modern and cozy—perfect for enjoying a peaceful, light-filled lifestyle. Contact us to explore all the customization and layout options available to make this plan your ideal home.
Distinctive elements
Beautiful Scandinavian-Style Home Designed on a *Floating Slab.
Perfect floor plan for a lot with rear and side views.
Entryway with mudroom and direct access to the garage.
Powder room and home office nook tucked away from the main living areas.
Kitchen with pantry and island.
Open, bright dining area with a lovely view of the side yard.
Living room with a spectacular ceiling over 18'4", visible from the upstairs mezzanine.
Fireplace or Stûv s30C wood stove planned near the television in the living room.
Primary bedroom with built-in furniture.
Two secondary bedrooms with small walk-in closets.
Upstairs laundry room.
Family bathroom with bath and shower on one side and a separate toilet on the other.
Front-facing garage with mechanical room area.
*Other foundation types available.
Plan feature(s)
Cathedral ceiling, Mezzanine, Wood stove, Open floor layout, Planning desk, Mud room, Bench seat(s), Built-ins, Split bedrooms, Pantry, Fireplace, Double sinks, Island, Narrow lot, Second floor laundry room, Bath in the shower, Self-Build
Plan architectural style(s)
. Scandinavian, . Contemporary, . European, Modern farmhouse, . Modern / Design, . Vacation and waterfront, . Transitional, Modern Craftsman, Trending
Similar plans
Previously Viewed Plans
Thank you for your comment! It must be approved before being put online, please allow a period of 24 hours.
Error with google reCaptcha! Try again
Here is a brief description of our different plan packages. Please select the plan package that suits your needs. You can change the package at the next step, if necessary.
PDF VERSION OF PLAN:
Complete digital version of plan (pdf format) sent by email (original plan format 18" x 24'' or 24" x 36'')
5 copies of plan + PDF:
Includes: 5 copies of plan, plan in PDF format (reduced size version), materials list.
Foundation type
Additional foundation types are available, a fee may apply. Please indicate your choice on the online order form, or to our customer service representative, when placing your house plan order.
If your desired foundation type is not available, please contact our customer service to receive your free plan modification quote.
Explanation of bonus space types
UNFINISHED BONUS ROOM
The bonus rooms are often planned above the garage and are accessible from the house. They are designed to be converted as an office, a laundry area, a bathroom, a library corner or even an additional bedroom for which homeowners must make sure to have a window that complies with current codes & standards.
STORAGE AREA
Often located above the garage, our storage areas are used only as storage and are usually accessible from the garage via a retractable staircase.
Do you like this plan but want it to be modified to suit your needs?
To add a garage, another bedroom, finish the basement or any other modification, click here and let us know about your desired changes and to get your free quote for the modification of your plan.
Conditions of use
Important copyright notice! Please take note of these copyright conditions before printing:
By printing this house plan, cottage or garage or the floorplan(s), you confirm being informed that every house plan on this website is the exclusive property of Drummond House
Plans and is protected by Canadian copyright law. You are aware that these prints cannot be used to build or even obtain a building permit. The graphic representations of these
models are offered by Drummond House Plans for the sole purpose of allowing you to notate modifications of a model and then take it to one of the Drummond House Plans Canadian dealers for
modification of the plan.
The purchase of a house plan, cottage or garage from Drummond House Plans is mandatory if you wish to build any of our models. The plan purchase allows you to build a single unit; you cannot resell or give your plan to anyone once the house, cottage or garage has been built. If you wish to build the same house, cottage or garage more than once, you need to obtain the licence to this effect. Please contact us for more details.
All plans from Drummond House Plans can only be modified by a licensed Drummond House Plan Canadian dealer. If any other business or individual with no affiliation to Drummond House Plans modifies a Drummond House Plan on your behalf, please ensure this business or individual has a licence to modify this specific plan or you will be subject to prosecution on the same level as the business or individual who modified or reproduced the plan.
For more details, do not hesitate to contact u by e-mail or by phone at 1-800-567-1413.
I agree to respect the conditions above to not reproduce, modify or build a model from Drummond House Plans without previously purchasing a complete house plan.




















