There are no shipping fees if you buy one of our 2 plan packages "PDF file format" or "5 sets of blueprints + PDF". Shipping charges may apply if you buy additional sets of blueprints.
House plan Sunny Haven 3 (3615-V2)
Great floor plans for this modern farmhouse: pantry, mudroom, home office, fireplace and more!
Other useful information on this plan
Modern Farmhouse with office, mudroom, pantry and 3 second floor bedrooms!
House plan SUNNY HAVEN 3 (# 3615-V2), is a simplified version of the original plan (# 3615-V1). With its 1990 square feet, this house is still large, and offers a lot of inclusions. This Modern American Farmhouse type of home is very trendy and popular and can accommodate many types of families.
From the outside, the vertical white cladding recalls the style mentioned above, and the brick adds an additional cachet to the design. The appearance of the house remains, unequivocally, a sure value.
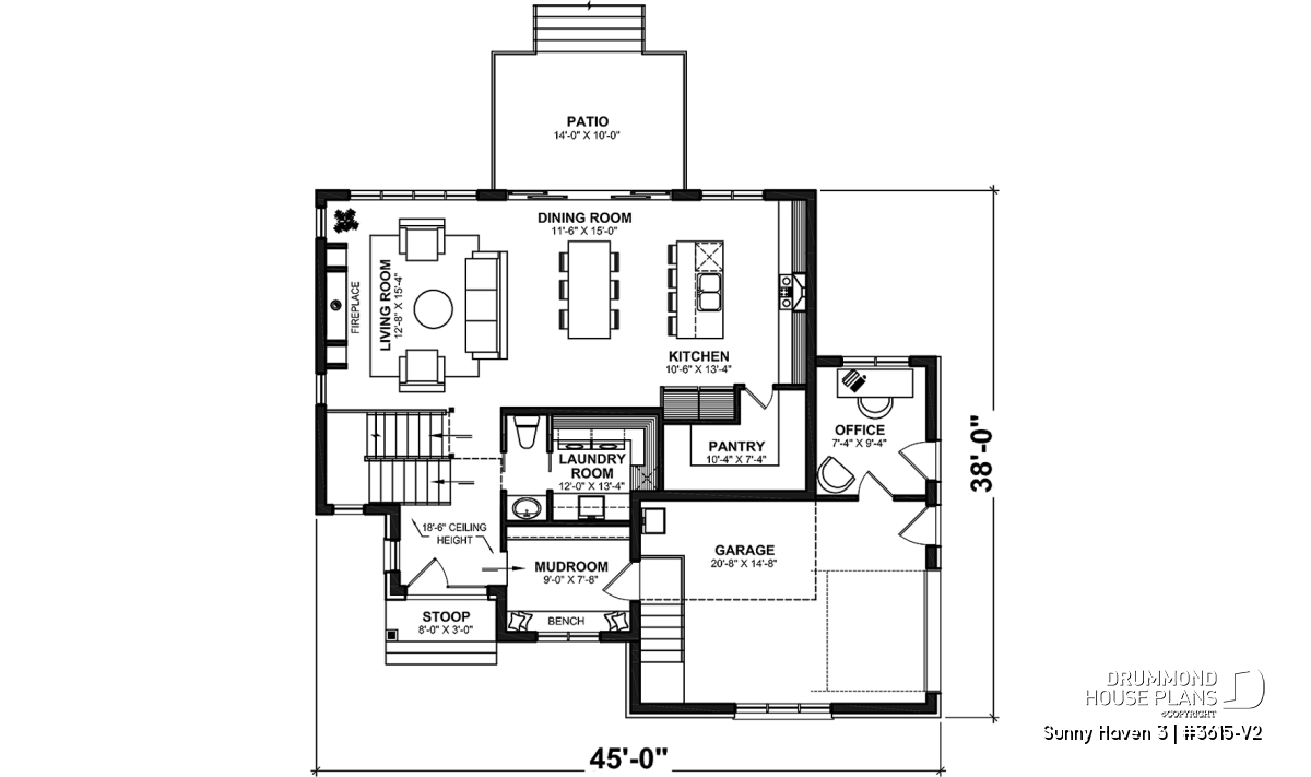
Upon entering the house, a very large mudroom offers plenty of storage. From this area is the access to the side-load one-car garage. A special feature of this plan is the installation of an office space in the garage, with direct access to the exterior. Perfect for teleworking and to be able to make a break between the office and the house, in the evening!
Following the entrance hall, is the staircase leading to the unfinished basement and to the second floor where the bedrooms are located. Facing the staircase, you’ll find the half bath as well as the laundry room. The laundry room offers a lot of storage, a large practical counter and a laundry chute, a little addition much appreciated by many! The two spaces can be separated by a sliding door allowing the laundry room to be out of sight for guests.
The common living space is open concept, with a breathtaking panoramic view of the rear of the house, thanks to the several windows in the living room as well as the double patio door leading to the rear deck. In the living room, a gas fireplace is installed to allow you to enjoy the view while staying warm during the cold seasons. The kitchen, separated from the living room by the dining area, has a large central island including a double sink, a dishwasher, and can easily accommodate 4 guests. Lots of storage space and work surface are freed up thanks to a large walk-in pantry. A must, in new family homes!
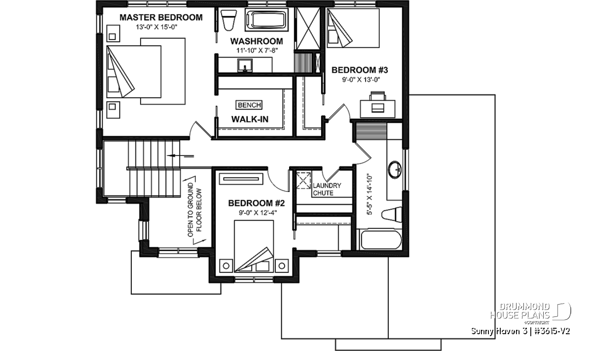
Upstairs, there are 3 bedrooms, including the master suite that offers a private bathroom with a large shower separate from the bathtub, as well as a very large walk-in closet. The other two bedrooms are good sizes, each with a walk-in closet. Another bathroom is available, with a shower bath as well as a large counter and a sink. Storage is also possible. To complete the second floor, a large linen closet provides all the storage you need for bedding and more. The laundry chute is also there.
Ideal for today’s family, this house will meet many needs at several stages of life.
Distinctive elements
Modern farmhouse home plan with lots of contemporary commodities.
2-story front entrance.
Large mudroom.
Main floor laundry room with chute.
Open floor plan concept, at the back of the house.
Large kitchen with pantry and island.
Master suite with private ensuite and walk-in closet.
2 secondary bedrooms with walk-in closets.
Home office with outdoor and garage access.
Plan feature(s)
Ceiling over 8', 2-Story foyer, Laundry chute, Pantry, Island, Gound floor laundry room, Mud room, Bench seat(s), Fireplace, Office / Study / Den, Walk-in master bed., Master suite upstairs, Separate bath and shower, Side entry garage
Plan architectural style(s)
Modern farmhouse, Modern Craftsman, . English, . Farmhouse, . Transitional, . Vacation and waterfront, . Craftsman / Northwest, . Country
Similar plans
Previously Viewed Plans
Thank you for your comment! It must be approved before being put online, please allow a period of 24 hours.
Error with google reCaptcha! Try again
Here is a brief description of our different plan packages. Please select the plan package that suits your needs. You can change the package at the next step, if necessary.
PDF VERSION OF PLAN:
Complete digital version of plan (pdf format) sent by email (original plan format 18" x 24'' or 24" x 36'')
5 copies of plan + PDF:
Includes: 5 copies of plan, plan in PDF format (reduced size version), materials list.
Foundation type
Additional foundation types are available, a fee may apply. Please indicate your choice on the online order form, or to our customer service representative, when placing your house plan order.
If your desired foundation type is not available, please contact our customer service to receive your free plan modification quote.
Explanation of bonus space types
UNFINISHED BONUS ROOM
The bonus rooms are often planned above the garage and are accessible from the house. They are designed to be converted as an office, a laundry area, a bathroom, a library corner or even an additional bedroom for which homeowners must make sure to have a window that complies with current codes & standards.
STORAGE AREA
Often located above the garage, our storage areas are used only as storage and are usually accessible from the garage via a retractable staircase.
Do you like this plan but want it to be modified to suit your needs?
To add a garage, another bedroom, finish the basement or any other modification, click here and let us know about your desired changes and to get your free quote for the modification of your plan.
Conditions of use
Important copyright notice! Please take note of these copyright conditions before printing:
By printing this house plan, cottage or garage or the floorplan(s), you confirm being informed that every house plan on this website is the exclusive property of Drummond House
Plans and is protected by Canadian copyright law. You are aware that these prints cannot be used to build or even obtain a building permit. The graphic representations of these
models are offered by Drummond House Plans for the sole purpose of allowing you to notate modifications of a model and then take it to one of the Drummond House Plans Canadian dealers for
modification of the plan.
The purchase of a house plan, cottage or garage from Drummond House Plans is mandatory if you wish to build any of our models. The plan purchase allows you to build a single unit; you cannot resell or give your plan to anyone once the house, cottage or garage has been built. If you wish to build the same house, cottage or garage more than once, you need to obtain the licence to this effect. Please contact us for more details.
All plans from Drummond House Plans can only be modified by a licensed Drummond House Plan Canadian dealer. If any other business or individual with no affiliation to Drummond House Plans modifies a Drummond House Plan on your behalf, please ensure this business or individual has a licence to modify this specific plan or you will be subject to prosecution on the same level as the business or individual who modified or reproduced the plan.
For more details, do not hesitate to contact u by e-mail or by phone at 1-800-567-1413.
I agree to respect the conditions above to not reproduce, modify or build a model from Drummond House Plans without previously purchasing a complete house plan.
















