There are no shipping fees if you buy one of our 2 plan packages "PDF file format" or "5 sets of blueprints + PDF". Shipping charges may apply if you buy additional sets of blueprints.
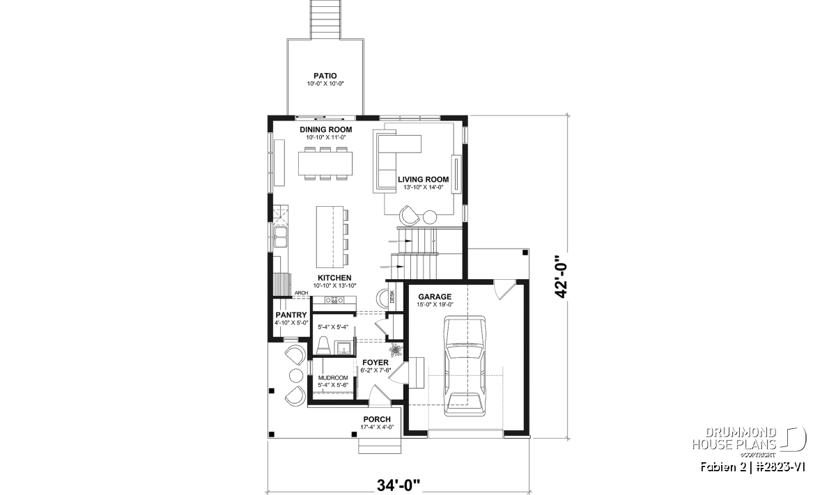
House plan Fabien 2 (2823-V1)
Two-story country-style home with garage, bright open spaces and cozy family feel
Virtual visit
Other useful information on this plan
Two-Story Country Home Plan with Garage and Bright Open Living Spaces
This two-story country-style home with garage combines timeless charm, natural light, and modern functionality. Designed for family living, FABIEN 2 captures the essence of a cozy yet practical lifestyle with its well-planned layout and warm, inviting spaces.
From the moment you step inside, a handy entryway with coat storage sets the tone for organization and comfort. The nine-foot ceilings throughout the main floor enhance the sense of space and brightness, while a small office nook near the kitchen provides the perfect spot for remote work or managing household tasks.
The kitchen is the heart of the home, featuring a central island ideal for cooking and gathering, and a large pantry that offers plenty of storage. A discreet powder room adds everyday convenience. The open-concept layout seamlessly connects the kitchen, dining area, and living room — all bathed in beautiful natural light thanks to well-placed rear windows.
Upstairs, the primary bedroom features a spacious walk-in closet, while the family bathroom impresses with its smart layout — a separate tub and shower, and a private toilet area that makes morning routines easier for everyone.
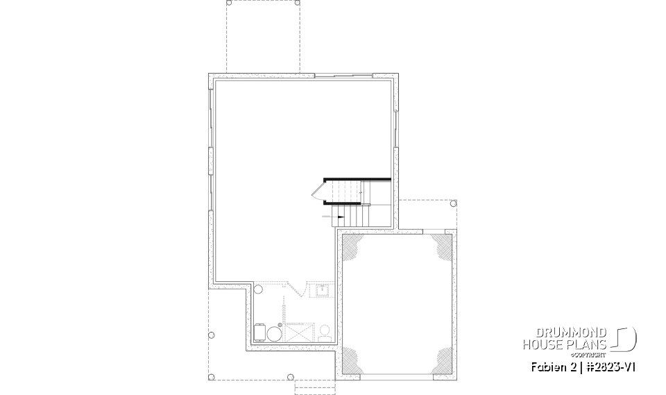
The attached single-car garage adds comfort and practicality, offering easy access to the interior in any season. Meanwhile, the unfinished basement provides endless possibilities: additional bedrooms, a family room, playroom, gym, or storage — ready to adapt to your evolving needs.
A perfect balance of country charm and modern living, this two-story home design offers comfort, light, and character in every detail. With its spacious interior, thoughtful features, and warm atmosphere, it’s an ideal choice for families seeking a bright and functional country-inspired home that feels welcoming year-round.
Distinctive elements
Charming two-story country-style home with attached garage.
Nine-foot ceilings throughout the main floor for a spacious feel.
Convenient entryway with coat closet or mudroom.
Small study nook near the kitchen — perfect for working from home.
Practical powder room on the main floor.
Inviting kitchen with central island and generous pantry.
Open-concept layout connecting the kitchen, dining room, and living room.
Primary bedroom with large walk-in closet.
Family bathroom with separate tub and shower, and a private toilet area — perfect for busy mornings.
Abundant natural light at the back of the house.
Single-car garage for everyday convenience.
Unfinished basement ready to customize with extra bedrooms, family room, storage, or more.
Plan feature(s)
Arch, Planning desk, Warparound, Pantry, Island, Second floor laundry room, Master suite upstairs, Mud room, Panoramic view, Ceiling over 8', Walk-in master bed., Open floor layout, Separate bath and shower, Double sinks
Plan architectural style(s)
. Modern rustic, Modern Craftsman, . Traditional, . Country
Similar plans
Previously Viewed Plans
Thank you for your comment! It must be approved before being put online, please allow a period of 24 hours.
Error with google reCaptcha! Try again
Here is a brief description of our different plan packages. Please select the plan package that suits your needs. You can change the package at the next step, if necessary.
PDF VERSION OF PLAN:
Complete digital version of plan (pdf format) sent by email (original plan format 18" x 24'' or 24" x 36'')
5 copies of plan + PDF:
Includes: 5 copies of plan, plan in PDF format (reduced size version), materials list.
Foundation type
Additional foundation types are available, a fee may apply. Please indicate your choice on the online order form, or to our customer service representative, when placing your house plan order.
If your desired foundation type is not available, please contact our customer service to receive your free plan modification quote.
Explanation of bonus space types
UNFINISHED BONUS ROOM
The bonus rooms are often planned above the garage and are accessible from the house. They are designed to be converted as an office, a laundry area, a bathroom, a library corner or even an additional bedroom for which homeowners must make sure to have a window that complies with current codes & standards.
STORAGE AREA
Often located above the garage, our storage areas are used only as storage and are usually accessible from the garage via a retractable staircase.
Do you like this plan but want it to be modified to suit your needs?
To add a garage, another bedroom, finish the basement or any other modification, click here and let us know about your desired changes and to get your free quote for the modification of your plan.
Conditions of use
Important copyright notice! Please take note of these copyright conditions before printing:
By printing this house plan, cottage or garage or the floorplan(s), you confirm being informed that every house plan on this website is the exclusive property of Drummond House
Plans and is protected by Canadian copyright law. You are aware that these prints cannot be used to build or even obtain a building permit. The graphic representations of these
models are offered by Drummond House Plans for the sole purpose of allowing you to notate modifications of a model and then take it to one of the Drummond House Plans Canadian dealers for
modification of the plan.
The purchase of a house plan, cottage or garage from Drummond House Plans is mandatory if you wish to build any of our models. The plan purchase allows you to build a single unit; you cannot resell or give your plan to anyone once the house, cottage or garage has been built. If you wish to build the same house, cottage or garage more than once, you need to obtain the licence to this effect. Please contact us for more details.
All plans from Drummond House Plans can only be modified by a licensed Drummond House Plan Canadian dealer. If any other business or individual with no affiliation to Drummond House Plans modifies a Drummond House Plan on your behalf, please ensure this business or individual has a licence to modify this specific plan or you will be subject to prosecution on the same level as the business or individual who modified or reproduced the plan.
For more details, do not hesitate to contact u by e-mail or by phone at 1-800-567-1413.
I agree to respect the conditions above to not reproduce, modify or build a model from Drummond House Plans without previously purchasing a complete house plan.


















