There are no shipping fees if you buy one of our 2 plan packages "PDF file format" or "5 sets of blueprints + PDF". Shipping charges may apply if you buy additional sets of blueprints.
House plan Fabien (2823)
Modern Craftsman Two-Storey Home with Garage – Bright Design for Narrow Lots
Other useful information on this plan
Modern Craftsman Style Two-Storey Home Designed for Narrow Lots
This beautiful home stands out with its warm materials, clean lines and intelligent use of space. Designed to fit comfortably on a narrow lot, it offers a perfect balance between modern functionality and inviting charm — ideal for today’s families seeking comfort, light, and timeless architecture.
From the outside, the home impresses with its elegant blend of brick and wood, creating a warm and contemporary façade. The covered porch wrapping around two sides adds character while offering a protected outdoor space, perfect for enjoying a quiet morning coffee or greeting guests with style.
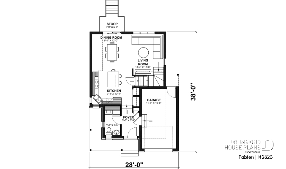
Inside, the main floor features a practical and well-organized layout. The entrance opens onto a bright and welcoming hallway, with easy access to both the powder room and the laundry room — a highly appreciated detail for busy households. The kitchen, complete with an island and generous storage, flows naturally into the dining area, creating an inviting open-concept space ideal for family meals and entertaining.
The living room benefits from abundant natural light thanks to large windows that illuminate the entire back of the home. This comfortable and airy space quickly becomes the heart of daily life.
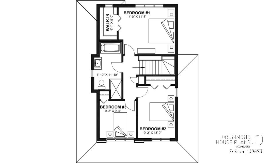
Upstairs, the primary bedroom offers a peaceful retreat with a spacious walk-in closet. Two additional well-sized bedrooms share a full bathroom equipped with a separate tub and shower — a valuable feature for growing families. A flexible second-floor layout ensures that everyone benefits from comfort and privacy.
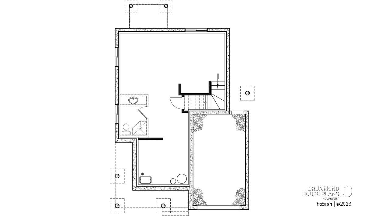
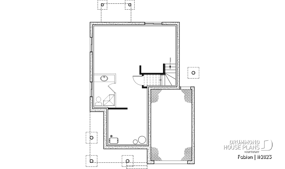
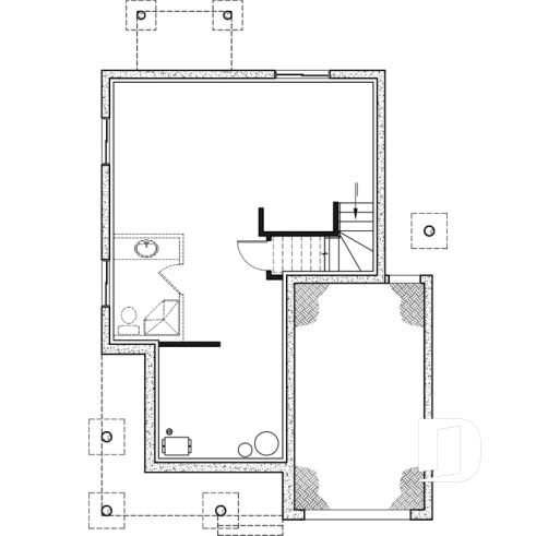
The unfinished basement provides endless possibilities. Whether you envision extra bedrooms, a gym, a home theatre or a large playroom, this adaptable space evolves with your family’s changing needs.
Combining Craftsman warmth, modern comfort and thoughtful design, this two-storey home is the perfect match for homeowners seeking style, functionality and long-term value — all within an efficient footprint ideal for narrow lots.
Distinctive elements
Stunning two-storey Modern Craftsman home with attached garage.
Perfectly designed for narrow lots.
Warm exterior materials blending brick and wood.
Covered porch wrapping around two sides of the home.
Convenient powder room and laundry room on the main floor.
Kitchen with island, open to the dining area.
Bright and airy living room with abundant natural light.
Spacious primary bedroom upstairs with large walk-in closet.
Two secondary bedrooms on the second floor, plus a full bathroom with separate tub and shower.
Unfinished basement ready to be customized to suit your needs.
Plan feature(s)
Open floor layout, Warparound, Gound floor laundry room, Island, Walk-in master bed., Bath in the shower, Builder, Self-Build
Plan architectural style(s)
. Country, . European, . Craftsman / Northwest, . Modern rustic, . Mountain, Modern Craftsman
Similar plans
Previously Viewed Plans
Thank you for your comment! It must be approved before being put online, please allow a period of 24 hours.
Error with google reCaptcha! Try again
Here is a brief description of our different plan packages. Please select the plan package that suits your needs. You can change the package at the next step, if necessary.
PDF VERSION OF PLAN:
Complete digital version of plan (pdf format) sent by email (original plan format 18" x 24'' or 24" x 36'')
5 copies of plan + PDF:
Includes: 5 copies of plan, plan in PDF format (reduced size version), materials list.
Foundation type
Additional foundation types are available, a fee may apply. Please indicate your choice on the online order form, or to our customer service representative, when placing your house plan order.
If your desired foundation type is not available, please contact our customer service to receive your free plan modification quote.
Explanation of bonus space types
UNFINISHED BONUS ROOM
The bonus rooms are often planned above the garage and are accessible from the house. They are designed to be converted as an office, a laundry area, a bathroom, a library corner or even an additional bedroom for which homeowners must make sure to have a window that complies with current codes & standards.
STORAGE AREA
Often located above the garage, our storage areas are used only as storage and are usually accessible from the garage via a retractable staircase.
Do you like this plan but want it to be modified to suit your needs?
To add a garage, another bedroom, finish the basement or any other modification, click here and let us know about your desired changes and to get your free quote for the modification of your plan.
Conditions of use
Important copyright notice! Please take note of these copyright conditions before printing:
By printing this house plan, cottage or garage or the floorplan(s), you confirm being informed that every house plan on this website is the exclusive property of Drummond House
Plans and is protected by Canadian copyright law. You are aware that these prints cannot be used to build or even obtain a building permit. The graphic representations of these
models are offered by Drummond House Plans for the sole purpose of allowing you to notate modifications of a model and then take it to one of the Drummond House Plans Canadian dealers for
modification of the plan.
The purchase of a house plan, cottage or garage from Drummond House Plans is mandatory if you wish to build any of our models. The plan purchase allows you to build a single unit; you cannot resell or give your plan to anyone once the house, cottage or garage has been built. If you wish to build the same house, cottage or garage more than once, you need to obtain the licence to this effect. Please contact us for more details.
All plans from Drummond House Plans can only be modified by a licensed Drummond House Plan Canadian dealer. If any other business or individual with no affiliation to Drummond House Plans modifies a Drummond House Plan on your behalf, please ensure this business or individual has a licence to modify this specific plan or you will be subject to prosecution on the same level as the business or individual who modified or reproduced the plan.
For more details, do not hesitate to contact u by e-mail or by phone at 1-800-567-1413.
I agree to respect the conditions above to not reproduce, modify or build a model from Drummond House Plans without previously purchasing a complete house plan.























