There are no shipping fees if you buy one of our 2 plan packages "PDF file format" or "5 sets of blueprints + PDF". Shipping charges may apply if you buy additional sets of blueprints.
House plan Whitman (3862)
Affordable American style home plan with 3 bedrooms and master suite, garage
Other useful information on this plan
East coast inspired cottage with 3 bedrooms and master suite!
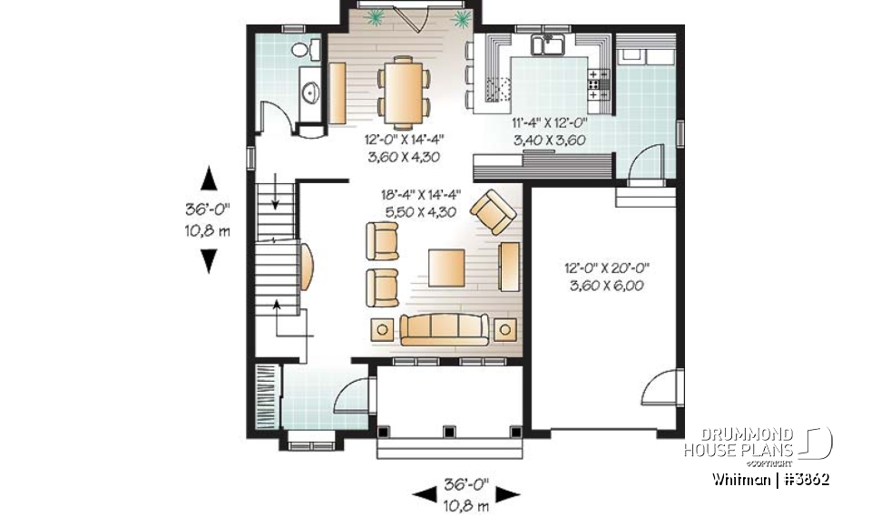
An inviting covered porch offers protection from the elements to the main entrance foyer which has a projecting window to add a unique touch. The garage blends well with the simple yet elegant volumes to enhance balance and ensure curb appeal.
The floor plan includes a large living room with lateral stairway and triple garden doors off of the dining room for access to the deck overlooking the back yard. The kitchen has ample storage space and a peninsula. A powder room on the main level and a laundry area with direct access to the garage complete the first level of this beautiful home.
There are three bedrooms on the upper level, one of which is a large master suite with a walk-in closet. The well appointed master bathroom includes a corner bath, separate shower and a double vanity. There is a second full bathroom on this level and the two other bedrooms have along with large closets in each to complete the features of this well thought out design.
Distinctive elements
Very comfortable rooms. Independent laundry room on the first level. Lovely master suite with private bathroom. Kitchen with excellent storage space.
Plan feature(s)
Lunch counter, Built-ins, Master suite upstairs, Gound floor laundry room, Cathedral ceiling, Walk-in master bed., Separate bath and shower, Double sinks, Coffee bar
Plan architectural style(s)
. Country, . American, . Traditional, . Colonial
Similar plans
Previously Viewed Plans
Thank you for your comment! It must be approved before being put online, please allow a period of 24 hours.
Error with google reCaptcha! Try again
Here is a brief description of our different plan packages. Please select the plan package that suits your needs. You can change the package at the next step, if necessary.
PDF VERSION OF PLAN:
Complete digital version of plan (pdf format) sent by email (original plan format 18" x 24'' or 24" x 36'')
5 copies of plan + PDF:
Includes: 5 copies of plan, plan in PDF format (reduced size version), materials list.
Foundation type
Additional foundation types are available, a fee may apply. Please indicate your choice on the online order form, or to our customer service representative, when placing your house plan order.
If your desired foundation type is not available, please contact our customer service to receive your free plan modification quote.
Explanation of bonus space types
UNFINISHED BONUS ROOM
The bonus rooms are often planned above the garage and are accessible from the house. They are designed to be converted as an office, a laundry area, a bathroom, a library corner or even an additional bedroom for which homeowners must make sure to have a window that complies with current codes & standards.
STORAGE AREA
Often located above the garage, our storage areas are used only as storage and are usually accessible from the garage via a retractable staircase.
Do you like this plan but want it to be modified to suit your needs?
To add a garage, another bedroom, finish the basement or any other modification, click here and let us know about your desired changes and to get your free quote for the modification of your plan.
Conditions of use
Important copyright notice! Please take note of these copyright conditions before printing:
By printing this house plan, cottage or garage or the floorplan(s), you confirm being informed that every house plan on this website is the exclusive property of Drummond House
Plans and is protected by Canadian copyright law. You are aware that these prints cannot be used to build or even obtain a building permit. The graphic representations of these
models are offered by Drummond House Plans for the sole purpose of allowing you to notate modifications of a model and then take it to one of the Drummond House Plans Canadian dealers for
modification of the plan.
The purchase of a house plan, cottage or garage from Drummond House Plans is mandatory if you wish to build any of our models. The plan purchase allows you to build a single unit; you cannot resell or give your plan to anyone once the house, cottage or garage has been built. If you wish to build the same house, cottage or garage more than once, you need to obtain the licence to this effect. Please contact us for more details.
All plans from Drummond House Plans can only be modified by a licensed Drummond House Plan Canadian dealer. If any other business or individual with no affiliation to Drummond House Plans modifies a Drummond House Plan on your behalf, please ensure this business or individual has a licence to modify this specific plan or you will be subject to prosecution on the same level as the business or individual who modified or reproduced the plan.
For more details, do not hesitate to contact u by e-mail or by phone at 1-800-567-1413.
I agree to respect the conditions above to not reproduce, modify or build a model from Drummond House Plans without previously purchasing a complete house plan.





















