There are no shipping fees if you buy one of our 2 plan packages "PDF file format" or "5 sets of blueprints + PDF". Shipping charges may apply if you buy additional sets of blueprints.
House plan Kensington 2 (3461-V1)
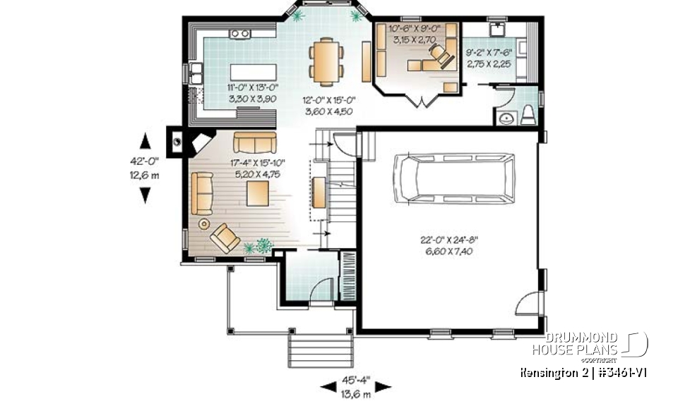
4 to 5 bedrooms, 3 bathrooms floor plan, 2-car garage, large game room, formal living room with fireplace
Other useful information on this plan
Spacious Country Home Plan with 4 Bedrooms, Bonus Room Over Garage and an Ideal Layout for Large Families Seeking Comfort, Space and Everyday Functionality
This spacious and welcoming country-style home is designed with the needs of large and growing families in mind. With its timeless architecture, warm materials and intelligently planned layout, it offers the perfect blend of comfort, practicality and charm. From the moment you arrive, the inviting façade and attached garage set the tone for a home built to support busy family life while maintaining a soothing, homelike feel.
Inside, the main floor opens into bright, well-structured living spaces where every detail serves a purpose. The living room, enhanced by a corner fireplace, naturally becomes the heart of the home—a cozy, gathering-friendly area ideal for unwinding after a long day. The functional kitchen features a central island, creating a hub for cooking, family meals and informal conversations. Its open connection to the dining and living areas makes everyday routines smoother and family gatherings more enjoyable.
A dedicated office on the main floor provides the quiet space needed for remote work, household management or homework time, a key asset for modern families. The independent laundry room adds to the convenience, offering organization and efficiency while keeping noise away from the main living zones. This thoughtful main-floor configuration reflects a clear intention: simplify daily life while maximizing comfort.
On the second floor, the home brings together four well-proportioned bedrooms, a highly desirable feature for families wanting to keep children close. The primary suite serves as a private retreat, complete with a walk-in closet and a full ensuite bathroom featuring a spacious 52" x 40" shower—a touch of everyday luxury parents will appreciate. The secondary bedrooms provide comfort and privacy, meeting the needs of both younger children and teens.
One of the standout elements of the upstairs layout is the large bonus room located above the garage. With its impressive 10-foot ceilings, this space is incredibly versatile and can be transformed into a home theater, a game room, a billiard area or a multi-purpose family lounge. It truly becomes a destination within the home—perfect for relaxation and entertainment alike.
The double garage, with its side-facing doors, is especially practical for corner lots and contributes to an attractive exterior presentation.
Altogether, this country-style home offers an exceptional balance of charm, functionality and flexible living space. With its four bedrooms, generous bonus room and family-friendly layout, it provides everything a large family needs to grow, thrive and enjoy a comfortable daily lifestyle.
Distinctive elements
Country-style home with a warm, welcoming feel and an attached garage, designed for the comfort of a growing family.
Four bedrooms located on the second floor, including a primary suite with walk-in closet and private bathroom featuring a 52" x 40" shower.
Spacious primary suite offering a true retreat away from the main living areas.
Large bonus room above the garage with 10’ ceilings, ideal for a home theater, billiard table or playroom.
Functional kitchen with a central island, perfect for cooking, hosting and sharing everyday moments.
Inviting living room enhanced by a corner fireplace for added warmth and ambiance.
Main-floor office space, ideal for remote work or family organization.
Independent laundry room conveniently located for daily routines.
Double garage with side-facing doors, practical for corner lots and easy parking maneuvers.
Warm architecture and a well-planned layout offering comfort, style and family-friendly living.
Plan feature(s)
Office / Study / Den, Gound floor laundry room, Fireplace, Side entry garage, Island, Master suite upstairs, Entrance hall, Game room, Walk-in master bed., Separate bath and shower, Double sinks, Sloped ceiling
Plan architectural style(s)
. Country, . American, . Traditional, . European
Similar plans
Previously Viewed Plans
Thank you for your comment! It must be approved before being put online, please allow a period of 24 hours.
Error with google reCaptcha! Try again
Here is a brief description of our different plan packages. Please select the plan package that suits your needs. You can change the package at the next step, if necessary.
PDF VERSION OF PLAN:
Complete digital version of plan (pdf format) sent by email (original plan format 18" x 24'' or 24" x 36'')
5 copies of plan + PDF:
Includes: 5 copies of plan, plan in PDF format (reduced size version), materials list.
Foundation type
Additional foundation types are available, a fee may apply. Please indicate your choice on the online order form, or to our customer service representative, when placing your house plan order.
If your desired foundation type is not available, please contact our customer service to receive your free plan modification quote.
Explanation of bonus space types
UNFINISHED BONUS ROOM
The bonus rooms are often planned above the garage and are accessible from the house. They are designed to be converted as an office, a laundry area, a bathroom, a library corner or even an additional bedroom for which homeowners must make sure to have a window that complies with current codes & standards.
STORAGE AREA
Often located above the garage, our storage areas are used only as storage and are usually accessible from the garage via a retractable staircase.
Do you like this plan but want it to be modified to suit your needs?
To add a garage, another bedroom, finish the basement or any other modification, click here and let us know about your desired changes and to get your free quote for the modification of your plan.
Conditions of use
Important copyright notice! Please take note of these copyright conditions before printing:
By printing this house plan, cottage or garage or the floorplan(s), you confirm being informed that every house plan on this website is the exclusive property of Drummond House
Plans and is protected by Canadian copyright law. You are aware that these prints cannot be used to build or even obtain a building permit. The graphic representations of these
models are offered by Drummond House Plans for the sole purpose of allowing you to notate modifications of a model and then take it to one of the Drummond House Plans Canadian dealers for
modification of the plan.
The purchase of a house plan, cottage or garage from Drummond House Plans is mandatory if you wish to build any of our models. The plan purchase allows you to build a single unit; you cannot resell or give your plan to anyone once the house, cottage or garage has been built. If you wish to build the same house, cottage or garage more than once, you need to obtain the licence to this effect. Please contact us for more details.
All plans from Drummond House Plans can only be modified by a licensed Drummond House Plan Canadian dealer. If any other business or individual with no affiliation to Drummond House Plans modifies a Drummond House Plan on your behalf, please ensure this business or individual has a licence to modify this specific plan or you will be subject to prosecution on the same level as the business or individual who modified or reproduced the plan.
For more details, do not hesitate to contact u by e-mail or by phone at 1-800-567-1413.
I agree to respect the conditions above to not reproduce, modify or build a model from Drummond House Plans without previously purchasing a complete house plan.







