There are no shipping fees if you buy one of our 2 plan packages "PDF file format" or "5 sets of blueprints + PDF". Shipping charges may apply if you buy additional sets of blueprints.
House plan Gloria (3460)
Spacious house plan, 4+ bedrooms, large garage, office, master suite, optional finished basement ($)
Other useful information on this plan
Amazing 4+ bedroom Traditional home plan, with garage, and optional *finished basement!
Are you looking for a 4+ bedroom home offering comfort and functionality? Visit this one with us!
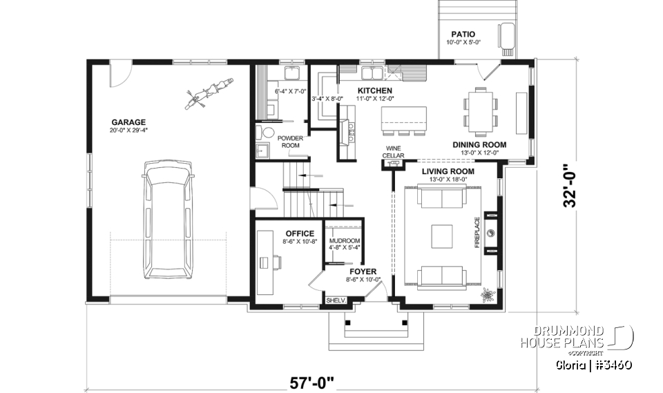
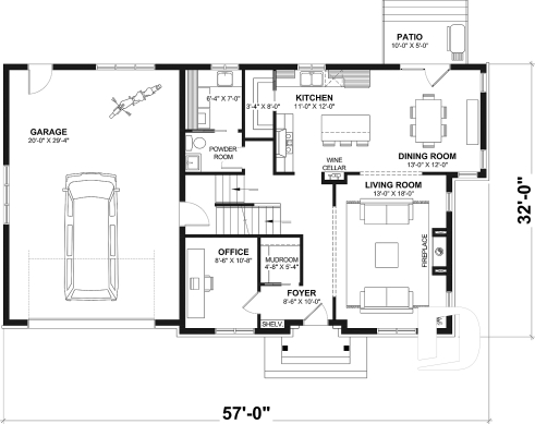
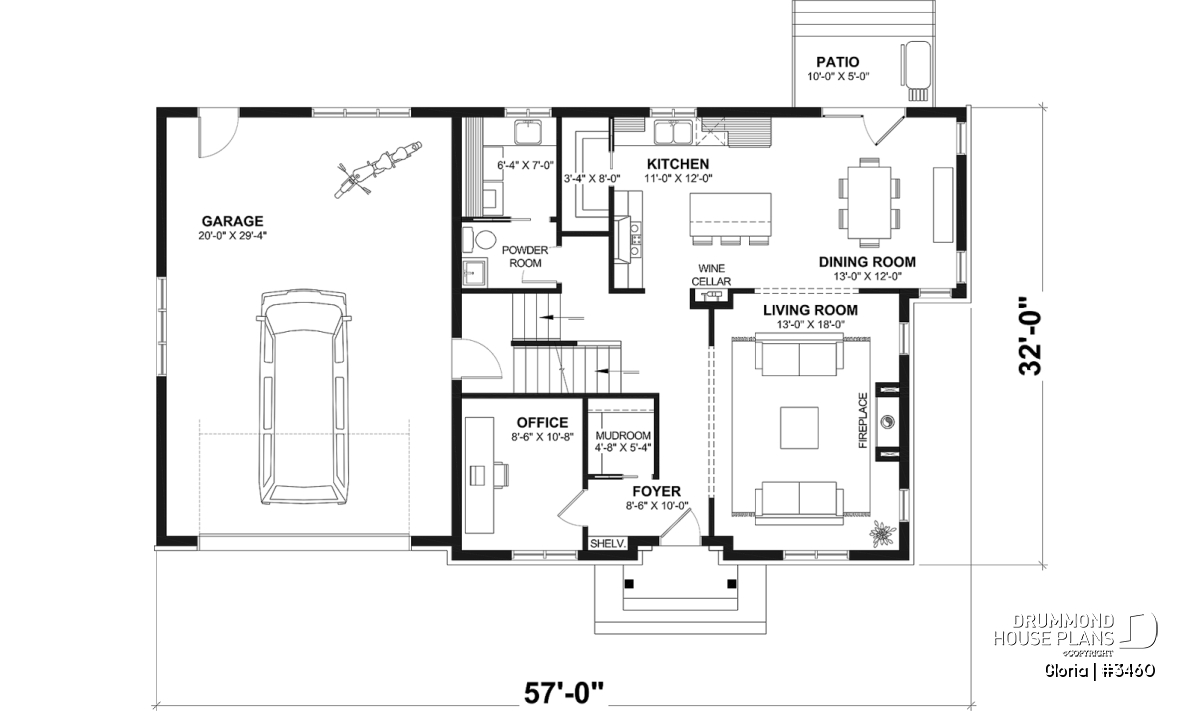
Welcome to the ground floor for which a large walk-in coat closet, at the front entrance, will certainly suit the owners as well as this well-defined and easy-to-arrange living room. Here, an office space is planned very close to the front entrance while at the back of the house we find a kitchen with a central island open to a dining room full of light as well as a beautiful laundry room and half bath on the same floor.
On the landing of the staircase leading us upstairs, two French doors open onto a large family room space (20' x 20' above the garage) in which many will be tempted to set up their home theater and computer corner or, and why not, a superb master suite to convert this 4-bedroom floor into a 5-bedroom floor.
Half a flight of stairs higher we arrive on th second floor where we can access four beautiful bedrooms with two full bathrooms, one of which is dedicated to the master bedroom and the other very well organized for even more functionality. Isn't this a surprising cottage?
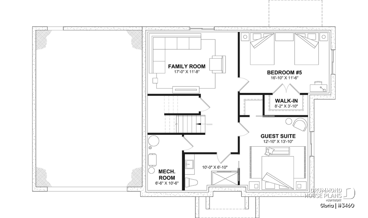
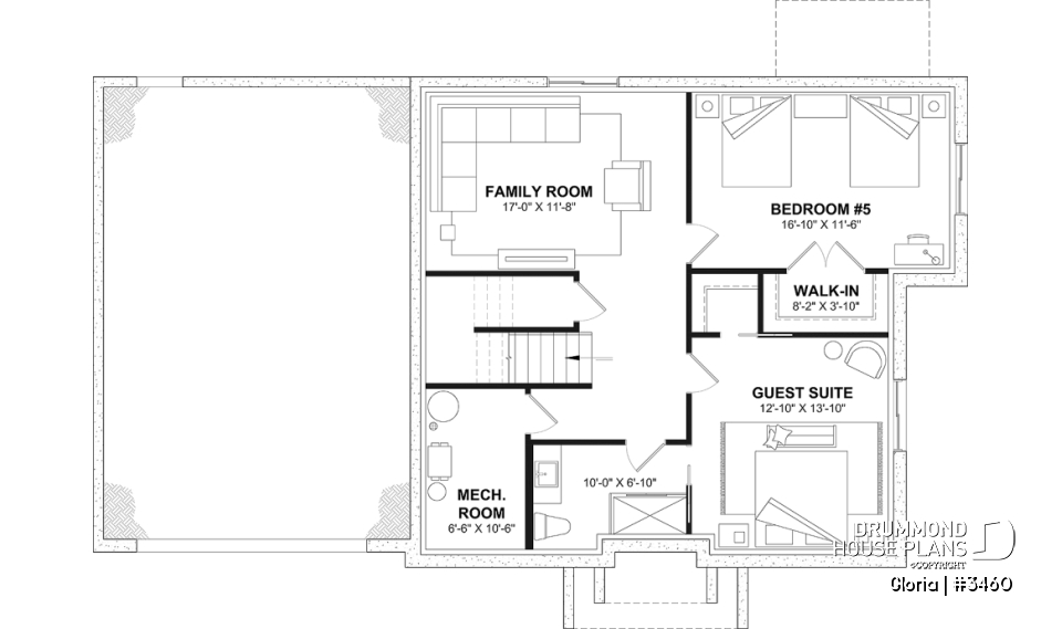
* Finished basement (optional $):
Guest suite, bedroom #5, family room, shower room and mechanical room.
* If you wish to purchase the finished basement plan, please select this option in the shopping cart, in the "Select your foundation" section.
Distinctive elements
Spacious two-story house offering 4+ bedrooms and a guest suite (if the basement is *finished).
8'-10" ceiling on the entire ground floor.
Very nice living room with fireplace.
Kitchen with central island and walk-in pantry.
Laundry room on the ground floor, adjoining the powder room.
Office planned on the ground floor.
Large family room on the mid-floor, above the garage.
Four beautiful bedrooms upstairs including a master suite with walk-in closet and private bathroom.
*Optional finished basement ($):
Guest suite, bedroom #5, family room, shower room and mechanical room.
*If you wish to purchase the finished basement plan, please select this option in the shopping cart, in the "Selection of foundation type" section.
Plan feature(s)
Office / Study / Den, Master suite upstairs, Walk-in master bed., Gound floor laundry room, Island, Double sinks, Guest suite, Shelves, Mud room, Ceiling over 8', Open floor layout, Pantry, Master suite upstairs, Separate bath and shower
Plan architectural style(s)
. Country, . American, . Traditional, . Farmhouse, Modern farmhouse, . Transitional
Similar plans
Previously Viewed Plans
Thank you for your comment! It must be approved before being put online, please allow a period of 24 hours.
Error with google reCaptcha! Try again
Here is a brief description of our different plan packages. Please select the plan package that suits your needs. You can change the package at the next step, if necessary.
PDF VERSION OF PLAN:
Complete digital version of plan (pdf format) sent by email (original plan format 18" x 24'' or 24" x 36'')
5 copies of plan + PDF:
Includes: 5 copies of plan, plan in PDF format (reduced size version), materials list.
Foundation type
Additional foundation types are available, a fee may apply. Please indicate your choice on the online order form, or to our customer service representative, when placing your house plan order.
If your desired foundation type is not available, please contact our customer service to receive your free plan modification quote.
Explanation of bonus space types
UNFINISHED BONUS ROOM
The bonus rooms are often planned above the garage and are accessible from the house. They are designed to be converted as an office, a laundry area, a bathroom, a library corner or even an additional bedroom for which homeowners must make sure to have a window that complies with current codes & standards.
STORAGE AREA
Often located above the garage, our storage areas are used only as storage and are usually accessible from the garage via a retractable staircase.
Do you like this plan but want it to be modified to suit your needs?
To add a garage, another bedroom, finish the basement or any other modification, click here and let us know about your desired changes and to get your free quote for the modification of your plan.
Conditions of use
Important copyright notice! Please take note of these copyright conditions before printing:
By printing this house plan, cottage or garage or the floorplan(s), you confirm being informed that every house plan on this website is the exclusive property of Drummond House
Plans and is protected by Canadian copyright law. You are aware that these prints cannot be used to build or even obtain a building permit. The graphic representations of these
models are offered by Drummond House Plans for the sole purpose of allowing you to notate modifications of a model and then take it to one of the Drummond House Plans Canadian dealers for
modification of the plan.
The purchase of a house plan, cottage or garage from Drummond House Plans is mandatory if you wish to build any of our models. The plan purchase allows you to build a single unit; you cannot resell or give your plan to anyone once the house, cottage or garage has been built. If you wish to build the same house, cottage or garage more than once, you need to obtain the licence to this effect. Please contact us for more details.
All plans from Drummond House Plans can only be modified by a licensed Drummond House Plan Canadian dealer. If any other business or individual with no affiliation to Drummond House Plans modifies a Drummond House Plan on your behalf, please ensure this business or individual has a licence to modify this specific plan or you will be subject to prosecution on the same level as the business or individual who modified or reproduced the plan.
For more details, do not hesitate to contact u by e-mail or by phone at 1-800-567-1413.
I agree to respect the conditions above to not reproduce, modify or build a model from Drummond House Plans without previously purchasing a complete house plan.



















