There are no shipping fees if you buy one of our 2 plan packages "PDF file format" or "5 sets of blueprints + PDF". Shipping charges may apply if you buy additional sets of blueprints.
House plan Portchester (2749)
Modern Farmhouse with Gas Fireplace, Bright Open Spaces and Beautiful Master Suite
Other useful information on this plan
Farmhouse Model PORTCHESTER – Bright and Timeless Home with a Gas Fireplace
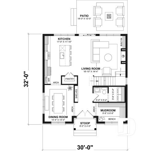
This modern farmhouse home perfectly balances elegance, comfort, and timeless style. Its beautiful exterior siding gives it a classic and inviting look, while its simple, harmonious lines create a warm and welcoming atmosphere. Every space has been designed to combine daily functionality with undeniable charm.
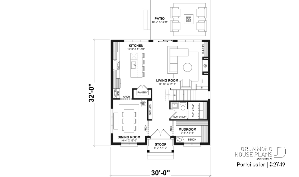
As you enter, graceful ceiling arches guide the eye toward the dining area and mudroom, setting the tone for the home’s refined character. The nine-foot ceilings throughout the main floor enhance the sense of openness, while the rear of the home is bathed in natural light, bringing brightness and warmth to the living areas. A powder room tucked away near the entrance offers convenience for family and guests alike.
The formal dining room, separate from the kitchen, provides the perfect setting for family dinners or intimate gatherings. The kitchen, open to the living room, features a large island ideal for entertaining, cooking, or simply sharing a moment together. With abundant cabinetry and a functional layout, it becomes the heart of everyday life.
The living room with its central gas fireplace creates a cozy focal point. Built-in furniture on either side adds both symmetry and style, turning this space into a beautifully balanced and inviting retreat — perfect for relaxing after a long day.
Upstairs, the primary suite offers a spacious walk-in closet and a private bathroom with a glass shower and double vanity. Three secondary bedrooms share a full family bathroom designed for comfort and practicality.
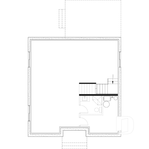
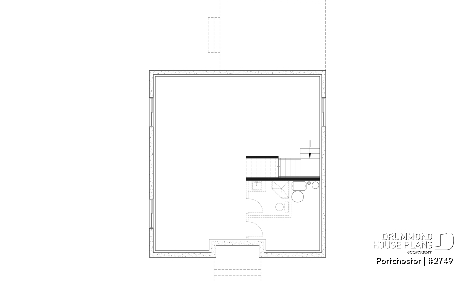
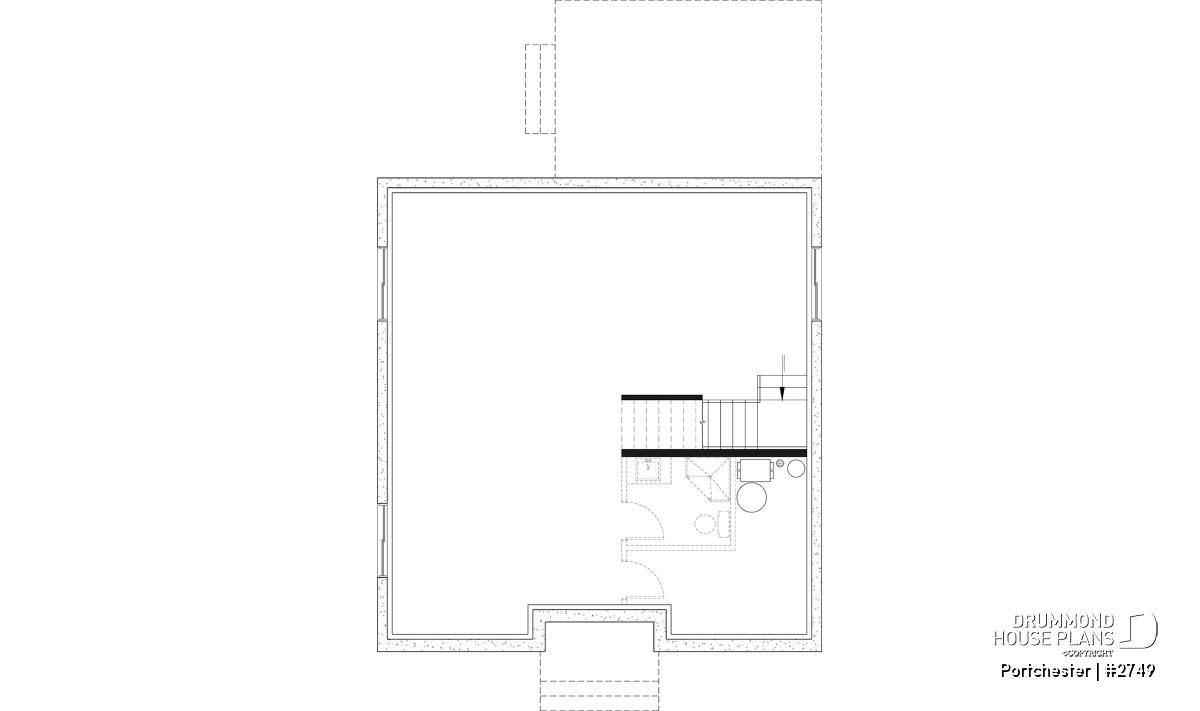
The unfinished basement offers endless possibilities — a playroom, gym, office, or extra bedrooms, ready to adapt to your family’s changing needs.
Blending modern farmhouse design, warm materials, and natural light, this home exudes comfort and authenticity. It’s a place where elegant architecture meets everyday living — a timeless favorite for families seeking a bright, cozy, and functional home that will never go out of style.
Distinctive elements
Warm and timeless farmhouse-style home with elegant siding and classic charm.
Abundant natural light fills the entire rear of the home.
Nine-foot ceilings throughout the main floor for a spacious and airy feel.
Welcoming entryway with arched ceilings leading to the dining area and mudroom.
Convenient powder room tucked away — perfect for guests.
Formal dining room, separate from the kitchen for cozy family meals.
Bright, open kitchen with large island, perfect for entertaining.
Living room with gas fireplace and built-in cabinetry on both sides for a refined look.
Primary suite upstairs with large walk-in closet.
Private bathroom featuring a spacious shower and double vanity.
Three secondary bedrooms upstairs share a full family bathroom.
Unfinished basement ready to adapt to your needs — family room, office, or extra bedrooms.
Plan feature(s)
Fireplace, Formal dining room, Gound floor laundry room, Walk-in master bed., Master suite upstairs, Mud room, Pantry, Shelves, Double sinks, Arch, Plafond avec fausses poutres, Ceiling over 8', Island, Open floor layout, Built-ins
Plan architectural style(s)
Modern farmhouse, . English, . Farmhouse, . Traditional, . Country, Trending
Similar plans
Previously Viewed Plans
Questions and comments
August 18
alo sepp
Please send me a bigger picture of this house. picture nr. 1
August 18
Customer service
Good day and thank you for your interest in this plan.
To enlarge this picture, or any other image, all you need to do is to click on it and then click a second time on the "magnifying glass" in the corner of the image. This will enhance the image to a larger size.
Please let me know if I can further assist you
Regards
Deb
Thank you for your comment! It must be approved before being put online, please allow a period of 24 hours.
Error with google reCaptcha! Try again
Here is a brief description of our different plan packages. Please select the plan package that suits your needs. You can change the package at the next step, if necessary.
PDF VERSION OF PLAN:
Complete digital version of plan (pdf format) sent by email (original plan format 18" x 24'' or 24" x 36'')
5 copies of plan + PDF:
Includes: 5 copies of plan, plan in PDF format (reduced size version), materials list.
Foundation type
Additional foundation types are available, a fee may apply. Please indicate your choice on the online order form, or to our customer service representative, when placing your house plan order.
If your desired foundation type is not available, please contact our customer service to receive your free plan modification quote.
Explanation of bonus space types
UNFINISHED BONUS ROOM
The bonus rooms are often planned above the garage and are accessible from the house. They are designed to be converted as an office, a laundry area, a bathroom, a library corner or even an additional bedroom for which homeowners must make sure to have a window that complies with current codes & standards.
STORAGE AREA
Often located above the garage, our storage areas are used only as storage and are usually accessible from the garage via a retractable staircase.
Do you like this plan but want it to be modified to suit your needs?
To add a garage, another bedroom, finish the basement or any other modification, click here and let us know about your desired changes and to get your free quote for the modification of your plan.
Conditions of use
Important copyright notice! Please take note of these copyright conditions before printing:
By printing this house plan, cottage or garage or the floorplan(s), you confirm being informed that every house plan on this website is the exclusive property of Drummond House
Plans and is protected by Canadian copyright law. You are aware that these prints cannot be used to build or even obtain a building permit. The graphic representations of these
models are offered by Drummond House Plans for the sole purpose of allowing you to notate modifications of a model and then take it to one of the Drummond House Plans Canadian dealers for
modification of the plan.
The purchase of a house plan, cottage or garage from Drummond House Plans is mandatory if you wish to build any of our models. The plan purchase allows you to build a single unit; you cannot resell or give your plan to anyone once the house, cottage or garage has been built. If you wish to build the same house, cottage or garage more than once, you need to obtain the licence to this effect. Please contact us for more details.
All plans from Drummond House Plans can only be modified by a licensed Drummond House Plan Canadian dealer. If any other business or individual with no affiliation to Drummond House Plans modifies a Drummond House Plan on your behalf, please ensure this business or individual has a licence to modify this specific plan or you will be subject to prosecution on the same level as the business or individual who modified or reproduced the plan.
For more details, do not hesitate to contact u by e-mail or by phone at 1-800-567-1413.
I agree to respect the conditions above to not reproduce, modify or build a model from Drummond House Plans without previously purchasing a complete house plan.



















August 18
alo sepp
Please send me a bigger picture of this house. picture nr. 1