There are no shipping fees if you buy one of our 2 plan packages "PDF file format" or "5 sets of blueprints + PDF". Shipping charges may apply if you buy additional sets of blueprints.
House plan Forester (2703)
Affordable english style two-storey home, 3 bedrooms, 2 bathrooms, laundry on main floor
Other useful information on this plan
Classic Exterior, Surprising Interior!
Noteworthy for its well-balanced façade and classic main entrance, this house surprises once we discover its interior.
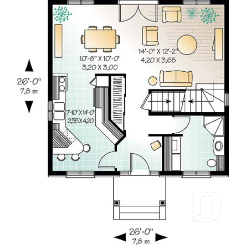
In the foyer, we are at first surprised by the size of the coat closet and by the light provided by the windowing enveloping the main door. Next, it’s the organization of the entire center of activities, completely open to the rear, that holds our attention. Once again we can appreciate an abundance of natural light, thanks to the windows and garden doors adorning the rear wall. A unique kitchen, also open to the front, includes a breakfast nook and flows to a dining room towards the rear. Finally, on this same floor, we are pleased to note that the designers thought to include a shower room combined with the laundry area, a great benefit on the main level.
On the second level, which is accessed by an abundantly windowed staircase, we are again surprised by the size of the closets in each of the bedrooms. A comfortable bathroom boasts a double vanity, corner bath and shower and very discreet toilet.
Distinctive elements
Dual sinks in 2nd level bathroom, dormer, kitchen at front, shutters, abundant windows, covered front stoop.
Plan feature(s)
Lunch counter, Gound floor laundry room, Separate bath and shower, Double sinks, Open floor layout
Plan architectural style(s)
. English, . Traditional, . European
Similar plans
Previously Viewed Plans
Thank you for your comment! It must be approved before being put online, please allow a period of 24 hours.
Error with google reCaptcha! Try again
Here is a brief description of our different plan packages. Please select the plan package that suits your needs. You can change the package at the next step, if necessary.
PDF VERSION OF PLAN:
Complete digital version of plan (pdf format) sent by email (original plan format 18" x 24'' or 24" x 36'')
5 copies of plan + PDF:
Includes: 5 copies of plan, plan in PDF format (reduced size version), materials list.
Foundation type
Additional foundation types are available, a fee may apply. Please indicate your choice on the online order form, or to our customer service representative, when placing your house plan order.
If your desired foundation type is not available, please contact our customer service to receive your free plan modification quote.
Explanation of bonus space types
UNFINISHED BONUS ROOM
The bonus rooms are often planned above the garage and are accessible from the house. They are designed to be converted as an office, a laundry area, a bathroom, a library corner or even an additional bedroom for which homeowners must make sure to have a window that complies with current codes & standards.
STORAGE AREA
Often located above the garage, our storage areas are used only as storage and are usually accessible from the garage via a retractable staircase.
Do you like this plan but want it to be modified to suit your needs?
To add a garage, another bedroom, finish the basement or any other modification, click here and let us know about your desired changes and to get your free quote for the modification of your plan.
Conditions of use
Important copyright notice! Please take note of these copyright conditions before printing:
By printing this house plan, cottage or garage or the floorplan(s), you confirm being informed that every house plan on this website is the exclusive property of Drummond House
Plans and is protected by Canadian copyright law. You are aware that these prints cannot be used to build or even obtain a building permit. The graphic representations of these
models are offered by Drummond House Plans for the sole purpose of allowing you to notate modifications of a model and then take it to one of the Drummond House Plans Canadian dealers for
modification of the plan.
The purchase of a house plan, cottage or garage from Drummond House Plans is mandatory if you wish to build any of our models. The plan purchase allows you to build a single unit; you cannot resell or give your plan to anyone once the house, cottage or garage has been built. If you wish to build the same house, cottage or garage more than once, you need to obtain the licence to this effect. Please contact us for more details.
All plans from Drummond House Plans can only be modified by a licensed Drummond House Plan Canadian dealer. If any other business or individual with no affiliation to Drummond House Plans modifies a Drummond House Plan on your behalf, please ensure this business or individual has a licence to modify this specific plan or you will be subject to prosecution on the same level as the business or individual who modified or reproduced the plan.
For more details, do not hesitate to contact u by e-mail or by phone at 1-800-567-1413.
I agree to respect the conditions above to not reproduce, modify or build a model from Drummond House Plans without previously purchasing a complete house plan.








