There are no shipping fees if you buy one of our 2 plan packages "PDF file format" or "5 sets of blueprints + PDF". Shipping charges may apply if you buy additional sets of blueprints.
House plan Herschel (2751)
Budget-friendly French coutry cottage, 3 bedrooms, open floor plan, stunning family bathroom
Other useful information on this plan
French country affordable home with 3 bedrooms!
Touches of brick / stone on the facade, shutters and overflowing flower boxes as it was so much noticed in France after the Second World War, are the elements giving this model a touch of some of the most beautiful country homes in France!
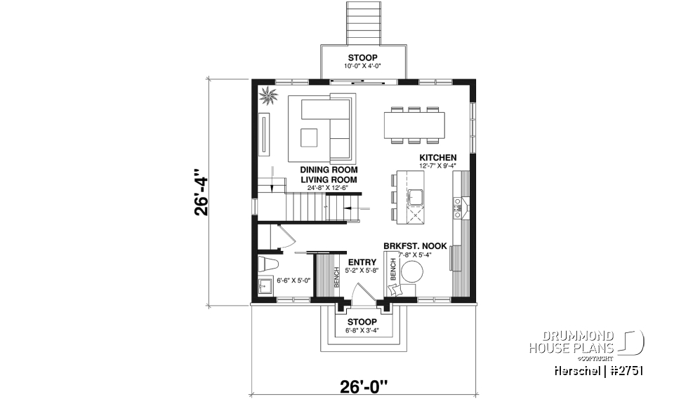
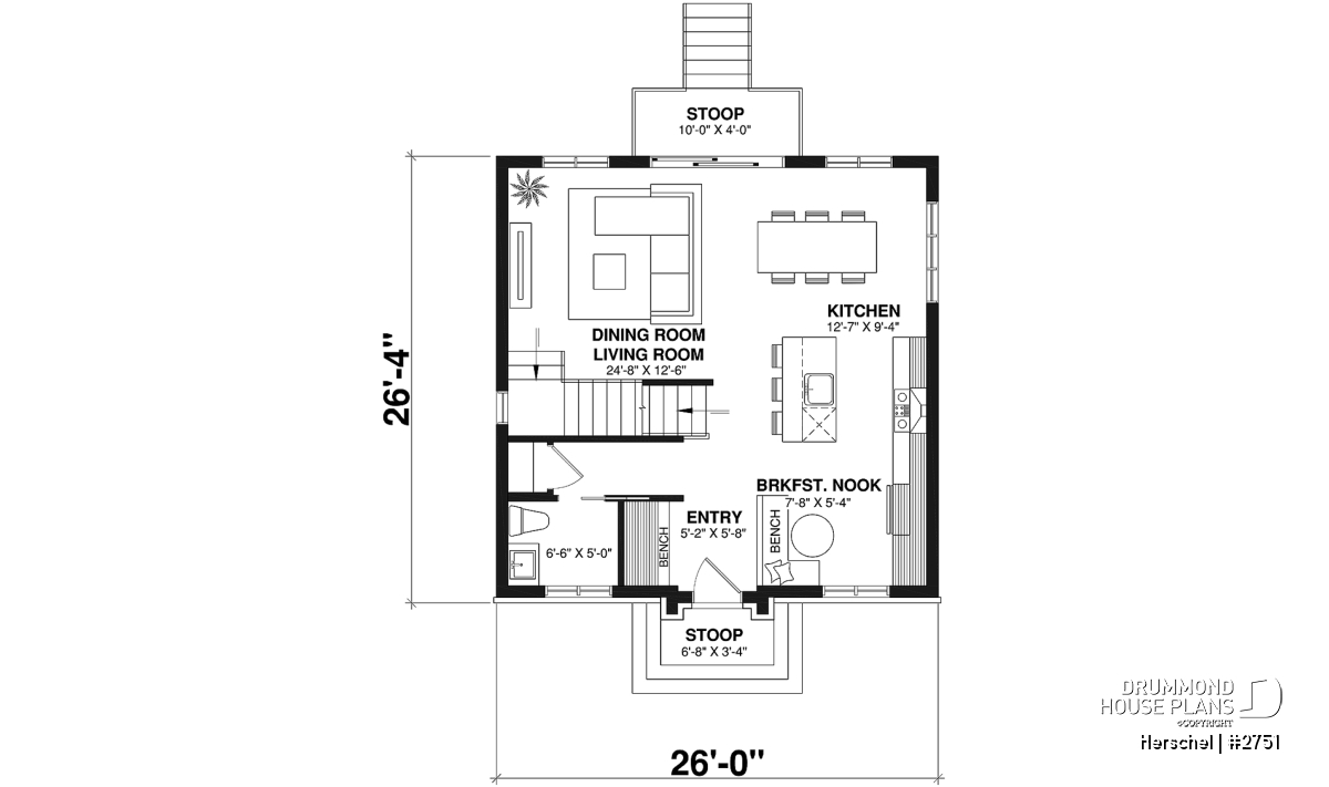
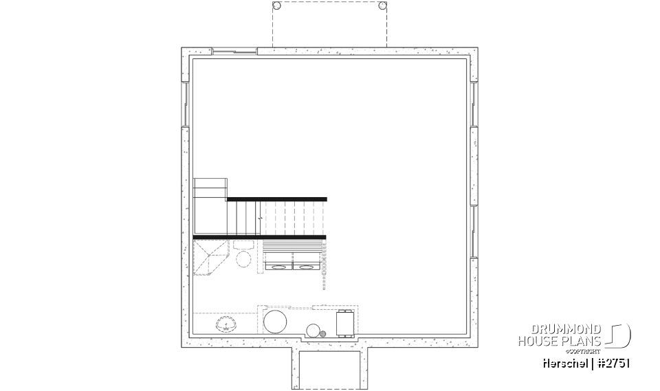
Inside, it is mainly a maximization of space and the virtual absence of corridor that can be appreciated at first glance. Thereafter, there is a pleasant main entrance next to a kitchen / dinette booth original and full of light whose configuration allows the insertion of a bench and storage. The dining room forms with the living room a space that is both open and attractive looking entirely at the back. At the front, this floor is completed by a half bath that is always very popular.
Upstairs, there are three beautiful bedrooms, each with an interesting wardrobe and more particularly a very comfortable bathroom for a model of this size. This offers an integrated bath/shower area and a very discreet toilet, as strongly suggested in an ideal bathroom layout.
Distinctive elements
Affordable French country style home.
3 bedrooms and large bathroom upstairs.
Original kitchen with dinette area overlooking the front of the house.
Living room and dining room overlooking the back.
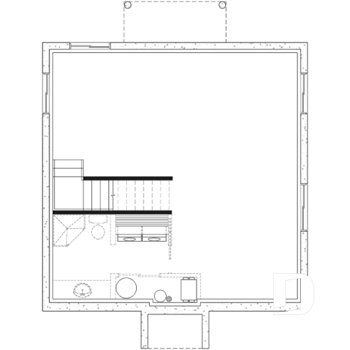
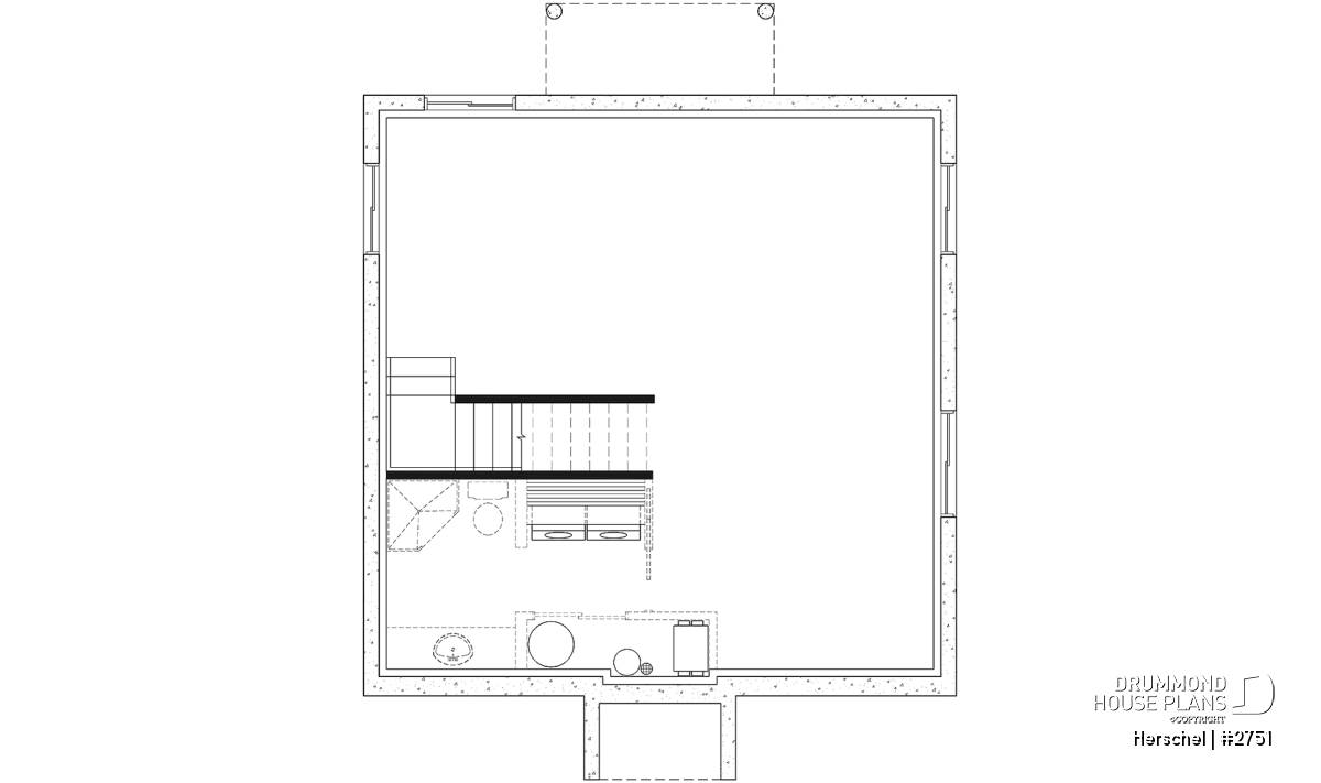
Unfinished basement to convert for additional space if needed.
Plan feature(s)
Lunch counter, Bench seat(s), Open floor layout, Breakfast nook, Island, Builder, Self-Build, Bath in the shower
Plan architectural style(s)
. Colonial, . Traditional, . English, Modern French Country, Classic, . Mediterranean, . European, French Country
Similar plans
Previously Viewed Plans
Questions and comments
February 21
alma clermont
How much is this house to build
February 21
Customer service
Good day and thank you for taking the time to write
The ballpark construction estimate to build the model in Quebec (Canada) is from $157,000. to $190,000.
The estimates are based on professional grade materials and include ceramic in the hallway, the kitchen and the bathrooms and hardwood flooring throughout the common areas and the bedrooms (carpet in the bedrooms of models that have less than 1,800 sq.ft. of living space) with wood grain melamine cabinetry.
The estimates were updated in January 2014 and the lower of the two is for a self managed project in which the owner does all of the planning, scheduling and signature of contracts with the various specialized contractors as well as taking care of the physical installation of the vapor barrier, insulation, gyproc and the paint and the higher of the two estimates is for a turnkey project.
In either case the cost of the land and its excavation, taxes and hook-ups to municipal or other services is not included in the calculation and it is highly recommended to consult local contractors and materials suppliers to get a better idea of the actual cost to build in your area.
I hope that this provides some helpful information and I invite you to contact me if you have any other questions or comments
Regards
Deb
Thank you for your comment! It must be approved before being put online, please allow a period of 24 hours.
Error with google reCaptcha! Try again
Here is a brief description of our different plan packages. Please select the plan package that suits your needs. You can change the package at the next step, if necessary.
PDF VERSION OF PLAN:
Complete digital version of plan (pdf format) sent by email (original plan format 18" x 24'' or 24" x 36'')
5 copies of plan + PDF:
Includes: 5 copies of plan, plan in PDF format (reduced size version), materials list.
Foundation type
Additional foundation types are available, a fee may apply. Please indicate your choice on the online order form, or to our customer service representative, when placing your house plan order.
If your desired foundation type is not available, please contact our customer service to receive your free plan modification quote.
Explanation of bonus space types
UNFINISHED BONUS ROOM
The bonus rooms are often planned above the garage and are accessible from the house. They are designed to be converted as an office, a laundry area, a bathroom, a library corner or even an additional bedroom for which homeowners must make sure to have a window that complies with current codes & standards.
STORAGE AREA
Often located above the garage, our storage areas are used only as storage and are usually accessible from the garage via a retractable staircase.
Do you like this plan but want it to be modified to suit your needs?
To add a garage, another bedroom, finish the basement or any other modification, click here and let us know about your desired changes and to get your free quote for the modification of your plan.
Conditions of use
Important copyright notice! Please take note of these copyright conditions before printing:
By printing this house plan, cottage or garage or the floorplan(s), you confirm being informed that every house plan on this website is the exclusive property of Drummond House
Plans and is protected by Canadian copyright law. You are aware that these prints cannot be used to build or even obtain a building permit. The graphic representations of these
models are offered by Drummond House Plans for the sole purpose of allowing you to notate modifications of a model and then take it to one of the Drummond House Plans Canadian dealers for
modification of the plan.
The purchase of a house plan, cottage or garage from Drummond House Plans is mandatory if you wish to build any of our models. The plan purchase allows you to build a single unit; you cannot resell or give your plan to anyone once the house, cottage or garage has been built. If you wish to build the same house, cottage or garage more than once, you need to obtain the licence to this effect. Please contact us for more details.
All plans from Drummond House Plans can only be modified by a licensed Drummond House Plan Canadian dealer. If any other business or individual with no affiliation to Drummond House Plans modifies a Drummond House Plan on your behalf, please ensure this business or individual has a licence to modify this specific plan or you will be subject to prosecution on the same level as the business or individual who modified or reproduced the plan.
For more details, do not hesitate to contact u by e-mail or by phone at 1-800-567-1413.
I agree to respect the conditions above to not reproduce, modify or build a model from Drummond House Plans without previously purchasing a complete house plan.








February 21
alma clermont
How much is this house to build