There are no shipping fees if you buy one of our 2 plan packages "PDF file format" or "5 sets of blueprints + PDF". Shipping charges may apply if you buy additional sets of blueprints.
                                                                                                                                                                                                                                                                                                                                                                                                                                                                                                                                                                                                                                                                                                                                                                          House plan Delphine 2  (1702-V1)                
                                      
                                  
              
              Compact Country house plan with garage, 3 bedrooms, 2.5 bathrooms, master bedroom with private ensuite
Other useful information on this plan
Compact and simple 2-story Country-style house plan with covered front and rear porches!
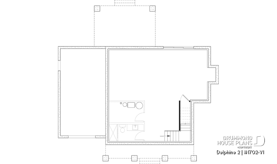
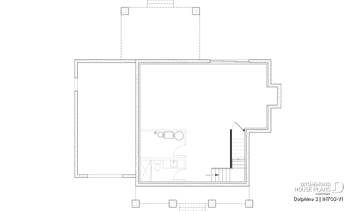
The Delphine 2 house plan (#1702-V1) offers 1622 sq. ft. on two floors. The basic foundation included in the plan is an unfinished basement of 850 sq. ft. Note that several other types of foundations are available ($). In addition, a single garage of 396 sq. ft. is large enough to set up a workbench, which will be perfect for DIY enthusiasts!
On the ground floor, we find 9' high ceilings, which gives an amplitude affect to all the rooms. The front entrance offers a mudroom, which is accessible from the garage, and which includes built-in furniture, as well as a bench, practical for putting down shopping or grocery bags. The kitchen, with pantry and island, is open to the dining room and the living room. The latter has a central fireplace with built-in furniture on each side. Access to the covered terrace is from the dining room. This covered outdoor space allows for the creation of a dining area as well as a living room area. The laundry room and the powder room are also on the ground floor.
Upstairs, we find 3 bedrooms, including a master bedroom with a very appreciable reading corner. In addition, the master bedroom offers a walk-in closet and a private bathroom, with two sinks and a large shower. The two secondary bedrooms share a bathroom, with a toilet and bath on one side, and a double vanity on the other.
Although the Delphine 2 plan is rather compact, its warm layout and many amenities will suit young families who are concerned about their budget! Not to mention that the basement could eventually be finished for the family's future needs!
Distinctive elements
Country-style two-story house with a good-sized single garage.
9' ceiling on the entire ground floor.
Mudroom accessible from the garage and the front entrance of the house.
Powder room (toilet & sink) set back from the common areas.
Laundry room with counter and sink, on the ground floor.
Open area to the kitchen, dining room and living room.
Pantry and island in the kitchen.
Fireplace in the living room, centered and visible from the kitchen and dining area. Built-in furniture on each side of the fireplace.
18' x 12' covered terrace large enough to set up a dining and lounging area.
Master bedroom upstairs with reading area, walk-in closet and private shower room.
The two secondary bedrooms share a bathroom, the bath and toilet  are separate from the double sink area.
The basement is unfinished, and could possibly be converted into additional bedrooms, a family room, an office or other, depending on your family's needs.
Plan feature(s)
Sloped ceiling, Master suite upstairs, Gound floor laundry room, Pantry, Fireplace, Deck, Mud room, Built-ins, Double sinks, Ceiling over 8', Builder, Self-Build, Walk-in master bed.
Similar plans
Previously Viewed Plans
Thank you for your comment! It must be approved before being put online, please allow a period of 24 hours.
Error with google reCaptcha! Try again
Here is a brief description of our different plan packages. Please select the plan package that suits your needs. You can change the package at the next step, if necessary.
PDF VERSION OF PLAN:
Complete digital version of plan (pdf format) sent by email (original plan format 18" x 24'' or 24" x 36'')
5 copies of plan + PDF:
Includes: 5 copies of plan, plan in PDF format (reduced size version), materials list.
Foundation type
Additional foundation types are available, a fee may apply. Please indicate your choice on the online order form, or to our customer service representative, when placing your house plan order.
If your desired foundation type is not available, please contact our customer service to receive your free plan modification quote.
Explanation of bonus space types
UNFINISHED BONUS ROOM
The bonus rooms are often planned above the garage and are accessible from the house. They are designed to be converted as an office, a laundry area, a bathroom, a library corner or even an additional bedroom for which homeowners must make sure to have a window that complies with current codes & standards.
STORAGE AREA
Often located above the garage, our storage areas are used only as storage and are usually accessible from the garage via a retractable staircase.
Do you like this plan but want it to be modified to suit your needs?
To add a garage, another bedroom, finish the basement or any other modification, click here and let us know about your desired changes and to get your free quote for the modification of your plan.
Conditions of use
Important copyright notice! Please take note of these copyright conditions before printing:
        By printing this house plan, cottage or garage or the floorplan(s), you confirm being informed that every house plan on this website is the exclusive property of Drummond House
          Plans and is protected by Canadian copyright law. You are aware that these prints cannot be used to build or even obtain a building permit. The graphic representations of these
        models are offered by Drummond House Plans for the sole purpose of allowing you to notate modifications of a model and then take it to one of the Drummond House Plans Canadian dealers for
        modification of the plan.
The purchase of a house plan, cottage or garage from Drummond House Plans is mandatory if you wish to build any of our models. The plan purchase allows you to build a single unit; you cannot resell or give your plan to anyone once the house, cottage or garage has been built. If you wish to build the same house, cottage or garage more than once, you need to obtain the licence to this effect. Please contact us for more details.
All plans from Drummond House Plans can only be modified by a licensed Drummond House Plan Canadian dealer. If any other business or individual with no affiliation to Drummond House Plans modifies a Drummond House Plan on your behalf, please ensure this business or individual has a licence to modify this specific plan or you will be subject to prosecution on the same level as the business or individual who modified or reproduced the plan.
For more details, do not hesitate to contact u by e-mail or by phone at 1-800-567-1413.
I agree to respect the conditions above to not reproduce, modify or build a model from Drummond House Plans without previously purchasing a complete house plan.






 
                           
                           
                           
                          


 
                             
                             
                            










 
                                   
                                   
                                   
                                   
                                   
                                   
                                   
                                   
                                   
                                   
                                   
                         
                         
                         
                         
                                           
                         
                         
                         
                         
                         
                         
                         
               
               
               
               
               
               
               
               
              