There are no shipping fees if you buy one of our 2 plan packages "PDF file format" or "5 sets of blueprints + PDF". Shipping charges may apply if you buy additional sets of blueprints.
House plan Tristan 2 (2871)
American Farmhouse Home Plan With Primary Suite, Open Living Spaces and Large Expansion Potential
Other useful information on this plan
American Farmhouse Two-Story Home: Bright Living, Family Comfort and Timeless Country Charm
This spacious two-story American Farmhouse home stands out with its timeless charm and practical layout designed for family living. From the moment you arrive, the large wraparound porch—covering three sides of the house—creates a warm and inviting atmosphere. It offers shelter in every season and becomes a natural extension of the living space, perfect for morning coffee or relaxed evenings outdoors.
Warm Welcome and Classic Farmhouse Appeal
Inside, the open and airy foyer sets the tone for the rest of the home. Bright, uncluttered and elegant, it highlights the home’s thoughtful design. The main floor features 9-foot ceilings, enhanced by mezzanine-style openings above the dining room and family room. These elevated volumes add remarkable height and give the entire level a spacious, uplifting feel.
Inviting Living Areas, Bright Kitchen and Main-Floor Primary Suite
The formal dining room is ideal for hosting family dinners and festive gatherings. Nearby, the bright and welcoming kitchen offers a smart layout with a walk-in pantry, a snack bar for quick meals, and a sunlit breakfast nook that becomes a favorite spot throughout the day.
The kitchen flows naturally into the family room, creating a seamless space for daily living. A cozy fireplace becomes the heart of the room, offering warmth and character—perfect for winter nights or relaxed weekends at home.
The main-floor primary suite provides comfort and convenience, featuring a generous walk-in closet and a large private bathroom with a separate tub, an independent shower and a double-sink vanity. A separate living room with an integrated desk nook adds a quiet retreat for reading, working, or watching TV. A powder room and a laundry room, both positioned away from the main living areas, enhance privacy and practicality.
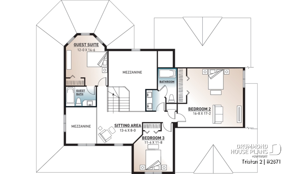
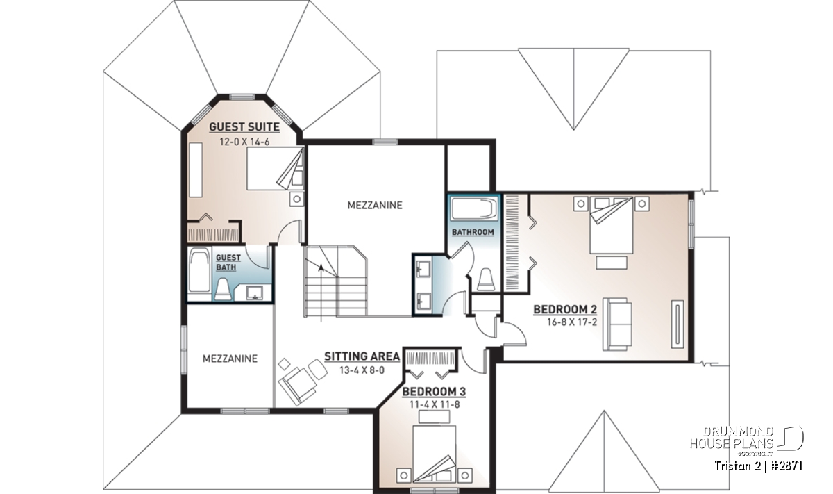
Airy Upper Level, Architectural Mezzanines and Flexible Basement Space
Upstairs, two mezzanines overlook the main living areas, adding architectural distinction and bringing even more natural light into the home. Three bedrooms occupy this level, including one with its own private bathroom—perfect for guests or a teenager seeking independence. The remaining bedrooms share a full bathroom designed with separate zones for the vanity, toilet and tub, improving functionality. A small, bright reading nook offers an intimate corner to unwind.
The unfinished basement provides tremendous potential for future development, whether you envision additional bedrooms, a home gym, a playroom or a large storage area.
A side-entry double garage with direct access to the home adds everyday convenience and keeps entry traffic tidy.
For a similar version built on a full basement, explore the TRISTAN plan (#4871).
Distinctive elements
Spacious two-story American Farmhouse-style home, perfect for families seeking comfort and practicality.
Large covered porch wrapping around three sides, offering a warm and sheltered entrance in every season.
Bright, open front foyer that creates a polished and welcoming first impression.
The main floor features 9-foot ceilings, with mezzanine-style heights above the dining room and family room to enhance the sense of openness.
A formal dining room designed to host family and friends during special occasions.
Inviting kitchen with a walk-in pantry, snack counter, and bright breakfast nook.
Open to the family room, where a fireplace adds a warm and welcoming atmosphere.
The primary suite, located on the main floor, includes a spacious walk-in closet and a large private bathroom with separate tub, shower, and double vanity.
A separate living room with a built-in desk nook offers a quiet area for work or relaxation.
Powder room and laundry room positioned discreetly away from the main living spaces.
Upstairs, two mezzanines overlook the main living areas and provide distinctive architectural charm.
Three bedrooms are located on this level, including one with a private bathroom—ideal for guests or a teenager needing privacy.
The two additional bedrooms share a full bathroom with the sink area separated from the toilet and tub.
A bright little reading nook adds a cozy, intimate touch.
The unfinished basement offers many development possibilities, such as extra bedrooms, a family room, a home gym, or additional storage.
Side-entry double garage with direct access to the home, conveniently located near a closet.
For a similar version with a full basement, see the TRISTAN plan (#4871).
Plan feature(s)
Fireplace, Mezzanine, Deck, Panoramic view, Pantry, Guest suite, Gound floor laundry room, Side entry garage, Ceiling over 8', Master suite on main, Walk-in master bed., Warparound, Breakfast nook, Lunch counter, Office / Study / Den, Double sinks, Separate bath and shower, Formal dining room, Sitting area
Plan architectural style(s)
. Country, . Farmhouse, . Traditional
Similar plans
Previously Viewed Plans
Thank you for your comment! It must be approved before being put online, please allow a period of 24 hours.
Error with google reCaptcha! Try again
Here is a brief description of our different plan packages. Please select the plan package that suits your needs. You can change the package at the next step, if necessary.
PDF VERSION OF PLAN:
Complete digital version of plan (pdf format) sent by email (original plan format 18" x 24'' or 24" x 36'')
5 copies of plan + PDF:
Includes: 5 copies of plan, plan in PDF format (reduced size version), materials list.
Foundation type
Additional foundation types are available, a fee may apply. Please indicate your choice on the online order form, or to our customer service representative, when placing your house plan order.
If your desired foundation type is not available, please contact our customer service to receive your free plan modification quote.
Explanation of bonus space types
UNFINISHED BONUS ROOM
The bonus rooms are often planned above the garage and are accessible from the house. They are designed to be converted as an office, a laundry area, a bathroom, a library corner or even an additional bedroom for which homeowners must make sure to have a window that complies with current codes & standards.
STORAGE AREA
Often located above the garage, our storage areas are used only as storage and are usually accessible from the garage via a retractable staircase.
Do you like this plan but want it to be modified to suit your needs?
To add a garage, another bedroom, finish the basement or any other modification, click here and let us know about your desired changes and to get your free quote for the modification of your plan.
Conditions of use
Important copyright notice! Please take note of these copyright conditions before printing:
By printing this house plan, cottage or garage or the floorplan(s), you confirm being informed that every house plan on this website is the exclusive property of Drummond House
Plans and is protected by Canadian copyright law. You are aware that these prints cannot be used to build or even obtain a building permit. The graphic representations of these
models are offered by Drummond House Plans for the sole purpose of allowing you to notate modifications of a model and then take it to one of the Drummond House Plans Canadian dealers for
modification of the plan.
The purchase of a house plan, cottage or garage from Drummond House Plans is mandatory if you wish to build any of our models. The plan purchase allows you to build a single unit; you cannot resell or give your plan to anyone once the house, cottage or garage has been built. If you wish to build the same house, cottage or garage more than once, you need to obtain the licence to this effect. Please contact us for more details.
All plans from Drummond House Plans can only be modified by a licensed Drummond House Plan Canadian dealer. If any other business or individual with no affiliation to Drummond House Plans modifies a Drummond House Plan on your behalf, please ensure this business or individual has a licence to modify this specific plan or you will be subject to prosecution on the same level as the business or individual who modified or reproduced the plan.
For more details, do not hesitate to contact u by e-mail or by phone at 1-800-567-1413.
I agree to respect the conditions above to not reproduce, modify or build a model from Drummond House Plans without previously purchasing a complete house plan.















