There are no shipping fees if you buy one of our 2 plan packages "PDF file format" or "5 sets of blueprints + PDF". Shipping charges may apply if you buy additional sets of blueprints.
House plan The Ridgewood (2853)
Beautiful Country Rustic home, large bonus space, solarium, 9' ceiling on main floor, side garage
Other useful information on this plan
Beautiful country style house plan with 3 to 4 bedrooms, home office and a 2-car garage!
As one of the Drummond House Plans that pleases clients on both sides of the border, this model is above all elegant with its beautiful veranda in front and its simple roof lines that are well balanced with the discreet openings including its double garage.
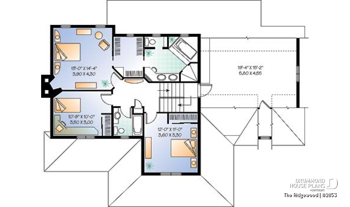
Inside, from the expanse of the main foyer can be seen a remarkable solarium. The 9’ ceiling height of the main floor which boasts a large living room with corner fireplace, a nicely sized dining room and a laudable kitchen with central island and breakfast nook. A separate laundry area with powder room and a beautiful secondary living room which could serve as a fourth bedroom.
The split level to the second floor has access to a surprisingly large bonus space above the garage that would make an ideal space for a home theatre. The comfortably sized bedrooms and two full bathrooms , one an en suite to the main bedroom which also has a walk-in closet and a fireplace, make the appeal of this home obvious.
Distinctive elements
9' ceiling throughout the first level.
Family room with fireplace adjoining the solarium.
TV room that can be converted into home office.
Kitchen with central island, nice dinette space and planning desk.
Independent laundry area on the first level. Lovely master suite on the second level with a walk-in closet and a bathroom with a toilet cabinet.
Adaptable bonus space above the garage.
Plan feature(s)
Fireplace, Ceiling over 8', Living bonus space, Master suite upstairs, Side entry garage, Gound floor laundry room, Deck, Breakfast nook, Entrance hall, Formal dining room, Office / Study / Den, Walk-in master bed., Separate bath and shower, Double sinks, Sloped ceiling, Sunroom, Planning desk
Plan architectural style(s)
. Country, . Farmhouse, . Rustic, . Traditional, . American
Similar plans
Previously Viewed Plans
Questions and comments
July 18
Maggie
What is the cost for the supplies for this home, without labour. I was unsure if the above price was including labour or not. Thank you for your time.
July 19
Customer service
Dear Maggie,
Thank you for your interest in Drummond House Plans.
The construction cost estimate provided for this plan includes the foundation and most building supplies and labour costs. However, we cannot provide a specific breakdown of the costs.
Also, this estimate does not include the lot, the sales taxes and the cost for connecting the house to the city's services (aqueduct, sewer lines).
If you have other questions, please do not hesitate to contact me again.
Sincerely,
France, Customer Service Department
February 06
Taril-Jean Lybbert
From the moment we saw this house plan we thought it was a beautiful home. We built this house 3 years ago and love it! We took out the solarium and made the living room larger. We often have people tell us how beautiful this house is, even from the outside. Our children enjoy having their friends come over for movies and games in the bonus room.
February 08
Customer service
Dear Mrs Lybbert,
We are very pleased to get your input on this house. Thank you so much for taking the time to share your joy with us.
Do not hesitate to contact us again if we can be of assistance to you in any way.
Best Regards,
Doreen, Customer Service Department
October 15
Sandra MacLean
What would be an estimated cost to build this house.
October 18
Customer service
Dear Mrs Maclean,
Since we are located in Quebec, the only price we have is a provincial average that might not be accurate for your area.
The price we have is 318,000$ to 360,000$. Local builders might be able to provide you with a more accurate price.
Please contact me again if you need further information.
Best Regards,
Doreen, Customer Service Department
October 15
Sandra Maclean
Does the total living area listed above include the bonus space?
October 15
Customer service
Dear Mrs Maclean,
Thank you for your interest in Drummond House Plans.
The total living area does not include the bonus space since it is a non-finished area. For all the details on what's included or not, please follow this link: www.drummondhouseplans.com/information-center/dimensions-calculation.html.
If you need further information, do not hesitate to contact me again. I will gladly answer any questions you may have.
Best Regards,
Doreen, Customer Service Department
Thank you for your comment! It must be approved before being put online, please allow a period of 24 hours.
Error with google reCaptcha! Try again
Here is a brief description of our different plan packages. Please select the plan package that suits your needs. You can change the package at the next step, if necessary.
PDF VERSION OF PLAN:
Complete digital version of plan (pdf format) sent by email (original plan format 18" x 24'' or 24" x 36'')
5 copies of plan + PDF:
Includes: 5 copies of plan, plan in PDF format (reduced size version), materials list.
Foundation type
Additional foundation types are available, a fee may apply. Please indicate your choice on the online order form, or to our customer service representative, when placing your house plan order.
If your desired foundation type is not available, please contact our customer service to receive your free plan modification quote.
Explanation of bonus space types
UNFINISHED BONUS ROOM
The bonus rooms are often planned above the garage and are accessible from the house. They are designed to be converted as an office, a laundry area, a bathroom, a library corner or even an additional bedroom for which homeowners must make sure to have a window that complies with current codes & standards.
STORAGE AREA
Often located above the garage, our storage areas are used only as storage and are usually accessible from the garage via a retractable staircase.
Do you like this plan but want it to be modified to suit your needs?
To add a garage, another bedroom, finish the basement or any other modification, click here and let us know about your desired changes and to get your free quote for the modification of your plan.
Conditions of use
Important copyright notice! Please take note of these copyright conditions before printing:
By printing this house plan, cottage or garage or the floorplan(s), you confirm being informed that every house plan on this website is the exclusive property of Drummond House
Plans and is protected by Canadian copyright law. You are aware that these prints cannot be used to build or even obtain a building permit. The graphic representations of these
models are offered by Drummond House Plans for the sole purpose of allowing you to notate modifications of a model and then take it to one of the Drummond House Plans Canadian dealers for
modification of the plan.
The purchase of a house plan, cottage or garage from Drummond House Plans is mandatory if you wish to build any of our models. The plan purchase allows you to build a single unit; you cannot resell or give your plan to anyone once the house, cottage or garage has been built. If you wish to build the same house, cottage or garage more than once, you need to obtain the licence to this effect. Please contact us for more details.
All plans from Drummond House Plans can only be modified by a licensed Drummond House Plan Canadian dealer. If any other business or individual with no affiliation to Drummond House Plans modifies a Drummond House Plan on your behalf, please ensure this business or individual has a licence to modify this specific plan or you will be subject to prosecution on the same level as the business or individual who modified or reproduced the plan.
For more details, do not hesitate to contact u by e-mail or by phone at 1-800-567-1413.
I agree to respect the conditions above to not reproduce, modify or build a model from Drummond House Plans without previously purchasing a complete house plan.













July 18
Maggie
What is the cost for the supplies for this home, without labour. I was unsure if the above price was including labour or not. Thank you for your time.