There are no shipping fees if you buy one of our 2 plan packages "PDF file format" or "5 sets of blueprints + PDF". Shipping charges may apply if you buy additional sets of blueprints.
House plan Bainbridge 2 (3816)
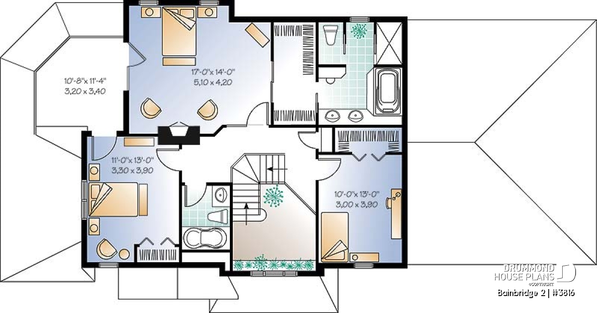
3 bedroom house plan, sunken family room, home office, screened porch, solarium
Other useful information on this plan
Bright, Comfortable Elegance for this 3-4 bedroom traditional home design
With its uncommonly elegant exterior, this house possesses many features worthy of mention. Whether it be the two-car garage which is in perfect harmony with the rest of the house, or that beautiful solarium on the opposite façade which many will take pleasure in decorating in exotic fashion, without forgetting two rear terraces, one of which is accessible to the master bedroom, this model proposes many excellent interior features as well.
As soon as we enter the foyer, we are pleasantly surprised by the vastness of this entrance which is open over two storeys. We appreciate a sunken living room with adjoining solarium of very interesting dimensions, and we are enthralled by a comfortable dining room which shares a see-thru fireplace with the living room and by a spacious well organized kitchen offering plenty of cabinet space. Not to be neglected, a good sized office space, independent half-bath, and a very useful laundry room really complete this level.
The second level offers two well dimensioned secondary bedrooms, one of which has access to the terrace, and a bathroom to be shared by both. We are more than happy with the amplitude of the master suite with, as already mentioned, an access to the terrace, a private fireplace, large walk-in type closet and private bathroom with a cabin toilet and good sized shower.
Distinctive elements
Home office provided on the first level. Sunken family room with fireplace that opens onto the dining room and the solarium. Rear covered lateral terrace under a balcony overlooking the master suite with a fireplace, a walk-in closet and a bathroom with a toilet cabinet. Independent laundry room on the first level.
Plan feature(s)
Fireplace, Master suite upstairs, Gound floor laundry room, Walk-in master bed., Office / Study / Den, Sunroom, Balcony 2nd floor, Mezzanine, Planning desk, Separate bath and shower, Double sinks, Sunken living room, Lunch counter, Deck, 2-Story foyer
Plan architectural style(s)
. Country, . Traditional, . American, . Transitional
Similar plans
Previously Viewed Plans
Questions and comments
March 09
Richard Boikoff
Hi It would help me a lot if could put a price to each house So I can make a better choice and to fit my budget. what do you think. looking to build in Ontario Many Thanks Richard
March 09
Customer service
Good day Mr Boikoff and thank you for your interest in our plans.
Although we do no actual construction we do have estimates to build our homes based on Quebec (Cda) averages. These can be viewed by clicking on FR to access the French web site. You will notice that the price range starts with a lower cost which represents a self managed project in which you do the planning and management (as would the general contractor) as well as installing the vapor barrier, insulation, drywall and paint.
The high end of the estimate, $383,000. in the case of this particular model, is for a turn key project in which the general contractor takes care of everything and delivers the home to you ready to move in.
This estimate is based on professional grade materials and includes ceramic in the foyer, the kitchen and the bathrooms with hardwood flooring throughout the common areas and in the bedrooms and the kitchen cabinetry is wood grain melamine.
The cost of the land and its excavation, taxes and hook-ups to municipal or other services is not included in the calculation and it is highly recommended to consult local contractors and materials suppliers to get a better idea of the actual cost to build in your area.
I hope that this provides some helpful information and I invite you to contact me if you have any other questions or comments
Regards
Deb
September 09
Luibov
Good afternoon. Loved your projects. Do you have representatives in Russia? How can you buy your project?
September 09
Customer service
Good day and thank you for taking the time to write
We do not have any representatives in Russia but you can purchase your plans directly from our website. We sell the plans and other documentation that you require to proceed with building the model of your choice.
You can purchase plans in either paper format or electronic versions that include PDF (which cannot be modified) or CAD (that can be adapted to suit your local requirements).
Although the plans and materials lists use Imperial measurements (feet/inches) as a standard, they are available in metric for an additional $395. for the plan and $245. for the materials list.
Please let me know if I can further assist you
Regards
Deb
October 26
Kim
Hello,
How much would this house cost, in euros, to build in the area of Alberta? Would it make alot difference in costs without garage?
Thanks.
October 26
Customer service
Good day and thank you for your interest in our plans.
Unfortunately, since we do no actual construction we do not have construction estimates for the province of Alberta.
Your best resource for this information would be local contractors and materials suppliers in the area in which you wish to build your home.
Please let me know if you have any other questions or comments.
Regards
Deborah
September 12
Jennie
hi,
got a couple questions before purchasing.
1. can i get this plan without the fireplace,chimney and garage?
2. how much will it cost to build in Newfoundland without a contractor and with the modifications?
Thanks
September 12
Customer service
Hello Jennie,
Thank you for your interest inDrummond House Plans.
Yes, this plan can be modified so that the fireplace, the chimney and the garage are removed. To receive a free cost estimate for these modifications, you can visit the "Plan Customization Services" section of our website or contact our Modification Department at 1-800-567-5267.
The only estimated construction costs we have for building without a contractor are based on average prices available for the province of Quebec, Canada ($293,000). This estimate does not include the land, taxes or the cost of connecting the house to the city?s amenities (sewer lines, aqueduct). It includes most building materials and some labor (foundation, electricity and plumbing).
If you need further information, please do not hesitate to contact us again.
Sincerely,
France, Customer Service Department
August 31
Donna C.
What is the height of the living room ceiling?
August 31
Customer service
Dear Donna,
Thank you for your interest in Drummond House Plans.
The height of the living room ceiling is 9 feet 2 inches. You can display the room details, such as dimensions and ceiling heights, for each level by clicking on "View Room Details" (in blue and underlined characters) at the top of this page.
If you have other questions, do not hesitate to contact me again. I will gladly answer them.
Sincerely,
France, Customer Service Department
Thank you for your comment! It must be approved before being put online, please allow a period of 24 hours.
Error with google reCaptcha! Try again
Here is a brief description of our different plan packages. Please select the plan package that suits your needs. You can change the package at the next step, if necessary.
PDF VERSION OF PLAN:
Complete digital version of plan (pdf format) sent by email (original plan format 18" x 24'' or 24" x 36'')
5 copies of plan + PDF:
Includes: 5 copies of plan, plan in PDF format (reduced size version), materials list.
Foundation type
Additional foundation types are available, a fee may apply. Please indicate your choice on the online order form, or to our customer service representative, when placing your house plan order.
If your desired foundation type is not available, please contact our customer service to receive your free plan modification quote.
Explanation of bonus space types
UNFINISHED BONUS ROOM
The bonus rooms are often planned above the garage and are accessible from the house. They are designed to be converted as an office, a laundry area, a bathroom, a library corner or even an additional bedroom for which homeowners must make sure to have a window that complies with current codes & standards.
STORAGE AREA
Often located above the garage, our storage areas are used only as storage and are usually accessible from the garage via a retractable staircase.
Do you like this plan but want it to be modified to suit your needs?
To add a garage, another bedroom, finish the basement or any other modification, click here and let us know about your desired changes and to get your free quote for the modification of your plan.
Conditions of use
Important copyright notice! Please take note of these copyright conditions before printing:
By printing this house plan, cottage or garage or the floorplan(s), you confirm being informed that every house plan on this website is the exclusive property of Drummond House
Plans and is protected by Canadian copyright law. You are aware that these prints cannot be used to build or even obtain a building permit. The graphic representations of these
models are offered by Drummond House Plans for the sole purpose of allowing you to notate modifications of a model and then take it to one of the Drummond House Plans Canadian dealers for
modification of the plan.
The purchase of a house plan, cottage or garage from Drummond House Plans is mandatory if you wish to build any of our models. The plan purchase allows you to build a single unit; you cannot resell or give your plan to anyone once the house, cottage or garage has been built. If you wish to build the same house, cottage or garage more than once, you need to obtain the licence to this effect. Please contact us for more details.
All plans from Drummond House Plans can only be modified by a licensed Drummond House Plan Canadian dealer. If any other business or individual with no affiliation to Drummond House Plans modifies a Drummond House Plan on your behalf, please ensure this business or individual has a licence to modify this specific plan or you will be subject to prosecution on the same level as the business or individual who modified or reproduced the plan.
For more details, do not hesitate to contact u by e-mail or by phone at 1-800-567-1413.
I agree to respect the conditions above to not reproduce, modify or build a model from Drummond House Plans without previously purchasing a complete house plan.















March 09
Richard Boikoff
Hi It would help me a lot if could put a price to each house So I can make a better choice and to fit my budget. what do you think. looking to build in Ontario Many Thanks Richard