There are no shipping fees if you buy one of our 2 plan packages "PDF file format" or "5 sets of blueprints + PDF". Shipping charges may apply if you buy additional sets of blueprints.
House plan Bainbridge (6816)
Traditional house plan, 3 bedrooms, master suite with private terrace, home office, sunken living room
Other useful information on this plan
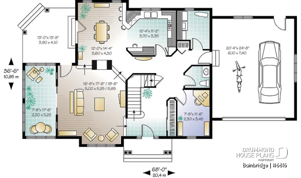
House plan with solarium, second floor balcony, den and a 2-car garage!
With its uncommonly elegant exterior, this house possesses many features worthy of mention. Whether it be the two-car garage which is in perfect harmony with the rest of the house, or that beautiful solarium on the opposite façade which many will take pleasure in decorating in exotic fashion, without forgetting two rear terraces, one of which is accessible to the master bedroom, this model proposes many excellent interior features as well.
As soon as we enter the foyer, we are pleasantly surprised by the vastness of this entrance which is open over two storeys. We appreciate a sunken living room with adjoining solarium of very interesting dimensions, and we are enthralled by a comfortable dining room which shares a see-thru fireplace with the living room and by a spacious well organized kitchen offering plenty of cabinet space. Not to be neglected, a good sized office space, independent half-bath, and a very useful laundry room really complete this level.
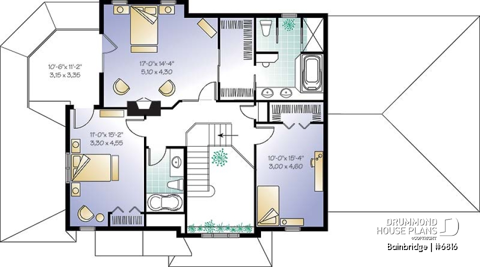
The second level offers two well dimensioned secondary bedrooms, one of which has access to the terrace, and a bathroom to be shared by both. We are more than happy with the amplitude of the master suite with, as already mentioned, an access to the terrace, a private fireplace, large walk-in type closet and private bathroom with a cabin toilet and good sized shower.
Distinctive elements
Rear balcony on 2nd floor.
Sunken family room with adjoining solarium. Home office. See-thru fireplace. Abundant windowing.
Access to rear balcony from master bedroom and from one of the secondary bedrooms.
Plan feature(s)
Mezzanine, 2-Story foyer, Sunken living room, Sunroom, Fireplace, Office / Study / Den, Deck, Balcony 2nd floor, Gound floor laundry room, Planning desk, Lunch counter, Cathedral ceiling, Separate bath and shower, Double sinks, Master suite upstairs, Walk-in master bed.
Plan architectural style(s)
. Traditional, . Country, . American, . English
Similar plans
Previously Viewed Plans
Questions and comments
February 11
Amanda
Hi,
What is the difference between Bainbridge and Bainbridge 2? I see that Bainbridge is 200 sqft more but the detailed plans are the same.
Thanks!
February 11
Customer service
Good day and thank you for taking the time to write
The only difference between the two is that Bainbridge, plan 6816, conforms to the IRC US building code and as such you will notice a square landing in the stairs and the extra square footage is to accomodate the change. Bainbridge 2, plan 3816, has wedge shaped steps instead of the landing.
If you intend to build outside of the U.S. you can choose either one according to your personal preference.
Please let me know if you have any other questions or comments
Regards
Deb
February 27
Bill H
I wold like to see a basement plan for this house. I would like to have 32" high windows in basement and was wondering with this house lifted out off the ground that much how it would change the look for curb appeal.
February 27
Customer service
Good day and thank you for your interest in our plans.
There is no actual floor plan for the basement of this house as it does not have divisions.
The full basement includes basic finishing with inslulated, gyproc walls and baseboard heating but there is no floor plan because there are no rooms.
You can finish the layout of the basement as you require.
As for the curb appeal with the house lifted out of the ground, since we do no actual construction we do not have any photos of the look.
Please let me know if I can be of further assistance.
Regards
Deborah
March 12
Ethan
Im interested in building this home, just wondering how much it would actually cost to build in Ontario Canada?
March 16
Customer service
Dear Sir,
Thank you for your interest in Drummond House Plans.
Since we are located in Quebec, we only have building costs for our province. Therefore, we cannot provide you with a cost to build for Ontario, since the prices may be different. We suggest you contact local builders, they might be able to provide you with an estimated cost.
Do not hesitate to contact us again if you need further information. We will gladly answer any questions you may have.
Best Regards,
Customer Service Department
Thank you for your comment! It must be approved before being put online, please allow a period of 24 hours.
Error with google reCaptcha! Try again
Here is a brief description of our different plan packages. Please select the plan package that suits your needs. You can change the package at the next step, if necessary.
PDF VERSION OF PLAN:
Complete digital version of plan (pdf format) sent by email (original plan format 18" x 24'' or 24" x 36'')
5 copies of plan + PDF:
Includes: 5 copies of plan, plan in PDF format (reduced size version), materials list.
Foundation type
Additional foundation types are available, a fee may apply. Please indicate your choice on the online order form, or to our customer service representative, when placing your house plan order.
If your desired foundation type is not available, please contact our customer service to receive your free plan modification quote.
Explanation of bonus space types
UNFINISHED BONUS ROOM
The bonus rooms are often planned above the garage and are accessible from the house. They are designed to be converted as an office, a laundry area, a bathroom, a library corner or even an additional bedroom for which homeowners must make sure to have a window that complies with current codes & standards.
STORAGE AREA
Often located above the garage, our storage areas are used only as storage and are usually accessible from the garage via a retractable staircase.
Do you like this plan but want it to be modified to suit your needs?
To add a garage, another bedroom, finish the basement or any other modification, click here and let us know about your desired changes and to get your free quote for the modification of your plan.
Conditions of use
Important copyright notice! Please take note of these copyright conditions before printing:
By printing this house plan, cottage or garage or the floorplan(s), you confirm being informed that every house plan on this website is the exclusive property of Drummond House
Plans and is protected by Canadian copyright law. You are aware that these prints cannot be used to build or even obtain a building permit. The graphic representations of these
models are offered by Drummond House Plans for the sole purpose of allowing you to notate modifications of a model and then take it to one of the Drummond House Plans Canadian dealers for
modification of the plan.
The purchase of a house plan, cottage or garage from Drummond House Plans is mandatory if you wish to build any of our models. The plan purchase allows you to build a single unit; you cannot resell or give your plan to anyone once the house, cottage or garage has been built. If you wish to build the same house, cottage or garage more than once, you need to obtain the licence to this effect. Please contact us for more details.
All plans from Drummond House Plans can only be modified by a licensed Drummond House Plan Canadian dealer. If any other business or individual with no affiliation to Drummond House Plans modifies a Drummond House Plan on your behalf, please ensure this business or individual has a licence to modify this specific plan or you will be subject to prosecution on the same level as the business or individual who modified or reproduced the plan.
For more details, do not hesitate to contact u by e-mail or by phone at 1-800-567-1413.
I agree to respect the conditions above to not reproduce, modify or build a model from Drummond House Plans without previously purchasing a complete house plan.












February 11
Amanda
Hi,
What is the difference between Bainbridge and Bainbridge 2? I see that Bainbridge is 200 sqft more but the detailed plans are the same.
Thanks!