There are no shipping fees if you buy one of our 2 plan packages "PDF file format" or "5 sets of blueprints + PDF". Shipping charges may apply if you buy additional sets of blueprints.
House plan Denver (3894)
Denver Plan: Nordic Home with 4–6 Bedrooms, Indoor Half Basketball Court & Oversized Double Garage
Other useful information on this plan
Denver Model: Mountain Style Home Plan with 4 to 6 Bedrooms, Indoor Half-Court Basketball Area and Oversized Double Garage!
This stunning Nordic-style home plan is designed to offer an exceptional living environment for large families or multigenerational households seeking generous, flexible, and perfectly organized spaces. From the moment you enter, the main level impresses with a functional vestibule providing access to both the front door and the garage, all located near an expansive walk-in closet—an invaluable asset for everyday life.
The heart of the home unfolds around an extraordinary kitchen: a central island that seats up to eight guests, a built-in dining nook for cozy meals, and an oversized pantry offering remarkable functionality. An elegant wine cellar creates a natural, refined transition between the kitchen and dining room.
The living room immediately stands out with its soaring 18-plus-foot ceiling, central fireplace, and integrated built-ins. Bright, warm, and inviting, it becomes the preferred gathering space for the whole family. Nearby, a mudroom and laundry room are ideally positioned off the garage entrance, along with a laundry chute from the upper floor that simplifies daily routines.
Upstairs, three generously sized secondary bedrooms, each with their own walk-in closet, offer outstanding comfort. A well-appointed family bathroom with a separate toilet room efficiently meets the needs of a large household. The master suite is a true haven: a private bathroom, expansive walk-in closet, and intimate reading nook make it a luxurious retreat.
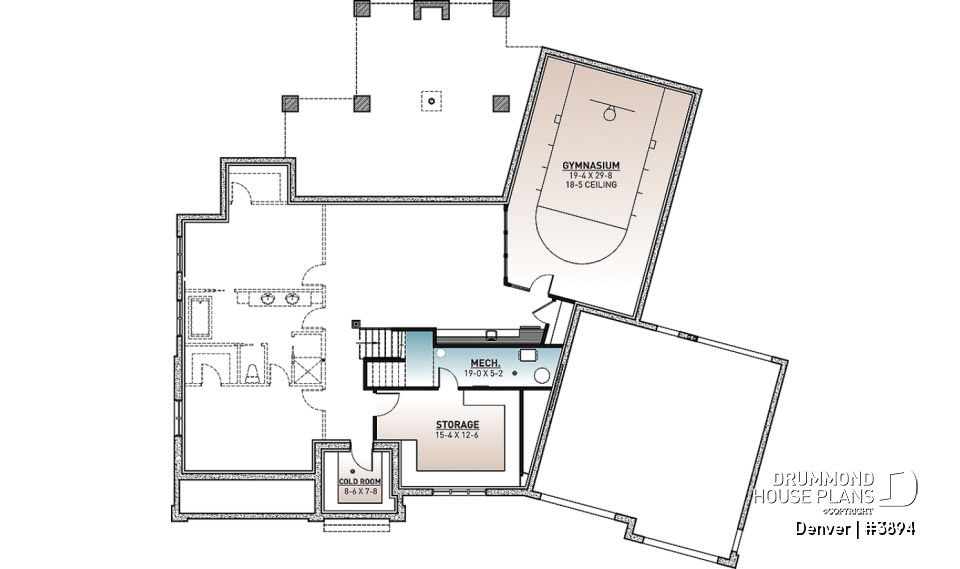
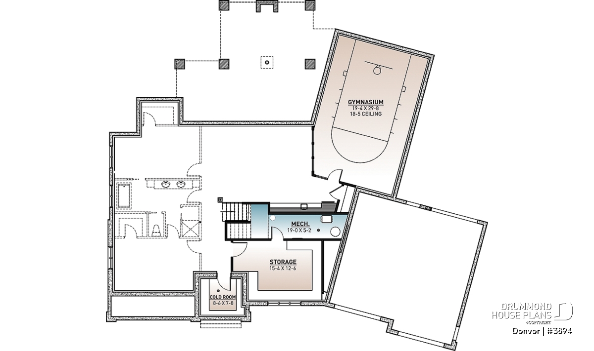
On the *unfinished basement level (standard), an indoor half-court basketball area with ceilings over 18 feet will delight sports enthusiasts (installation not included in the construction estimate).
---
*Optional Finished Basement:
An alternate layout allows for two additional bedrooms, a shared Jack-and-Jill bathroom, and an extra family room (or flex room).
---
Outdoors, an impressive covered rear terrace features a cathedral ceiling, exterior fireplace, and integrated outdoor kitchen—beautifully extending the living space. Finally, the oversized double garage provides abundant storage and daily convenience.
A complete, inspiring, and forward-thinking home plan designed to evolve with your family and enrich your modern lifestyle.
Distinctive elements
Mountain-style home plan with versatile layout, ideal for a large, blended or multi-generational family.
Main entrance and garage access grouped near a spacious walk-in closet.
Four bedrooms on the upper level, with the option to add two more in the basement.
Welcoming kitchen with an island for eight guests, built-in banquette, and oversized pantry.
Elegant wine cellar creating a smooth transition between the kitchen and dining room.
Generous living room with a soaring 18-ft ceiling, central fireplace, and integrated built-ins.
Practical mudroom and laundry area located near the garage entry.
Laundry chute from the upper level connected directly to the laundry room.
Three secondary bedrooms upstairs, each with walk-in closets.
Family shower room featuring a separate shower and private toilet compartment.
Remarkable primary suite with private bathroom, large walk-in closet, and cozy reading nook.
*Unfinished basement ready to customize according to your needs.
Indoor half basketball court with over 18 ft of ceiling height.
Covered rear terrace with cathedral ceiling, outdoor fireplace, and integrated outdoor kitchen.
Oversized double garage providing additional storage.
Optional pool house plan available upon request.
---
*Optional finished basement:
possibility of adding two additional bedrooms, a shared Jack-and-Jill bathroom, and an extra family room.
---
*If you wish to purchase the finished basement plan, as presented on this plan page, please select this option in the shopping cart, in the "Selection of foundation type" section. If you do not select this option, you will receive the unfinished full basement option, at no extra charge.
Plan feature(s)
Open floor layout, Sitting area, Gound floor laundry room, Office / Study / Den, Wine cellar, Split bedrooms, Laundry chute, Outdoor kitchen, Breakfast nook, Living bonus space, Panoramic view, Fireplace, Pantry, Island, Library, Mezzanine, Ceiling over 8', Plafond avec fausses poutres, Master suite upstairs, Walk-in master bed., Mud room, Deck, Butler's pantry, Separate bath and shower, Double sinks, Game room
Plan architectural style(s)
. Craftsman / Northwest, . Mountain, . American, . Traditional, . Transitional, . Vacation and waterfront, . Country
Similar plans
Previously Viewed Plans
Thank you for your comment! It must be approved before being put online, please allow a period of 24 hours.
Error with google reCaptcha! Try again
Here is a brief description of our different plan packages. Please select the plan package that suits your needs. You can change the package at the next step, if necessary.
PDF VERSION OF PLAN:
Complete digital version of plan (pdf format) sent by email (original plan format 18" x 24'' or 24" x 36'')
5 copies of plan + PDF:
Includes: 5 copies of plan, plan in PDF format (reduced size version), materials list.
Foundation type
Additional foundation types are available, a fee may apply. Please indicate your choice on the online order form, or to our customer service representative, when placing your house plan order.
If your desired foundation type is not available, please contact our customer service to receive your free plan modification quote.
Explanation of bonus space types
UNFINISHED BONUS ROOM
The bonus rooms are often planned above the garage and are accessible from the house. They are designed to be converted as an office, a laundry area, a bathroom, a library corner or even an additional bedroom for which homeowners must make sure to have a window that complies with current codes & standards.
STORAGE AREA
Often located above the garage, our storage areas are used only as storage and are usually accessible from the garage via a retractable staircase.
Do you like this plan but want it to be modified to suit your needs?
To add a garage, another bedroom, finish the basement or any other modification, click here and let us know about your desired changes and to get your free quote for the modification of your plan.
Conditions of use
Important copyright notice! Please take note of these copyright conditions before printing:
By printing this house plan, cottage or garage or the floorplan(s), you confirm being informed that every house plan on this website is the exclusive property of Drummond House
Plans and is protected by Canadian copyright law. You are aware that these prints cannot be used to build or even obtain a building permit. The graphic representations of these
models are offered by Drummond House Plans for the sole purpose of allowing you to notate modifications of a model and then take it to one of the Drummond House Plans Canadian dealers for
modification of the plan.
The purchase of a house plan, cottage or garage from Drummond House Plans is mandatory if you wish to build any of our models. The plan purchase allows you to build a single unit; you cannot resell or give your plan to anyone once the house, cottage or garage has been built. If you wish to build the same house, cottage or garage more than once, you need to obtain the licence to this effect. Please contact us for more details.
All plans from Drummond House Plans can only be modified by a licensed Drummond House Plan Canadian dealer. If any other business or individual with no affiliation to Drummond House Plans modifies a Drummond House Plan on your behalf, please ensure this business or individual has a licence to modify this specific plan or you will be subject to prosecution on the same level as the business or individual who modified or reproduced the plan.
For more details, do not hesitate to contact u by e-mail or by phone at 1-800-567-1413.
I agree to respect the conditions above to not reproduce, modify or build a model from Drummond House Plans without previously purchasing a complete house plan.
















