There are no shipping fees if you buy one of our 2 plan packages "PDF file format" or "5 sets of blueprints + PDF". Shipping charges may apply if you buy additional sets of blueprints.
House plan Riverview (3892)
Bright 5 bedroom family home, spacious 2 car-garage, open floor plan
Other useful information on this plan
Floor plans with 5 to 6 bedrooms, spacious 2-car garage and screened-in porch!
The Riverview house plan (#3892) perfectly captures the timeless charm of modern Farmhouse architecture while offering the thoughtful, functional features today’s families are looking for. Warm, spacious, and filled with natural light, this home is designed to deliver lasting comfort and an exceptional quality of life—both for everyday living and for special gatherings.
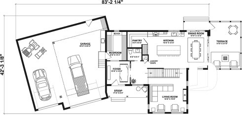
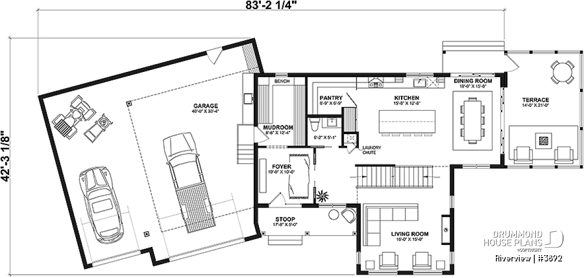
From the moment you arrive, the covered front porch adds welcoming curb appeal while providing protection in all seasons. Inside, 9-foot ceilings throughout the main floor create a bright and open atmosphere, while the living room stands out with its impressive 18’6” cathedral ceiling, allowing natural light to pour in. A cozy fireplace anchors the space, making it the perfect setting for relaxing evenings and memorable moments with family and friends.
The inviting kitchen, open to the dining area, is the heart of the home. It features a large central island, a walk-in pantry, and an efficient layout designed for both everyday meals and entertaining. Just off the dining room, a spacious screened-in porch of approximately 300 square feet extends the living space outdoors, creating an ideal spot for summer meals, gatherings, or quiet moments surrounded by fresh air.
Functionality is a key element of the main floor design. A generous front entry provides space for a bench and decorative accents, while a powder room discreetly positioned away from the main living areas ensures added privacy. The garage entry opens directly into the mudroom, simplifying daily routines, and the spacious garage offers room for additional storage or a workshop area.
Riverview (#3892) – A Modern Farmhouse Home Designed for Comfortable Family Living
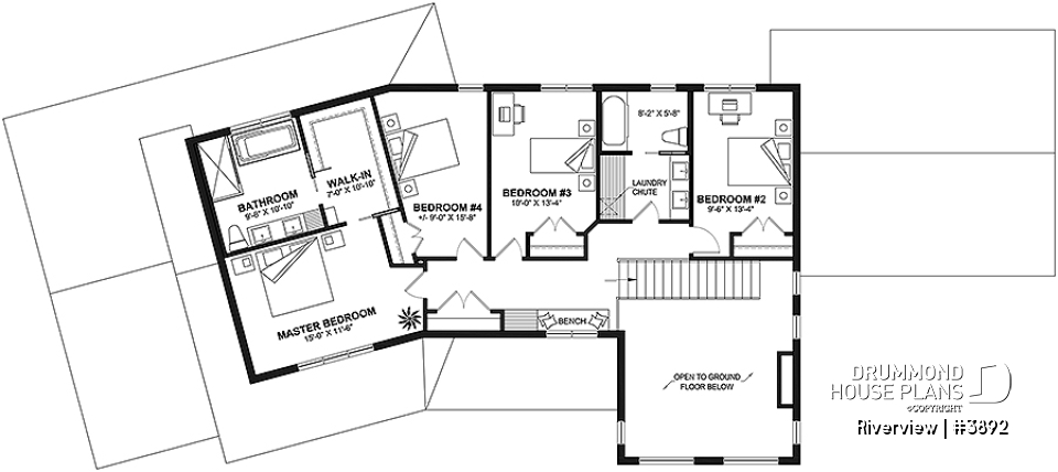
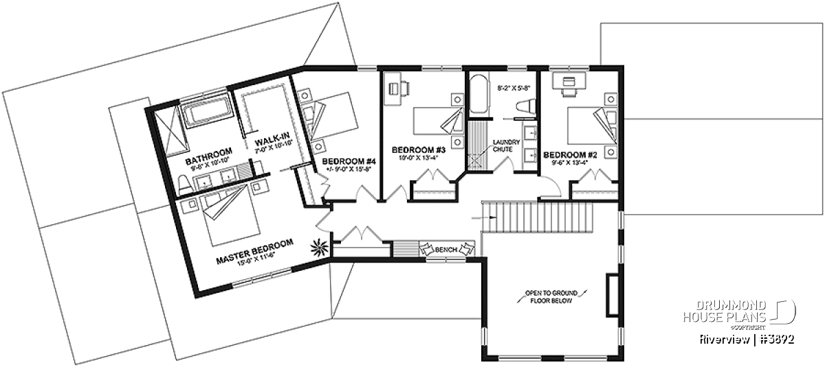
Upstairs, the primary suite serves as a private retreat, complete with a large walk-in closet (7’ x 10’10”) and a private ensuite bathroom. Three additional bedrooms, all well proportioned, share a family bathroom with double vanities, while the bathtub and toilet are located in a separate area for enhanced convenience.
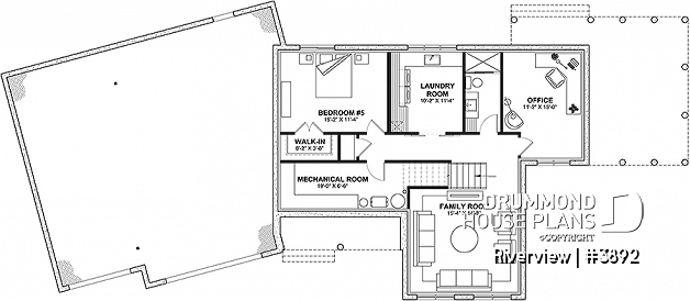
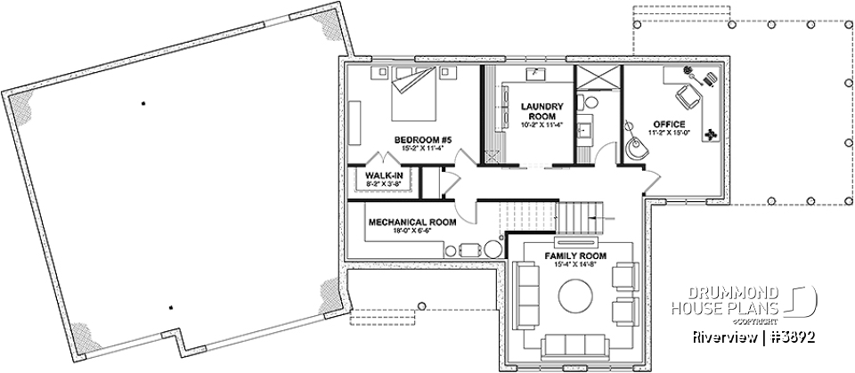
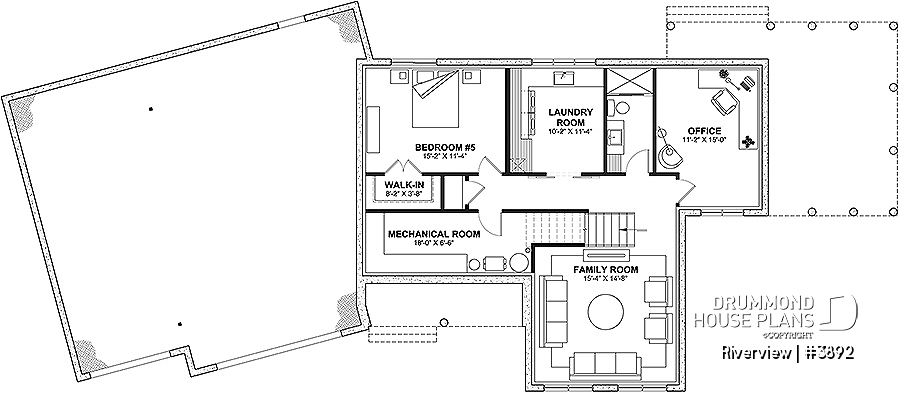
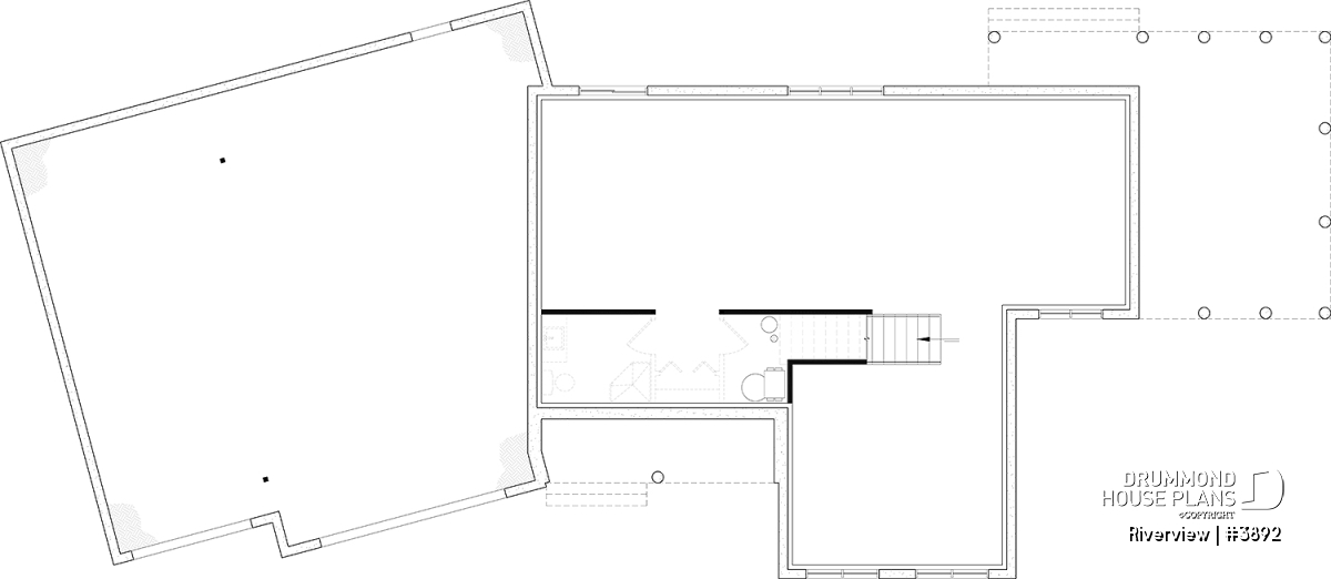
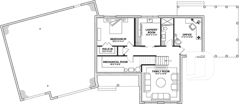
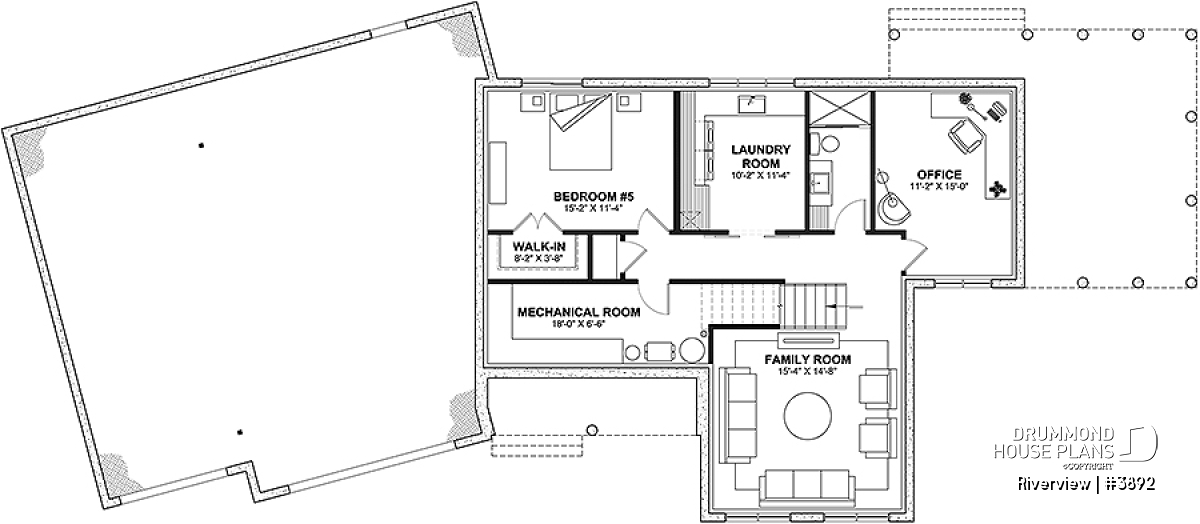
The unfinished basement, included in the base plan, provides outstanding flexibility for future expansion. With the *optional finished basement, homeowners can add an additional bedroom, a large family room, a shower room, a versatile home office or sixth bedroom, as well as a spacious laundry room and mechanical room with ample storage.
Versatile, welcoming, and designed to grow with your needs, the Riverview (#3892) is a modern Farmhouse home that blends comfort, style, and adaptability—today and for years to come.
Distinctive elements
Comfortable modern Farmhouse-style home plan, blending timeless charm with contemporary living.
9’ ceilings throughout the main floor, with the exception of the living room, which features an impressive 18’6” cathedral ceiling.
Up to 5 bedrooms: 4 bedrooms on the upper floor and 1 bedroom in the basement.
***Option for a 6th bedroom by converting the basement office, if the optional finished basement is selected.
Covered front balcony, adding character and protection to the main entrance.
Garage entry conveniently located next to the mudroom, ensuring smooth daily organization.
Spacious front entry, offering enough room for a bench and decorative area rug.
Powder room discreetly positioned, away from main living areas for added privacy.
Inviting kitchen with a walk-in pantry and large central island, open to the dining area.
Bright and impressive living room, featuring an 18’6” ceiling, abundant natural light, and a cozy fireplace.
Generous primary suite with a large walk-in closet (7’ x 10’10”) and a private ensuite bathroom.
Three secondary bedrooms upstairs, sharing a family bathroom with double vanities, and a separate tub and toilet area.
Spacious garage, allowing room for a workshop area and additional storage.
Large screened-in porch of approximately 300 sq. ft., accessible from the dining area near the kitchen—ideal for summer living.
Unfinished basement included in the base plan, offering excellent future development potential.
---
*Optional finished basement:
Additional bedroom.
Shower ro
Large family room.
Versatile home office (or bedroom #6).
Spacious laundry room and mechanical room with storage space.
---
*If you wish to purchase the finished basement plan, as presented on this plan page, please select this option in the shopping cart, in the "Selection of foundation type" section. If you do not select this option, you will receive the unfinished full basement option, at no extra charge.
Plan feature(s)
Ceiling over 8', Mud room, Pantry, Master suite upstairs, Walk-in master bed., Double sinks, Separate bath and shower, Bench seat(s), Fireplace, Deck, Laundry chute, Sliding barn door(s), Shelves, Island, Built-ins, Oversized garage, Screened porch, Office / Study / Den
Plan architectural style(s)
Modern farmhouse, . American, . Traditional, . Country, . Modern rustic, . Vacation and waterfront, . Farmhouse
Similar plans
Previously Viewed Plans
Thank you for your comment! It must be approved before being put online, please allow a period of 24 hours.
Error with google reCaptcha! Try again
Here is a brief description of our different plan packages. Please select the plan package that suits your needs. You can change the package at the next step, if necessary.
PDF VERSION OF PLAN:
Complete digital version of plan (pdf format) sent by email (original plan format 18" x 24'' or 24" x 36'')
5 copies of plan + PDF:
Includes: 5 copies of plan, plan in PDF format (reduced size version), materials list.
Foundation type
Additional foundation types are available, a fee may apply. Please indicate your choice on the online order form, or to our customer service representative, when placing your house plan order.
If your desired foundation type is not available, please contact our customer service to receive your free plan modification quote.
Explanation of bonus space types
UNFINISHED BONUS ROOM
The bonus rooms are often planned above the garage and are accessible from the house. They are designed to be converted as an office, a laundry area, a bathroom, a library corner or even an additional bedroom for which homeowners must make sure to have a window that complies with current codes & standards.
STORAGE AREA
Often located above the garage, our storage areas are used only as storage and are usually accessible from the garage via a retractable staircase.
Do you like this plan but want it to be modified to suit your needs?
To add a garage, another bedroom, finish the basement or any other modification, click here and let us know about your desired changes and to get your free quote for the modification of your plan.
Conditions of use
Important copyright notice! Please take note of these copyright conditions before printing:
By printing this house plan, cottage or garage or the floorplan(s), you confirm being informed that every house plan on this website is the exclusive property of Drummond House
Plans and is protected by Canadian copyright law. You are aware that these prints cannot be used to build or even obtain a building permit. The graphic representations of these
models are offered by Drummond House Plans for the sole purpose of allowing you to notate modifications of a model and then take it to one of the Drummond House Plans Canadian dealers for
modification of the plan.
The purchase of a house plan, cottage or garage from Drummond House Plans is mandatory if you wish to build any of our models. The plan purchase allows you to build a single unit; you cannot resell or give your plan to anyone once the house, cottage or garage has been built. If you wish to build the same house, cottage or garage more than once, you need to obtain the licence to this effect. Please contact us for more details.
All plans from Drummond House Plans can only be modified by a licensed Drummond House Plan Canadian dealer. If any other business or individual with no affiliation to Drummond House Plans modifies a Drummond House Plan on your behalf, please ensure this business or individual has a licence to modify this specific plan or you will be subject to prosecution on the same level as the business or individual who modified or reproduced the plan.
For more details, do not hesitate to contact u by e-mail or by phone at 1-800-567-1413.
I agree to respect the conditions above to not reproduce, modify or build a model from Drummond House Plans without previously purchasing a complete house plan.
























