There are no shipping fees if you buy one of our 2 plan packages "PDF file format" or "5 sets of blueprints + PDF". Shipping charges may apply if you buy additional sets of blueprints.
House plan Larch Lake (2937)
Compact Farmhouse Design with Garage, 3 to 4 Bedrooms, Optional finished basement, Panoramic Views
Virtual visit
Other useful information on this plan
Larch Lake (#2937): Farmhouse Home with Wraparound Porch, Garage, and Open Floor Plan
The Larch Lake (plan #2937) beautifully captures the essence of the modern farmhouse, combining timeless charm with smart, family-friendly design. Offering outstanding value, this home immediately stands out with its stunning wraparound porch on three sides, creating the perfect setting for outdoor conversations, relaxation, and everyday enjoyment.
The welcoming front entry includes a convenient built-in coat closet, ensuring a well-organized arrival space. Tucked away from the main living areas, the powder room features a combined washer and dryer, a thoughtful detail that enhances daily convenience without compromising privacy.
At the rear of the home, the kitchen serves as the heart of the living space. Designed with a large central island, it enjoys beautiful panoramic views and flows seamlessly into the dining area and family room. This open-concept layout encourages connection, natural light, and effortless movement throughout the main level. The great room is further enhanced by a cathedral ceiling, adding volume, character, and an inviting sense of openness.
Upstairs, three well-proportioned bedrooms provide comfort and privacy for the entire family. The primary bedroom includes a generous walk-in closet, while the main bathroom features a separate tub and shower along with double vanities, ideal for busy mornings.
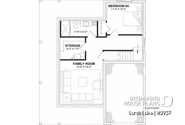
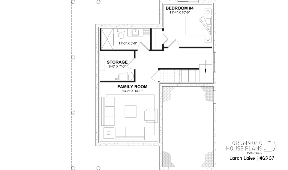
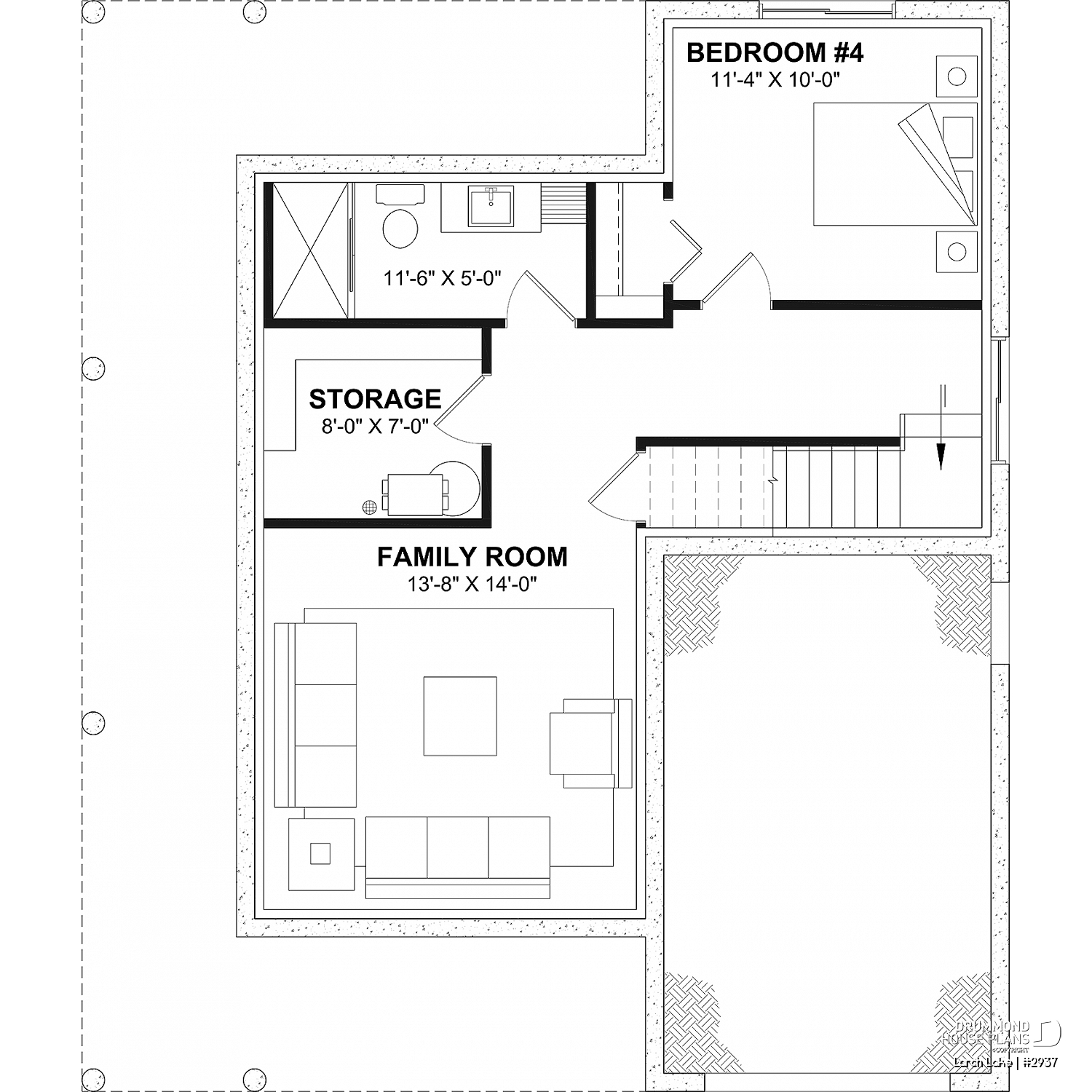
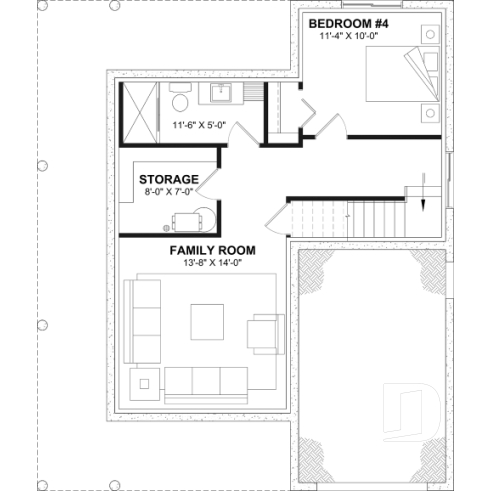
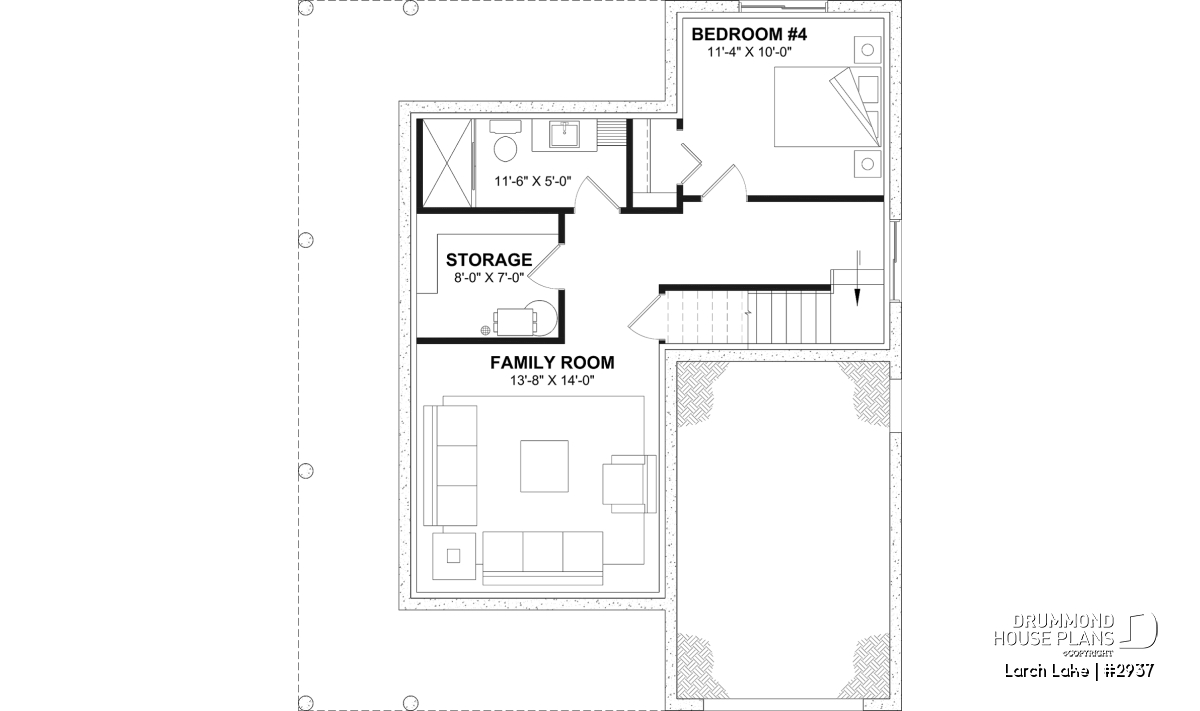
A single-car garage with direct access near the kitchen makes everyday tasks, such as unloading groceries, especially convenient. The unfinished basement is included in the base plan and offers excellent potential for future customization. *As an option, it can be finished to include a fourth bedroom, a spacious family room, a full bathroom, and ample storage.
Thoughtfully designed and highly adaptable, the Larch Lake (#2937) is a warm, inviting farmhouse plan that meets today’s needs while offering flexibility for tomorrow.
Distinctive elements
Farmhouse-style home offering exceptional value, complete with an attached garage and a beautiful wraparound porch on three sides.
The expansive porch creates the perfect setting to extend conversations and enjoy outdoor living.
Inviting front entry with a convenient built-in coat closet.
Well-positioned powder room with washer and dryer, thoughtfully tucked away from the main living areas.
Bright, welcoming kitchen featuring a large central island and stunning panoramic views at the rear of the home.
Open-concept living area seamlessly connecting the kitchen, dining space, and great room.
Great room highlighted by a cathedral ceiling that enhances the sense of space and openness.
Three comfortable bedrooms located on the upper level for added privacy.
Primary bedroom featuring a generous walk-in closet.
Main bathroom offering both a separate tub and shower along with double vanities, perfect for busy mornings.
Unfinished basement included as standard, providing excellent future finishing potential.
Garage with direct access near the kitchen, making grocery unloading easy and convenient.
---
*Optional finished basement adding a versatile additional bedroom
Additional full bathroom for increased comfort and functionality
Spacious family room ideal for entertainment, relaxation, or gatherings
Ample storage areas to keep the home organized and clutter-free.
---
*If you wish to purchase the finished basement plan, as presented on this plan page, please select this option in the shopping cart, in the "Selection of foundation type" section. If you do not select this option, you will receive the unfinished full basement option, at no extra charge.
Plan feature(s)
Walk-in master bed., Gound floor laundry room, Cathedral ceiling, Warparound, Panoramic view, Separate bath and shower, Island, Narrow lot, Open floor layout, Double sinks
Plan architectural style(s)
Modern farmhouse, . Farmhouse, . Traditional, . Vacation and waterfront, . American, . Country
Similar plans
Previously Viewed Plans
Questions and comments
February 06
Linda Elving
? can this plan be built on a floating slab?
February 07
Service à la clientele
Good day Ms. Elving and thank you for taking the time to write.
This plan could be built on a floating slab.
The optional foundation is a additional $245. and will take seven business days or less to complete.
Please let me know if you have any other questions or comments
Regards
Deborah
Thank you for your comment! It must be approved before being put online, please allow a period of 24 hours.
Error with google reCaptcha! Try again
Here is a brief description of our different plan packages. Please select the plan package that suits your needs. You can change the package at the next step, if necessary.
PDF VERSION OF PLAN:
Complete digital version of plan (pdf format) sent by email (original plan format 18" x 24'' or 24" x 36'')
5 copies of plan + PDF:
Includes: 5 copies of plan, plan in PDF format (reduced size version), materials list.
Foundation type
Additional foundation types are available, a fee may apply. Please indicate your choice on the online order form, or to our customer service representative, when placing your house plan order.
If your desired foundation type is not available, please contact our customer service to receive your free plan modification quote.
Explanation of bonus space types
UNFINISHED BONUS ROOM
The bonus rooms are often planned above the garage and are accessible from the house. They are designed to be converted as an office, a laundry area, a bathroom, a library corner or even an additional bedroom for which homeowners must make sure to have a window that complies with current codes & standards.
STORAGE AREA
Often located above the garage, our storage areas are used only as storage and are usually accessible from the garage via a retractable staircase.
Do you like this plan but want it to be modified to suit your needs?
To add a garage, another bedroom, finish the basement or any other modification, click here and let us know about your desired changes and to get your free quote for the modification of your plan.
Conditions of use
Important copyright notice! Please take note of these copyright conditions before printing:
By printing this house plan, cottage or garage or the floorplan(s), you confirm being informed that every house plan on this website is the exclusive property of Drummond House
Plans and is protected by Canadian copyright law. You are aware that these prints cannot be used to build or even obtain a building permit. The graphic representations of these
models are offered by Drummond House Plans for the sole purpose of allowing you to notate modifications of a model and then take it to one of the Drummond House Plans Canadian dealers for
modification of the plan.
The purchase of a house plan, cottage or garage from Drummond House Plans is mandatory if you wish to build any of our models. The plan purchase allows you to build a single unit; you cannot resell or give your plan to anyone once the house, cottage or garage has been built. If you wish to build the same house, cottage or garage more than once, you need to obtain the licence to this effect. Please contact us for more details.
All plans from Drummond House Plans can only be modified by a licensed Drummond House Plan Canadian dealer. If any other business or individual with no affiliation to Drummond House Plans modifies a Drummond House Plan on your behalf, please ensure this business or individual has a licence to modify this specific plan or you will be subject to prosecution on the same level as the business or individual who modified or reproduced the plan.
For more details, do not hesitate to contact u by e-mail or by phone at 1-800-567-1413.
I agree to respect the conditions above to not reproduce, modify or build a model from Drummond House Plans without previously purchasing a complete house plan.












February 06
Linda Elving
? can this plan be built on a floating slab?