There are no shipping fees if you buy one of our 2 plan packages "PDF file format" or "5 sets of blueprints + PDF". Shipping charges may apply if you buy additional sets of blueprints.
House plan Pinot (6121)
Scandinavian Style Open-Concept House Plan with Garage, 1 to 4 Bedrooms, and Optional Basement!
Other useful information on this plan
Scandinavian Style Open-Concept House Plan with Garage, 1 to 4 Bedrooms, and Optional Basement!
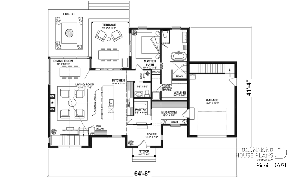
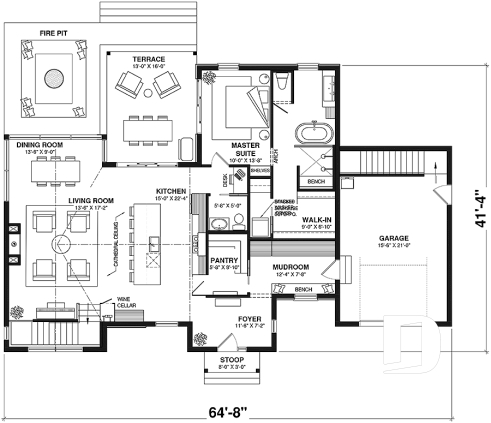
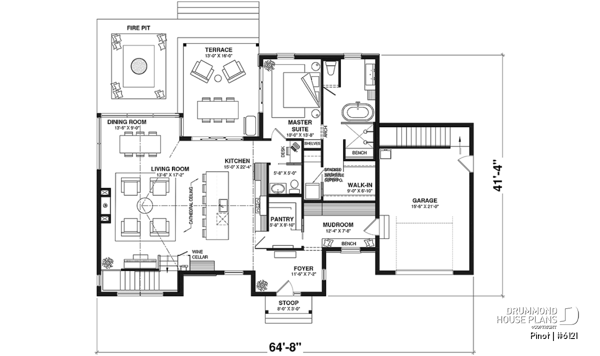
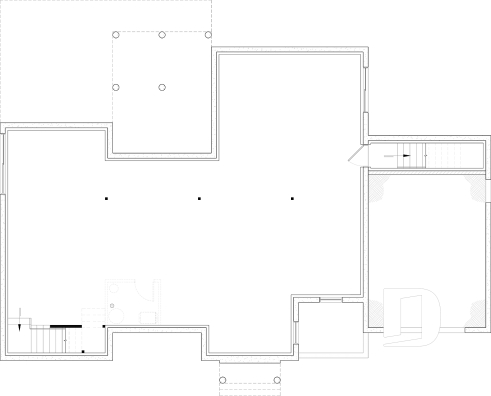
This Scandinavian-inspired house plan stands out with its clean lines, modern elegance, and thoughtful functionality. Featuring an attached garage and an interior layout designed to maximize natural light, this home is perfect for families seeking both style and everyday practicality.
From the entryway, the mudroom accessible from both the garage and the front door makes daily life easier and keeps the home organized. At the heart of the design, the kitchen impresses with its oversized island, stylish glass wine cellar, and walk-in pantry conveniently located near the garage for effortless grocery drop-off. A cozy built-in desk area has also been planned nearby, ideal for remote work or homework.
The living room features a cathedral ceiling and a warm fireplace, opening directly to the dining area filled with natural light from large rear-facing windows. This open-concept living space embodies Scandinavian architecture, where light and well-being take center stage.
The primary suite is a true retreat, offering a private bathroom and a spacious walk-in closet with stacked washer-dryer space. A convenient powder room, set slightly apart from the main living areas, adds even more comfort.
Outdoors, a covered rear terrace accessible from both the master bedroom and the kitchen invites you to enjoy the seasons, rain or shine.
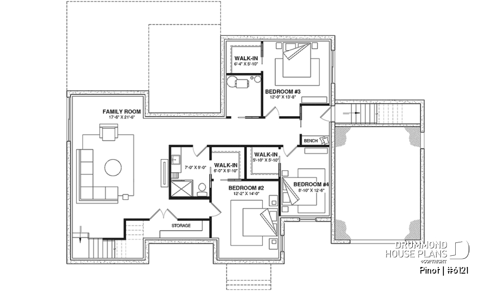
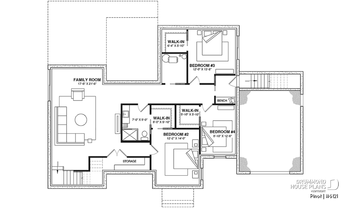
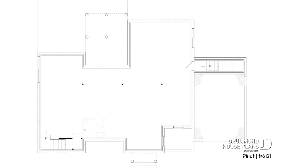
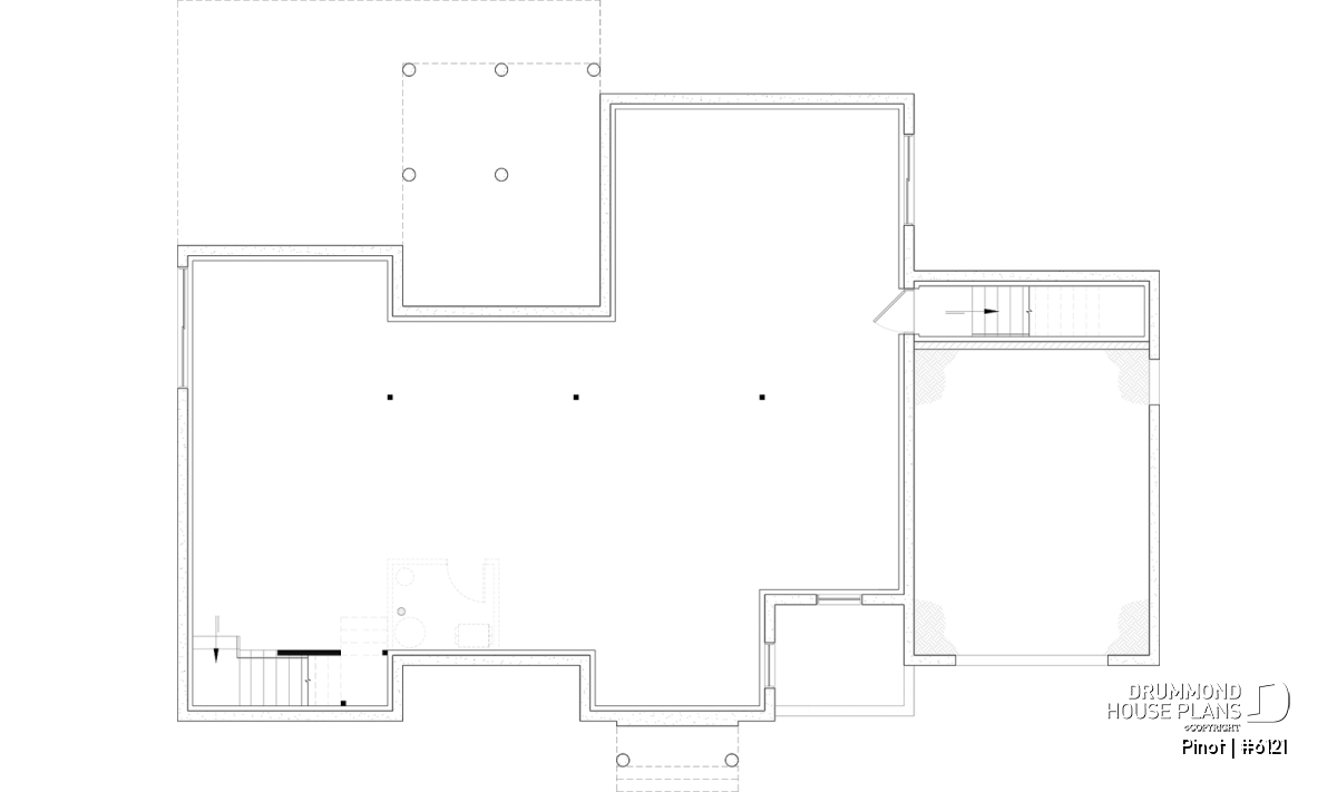
The standard basement comes unfinished, giving you total flexibility to adapt the home to your future needs.
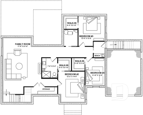
*Optional Finished Basement ($):
For those needing extra space, the optional finished basement layout adds three more bedrooms with walk-in closets, a modern bathroom with shower, a large storage area, and a spacious family room—perfect for movie nights or a kids’ playroom.
Combining Scandinavian style, bright open-concept design, and versatile floor plan options, this 3-bedroom home with garage is an excellent choice for modern families looking for comfort, functionality, and timeless elegance.
---
*If you wish to purchase the finished basement plan, as presented on this plan page, please select this option in the shopping cart, in the "Selection of foundation type" section. If you do not select this option, you will receive the unfinished full basement option, at no extra charge.
Distinctive elements
Scandinavian-inspired house with garage
Open-concept floor plan allowing abundant natural light
Mudroom accessible from both the main entrance and the garage
Walk-in pantry conveniently located near the garage
Kitchen with spacious pantry, large central island, and glass wine cellar
Small built-in desk located near the kitchen
Living room with cathedral ceiling, fireplace, and open connection to the dining area
Bright dining room with large windows overlooking the backyard
Master suite with private bathroom and walk-in closet including stacked washer-dryer space
Convenient powder room tucked away from the main living areas
Basement access from the garage
Covered rear terrace accessible from both the master bedroom and the kitchen
Standard basement delivered unfinished, ready to be customized to your needs
---
*Optional Finished Basement ($):
Three additional bedrooms, each with walk-in closet
Modern bathroom with shower
Large storage space
Additional family room in the basement
---
*If you wish to purchase the finished basement plan, as presented on this plan page, please select this option in the shopping cart, in the "Selection of foundation type" section. If you do not select this option, you will receive the unfinished full basement option, at no extra charge.
Plan feature(s)
Panoramic view, Mud room, Basement access from garage, Open floor layout, Split bedrooms, Pantry, Island, Fireplace, Cathedral ceiling, Master suite on main, Deck, Bench seat(s), Gound floor laundry room, Wine cellar, Ceiling over 8', Planning desk, Shelves, Separate bath and shower, Arch
Plan architectural style(s)
. Scandinavian, . Contemporary, . Modern / Design, Trending, . Transitional, . Ranch, . Modern rustic
Similar plans
Previously Viewed Plans
Thank you for your comment! It must be approved before being put online, please allow a period of 24 hours.
Error with google reCaptcha! Try again
Here is a brief description of our different plan packages. Please select the plan package that suits your needs. You can change the package at the next step, if necessary.
PDF VERSION OF PLAN:
Complete digital version of plan (pdf format) sent by email (original plan format 18" x 24'' or 24" x 36'')
5 copies of plan + PDF:
Includes: 5 copies of plan, plan in PDF format (reduced size version), materials list.
Foundation type
Additional foundation types are available, a fee may apply. Please indicate your choice on the online order form, or to our customer service representative, when placing your house plan order.
If your desired foundation type is not available, please contact our customer service to receive your free plan modification quote.
Explanation of bonus space types
UNFINISHED BONUS ROOM
The bonus rooms are often planned above the garage and are accessible from the house. They are designed to be converted as an office, a laundry area, a bathroom, a library corner or even an additional bedroom for which homeowners must make sure to have a window that complies with current codes & standards.
STORAGE AREA
Often located above the garage, our storage areas are used only as storage and are usually accessible from the garage via a retractable staircase.
Do you like this plan but want it to be modified to suit your needs?
To add a garage, another bedroom, finish the basement or any other modification, click here and let us know about your desired changes and to get your free quote for the modification of your plan.
Conditions of use
Important copyright notice! Please take note of these copyright conditions before printing:
By printing this house plan, cottage or garage or the floorplan(s), you confirm being informed that every house plan on this website is the exclusive property of Drummond House
Plans and is protected by Canadian copyright law. You are aware that these prints cannot be used to build or even obtain a building permit. The graphic representations of these
models are offered by Drummond House Plans for the sole purpose of allowing you to notate modifications of a model and then take it to one of the Drummond House Plans Canadian dealers for
modification of the plan.
The purchase of a house plan, cottage or garage from Drummond House Plans is mandatory if you wish to build any of our models. The plan purchase allows you to build a single unit; you cannot resell or give your plan to anyone once the house, cottage or garage has been built. If you wish to build the same house, cottage or garage more than once, you need to obtain the licence to this effect. Please contact us for more details.
All plans from Drummond House Plans can only be modified by a licensed Drummond House Plan Canadian dealer. If any other business or individual with no affiliation to Drummond House Plans modifies a Drummond House Plan on your behalf, please ensure this business or individual has a licence to modify this specific plan or you will be subject to prosecution on the same level as the business or individual who modified or reproduced the plan.
For more details, do not hesitate to contact u by e-mail or by phone at 1-800-567-1413.
I agree to respect the conditions above to not reproduce, modify or build a model from Drummond House Plans without previously purchasing a complete house plan.
































