There are no shipping fees if you buy one of our 2 plan packages "PDF file format" or "5 sets of blueprints + PDF". Shipping charges may apply if you buy additional sets of blueprints.
House plan Country Side 2 (3290-V1)
Farmhouse one-storey home, larger master suite, 2-car garage, open concept, back kitchen, mudroom
Other useful information on this plan
Bright and stunning living room!!
Modern Farmhouse style COUNTRY SIDE 2 (#3290-V1) is an enlarged and modified version of its original plan, Country Side (#3290) . In this new version, the area has been increased by just over 200 sq.ft. on the ground floor, the double garage has been relocated (and now has a side entrance) and the sheltered terrace at the back is a lot more spacious.
On entering, the space is vast and we can note the access on the right leading directly to the back kitchen. Convenient for storing groceries and other items, whether you come from the main entrance or the garage entrance. The latter is well thought out because it offers access to the basement and also to the house, in addition to having a 13’4” high ceiling, ideal for larger family vehicles.
All the floors in the house are 9' high except in the living room and the parents' bedroom. The latter has a 15' high cathedral ceiling and receives lots of beautiful natural light from the large front window, on the right. In addition, it offers two (2) walk-in closets, a large private full bathroom, with separate bath and shower, as well as two (2) sinks.
Opposite the house, on the left, are the two (2) additional bedrooms, which share a full bathroom with separate bath and shower. And still in this side of the house, we find the laundry room with window.
The focal point of the house is without a doubt the living room with 13'4'' cathedral ceiling, fireplace and 2 double French doors opening onto the large sheltered porch at the back. This terrace will be particularly appreciated because it is of a format (372 sq.ft.) allowing the development of an outdoor kitchen, dining room and living room.
The bright dining room is open to the kitchen. The latter has a large island that can accommodate at least 4 guests at a time, as well as a back kitchen strategically located near the main entrance and the garage.
Three words come to mind when looking at this house: style, elegance and comfort! What do you think?
Distinctive elements
Modern farmhouse, single storey style.
Double garage 13'4'' high, with direct access to the basement and also to the ground floor, via a large walk-in mudroom.
Parents' bedroom with 15' high cathedral ceiling, 2 walk-in closets and a large private bathroom.
2 additional bedrooms share a full bathroom.
Large laundry room.
Kitchen with back kitchen (large pantry) and island, and open to both the dining room and the living room.
Living room with 2 double French doors, 13'4'' high cathedral ceiling and fireplace.
Each of the room are receiving lots of natural light.
Large sheltered rear porch.
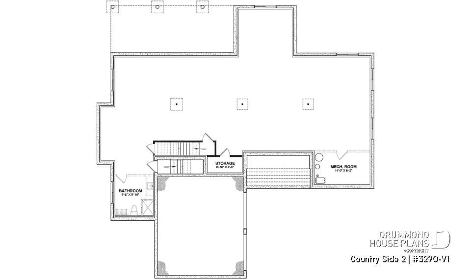
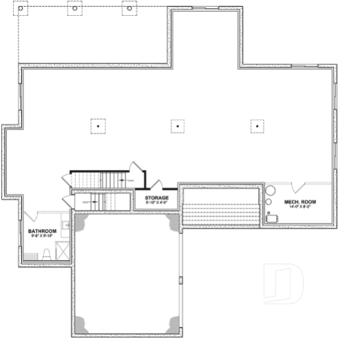
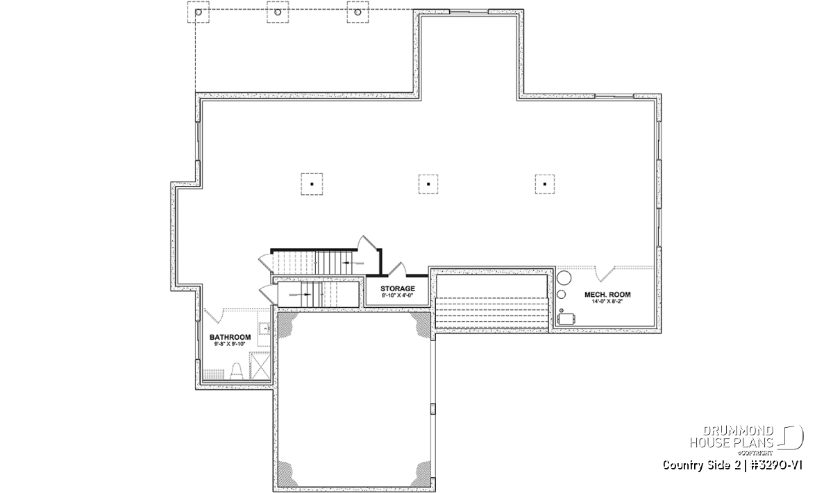
Unfinished basement, to be designed according to your needs. Other types of foundation available for all our plans.
Plan feature(s)
Coffee bar, Basement access from garage, Butler's pantry, Split bedrooms, Side entry garage, Cathedral ceiling, Master suite on main, Deck, Gound floor laundry room, Mud room, His/Hers walk-in, Separate bath and shower, Double sinks, Fireplace, Split bedrooms, Ceiling over 8'
Plan architectural style(s)
Modern farmhouse, . Ranch, . Farmhouse, . Transitional, . American, . Traditional, . Country, . Vacation and waterfront, . L-Shaped
Similar plans
Previously Viewed Plans
Thank you for your comment! It must be approved before being put online, please allow a period of 24 hours.
Error with google reCaptcha! Try again
Here is a brief description of our different plan packages. Please select the plan package that suits your needs. You can change the package at the next step, if necessary.
PDF VERSION OF PLAN:
Complete digital version of plan (pdf format) sent by email (original plan format 18" x 24'' or 24" x 36'')
5 copies of plan + PDF:
Includes: 5 copies of plan, plan in PDF format (reduced size version), materials list.
Foundation type
Additional foundation types are available, a fee may apply. Please indicate your choice on the online order form, or to our customer service representative, when placing your house plan order.
If your desired foundation type is not available, please contact our customer service to receive your free plan modification quote.
Explanation of bonus space types
UNFINISHED BONUS ROOM
The bonus rooms are often planned above the garage and are accessible from the house. They are designed to be converted as an office, a laundry area, a bathroom, a library corner or even an additional bedroom for which homeowners must make sure to have a window that complies with current codes & standards.
STORAGE AREA
Often located above the garage, our storage areas are used only as storage and are usually accessible from the garage via a retractable staircase.
Do you like this plan but want it to be modified to suit your needs?
To add a garage, another bedroom, finish the basement or any other modification, click here and let us know about your desired changes and to get your free quote for the modification of your plan.
Conditions of use
Important copyright notice! Please take note of these copyright conditions before printing:
By printing this house plan, cottage or garage or the floorplan(s), you confirm being informed that every house plan on this website is the exclusive property of Drummond House
Plans and is protected by Canadian copyright law. You are aware that these prints cannot be used to build or even obtain a building permit. The graphic representations of these
models are offered by Drummond House Plans for the sole purpose of allowing you to notate modifications of a model and then take it to one of the Drummond House Plans Canadian dealers for
modification of the plan.
The purchase of a house plan, cottage or garage from Drummond House Plans is mandatory if you wish to build any of our models. The plan purchase allows you to build a single unit; you cannot resell or give your plan to anyone once the house, cottage or garage has been built. If you wish to build the same house, cottage or garage more than once, you need to obtain the licence to this effect. Please contact us for more details.
All plans from Drummond House Plans can only be modified by a licensed Drummond House Plan Canadian dealer. If any other business or individual with no affiliation to Drummond House Plans modifies a Drummond House Plan on your behalf, please ensure this business or individual has a licence to modify this specific plan or you will be subject to prosecution on the same level as the business or individual who modified or reproduced the plan.
For more details, do not hesitate to contact u by e-mail or by phone at 1-800-567-1413.
I agree to respect the conditions above to not reproduce, modify or build a model from Drummond House Plans without previously purchasing a complete house plan.

























