There are no shipping fees if you buy one of our 2 plan packages "PDF file format" or "5 sets of blueprints + PDF". Shipping charges may apply if you buy additional sets of blueprints.
House plan Pinewood (3638)
Large one-story modern farmhouse, master suite + 2 bedrooms, den, cathedral ceiling, garage
Other useful information on this plan
Farmhouse offering superb cathedral ceiling and 3 bedrooms on the ground floor!
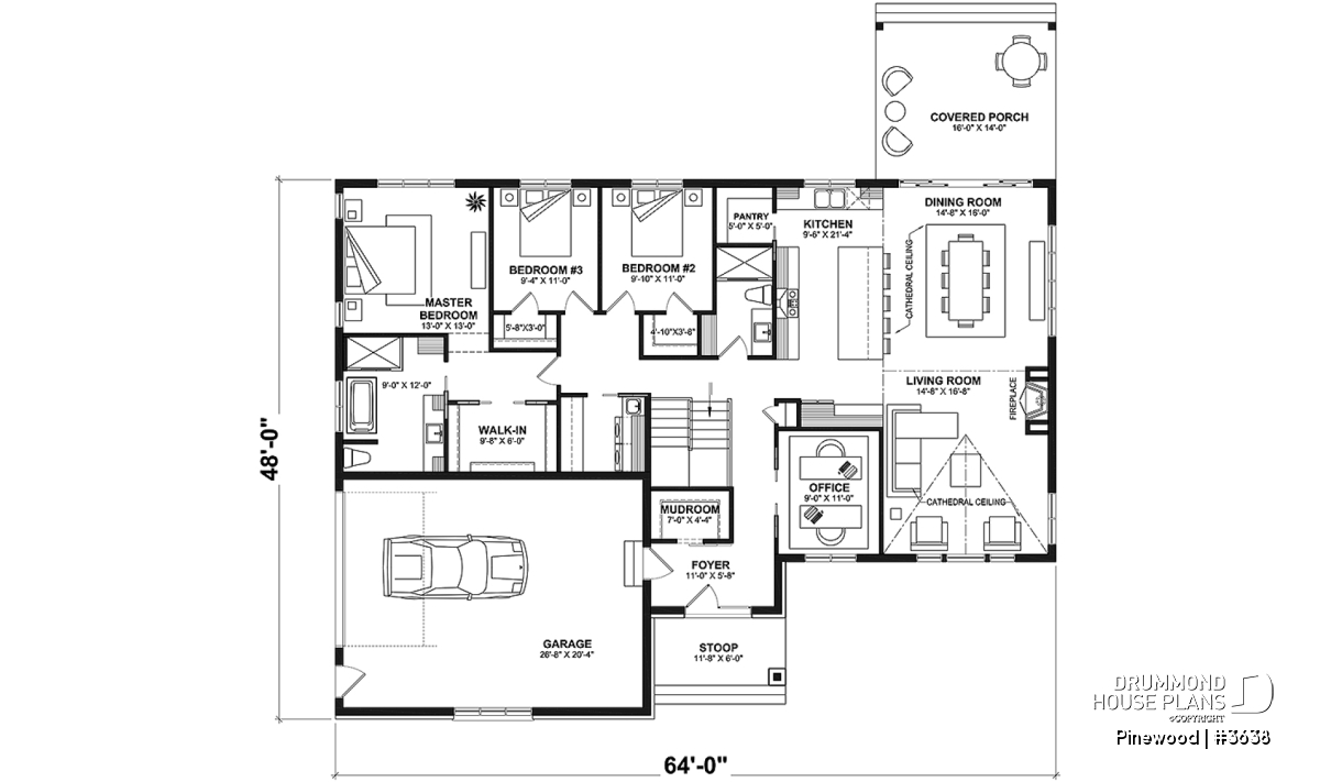
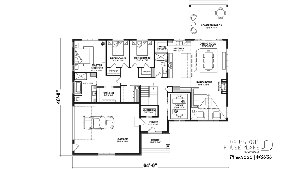
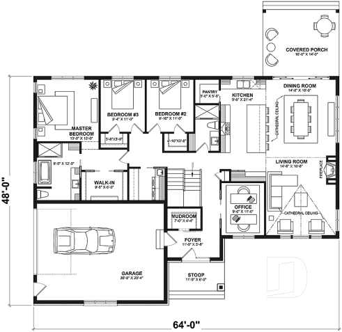
The PINEWOOD single storey house plan (#3638) offers 2039 sq.ft. of living space on the ground floor. The particularity of this modern farmhouse home is that the garage is on the side, thus allowing you to build on a corner lot. In addition, all the ceilings on the ground floor are 9' high except in the dining room and living room, where the cathedral ceiling reaches 18'8'' and 15'5'' respectively, giving a beautiful amplitude to this beautiful family area.
The entrance is large and includes a walk-in closet (mudroom) accessible both from the main front door and from the double garage. Then near the entrance is an office large enough to accommodate one or two independent workstations, practical for teleworking. The kitchen has a very large island that can accommodate 5 guests. In addition, a pantry and a coffee bar area, near the refrigerator, will delight the epicureans of the family. The kitchen opens onto the dining room which is of a good size, 14’8’’ x 16’, allowing you to set up a large table for 8 people or even more. This kitchen and dining area benefits from the natural light provided by the quadruple patio door, opening onto the sheltered rear porch, as well as by a large quadruple window. The living room is open to the dining room and a magnificent fireplace is provided and visible from the living room, the dining room and the kitchen.
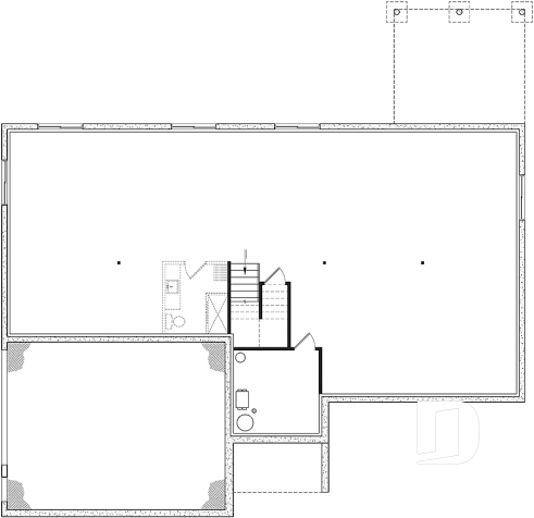
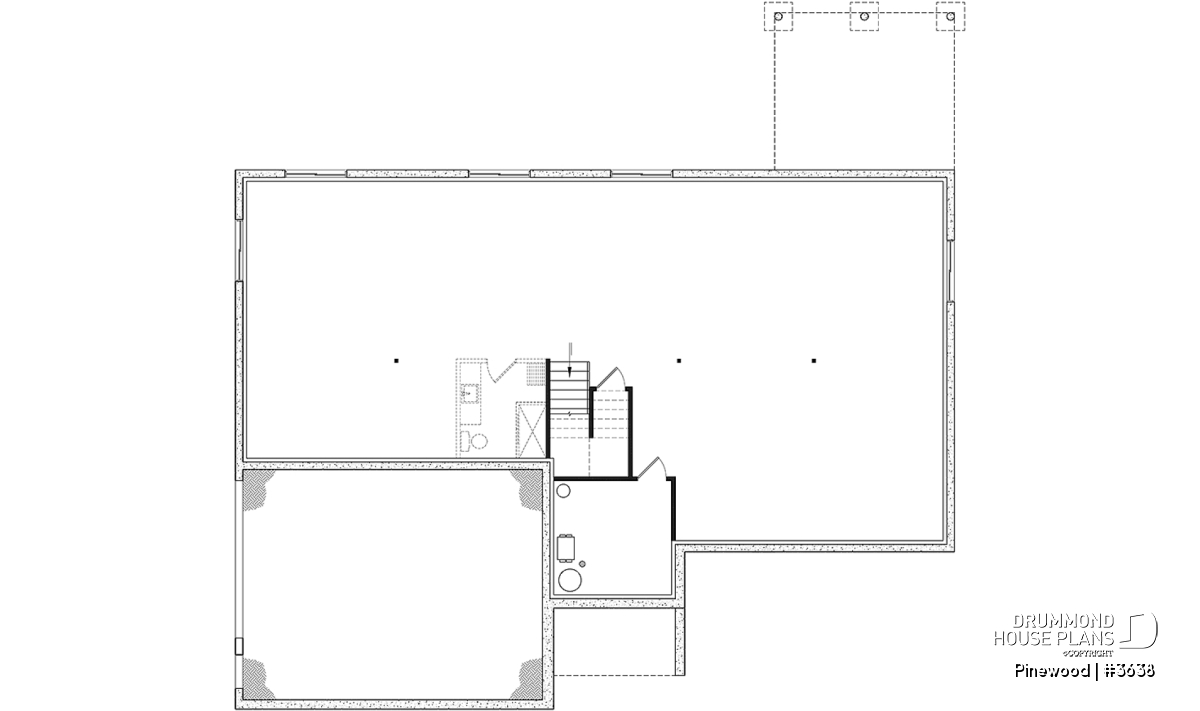
The bedroom area is planned in the rear left part of the house (or right if you ever decide to order the plan in reverse format). The master bedroom has a large walk-in closet, as well as a private bathroom with bath and separate shower. Not far from the master bedroom is the laundry room large enough to accommodate cabinets and a practical sink. The 2 secondary bedrooms in this area each have a walk-in closet and share a shower room. The basement is unfinished, to be converted according to your current or future needs into additional bedrooms and/or family room or other. In addition, several fondation options are available for most of our plans: concrete slab, crawl space, walkout, etc. Simply contact us to modify this plan or obtain a different type of foundation.
Distinctive elements
Single storey farmhouse style plan.
9' ceiling on the entire ground floor, except in the dining room and the living room which have a cathedral ceiling.
Large double garage with side entrance.
Walk-in mudroom accessible from the main entrance and also from the garage entrance as well.
Large parents' suite with walk-in closet and private bathroom, offering separate bath and shower.
2 secondary bedrooms (total of 3 bedrooms on the ground floor) each including a walk-in closet.
Shower room.
Practical laundry room, on the ground floor.
Kitchen with large island, pantry and coffee bar (near the refrigerator).
Dining room with cathedral ceiling.
Living room with cathedral ceiling and a fireplace.
Office large enough to accommodate 2 people working remotely.
Beautiful large sheltered terrace at the back, near the kitchen.
Unfinished basement. Other foundation options available.
Plan feature(s)
Side load garage, Office / Study / Den, Oversized garage, Pantry, Island, Ceiling over 8', Cathedral ceiling, Jack & Jill bath, Gound floor laundry room, Master suite on main, Mud room, Walk-in master bed., Separate bath and shower, Open floor layout, Fireplace, Deck, Coffee bar, Sliding barn door(s)
Similar plans
Previously Viewed Plans
Thank you for your comment! It must be approved before being put online, please allow a period of 24 hours.
Error with google reCaptcha! Try again
Here is a brief description of our different plan packages. Please select the plan package that suits your needs. You can change the package at the next step, if necessary.
PDF VERSION OF PLAN:
Complete digital version of plan (pdf format) sent by email (original plan format 18" x 24'' or 24" x 36'')
5 copies of plan + PDF:
Includes: 5 copies of plan, plan in PDF format (reduced size version), materials list.
Foundation type
Additional foundation types are available, a fee may apply. Please indicate your choice on the online order form, or to our customer service representative, when placing your house plan order.
If your desired foundation type is not available, please contact our customer service to receive your free plan modification quote.
Explanation of bonus space types
UNFINISHED BONUS ROOM
The bonus rooms are often planned above the garage and are accessible from the house. They are designed to be converted as an office, a laundry area, a bathroom, a library corner or even an additional bedroom for which homeowners must make sure to have a window that complies with current codes & standards.
STORAGE AREA
Often located above the garage, our storage areas are used only as storage and are usually accessible from the garage via a retractable staircase.
Do you like this plan but want it to be modified to suit your needs?
To add a garage, another bedroom, finish the basement or any other modification, click here and let us know about your desired changes and to get your free quote for the modification of your plan.
Conditions of use
Important copyright notice! Please take note of these copyright conditions before printing:
By printing this house plan, cottage or garage or the floorplan(s), you confirm being informed that every house plan on this website is the exclusive property of Drummond House
Plans and is protected by Canadian copyright law. You are aware that these prints cannot be used to build or even obtain a building permit. The graphic representations of these
models are offered by Drummond House Plans for the sole purpose of allowing you to notate modifications of a model and then take it to one of the Drummond House Plans Canadian dealers for
modification of the plan.
The purchase of a house plan, cottage or garage from Drummond House Plans is mandatory if you wish to build any of our models. The plan purchase allows you to build a single unit; you cannot resell or give your plan to anyone once the house, cottage or garage has been built. If you wish to build the same house, cottage or garage more than once, you need to obtain the licence to this effect. Please contact us for more details.
All plans from Drummond House Plans can only be modified by a licensed Drummond House Plan Canadian dealer. If any other business or individual with no affiliation to Drummond House Plans modifies a Drummond House Plan on your behalf, please ensure this business or individual has a licence to modify this specific plan or you will be subject to prosecution on the same level as the business or individual who modified or reproduced the plan.
For more details, do not hesitate to contact u by e-mail or by phone at 1-800-567-1413.
I agree to respect the conditions above to not reproduce, modify or build a model from Drummond House Plans without previously purchasing a complete house plan.



















