There are no shipping fees if you buy one of our 2 plan packages "PDF file format" or "5 sets of blueprints + PDF". Shipping charges may apply if you buy additional sets of blueprints.
House plan Galerno 6 (3108-V5)
Two-storey house plan with 3 bedrooms and home office, open floor plan, garage
Other useful information on this plan
Farmhouse home design with master suite on main floor and home office
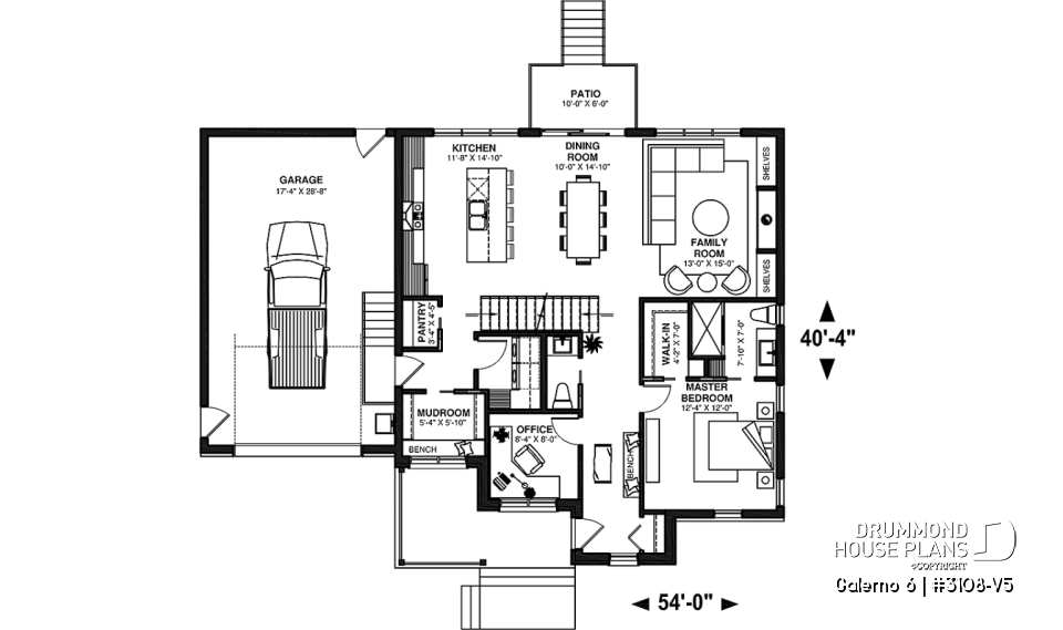
The following house plan, GALERNO 6 (3108-V5), is a fifth version of one of our plan already loved. With 1,829 square feet, this modern farmhouse single-family home offers 3 bedrooms, 2 bathrooms and a powder room.
From the outside, a beautiful masonry finish gives an effect of depth to the rest of the coating. In addition, shutters are installed on some windows, recalling the traditional. A one-car garage is also present.
The entrance to the house, which is through a covered gallery, opens into a vestibule separated from the common living space by a wide corridor. From this corridor, we find a perfect room for a home office or a study room. In the other side, the master suites offer parents a private bathroom with a large shower, as well as a walk-in closet. The two spaces can be closed with sliding doors. Finally, 3 windows, two of which are on each side of the bed, provide very good light. Continuing on, the powder room, perfect for guests, is the last room before arriving in the open concept living space, very bright, thanks to the back wall of the house, filled with 2 large windows and a patio door.
To the right, the living room has a fireplace with built-in shelves on each side. Which always allows a warm atmosphere. On the other hand, via the dining room, the kitchen shines with a thousand lights with its huge central island that can easily and comfortably accommodate five guests. The double sink as well as the dishwasher are installed there, freeing up additional storage space. A walk-in pantry is also available. Adjacent to this pantry is the door giving access to the garage, a laundry room and a very practical mudroom, including a bench and storage.
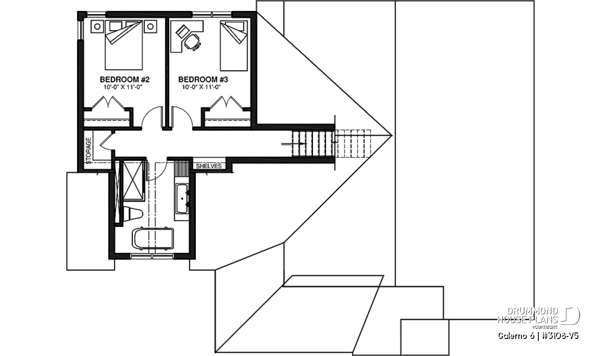
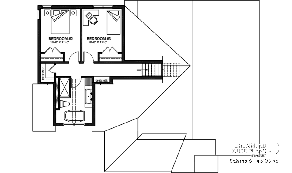
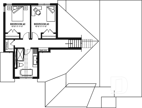
One of the advantageous and interesting aspects of this plan is certainly the second floor, which is above the garage. The latter includes the other two bedrooms of the same size, as well as a full bathroom with a sloping roof. Not to mention the very practical wardrobe for bedding and bathroom accessories. The design of these pieces is perfect for two children, teenagers or even young adults.
The plan of this magnificent traditional house is impressive bu its evolutionary aspect, it’ll follow you each stage of life!
Distinctive elements
Superb trendy modern farmhouse house.
Parents' suite on the ground floor with private bathroom, and walk-in closet.
2 secondary bedrooms with bathroom located upstairs.
Office located near the front entrance.h
Large mudroom at the entrance to the garage.
Laundry room on the ground floor, near the kitchen.
Large island and pantry in the kitchen.
Fireplace in the living room.
Full basement, to be finished according to your needs.
Plan feature(s)
Open floor layout, Office / Study / Den, Fireplace, Gound floor laundry room, Master suite on main, Walk-in master bed., Island, Shelves, Separate bath and shower, Mud room, Sloped ceiling, Bench seat(s)
Plan architectural style(s)
. Farmhouse, Modern Craftsman, . American, . Country, . Craftsman / Northwest
Similar plans
Previously Viewed Plans
Thank you for your comment! It must be approved before being put online, please allow a period of 24 hours.
Error with google reCaptcha! Try again
Here is a brief description of our different plan packages. Please select the plan package that suits your needs. You can change the package at the next step, if necessary.
PDF VERSION OF PLAN:
Complete digital version of plan (pdf format) sent by email (original plan format 18" x 24'' or 24" x 36'')
5 copies of plan + PDF:
Includes: 5 copies of plan, plan in PDF format (reduced size version), materials list.
Foundation type
Additional foundation types are available, a fee may apply. Please indicate your choice on the online order form, or to our customer service representative, when placing your house plan order.
If your desired foundation type is not available, please contact our customer service to receive your free plan modification quote.
Explanation of bonus space types
UNFINISHED BONUS ROOM
The bonus rooms are often planned above the garage and are accessible from the house. They are designed to be converted as an office, a laundry area, a bathroom, a library corner or even an additional bedroom for which homeowners must make sure to have a window that complies with current codes & standards.
STORAGE AREA
Often located above the garage, our storage areas are used only as storage and are usually accessible from the garage via a retractable staircase.
Do you like this plan but want it to be modified to suit your needs?
To add a garage, another bedroom, finish the basement or any other modification, click here and let us know about your desired changes and to get your free quote for the modification of your plan.
Conditions of use
Important copyright notice! Please take note of these copyright conditions before printing:
By printing this house plan, cottage or garage or the floorplan(s), you confirm being informed that every house plan on this website is the exclusive property of Drummond House
Plans and is protected by Canadian copyright law. You are aware that these prints cannot be used to build or even obtain a building permit. The graphic representations of these
models are offered by Drummond House Plans for the sole purpose of allowing you to notate modifications of a model and then take it to one of the Drummond House Plans Canadian dealers for
modification of the plan.
The purchase of a house plan, cottage or garage from Drummond House Plans is mandatory if you wish to build any of our models. The plan purchase allows you to build a single unit; you cannot resell or give your plan to anyone once the house, cottage or garage has been built. If you wish to build the same house, cottage or garage more than once, you need to obtain the licence to this effect. Please contact us for more details.
All plans from Drummond House Plans can only be modified by a licensed Drummond House Plan Canadian dealer. If any other business or individual with no affiliation to Drummond House Plans modifies a Drummond House Plan on your behalf, please ensure this business or individual has a licence to modify this specific plan or you will be subject to prosecution on the same level as the business or individual who modified or reproduced the plan.
For more details, do not hesitate to contact u by e-mail or by phone at 1-800-567-1413.
I agree to respect the conditions above to not reproduce, modify or build a model from Drummond House Plans without previously purchasing a complete house plan.








