There are no shipping fees if you buy one of our 2 plan packages "PDF file format" or "5 sets of blueprints + PDF". Shipping charges may apply if you buy additional sets of blueprints.
House plan Malvern (3037)
Intergenerational house plan with up to 5 bedrooms on main accommodation side!
Other useful information on this plan
Intergenerational house plan offering up to 5 bedrooms on the main unit!
Outside, the porches enhance this happy home while giving out a certain warmth to the whole and the gables also add a certain "grandeur" to the residence.
Inside, we can first appreciate, for each of the units, a coat closet at the front entrance. Looking more closely at each unit, we notice on the grand parent's side - a beautiful open organization of the living room and the kitchen-dinette, a good-sized bedroom, a bathroom with a shower, bath and a laundry area.
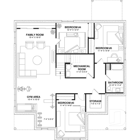
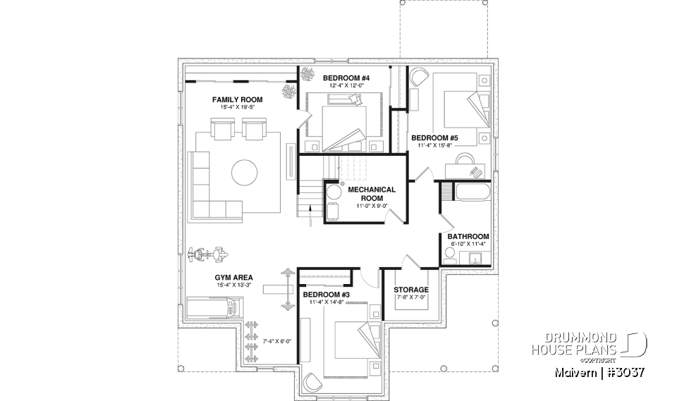
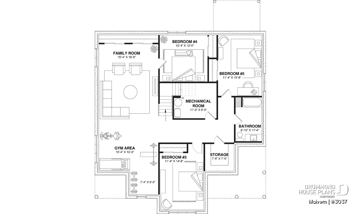
On the family side, we appreciate a kitchen with a central island open to a dining room that is also paired with a living room overlooking the back. Two bedrooms and a full bathroom complete this main floor while a staircase leading to the basement allows you to have a glimpse at the lower floor which is fully finished including 3 additional bedrooms, a bathroom, a family room, storage and a mechanical room.
You want to see other bi-generation models, it's here!
Distinctive elements
Intergenerational bungalow house plan.
Beautiful covered porch at each entrance.
Mudroom provided for each dwelling.
Attractive kitchen, in the family dwelling (#1) with island and pantry and open to the dining room and living room area.
Kitchen-dinette in dwelling #2 with bench seating area at the dining table.
Each unit has its own laundry room.
The family area offers 5 bedrooms, 3 of which are in the basement.
A family room is also planned in the basement for the main unit (#1).
Plan feature(s)
Warparound, Cathedral ceiling, Entrance hall, Double sinks, Pantry, Open floor layout, Arch, Gound floor laundry room, Ceiling over 8', Island, Bench seat(s), Built-ins
Plan architectural style(s)
Modern farmhouse, . American, . Traditional, . Colonial, Modern Craftsman, . Farmhouse, . Country
Similar plans
Previously Viewed Plans
Questions and comments
March 26
Ruth
Hello,
I am interested in plan W 3037. Do you have a layout of the second level? I was hoping to be able to put two more bedrooms upstairs- ideally one per each unit. Would that be possible?
I am living in Texas but would be building in southern Maine.
Thank you.
March 26
Customer service
Good day and thank you for your interest in this plan.
Although the design is for a single, main level (which is shown on the floor plan) the full basement could be finished according to your requirements and could even be modified to provide two units on two floors each by adding the bedrooms downstairs.
We would be happy to provide a free estimate for any changes that you require within two business days after receipt of this on line form.
Please let me know if you have any other questions or comments.
Regards
Deb
September 09
lori & gordon
can you tell us if there is one of these homes built - we live in the lower Laurentians (quebec) and would love to see the actual home - even if only the outside! thanks - Lori & Gordon
September 09
Customer service
Hello,
Thank you for your interest in Drummond House Plans.
Since our customer's information is confidential, and since we do not have model homes, we normally refer people to builders who are Drummond House Plans' customers, for this type of request. Our records show that no builder in your region has bought plan W3037. Since the agreement we have with builders is to refer only people from their area, I cannot provide you with any reference.
If you have other questions, please contact us again. We will gladly answer them.
Sincerely,
France, Customer Service Department
Thank you for your comment! It must be approved before being put online, please allow a period of 24 hours.
Error with google reCaptcha! Try again
Here is a brief description of our different plan packages. Please select the plan package that suits your needs. You can change the package at the next step, if necessary.
PDF VERSION OF PLAN:
Complete digital version of plan (pdf format) sent by email (original plan format 18" x 24'' or 24" x 36'')
5 copies of plan + PDF:
Includes: 5 copies of plan, plan in PDF format (reduced size version), materials list.
Foundation type
Additional foundation types are available, a fee may apply. Please indicate your choice on the online order form, or to our customer service representative, when placing your house plan order.
If your desired foundation type is not available, please contact our customer service to receive your free plan modification quote.
Explanation of bonus space types
UNFINISHED BONUS ROOM
The bonus rooms are often planned above the garage and are accessible from the house. They are designed to be converted as an office, a laundry area, a bathroom, a library corner or even an additional bedroom for which homeowners must make sure to have a window that complies with current codes & standards.
STORAGE AREA
Often located above the garage, our storage areas are used only as storage and are usually accessible from the garage via a retractable staircase.
Do you like this plan but want it to be modified to suit your needs?
To add a garage, another bedroom, finish the basement or any other modification, click here and let us know about your desired changes and to get your free quote for the modification of your plan.
Conditions of use
Important copyright notice! Please take note of these copyright conditions before printing:
By printing this house plan, cottage or garage or the floorplan(s), you confirm being informed that every house plan on this website is the exclusive property of Drummond House
Plans and is protected by Canadian copyright law. You are aware that these prints cannot be used to build or even obtain a building permit. The graphic representations of these
models are offered by Drummond House Plans for the sole purpose of allowing you to notate modifications of a model and then take it to one of the Drummond House Plans Canadian dealers for
modification of the plan.
The purchase of a house plan, cottage or garage from Drummond House Plans is mandatory if you wish to build any of our models. The plan purchase allows you to build a single unit; you cannot resell or give your plan to anyone once the house, cottage or garage has been built. If you wish to build the same house, cottage or garage more than once, you need to obtain the licence to this effect. Please contact us for more details.
All plans from Drummond House Plans can only be modified by a licensed Drummond House Plan Canadian dealer. If any other business or individual with no affiliation to Drummond House Plans modifies a Drummond House Plan on your behalf, please ensure this business or individual has a licence to modify this specific plan or you will be subject to prosecution on the same level as the business or individual who modified or reproduced the plan.
For more details, do not hesitate to contact u by e-mail or by phone at 1-800-567-1413.
I agree to respect the conditions above to not reproduce, modify or build a model from Drummond House Plans without previously purchasing a complete house plan.





















March 26
Ruth
Hello,
I am interested in plan W 3037. Do you have a layout of the second level? I was hoping to be able to put two more bedrooms upstairs- ideally one per each unit. Would that be possible?
I am living in Texas but would be building in southern Maine.
Thank you.