There are no shipping fees if you buy one of our 2 plan packages "PDF file format" or "5 sets of blueprints + PDF". Shipping charges may apply if you buy additional sets of blueprints.
House plan Summerwood (3047)
Country style intergenerational house plan with 2 large units, shared entrance, beautiful layout
Other useful information on this plan
Ideal independence with this intergenerational house plan
This charming bi-generational beauty allows multiple generations barrier-free access to both suites. A shared vestibule provides interior access to both suites, private but within easy access for tea and cookies. Each suite enjoys private backyard access.
The family suite has two bedrooms oriented to the front of the home with the activities area oriented to the back yard. The grandparent suite is a single-bedroom unit, complete with its own kitchen, dining room, living room and laundry.
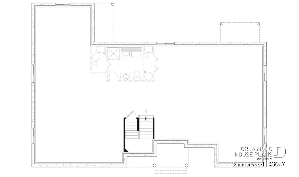
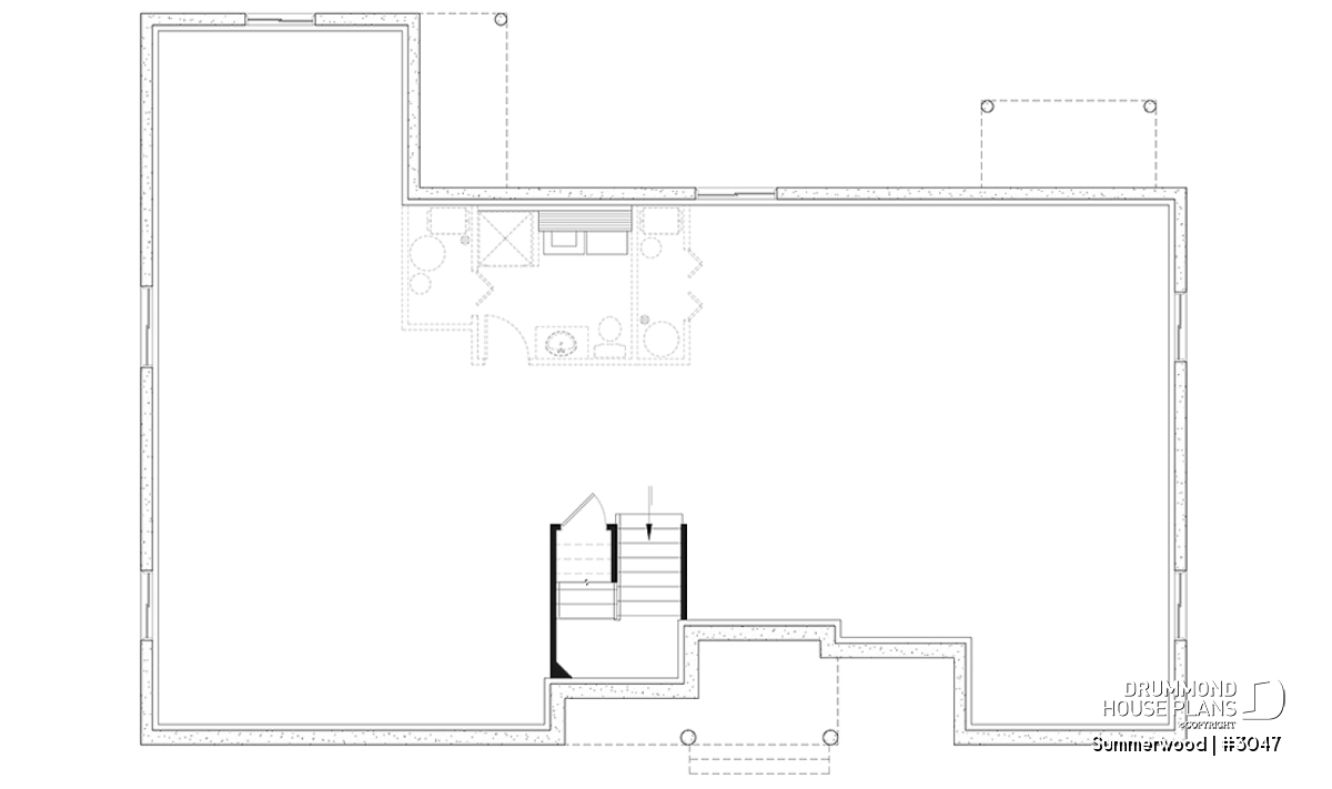
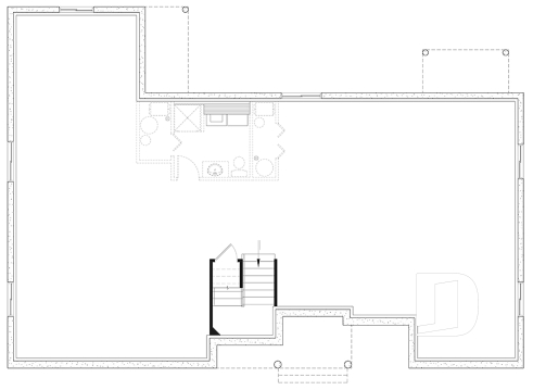
The plan includes an undeveloped basement, ideal for play area, hobbies, or a media room.
Distinctive elements
Large common vestibule for greeting and includes stairs to the basement. Activities area is open and light for each unit. Island kitchen with lunch counter in each kitchen. Laundry area on the ground floor in the grandparent suite.
Plan feature(s)
Separate bath and shower, Island, Open floor layout, Island, Gound floor laundry room
Plan architectural style(s)
. Country, . European, . Ranch, . Craftsman / Northwest
Similar plans
Previously Viewed Plans
Questions and comments
August 13
Matt
Would you show me the basement floor plan with R/I plumbing locations, also full rear view incl. basement level.
August 13
Customer service
Good day and thank you for taking the time to write.
This information is part of the plan set and as such it is not physically available prior to purchase but I would be happy to answer any detailed questions that you have if you contact me by phone.
Regards
Deb
June 06
cyril schroeder
Similar Multigenerational Design Plans- but 4 bedroom-
2 for each generation.
- with a 2 car garage out front-is ideal-sideways.
Max. house width 66 Ft. Max. house depth 54 Ft.
Please reply with Plan no's.
Can view on Web.
Cyril Schroeder
June 07
Customer service
Dear Mr Schroeder,
Thank you for your interest in Drummond House Plans.
I used our Advanced Plan Search tool with your criteria to find a similar plan, but I could not find any matching your requirements.
However, please note that all of our plans can easily be modified. To receive a Free Cost Estimate, you can visit the "Plan Customization Services" section of our website or contact our Modification Department at 1-800-567-5267.
Do not hesitate to contact me again if you need further information.
Sincerely,
France, Customer Service Department
Thank you for your comment! It must be approved before being put online, please allow a period of 24 hours.
Error with google reCaptcha! Try again
Here is a brief description of our different plan packages. Please select the plan package that suits your needs. You can change the package at the next step, if necessary.
PDF VERSION OF PLAN:
Complete digital version of plan (pdf format) sent by email (original plan format 18" x 24'' or 24" x 36'')
5 copies of plan + PDF:
Includes: 5 copies of plan, plan in PDF format (reduced size version), materials list.
Foundation type
Additional foundation types are available, a fee may apply. Please indicate your choice on the online order form, or to our customer service representative, when placing your house plan order.
If your desired foundation type is not available, please contact our customer service to receive your free plan modification quote.
Explanation of bonus space types
UNFINISHED BONUS ROOM
The bonus rooms are often planned above the garage and are accessible from the house. They are designed to be converted as an office, a laundry area, a bathroom, a library corner or even an additional bedroom for which homeowners must make sure to have a window that complies with current codes & standards.
STORAGE AREA
Often located above the garage, our storage areas are used only as storage and are usually accessible from the garage via a retractable staircase.
Do you like this plan but want it to be modified to suit your needs?
To add a garage, another bedroom, finish the basement or any other modification, click here and let us know about your desired changes and to get your free quote for the modification of your plan.
Conditions of use
Important copyright notice! Please take note of these copyright conditions before printing:
By printing this house plan, cottage or garage or the floorplan(s), you confirm being informed that every house plan on this website is the exclusive property of Drummond House
Plans and is protected by Canadian copyright law. You are aware that these prints cannot be used to build or even obtain a building permit. The graphic representations of these
models are offered by Drummond House Plans for the sole purpose of allowing you to notate modifications of a model and then take it to one of the Drummond House Plans Canadian dealers for
modification of the plan.
The purchase of a house plan, cottage or garage from Drummond House Plans is mandatory if you wish to build any of our models. The plan purchase allows you to build a single unit; you cannot resell or give your plan to anyone once the house, cottage or garage has been built. If you wish to build the same house, cottage or garage more than once, you need to obtain the licence to this effect. Please contact us for more details.
All plans from Drummond House Plans can only be modified by a licensed Drummond House Plan Canadian dealer. If any other business or individual with no affiliation to Drummond House Plans modifies a Drummond House Plan on your behalf, please ensure this business or individual has a licence to modify this specific plan or you will be subject to prosecution on the same level as the business or individual who modified or reproduced the plan.
For more details, do not hesitate to contact u by e-mail or by phone at 1-800-567-1413.
I agree to respect the conditions above to not reproduce, modify or build a model from Drummond House Plans without previously purchasing a complete house plan.






August 13
Matt
Would you show me the basement floor plan with R/I plumbing locations, also full rear view incl. basement level.