There are no shipping fees if you buy one of our 2 plan packages "PDF file format" or "5 sets of blueprints + PDF". Shipping charges may apply if you buy additional sets of blueprints.
House plan Ferguson (3067)
Buy this planFrom 2025$ See prices and options
House plan Ferguson (3067)
Duplex plan with large master suite, open floor plan kitchen, dining and living room, guest bedroom with bath
Buy this plan
Special: Free shipping!
Need help?
Come see us
View the size of the rooms and height of the ceilings
| 1st level | ||
|---|---|---|
| Rooms | Sizes | Ceiling |
| Master suite | 11'5" x 14'0" | ~ 9'0" |
| Walk-in closet | 7'9" x 7'0" | ~ 9'0" |
| Full bathroom | 7'7" x 8'8" | ~ 9'0" |
| Master suite | 11'3" x 14'0" | ~ 9'0" |
| Walk-in closet | 7'7" x 7'0" | ~ 9'0" |
| Full bathroom | 7'5" x 8'8" | ~ 9'0" |
| Bedroom | 11'5" x 10'0" | ~ 9'0" |
| Closet | 5'3" x 2'0" | ~ 9'0" |
| Bedroom | 11'3" x 10'0" | ~ 9'0" |
| Closet | 5'1" x 2'0" | ~ 9'0" |
| Living room | 12'0" x 15'0" | ~ 9'0" |
| Living room | 12'0" x 15'0" | ~ 9'0" |
| Dining room | 12'0" x 12'0" | ~ 9'0" |
| Dining room | 12'0" x 12'0" | ~ 9'0" |
| Kitchen | 12'0" x 11'8" | ~ 9'0" |
| Kitchen | 12'2" x 11'8" | ~ 9'0" |
| Bathroom | 7'7" x 5'0" | ~ 9'0" |
| Linen | 2'2" x 2'0" | ~ 9'0" |
| Bathroom | 7'9" x 5'0" | ~ 9'0" |
| Linen | 2'2" x 2'0" | ~ 9'0" |
| Covered porch | 12'4" x 6'0" | N/A |
| Covered porch | 12'6" x 6'0" | N/A |
| Covered porch | 6'0" x 4'0" | N/A |
| Covered porch | 6'0" x 4'0" | N/A |
| Laundry space | 3'4" x 6'0" | ~ 9'0" |
| Laundry space | 3'4" x 6'0" | ~ 9'0" |
| Storage | 3'4" x 4'3" | ~ 9'0" |
| Storage | 3'4" x 4'3" | ~ 9'0" |
| Linen | 2'2" x 2'0" | ~ 9'0" |
| Unfinished basement (Optional $) |
|---|
| 1st level (Optional $) |
|---|
General specifications
| Total living area | 2252 sq.ft. |
| 1st level | 2252 sq.ft. |
| 1st level (Optional $) | 0 sq.ft. |
| Unfinished basement (Optional $) | 0 sq.ft. |
| Width | 50'0" |
| Depth | 52'0" |
| Ridge height from top of foundation | 17'6" |
| Exterior wall | 2 X 6 |
| Foundation type included in the plan | Floating Slab |
| Other available foundations (a fee may apply) | Unfinished Basement, Crawl space, Monolithic Slab |
| Builder price code | MB |
Rooms specifications
| Bedroom(s) | 2 |
| Full baths | 2 |
| Half baths | - |
| Garage type | - |
| Living bonus space | - |
| Bonus storage | - |
| Covered porch area | 197 sq.ft. |
| Left | Right | |
| Total living area | 1127 sq.ft. | 1125 sq.ft. |
| 1st level | 1127 sq.ft. | 1125 sq.ft. |
| Width | 25' 0" | 25' 0" |
| Depth | 50' 0" | 50' 0" |
| Ridge height from top of foundation | 17' 6" | 17' 6" |
| Exterior wall | 2 X 6 | 2 X 6 |
| Foundation type | Floating Slab | Floating Slab |
| Bedroom(s) | 2 | 2 |
| Full baths | 2 | 2 |
| Half baths | - | - |
| Garage type | - | - |
| Living bonus space | - | - |
| Bonus storage | - | - |
General specifications
| Total living area | 2252 sq.ft. |
| 1st level | 2252 sq.ft. |
| Unfinished basement (Optional $) | 0 sq.ft. |
| 1st level (Optional $) | 0 sq.ft. |
| Width | 50'0" |
| Depth | 52'0" |
| Ridge height from top of foundation | 17'6" |
| Exterior wall | 2 X 6 |
| Foundation type included in the plan | Floating Slab i |
| Other available foundations (a fee may apply) | Unfinished Basement, Crawl space, Monolithic Slab |
| Builder price code | MB |
Rooms specifications
| Bedroom(s) | 2 |
| Full baths | 2 |
| Half baths | - |
| Garage type | - |
| Living bonus space | - i |
| Bonus storage | - i |
| Covered porch area | 197 sq.ft. |
Units specifications
| Left | Right | |
| Total living area | 1127 sq.ft. | 1125 sq.ft. |
| 1st level | 1127 sq.ft. | 1125 sq.ft. |
| Width | 25' 0" | 25' 0" |
| Depth | 50' 0" | 50' 0" |
| Ridge height from top of foundation | 17' 6" | 17' 6" |
| Exterior wall | 2 X 6 | 2 X 6 |
| Foundation type | Floating Slab | Floating Slab |
| Bedroom(s) | 2 | 2 |
| Full baths | 2 | 2 |
| Half baths | - | - |
| Garage type | - | - |
| Living bonus space | - | - |
| Bonus storage | - | - |
Other useful information on this plan
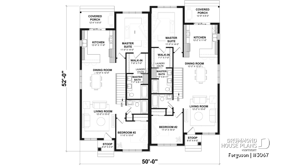
Duplex house plan with master suite!
Here is an American-style duplex home design, our new duplex plan # 3067 by Drummond House Plans, offering you beautiful spaces and comfort! The Ferguson duplex home plan was designed for a couple or a family wishing to have no basement which allowed us to use the space that would have been reserved for a staircase (leading to the basement) and maximize the overall square footage. It should be noted that the ceiling height of the entire main floor is 9 feet high, which gives significant amplitude to the rooms.
The kitchen is good in size and features a lunch counter, convenient for chatting with guests while preparing meals. In addition, a covered balcony is accessible from the kitchen making it easy to access a BBQ, for example. The dining room area and living room (lounge) are very open. The space is large enough to accommodate a table of 6 to 8 people and good size living room furniture.
The master bedroom suite receives natural light from a large window overlooking the back yard. There is also a large walk-in wardrobe. A private bathroom with shower and double vanity, as well as a linen room complete the "private" area of the parents or owners. A secondary bedroom is located on the front of the house and is adjacent to a full bathroom. This flex room could easily convert into a study or home gym. A washer and dryer closet along with a storage area are also included in the BASE model, while in the version with an *unfinished basement, the laundry room is located downstairs.
---
*OPTION #1
A staircase to the unfinished basement has been added from the dining room, and the laundry room has been relocated to the basement.
---
*Unfinished Basement (optional $):
If you wish to purchase the unfinished basement plan option ($), please select this option in the shopping cart, in the "Select your foundation" section. If you do not select this option, you will receive a floating slab as your foundation, at no extra cost.
Distinctive elements
Modern Rustic Style Semi-Detached Model.
9-foot ceilings throughout the main floor.
Covered rear balcony.
Spacious kitchen with breakfast counter and patio door.
Open-concept dining room and living room.
Large, bright master bedroom with a walk-in closet and private bathroom.
Secondary bedroom can also serve as a home office or gym, with direct access to a full bathroom.
Both front and rear balconies are covered.
Designed for a concrete slab foundation, with other foundation options available.
---
*OPTION #1
A staircase to the unfinished basement has been added from the dining room, and the laundry room has been relocated to the basement.
---
*Unfinished Basement (optional $):
If you wish to purchase the unfinished basement plan option ($), please select this option in the shopping cart, in the "Select your foundation" section. If you do not select this option, you will receive a floating slab as your foundation, at no extra cost.
Plan feature(s)
Ceiling over 8', Gound floor laundry room, Lunch counter, Master suite on main, Double sinks, Deck, Open floor layout
Plan architectural style(s)
. Craftsman / Northwest, . Country, . Modern rustic, . Contemporary, . American, . Transitional, . Ranch, Modern Craftsman
Similar plans
Previously Viewed Plans
Thank you for your comment! It must be approved before being put online, please allow a period of 24 hours.
Error with google reCaptcha! Try again
Want to modify this plan?
Free plan modification quoteNeed help?
Contact usCome see us
Our 31 regional officesYou may also like
Similar plans
Description
BASE PLAN
Main Floor:
Kitchen, dining room, living room, master suite with walk-in closet and private bathroom, secondary bedroom, second bathroom, washer and dryer in closet, storage.
Slab foundation.
---
*OPTION #1
A staircase to the unfinished basement has been added from the dining room, and the laundry room has been relocated to the basement.
---
*Unfinished Basement (optional $):
If you wish to purchase the unfinished basement plan option ($), please select this option in the shopping cart, in the "Select your foundation" section. If you do not select this option, you will receive a floating slab as your foundation, at no extra cost.
Awards and
Recognition
Here is a brief description of our different plan packages. Please select the plan package that suits your needs. You can change the package at the next step, if necessary.
PDF VERSION OF PLAN:
Complete digital version of plan (pdf format) sent by email (original plan format 18" x 24'' or 24" x 36'')
5 copies of plan + PDF:
Includes: 5 copies of plan, plan in PDF format (reduced size version), materials list.
Foundation type
Additional foundation types are available, a fee may apply. Please indicate your choice on the online order form, or to our customer service representative, when placing your house plan order.
If your desired foundation type is not available, please contact our customer service to receive your free plan modification quote.
Explanation of bonus space types
UNFINISHED BONUS ROOM
The bonus rooms are often planned above the garage and are accessible from the house. They are designed to be converted as an office, a laundry area, a bathroom, a library corner or even an additional bedroom for which homeowners must make sure to have a window that complies with current codes & standards.
STORAGE AREA
Often located above the garage, our storage areas are used only as storage and are usually accessible from the garage via a retractable staircase.
Do you like this plan but want it to be modified to suit your needs?
To add a garage, another bedroom, finish the basement or any other modification, click here and let us know about your desired changes and to get your free quote for the modification of your plan.
Conditions of use
Important copyright notice! Please take note of these copyright conditions before printing:
By printing this house plan, cottage or garage or the floorplan(s), you confirm being informed that every house plan on this website is the exclusive property of Drummond House
Plans and is protected by Canadian copyright law. You are aware that these prints cannot be used to build or even obtain a building permit. The graphic representations of these
models are offered by Drummond House Plans for the sole purpose of allowing you to notate modifications of a model and then take it to one of the Drummond House Plans Canadian dealers for
modification of the plan.
The purchase of a house plan, cottage or garage from Drummond House Plans is mandatory if you wish to build any of our models. The plan purchase allows you to build a single unit; you cannot resell or give your plan to anyone once the house, cottage or garage has been built. If you wish to build the same house, cottage or garage more than once, you need to obtain the licence to this effect. Please contact us for more details.
All plans from Drummond House Plans can only be modified by a licensed Drummond House Plan Canadian dealer. If any other business or individual with no affiliation to Drummond House Plans modifies a Drummond House Plan on your behalf, please ensure this business or individual has a licence to modify this specific plan or you will be subject to prosecution on the same level as the business or individual who modified or reproduced the plan.
For more details, do not hesitate to contact u by e-mail or by phone at 1-800-567-1413.
I agree to respect the conditions above to not reproduce, modify or build a model from Drummond House Plans without previously purchasing a complete house plan.












