There are no shipping fees if you buy one of our 2 plan packages "PDF file format" or "5 sets of blueprints + PDF". Shipping charges may apply if you buy additional sets of blueprints.
House plan Corbusier (3884)
Modern house plan with 2 master suites, 4 bedrooms, home office, large kitchen open floor plan concept
Other useful information on this plan
New Modern house design with 4 to 5 bedrooms, including 2 master suites!
From the outset you will be charmed by the amount of windows in front, allowing natural light to pass through the strategic rooms. This new contemporary house plan by Drummond House Plans - plan no. 3884 - will appeal to you with its modern look proposing wood in front, thus bringing a rustic touch to its structure which offers nearly 2500 square feet of square footage! Everything to satisfy the large and blended families!
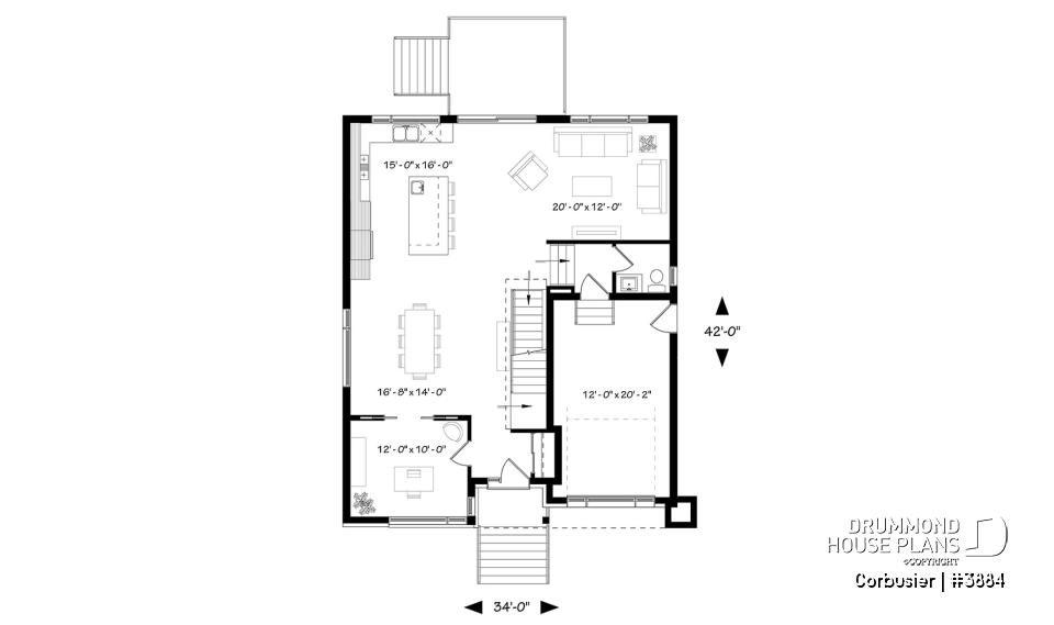
The ground floor offers a 9 feet ceiling, which gives amplitude to the common areas. A home office is located near the entrance of the house, which is convenient for those wishing to receive clients and coworkers, keeping them away from the family space. We chose to set up an office but it could also have been a playroom for children, a TV room or even a 5th bedroom, if your family requires more bedroom space!
The kitchen offers a very large island with sink, easily accommodating 4 to 5 guests. Convenient to prepare food while chatting with guests! Another sink, double, is located near the dishwasher and faces a large window on the backyard of the house. The dining room is also open to the kitchen, and receives natural light from a large window. The living room (or lounge area) is also open to the kitchen and is located near a patio door, allowing for quick and easy access to the backyard. A half-bath (powder room), mid-floor between the garage and the ground floor is judiciously located near the common area, without forming an integral part of it.
Upstairs, 4 large bedrooms are available. The master bedroom suite is accessed through French doors. It offers a private shower room including a double vanity and a large shower. In addition, a large walk-in closet completes this spacious master bedroom suite. A second master bedroom with private shower room is located upstairs, ideal for hosting guests or family members. Two other secondary rooms share a private Jack and Jill bathroom with shower and toilet, separated from the double vanity. Very convenient for the mornings of the week, where everyone needs their private spaces!
The basement is to be finished, and may possibly receive an additional family room and bedrooms, or storage! You decide!
To make modifications to this Drummond House Plans’ contemporary home plan # 3884, please contact us at 1-800-567-5267 or visit the "Contact" section of our website!
Distinctive elements
Modern house design with garage.
9ft. ceiling throughout on main floor.
Entry with coat closet.
Home office, or bedroom # 5 or playroom.
Large kitchen with island suitable for 4 to 5 guests.
Dining room open to the kitchen.
Living room open to the kitchen and receiving plenty of natural light.
Half-bath (powder room) the garage and the house main floor.
Master bedroom suite with private shower room including double vanity, large walk-in shower and walk-in wardrobe.
Second master bedroom (guest suite) with private shower room.
Two other bedrooms sharing a Jack and Jill bathroom with double vanity and shower bath.
Practical laundry on the second floor, near the bedrooms.
Single car garage can easily be doubled, contact us for details.
Daylight basement to be finished.
Plan feature(s)
Open floor layout, Ceiling over 8', Master suite upstairs, Guest suite, Second floor laundry room, Jack & Jill bath, Walk-in master bed., Office / Study / Den, Island
Plan architectural style(s)
. Contemporary, . Modern / Design, . Modern rustic
Similar plans
Previously Viewed Plans
Thank you for your comment! It must be approved before being put online, please allow a period of 24 hours.
Error with google reCaptcha! Try again
Here is a brief description of our different plan packages. Please select the plan package that suits your needs. You can change the package at the next step, if necessary.
PDF VERSION OF PLAN:
Complete digital version of plan (pdf format) sent by email (original plan format 18" x 24'' or 24" x 36'')
5 copies of plan + PDF:
Includes: 5 copies of plan, plan in PDF format (reduced size version), materials list.
Foundation type
Additional foundation types are available, a fee may apply. Please indicate your choice on the online order form, or to our customer service representative, when placing your house plan order.
If your desired foundation type is not available, please contact our customer service to receive your free plan modification quote.
Explanation of bonus space types
UNFINISHED BONUS ROOM
The bonus rooms are often planned above the garage and are accessible from the house. They are designed to be converted as an office, a laundry area, a bathroom, a library corner or even an additional bedroom for which homeowners must make sure to have a window that complies with current codes & standards.
STORAGE AREA
Often located above the garage, our storage areas are used only as storage and are usually accessible from the garage via a retractable staircase.
Do you like this plan but want it to be modified to suit your needs?
To add a garage, another bedroom, finish the basement or any other modification, click here and let us know about your desired changes and to get your free quote for the modification of your plan.
Conditions of use
Important copyright notice! Please take note of these copyright conditions before printing:
By printing this house plan, cottage or garage or the floorplan(s), you confirm being informed that every house plan on this website is the exclusive property of Drummond House
Plans and is protected by Canadian copyright law. You are aware that these prints cannot be used to build or even obtain a building permit. The graphic representations of these
models are offered by Drummond House Plans for the sole purpose of allowing you to notate modifications of a model and then take it to one of the Drummond House Plans Canadian dealers for
modification of the plan.
The purchase of a house plan, cottage or garage from Drummond House Plans is mandatory if you wish to build any of our models. The plan purchase allows you to build a single unit; you cannot resell or give your plan to anyone once the house, cottage or garage has been built. If you wish to build the same house, cottage or garage more than once, you need to obtain the licence to this effect. Please contact us for more details.
All plans from Drummond House Plans can only be modified by a licensed Drummond House Plan Canadian dealer. If any other business or individual with no affiliation to Drummond House Plans modifies a Drummond House Plan on your behalf, please ensure this business or individual has a licence to modify this specific plan or you will be subject to prosecution on the same level as the business or individual who modified or reproduced the plan.
For more details, do not hesitate to contact u by e-mail or by phone at 1-800-567-1413.
I agree to respect the conditions above to not reproduce, modify or build a model from Drummond House Plans without previously purchasing a complete house plan.






