There are no shipping fees if you buy one of our 2 plan packages "PDF file format" or "5 sets of blueprints + PDF". Shipping charges may apply if you buy additional sets of blueprints.
House plan Levis (3725)
Modern house plan with kitchen island & pantry, laundry on main floor, 3 bedrooms, large family bathroom
Other useful information on this plan
Modern style two-story house offering lots of comfort
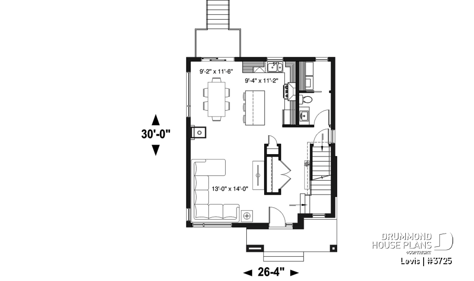
Contemporary approach with open spaces, two-story home plan no. 3725 by Drummond House Plans, also named “Levis”, is luminous with its open-floor, letting natural light travel on the whole ground floor, on the stairs as well as the second floor.
On the main floor, there is a practical and large size coat closet. The half-bath and laundry room are located very close to the kitchen. The family area opens entirely to us with beautiful spaces including the living room that shares a three-sided fireplace with the dining room. There is also a remarkable kitchen with excellent storage, a central island and window above the sink to maximize natural light and allow you to enjoy the view.
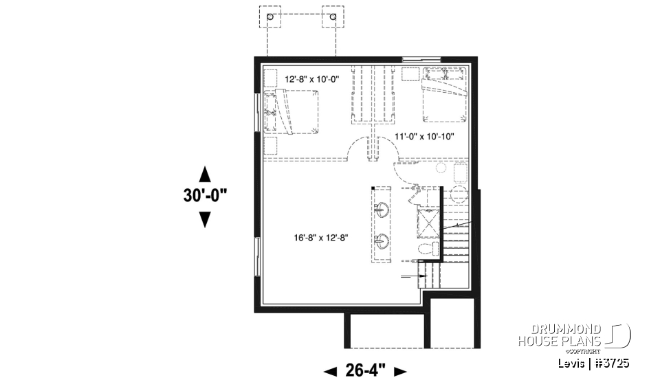
Upstairs we are pleasantly surprised by the size of the three bedrooms. The two smaller ones are 11' x 10'4'' and an amazingly large walk-in closet of the master bedroom. There is also a full family bathroom with independent shower, large vanity with two sinks and a bath under the front window.
Distinctive elements
Modern two-story house plan.
Large coat closet in the entry hall.
Living room and dining room sharing a 3-sided fireplace.
Large island and pantry in kitchen.
Powder room near kitchen.
Laundry room on main floor.
Master bedroom with walk-in closet.
Family bathroom with two sinks and a seperated bath and shower.
Unfinished basement. Many foundation options available, contact us for more information.
Plan feature(s)
Gound floor laundry room, Fireplace, Island, Walk-in master bed., Open floor layout, Separate bath and shower, Double sinks
Plan architectural style(s)
. Transitional, . Contemporary, . Modern / Design, . Mid-century
Similar plans
Previously Viewed Plans
Thank you for your comment! It must be approved before being put online, please allow a period of 24 hours.
Error with google reCaptcha! Try again
Here is a brief description of our different plan packages. Please select the plan package that suits your needs. You can change the package at the next step, if necessary.
PDF VERSION OF PLAN:
Complete digital version of plan (pdf format) sent by email (original plan format 18" x 24'' or 24" x 36'')
5 copies of plan + PDF:
Includes: 5 copies of plan, plan in PDF format (reduced size version), materials list.
Foundation type
Additional foundation types are available, a fee may apply. Please indicate your choice on the online order form, or to our customer service representative, when placing your house plan order.
If your desired foundation type is not available, please contact our customer service to receive your free plan modification quote.
Explanation of bonus space types
UNFINISHED BONUS ROOM
The bonus rooms are often planned above the garage and are accessible from the house. They are designed to be converted as an office, a laundry area, a bathroom, a library corner or even an additional bedroom for which homeowners must make sure to have a window that complies with current codes & standards.
STORAGE AREA
Often located above the garage, our storage areas are used only as storage and are usually accessible from the garage via a retractable staircase.
Do you like this plan but want it to be modified to suit your needs?
To add a garage, another bedroom, finish the basement or any other modification, click here and let us know about your desired changes and to get your free quote for the modification of your plan.
Conditions of use
Important copyright notice! Please take note of these copyright conditions before printing:
By printing this house plan, cottage or garage or the floorplan(s), you confirm being informed that every house plan on this website is the exclusive property of Drummond House
Plans and is protected by Canadian copyright law. You are aware that these prints cannot be used to build or even obtain a building permit. The graphic representations of these
models are offered by Drummond House Plans for the sole purpose of allowing you to notate modifications of a model and then take it to one of the Drummond House Plans Canadian dealers for
modification of the plan.
The purchase of a house plan, cottage or garage from Drummond House Plans is mandatory if you wish to build any of our models. The plan purchase allows you to build a single unit; you cannot resell or give your plan to anyone once the house, cottage or garage has been built. If you wish to build the same house, cottage or garage more than once, you need to obtain the licence to this effect. Please contact us for more details.
All plans from Drummond House Plans can only be modified by a licensed Drummond House Plan Canadian dealer. If any other business or individual with no affiliation to Drummond House Plans modifies a Drummond House Plan on your behalf, please ensure this business or individual has a licence to modify this specific plan or you will be subject to prosecution on the same level as the business or individual who modified or reproduced the plan.
For more details, do not hesitate to contact u by e-mail or by phone at 1-800-567-1413.
I agree to respect the conditions above to not reproduce, modify or build a model from Drummond House Plans without previously purchasing a complete house plan.







