There are no shipping fees if you buy one of our 2 plan packages "PDF file format" or "5 sets of blueprints + PDF". Shipping charges may apply if you buy additional sets of blueprints.
                                                                                                                                                                                                                                                                                                                                                                                                                                                                                                                                                                                                                                                                                                                                                                          House plan Lavoisier  (3707)                
                                  
              
              Two-storey modern cubic house plan with pantry, laundry room, kitchen island, 3 bedrooms, 1.5 baths
Other useful information on this plan
2 story modern and cubic style home plan with 3 bedrooms and splendid kitchen
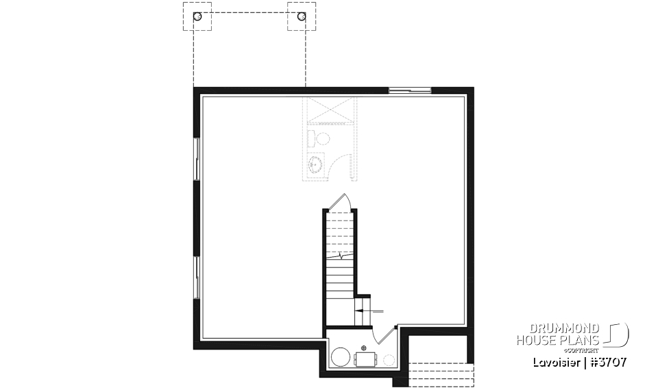
Drummond House Plans’ new cubic and modern style house plan #3707, that we also named “Lavoisier” has a unique and clean look, and is yet very affordable.  This contemporary 2 story home plan has a total of 1680 square feet as well as an unfinished basement that can eventually be arranged to suit your future needs, also counts 3 bedrooms on the second level.
On the main level, the main entrance offers a spacious walk-in type closet that is adjacent to a very practical laundry room as well as a half bath that is conveniently secluded from the other rooms.  The kitchen, open to the dining room area has a lots of counter space, a spacious pantry as well as a central island able to easily seat 3 to 4.  A patio door has been conveniently located in the dining room area and leads to back porch that offers lots of natural light.
Upstairs, the master bedroom is large in size and can easily accommodate a king size bed and extra furniture. In addition it has a large walk-in closet. One of the secondary rooms also offers a walk-in closet and the other bedroom has an integrated work desk. A linen closet is located near the large family bathroom that also offers a large shower and a separate bath.
The basement is unfinished and may eventually, at the appropriate time, provide additional bedrooms, a playroom or any other room required to add comfort to your family.  Other foundation options are available, please contact us for more information.
Distinctive elements
2-story home plan, modern cubic style design.
Entrance hall with practical large walk-in closet.
Laundry room conveniently located on main floor.
Kitchen with lots of counter space, a pantry and a large kitchen island.
Open kitchen, dining and living room floor concept.
Master bedroom can easily accomodate a large king size bed, and has a walk-in closet.
One of the secondary bedroom has a walk-in closet, the other secondary bedroom has a built-in study desk.
Linen closet located near family bathroom.
Family bathroom with large shower stall and separate bath.
Unfinished daylight basement can be finished in additional bedrooms, playroom or else.
Many foundation options available, contact us.
Plan feature(s)
Gound floor laundry room, Island, Pantry, Open floor layout, Mud room, Walk-in master bed., Separate bath and shower
Plan architectural style(s)
. Contemporary, . Modern / Design, . Transitional, . Modern rustic
Similar plans
Previously Viewed Plans
Thank you for your comment! It must be approved before being put online, please allow a period of 24 hours.
Error with google reCaptcha! Try again
Here is a brief description of our different plan packages. Please select the plan package that suits your needs. You can change the package at the next step, if necessary.
PDF VERSION OF PLAN:
Complete digital version of plan (pdf format) sent by email (original plan format 18" x 24'' or 24" x 36'')
5 copies of plan + PDF:
Includes: 5 copies of plan, plan in PDF format (reduced size version), materials list.
Foundation type
Additional foundation types are available, a fee may apply. Please indicate your choice on the online order form, or to our customer service representative, when placing your house plan order.
If your desired foundation type is not available, please contact our customer service to receive your free plan modification quote.
Explanation of bonus space types
UNFINISHED BONUS ROOM
The bonus rooms are often planned above the garage and are accessible from the house. They are designed to be converted as an office, a laundry area, a bathroom, a library corner or even an additional bedroom for which homeowners must make sure to have a window that complies with current codes & standards.
STORAGE AREA
Often located above the garage, our storage areas are used only as storage and are usually accessible from the garage via a retractable staircase.
Do you like this plan but want it to be modified to suit your needs?
To add a garage, another bedroom, finish the basement or any other modification, click here and let us know about your desired changes and to get your free quote for the modification of your plan.
Conditions of use
Important copyright notice! Please take note of these copyright conditions before printing:
        By printing this house plan, cottage or garage or the floorplan(s), you confirm being informed that every house plan on this website is the exclusive property of Drummond House
          Plans and is protected by Canadian copyright law. You are aware that these prints cannot be used to build or even obtain a building permit. The graphic representations of these
        models are offered by Drummond House Plans for the sole purpose of allowing you to notate modifications of a model and then take it to one of the Drummond House Plans Canadian dealers for
        modification of the plan.
The purchase of a house plan, cottage or garage from Drummond House Plans is mandatory if you wish to build any of our models. The plan purchase allows you to build a single unit; you cannot resell or give your plan to anyone once the house, cottage or garage has been built. If you wish to build the same house, cottage or garage more than once, you need to obtain the licence to this effect. Please contact us for more details.
All plans from Drummond House Plans can only be modified by a licensed Drummond House Plan Canadian dealer. If any other business or individual with no affiliation to Drummond House Plans modifies a Drummond House Plan on your behalf, please ensure this business or individual has a licence to modify this specific plan or you will be subject to prosecution on the same level as the business or individual who modified or reproduced the plan.
For more details, do not hesitate to contact u by e-mail or by phone at 1-800-567-1413.
I agree to respect the conditions above to not reproduce, modify or build a model from Drummond House Plans without previously purchasing a complete house plan.






 
                           
                           
                           
                          


 
                             
                             
                            



 
                                   
                                   
                                   
                                   
                         
                         
                         
                         
                         
                         
                         
                         
                         
                         
                         
                         
                         
                         
                         
                         
                         
                         
                         
               
               
               
               
               
               
               
               
              