There are no shipping fees if you buy one of our 2 plan packages "PDF file format" or "5 sets of blueprints + PDF". Shipping charges may apply if you buy additional sets of blueprints.
House plan Joshua 2 (1703-V1)
Modern unique 2 storey house plan, master suite on second floor with private large terrace, garage, and more!
Other useful information on this plan
Stunning modern small house plan with great master suite with private terrace (on second floor)!
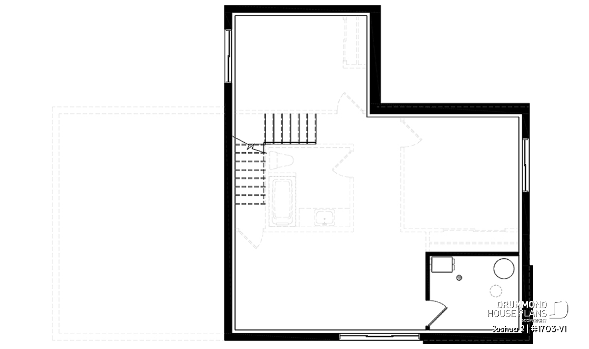
The Joshua 2 house plan (1703-V1) offers 1188sqft of living space. The height of the ground floor ceilings are a standard height of 8ft. Entering this modern house, a vestibule separates us from the living room, kitchen and dining room which are open plan.
The kitchen has a large island and a walk-in style pantry. It overlooks the open-air dining room and the latter is illuminated by the patio door which opens onto the first terrace, an interesting size to receive several guests and enjoy the outdoors.
In terms of convenience, a mudroom including space for a washer and dryer is located on the ground floor, near the access to the garage. The latter, of a simple size, remains of an interesting size to install a workshop and additional storage.
The ground floor bedroom is at the back of the house. The dimensions allow several uses, such as a standard bedroom or an office for teleworking.
Upstairs is the parents' suite. With 10ft ceilings. Including a full bathroom, a bedroom of 13-8 x 12, opening onto the second (and not the least!) Terrace of a spectacular size of 15 x 23
Distinctive elements
Well designed Modern 2 storey-house plan.
Great master suite on second floor with ensuite, walk-in and private x-large terrace.
Open kitchen, dining and living room concept on main floor.
Flex room can be a second bedroom or home office, or playroom.
Great smaller terrace off the kitchen.
Large laundry room and mud room on main floor.
One-car garage.
Plan feature(s)
Open floor layout, Mud room, Gound floor laundry room, Pantry, Island, Balcony 2nd floor, Master suite upstairs, Sloped ceiling, Walk-in master bed., Entrance hall, Double sinks
Plan architectural style(s)
. Modern / Design, . Contemporary, . Modern rustic, . Cottage, chalet, cabin, . Ski chalets, . Mid-century
Similar plans
Previously Viewed Plans
Questions and comments
December 25
Lesley Smith
Hello,
Can I change the plan so it is reversed and the upstairs patio is on the other side?
Thanks,
Lesley
January 06
Customer Service
Hello Lesley,
We can adjust the house plan to reflect your requests, no problem.
Please fill up this form to get your free plan modification quote: drummondhouseplans.com/plan-modification-request-form/1003312
And contact if you need more information:
Phone: 1-800-567-5267 ext. 109
Email: [email protected]
Thanks!
Thank you for your comment! It must be approved before being put online, please allow a period of 24 hours.
Error with google reCaptcha! Try again
Here is a brief description of our different plan packages. Please select the plan package that suits your needs. You can change the package at the next step, if necessary.
PDF VERSION OF PLAN:
Complete digital version of plan (pdf format) sent by email (original plan format 18" x 24'' or 24" x 36'')
5 copies of plan + PDF:
Includes: 5 copies of plan, plan in PDF format (reduced size version), materials list.
Foundation type
Additional foundation types are available, a fee may apply. Please indicate your choice on the online order form, or to our customer service representative, when placing your house plan order.
If your desired foundation type is not available, please contact our customer service to receive your free plan modification quote.
Explanation of bonus space types
UNFINISHED BONUS ROOM
The bonus rooms are often planned above the garage and are accessible from the house. They are designed to be converted as an office, a laundry area, a bathroom, a library corner or even an additional bedroom for which homeowners must make sure to have a window that complies with current codes & standards.
STORAGE AREA
Often located above the garage, our storage areas are used only as storage and are usually accessible from the garage via a retractable staircase.
Do you like this plan but want it to be modified to suit your needs?
To add a garage, another bedroom, finish the basement or any other modification, click here and let us know about your desired changes and to get your free quote for the modification of your plan.
Conditions of use
Important copyright notice! Please take note of these copyright conditions before printing:
By printing this house plan, cottage or garage or the floorplan(s), you confirm being informed that every house plan on this website is the exclusive property of Drummond House
Plans and is protected by Canadian copyright law. You are aware that these prints cannot be used to build or even obtain a building permit. The graphic representations of these
models are offered by Drummond House Plans for the sole purpose of allowing you to notate modifications of a model and then take it to one of the Drummond House Plans Canadian dealers for
modification of the plan.
The purchase of a house plan, cottage or garage from Drummond House Plans is mandatory if you wish to build any of our models. The plan purchase allows you to build a single unit; you cannot resell or give your plan to anyone once the house, cottage or garage has been built. If you wish to build the same house, cottage or garage more than once, you need to obtain the licence to this effect. Please contact us for more details.
All plans from Drummond House Plans can only be modified by a licensed Drummond House Plan Canadian dealer. If any other business or individual with no affiliation to Drummond House Plans modifies a Drummond House Plan on your behalf, please ensure this business or individual has a licence to modify this specific plan or you will be subject to prosecution on the same level as the business or individual who modified or reproduced the plan.
For more details, do not hesitate to contact u by e-mail or by phone at 1-800-567-1413.
I agree to respect the conditions above to not reproduce, modify or build a model from Drummond House Plans without previously purchasing a complete house plan.











December 25
Lesley Smith
Hello,
Can I change the plan so it is reversed and the upstairs patio is on the other side?
Thanks,
Lesley