There are no shipping fees if you buy one of our 2 plan packages "PDF file format" or "5 sets of blueprints + PDF". Shipping charges may apply if you buy additional sets of blueprints.
House plan The Whitespire (2903)
Modern panoramic chalet house plan with private second floor master suite with ensuite, open concept
Other useful information on this plan
Soaring ceiling vacation retreat
Dramatic angles and soaring rooflines are the hallmark of this contemporary vacation home.
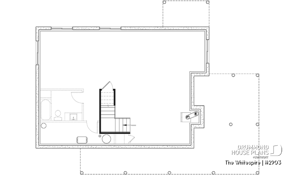
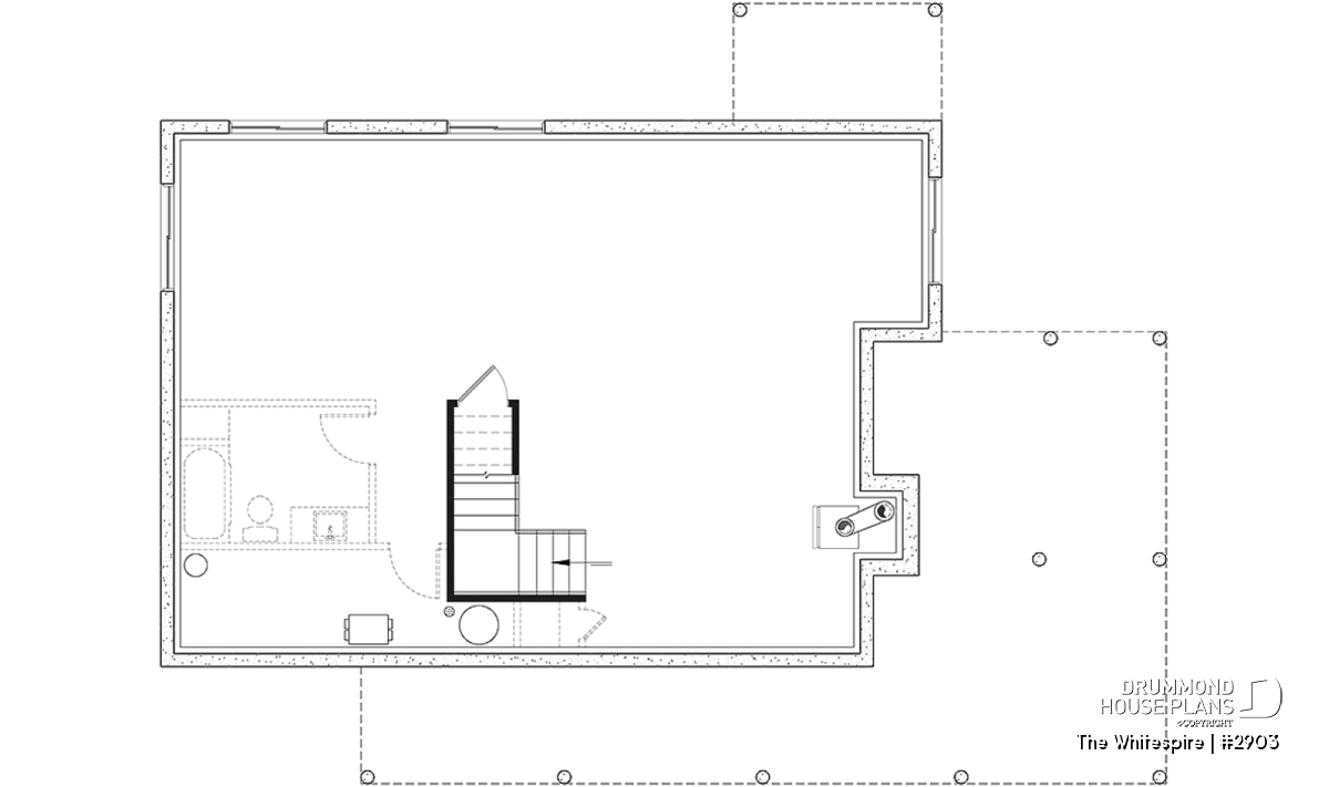
Drink in the views from any room thanks to a multitude of windows. An enormous wraparound deck is accessible from the front and from the living room. A soaring ceiling and fireplace set a dramatic tone in the light-soaked living room. The adjacent dining room and open access kitchen create a spacious living area. Two bedrooms share a bath and laundry and complete the main floor.
The master retreat commands the entire upstairs with a generous bedroom, walk-in closet and attached bathroom.
Distinctive elements
Family room with vaulted ceiling, several windows and fireplace. 2 bedrooms and bathroom/laundry room on 1st level. Master suite on 2nd floor.
Plan feature(s)
Fireplace, Mezzanine, Gound floor laundry room, Master suite upstairs, Warparound, Walk-in master bed., Lunch counter, Sloped ceiling
Plan architectural style(s)
. Cottage, chalet, cabin, . Vacation and waterfront, . Craftsman / Northwest, . Ski chalets, . Rustic, . Scandinavian, . Contemporary, . Modern / Design, . Mid-century, . Mountain
Similar plans
Previously Viewed Plans
Questions and comments
June 05
Debra
Would you be able to provide these plans to meet the climatic conditions in Terrace, B.C., such as snow load ratings?
June 05
Customer service
Good day and thank you for your interest in this plan.
Our plans are designed for a snow load of 75lbs. per sq.ft. but since the truss work will be done by a local manufacturer, you can rest assured that they will meet or exceed local requirement.
Please let me know if I can further assist you
Regards
Deb
Thank you for your comment! It must be approved before being put online, please allow a period of 24 hours.
Error with google reCaptcha! Try again
Here is a brief description of our different plan packages. Please select the plan package that suits your needs. You can change the package at the next step, if necessary.
PDF VERSION OF PLAN:
Complete digital version of plan (pdf format) sent by email (original plan format 18" x 24'' or 24" x 36'')
5 copies of plan + PDF:
Includes: 5 copies of plan, plan in PDF format (reduced size version), materials list.
Foundation type
Additional foundation types are available, a fee may apply. Please indicate your choice on the online order form, or to our customer service representative, when placing your house plan order.
If your desired foundation type is not available, please contact our customer service to receive your free plan modification quote.
Explanation of bonus space types
UNFINISHED BONUS ROOM
The bonus rooms are often planned above the garage and are accessible from the house. They are designed to be converted as an office, a laundry area, a bathroom, a library corner or even an additional bedroom for which homeowners must make sure to have a window that complies with current codes & standards.
STORAGE AREA
Often located above the garage, our storage areas are used only as storage and are usually accessible from the garage via a retractable staircase.
Do you like this plan but want it to be modified to suit your needs?
To add a garage, another bedroom, finish the basement or any other modification, click here and let us know about your desired changes and to get your free quote for the modification of your plan.
Conditions of use
Important copyright notice! Please take note of these copyright conditions before printing:
By printing this house plan, cottage or garage or the floorplan(s), you confirm being informed that every house plan on this website is the exclusive property of Drummond House
Plans and is protected by Canadian copyright law. You are aware that these prints cannot be used to build or even obtain a building permit. The graphic representations of these
models are offered by Drummond House Plans for the sole purpose of allowing you to notate modifications of a model and then take it to one of the Drummond House Plans Canadian dealers for
modification of the plan.
The purchase of a house plan, cottage or garage from Drummond House Plans is mandatory if you wish to build any of our models. The plan purchase allows you to build a single unit; you cannot resell or give your plan to anyone once the house, cottage or garage has been built. If you wish to build the same house, cottage or garage more than once, you need to obtain the licence to this effect. Please contact us for more details.
All plans from Drummond House Plans can only be modified by a licensed Drummond House Plan Canadian dealer. If any other business or individual with no affiliation to Drummond House Plans modifies a Drummond House Plan on your behalf, please ensure this business or individual has a licence to modify this specific plan or you will be subject to prosecution on the same level as the business or individual who modified or reproduced the plan.
For more details, do not hesitate to contact u by e-mail or by phone at 1-800-567-1413.
I agree to respect the conditions above to not reproduce, modify or build a model from Drummond House Plans without previously purchasing a complete house plan.












June 05
Debra
Would you be able to provide these plans to meet the climatic conditions in Terrace, B.C., such as snow load ratings?