There are no shipping fees if you buy one of our 2 plan packages "PDF file format" or "5 sets of blueprints + PDF". Shipping charges may apply if you buy additional sets of blueprints.
House plan Olympe (3992)
Modern Scandinavian house plan, cathedral ceiling w/exposed wood beams, open floor plan, outdoor kitchen
Virtual visit
Other useful information on this plan
Modern Scandinavian Bungalow Floor Plan with Cathedral Ceilings, 2 to 4 Bedrooms, and Covered Terrace
The OLYMPE floor plan (plan #3992) captivates at first glance with its elegant, timeless appeal. Whether you imagine it overlooking a lake or nestled at the foot of a ski mountain, this bungalow instantly evokes the cozy retreat you can’t wait to step into—summer or winter.
Its clean, Scandinavian-inspired façade stands out with its Nordic simplicity, allowing the materials and volumes to shine. Thoughtfully designed, this model sets itself apart from typical bungalows thanks to a large integrated garage-style door that opens directly from the family room onto the outdoor terrace. Created for nature lovers, this design blends modern comfort and warm simplicity, and can easily accommodate solar panels for an eco-conscious lifestyle.
Inside, the heart of the home makes a striking impression. The living room, kitchen, and dining area unfold within a bright, open-concept layout filled with natural light, thanks to oversized windows and a breathtaking 16-foot cathedral ceiling. Exposed wood beams add warmth and character, enhancing the Scandinavian charm of the space. A garage-style door opens onto the expansive covered terrace, perfectly designed for an outdoor kitchen and lounge area—ideal for family meals or evenings with friends. Whether in the sun or the snow, this protected terrace will undoubtedly become everyone’s favorite gathering place.
The primary bedroom is a true retreat, offering private access to the terrace and direct connection to a stylish full bathroom featuring a separate shower and bathtub. With its cozy fireplace for winter evenings and its covered terrace for summer relaxation, the OLYMPE plan brings together everything needed for a comfortable, inspiring, and nature-focused lifestyle.
---
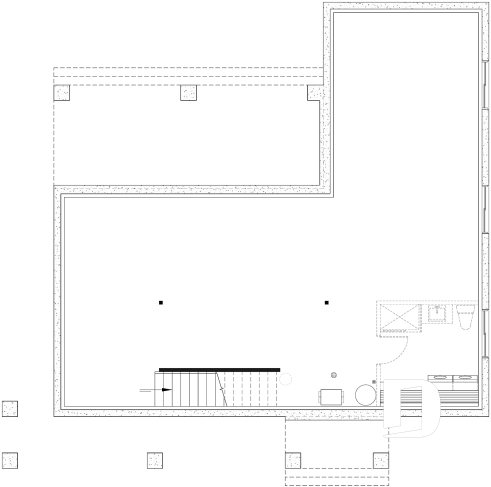
*Optional Finished Basement ($):
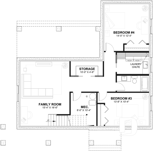
Two bright and comfortable secondary bedrooms—perfect for kids, guests, or even a home office.
A spacious family room or game room, ideal for relaxing, movie nights, or indoor play.
A full bathroom and functional laundry room, complete with a smart laundry chute connected directly to the main-floor primary bedroom, making daily tasks easier than ever.
*If you wish to purchase the plan with the finished basement as shown on this page, please select this option in the shopping cart under “Select Your Foundation.” If you do not select this option, you will automatically receive the unfinished basement at no additional cost.
---
IMPORTANT:
This house plan is part of a 3 house plan collection. Here are the distinctive features for each of them:
Plan # 3992: base model with 1212 heated square feet, no garage, laundry located in unfinished basement (OPTIONAL FINISHED BASEMENT PLAN OFFERED AT EXTRA COSTS)..
Plan # 3992-V1: exact same floor plan as base model # 3992, but with garage.
Plan # 3992-V2: enlarged floor plans to 1604 heated square feet, with garage and laundry located on main floor (not in basement like the two other versions).
Distinctive elements
Modern Scandinavian-Style Home, Bright and Refined.
Convenient interior garage door providing direct access to the large covered rear terrace.
Terrace designed to accommodate an outdoor kitchen and lounge area, perfect for enjoying sunny days.
Approx. 16' cathedral ceilings in the living room, kitchen, and dining area, with exposed beams adding a warm Nordic touch.
9' ceilings in the bedrooms and bathroom for comfort and privacy.
Bright living room with a cozy fireplace, ideal for creating a soft and calming atmosphere.
Modern kitchen with a large central island, perfect for cooking and entertaining.
Primary bedroom with private access to the rear terrace and direct connection to the bathroom.
Full bathroom featuring a separate tub and large shower for optimal comfort.
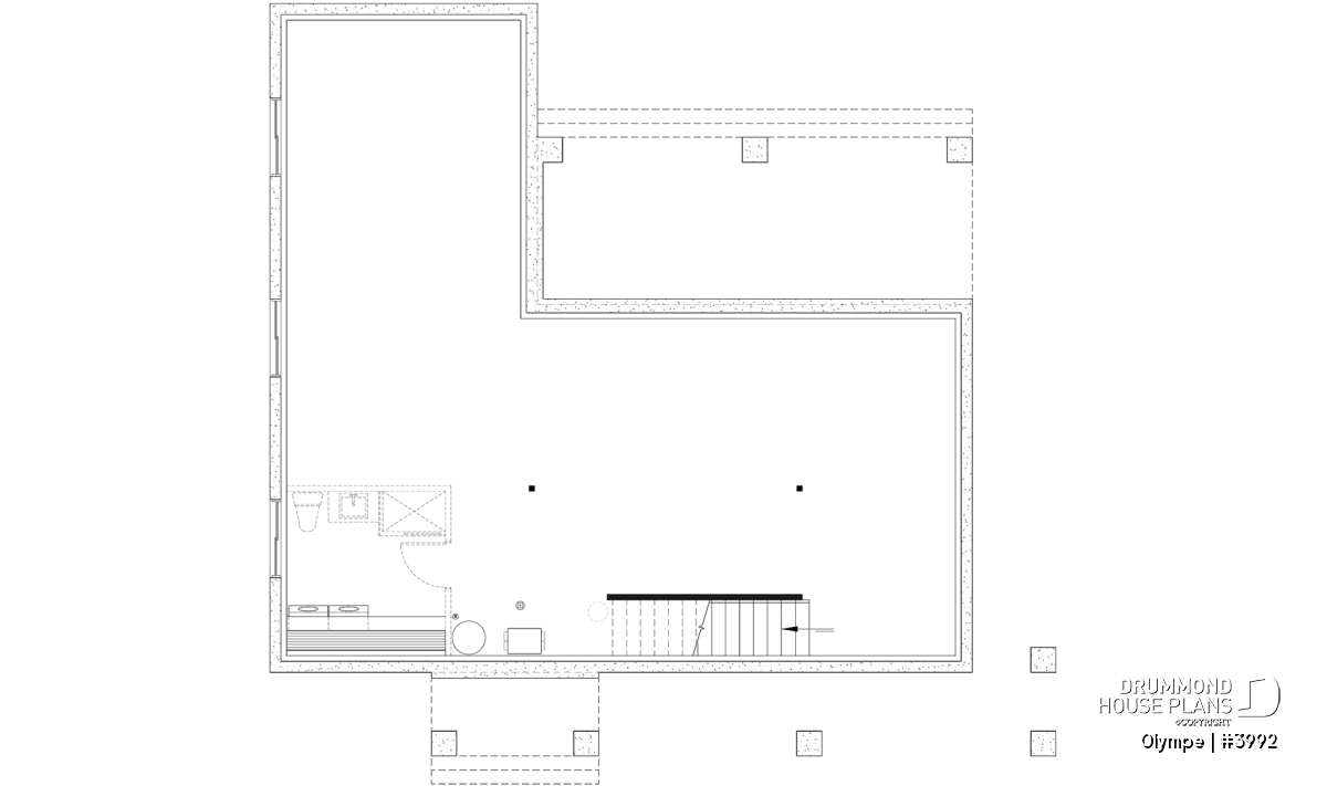
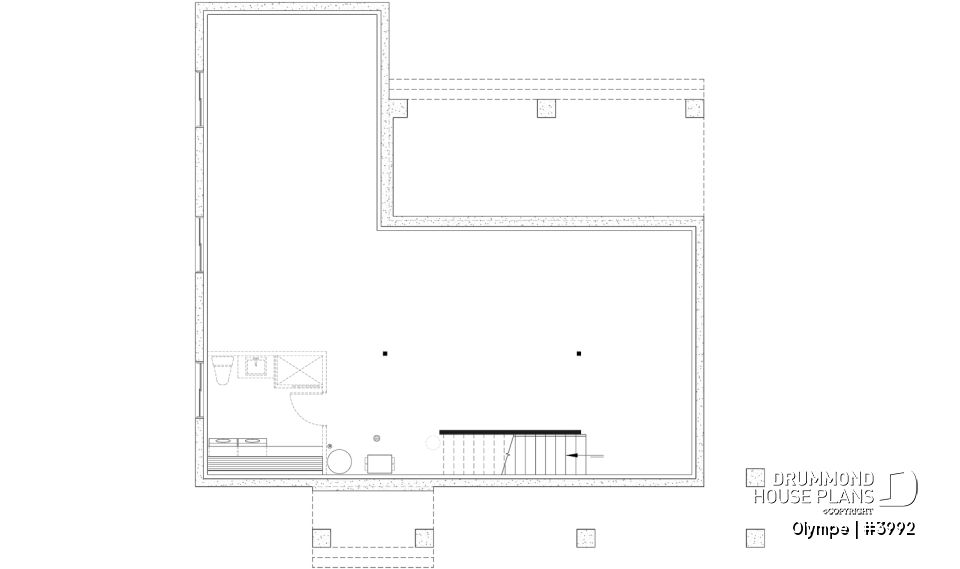
Unfinished basement ready to be customized according to your present or future needs.
---
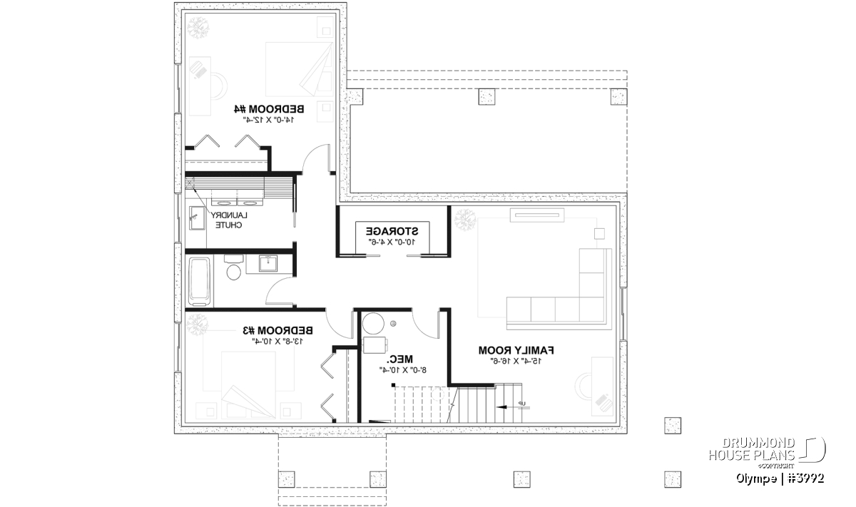
*Finished Basement (optional $):
2 secondary bedrooms.
Family room or playroom.
Bathroom and laundry room with a convenient laundry chute from the main-floor primary bedroom.
---
*If you wish to purchase the plan with the finished basement as shown on this plan’s page, please select this option in the shopping cart under the “Select Your Foundation” section. If you do not select this option, you will receive the unfinished basement at no additional cost.
Plan feature(s)
Panoramic view, Fireplace, Island, Open floor layout, Cathedral ceiling, Narrow lot, Deck, Laundry chute, Ceiling over 8'
Plan architectural style(s)
. Scandinavian, . Modern / Design, . Modern rustic, . Country, . Contemporary, . Vacation and waterfront, . Transitional, . Cottage, chalet, cabin, . Craftsman / Northwest, . Cape Cod, . L-Shaped, . Farmhouse, Modern farmhouse, Modern Craftsman
Similar plans
Previously Viewed Plans
Thank you for your comment! It must be approved before being put online, please allow a period of 24 hours.
Error with google reCaptcha! Try again
Here is a brief description of our different plan packages. Please select the plan package that suits your needs. You can change the package at the next step, if necessary.
PDF VERSION OF PLAN:
Complete digital version of plan (pdf format) sent by email (original plan format 18" x 24'' or 24" x 36'')
5 copies of plan + PDF:
Includes: 5 copies of plan, plan in PDF format (reduced size version), materials list.
Foundation type
Additional foundation types are available, a fee may apply. Please indicate your choice on the online order form, or to our customer service representative, when placing your house plan order.
If your desired foundation type is not available, please contact our customer service to receive your free plan modification quote.
Explanation of bonus space types
UNFINISHED BONUS ROOM
The bonus rooms are often planned above the garage and are accessible from the house. They are designed to be converted as an office, a laundry area, a bathroom, a library corner or even an additional bedroom for which homeowners must make sure to have a window that complies with current codes & standards.
STORAGE AREA
Often located above the garage, our storage areas are used only as storage and are usually accessible from the garage via a retractable staircase.
Do you like this plan but want it to be modified to suit your needs?
To add a garage, another bedroom, finish the basement or any other modification, click here and let us know about your desired changes and to get your free quote for the modification of your plan.
Conditions of use
Important copyright notice! Please take note of these copyright conditions before printing:
By printing this house plan, cottage or garage or the floorplan(s), you confirm being informed that every house plan on this website is the exclusive property of Drummond House
Plans and is protected by Canadian copyright law. You are aware that these prints cannot be used to build or even obtain a building permit. The graphic representations of these
models are offered by Drummond House Plans for the sole purpose of allowing you to notate modifications of a model and then take it to one of the Drummond House Plans Canadian dealers for
modification of the plan.
The purchase of a house plan, cottage or garage from Drummond House Plans is mandatory if you wish to build any of our models. The plan purchase allows you to build a single unit; you cannot resell or give your plan to anyone once the house, cottage or garage has been built. If you wish to build the same house, cottage or garage more than once, you need to obtain the licence to this effect. Please contact us for more details.
All plans from Drummond House Plans can only be modified by a licensed Drummond House Plan Canadian dealer. If any other business or individual with no affiliation to Drummond House Plans modifies a Drummond House Plan on your behalf, please ensure this business or individual has a licence to modify this specific plan or you will be subject to prosecution on the same level as the business or individual who modified or reproduced the plan.
For more details, do not hesitate to contact u by e-mail or by phone at 1-800-567-1413.
I agree to respect the conditions above to not reproduce, modify or build a model from Drummond House Plans without previously purchasing a complete house plan.

































