There are no shipping fees if you buy one of our 2 plan packages "PDF file format" or "5 sets of blueprints + PDF". Shipping charges may apply if you buy additional sets of blueprints.
House plan Balnea (6122)
Modern Scandinavian Home Design – Sunroom, Fireplace, Luxurious Primary Suite & Optional Finished Basement
Other useful information on this plan
Modern Scandinavian-Inspired House Plan with Stone Façade, Stunning Fireplace, Luxurious Primary Suite and Finished Basement for Year-Round Comfort
This Scandinavian-inspired home with a partial stone façade blends authentic charm with modern design. Its noble, timeless exterior harmonizes perfectly with a bright, spacious interior. From the moment you arrive, a large front entry with a 10'4" ceiling creates an impressive sense of welcome. The garage and front entrances lead directly into a generous mudroom with a built-in bench, ideal for keeping coats and shoes organized. A convenient powder room near the living area adds comfort for guests.
A Functional and Inviting Kitchen
The heart of this home is its modern kitchen with a large island that even includes space for an integrated wine cellar. A spacious pantry and well-planned back kitchen with a dedicated coffee nook make storage and organization effortless. Combined with abundant windows, these features flood the living areas with natural light and create a warm, welcoming space for family meals and entertaining.
A STÛV Fireplace as the Centerpiece
The spacious living room is enhanced by a 16' cathedral ceiling and an open atmosphere that flows into the dining room, which also features an impressive 18' cathedral ceiling. At the center of the living room, at the front of the house, stands a stunning fireplace, visible from both the dining room and the living room. The proposed STÛV s21 wood-burning fireplace becomes the true focal point of the home: its sleek design and high performance add warmth, Scandinavian ambiance, and timeless style, transforming every moment into a cozy, refined experience.
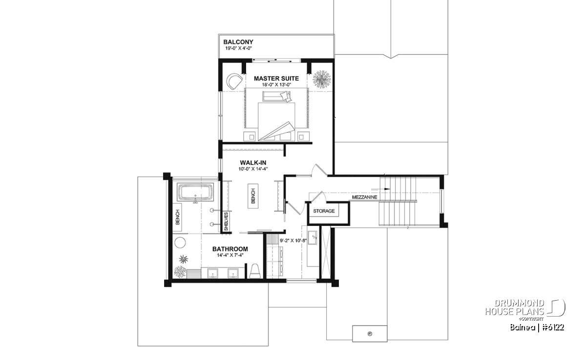
A Private Upper Floor and Versatile Basement
The entire upper floor is dedicated to the primary suite, offering privacy and comfort. It features an oversized walk-in closet with a built-in bench, a bathroom with separate sinks, tub, and shower, and a private balcony perfect for relaxing moments. A laundry room and generous storage space complete this level.
Finally, the oversized single garage, with its 11'10" height, offers plenty of room for storage or a workshop.
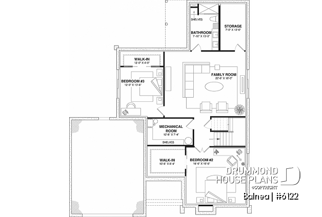
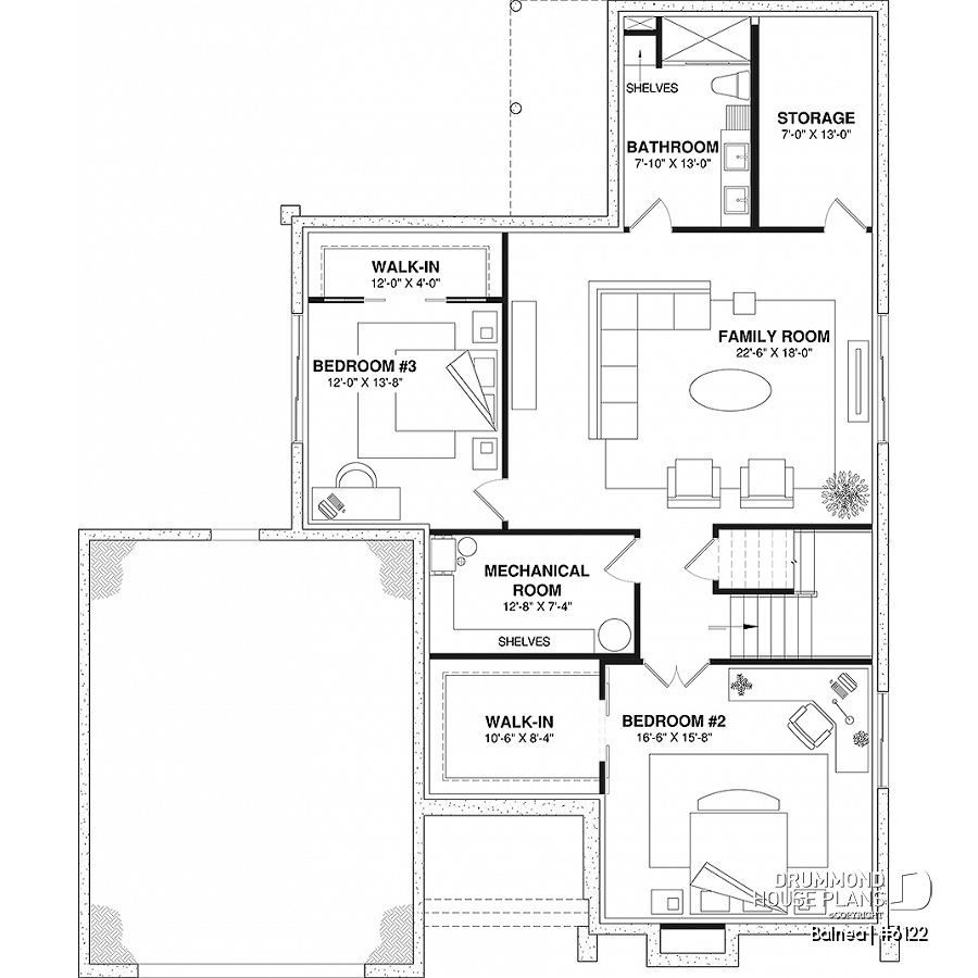
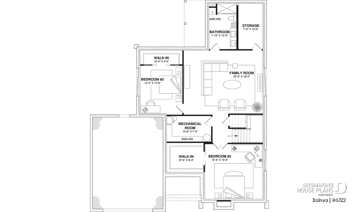
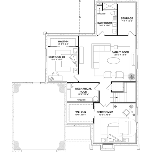
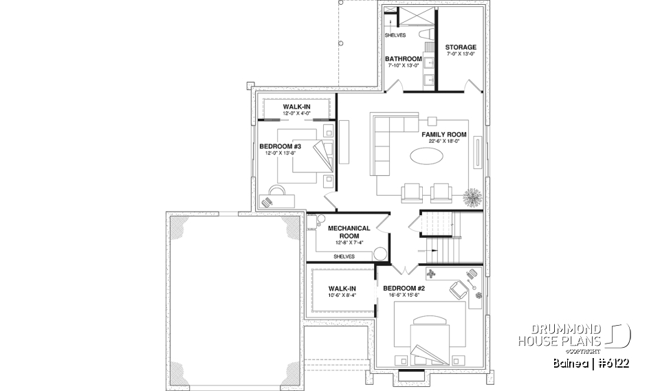
*Optional finished basement:
The finished basement includes two bedrooms with walk-in closets, a large shower room with double vanity and a spacious family room ideal for leisure or entertainment. It also houses a storage area and a mechanical room for added convenience.
This Scandinavian-inspired plan combines light, functionality, and warmth to create a welcoming home designed to adapt to your family’s lifestyle.
Distinctive elements
Scandinavian-inspired home with a stone façade, bringing warmth and authenticity.
Large front entry with a 10'4" ceiling, and garage entry leading to a spacious mudroom with built-in bench.
Convenient powder room near the living room for guests.
Modern kitchen with a large island that includes space for an integrated wine cellar.
Generous pantry and functional back kitchen with a planned coffee nook.
Abundant windows providing exceptional natural light throughout all living areas, especially in the sunroom.
18' cathedral ceiling in the dining room and great room.
Large living room with a 16' cathedral ceiling and a stunning central fireplace.
*Suggested fireplace: STÛV s21 wood-burning model.
Sunroom at the rear of the home near the dining area to maximize light and views.
Entire upper floor dedicated to the primary suite for added privacy.
Private balcony off the primary suite, perfect for relaxing moments.
Primary suite includes an oversized walk-in closet with built-in bench and a bathroom with separate sinks, tub, and shower.
Finished basement with two bedrooms, each featuring a walk-in closet.
Family room in the basement, ideal for leisure and entertaining.
Storage space and mechanical room integrated into the basement for added convenience.
Oversized single garage with 11'10" height, perfect for storage or a workshop area.
Plan feature(s)
Butler's pantry, Balcony 2nd floor, Coffee bar, Split bedrooms, Wine cellar, Fireplace, Pantry, Island, Cathedral ceiling, Second floor laundry room, Master suite upstairs, Panoramic view, Sunroom, Separate bath and shower, Mud room, Bench seat(s), Walk-in master bed., Arch, Sliding barn door(s), Mezzanine
Plan architectural style(s)
. Scandinavian, . Transitional, . Modern / Design, . Contemporary
Similar plans
Previously Viewed Plans
Thank you for your comment! It must be approved before being put online, please allow a period of 24 hours.
Error with google reCaptcha! Try again
Here is a brief description of our different plan packages. Please select the plan package that suits your needs. You can change the package at the next step, if necessary.
PDF VERSION OF PLAN:
Complete digital version of plan (pdf format) sent by email (original plan format 18" x 24'' or 24" x 36'')
5 copies of plan + PDF:
Includes: 5 copies of plan, plan in PDF format (reduced size version), materials list.
Foundation type
Additional foundation types are available, a fee may apply. Please indicate your choice on the online order form, or to our customer service representative, when placing your house plan order.
If your desired foundation type is not available, please contact our customer service to receive your free plan modification quote.
Explanation of bonus space types
UNFINISHED BONUS ROOM
The bonus rooms are often planned above the garage and are accessible from the house. They are designed to be converted as an office, a laundry area, a bathroom, a library corner or even an additional bedroom for which homeowners must make sure to have a window that complies with current codes & standards.
STORAGE AREA
Often located above the garage, our storage areas are used only as storage and are usually accessible from the garage via a retractable staircase.
Do you like this plan but want it to be modified to suit your needs?
To add a garage, another bedroom, finish the basement or any other modification, click here and let us know about your desired changes and to get your free quote for the modification of your plan.
Conditions of use
Important copyright notice! Please take note of these copyright conditions before printing:
By printing this house plan, cottage or garage or the floorplan(s), you confirm being informed that every house plan on this website is the exclusive property of Drummond House
Plans and is protected by Canadian copyright law. You are aware that these prints cannot be used to build or even obtain a building permit. The graphic representations of these
models are offered by Drummond House Plans for the sole purpose of allowing you to notate modifications of a model and then take it to one of the Drummond House Plans Canadian dealers for
modification of the plan.
The purchase of a house plan, cottage or garage from Drummond House Plans is mandatory if you wish to build any of our models. The plan purchase allows you to build a single unit; you cannot resell or give your plan to anyone once the house, cottage or garage has been built. If you wish to build the same house, cottage or garage more than once, you need to obtain the licence to this effect. Please contact us for more details.
All plans from Drummond House Plans can only be modified by a licensed Drummond House Plan Canadian dealer. If any other business or individual with no affiliation to Drummond House Plans modifies a Drummond House Plan on your behalf, please ensure this business or individual has a licence to modify this specific plan or you will be subject to prosecution on the same level as the business or individual who modified or reproduced the plan.
For more details, do not hesitate to contact u by e-mail or by phone at 1-800-567-1413.
I agree to respect the conditions above to not reproduce, modify or build a model from Drummond House Plans without previously purchasing a complete house plan.



















