There are no shipping fees if you buy one of our 2 plan packages "PDF file format" or "5 sets of blueprints + PDF". Shipping charges may apply if you buy additional sets of blueprints.
House plan Hubert 3 (3142-V2)
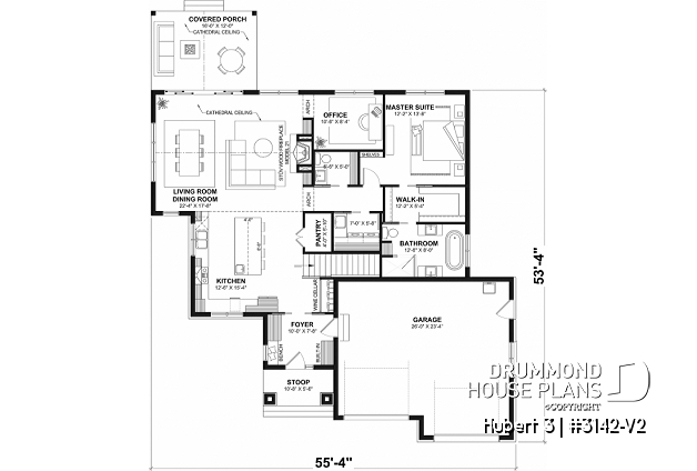
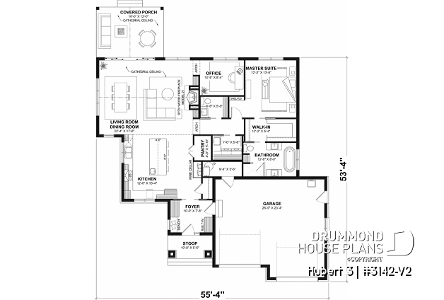
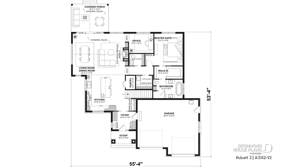
Single-story home with double garage, spacious main-floor primary suite, STÛV wood-burning fireplace, and den
Other useful information on this plan
HUBERT 3 House Plan (#3142-V2) – Single-Story Ranch with STÛV Fireplace and Double Garage, Timeless Comfort and Style
The HUBERT 3 house plan (#3142-V2) presents a warm, refined interpretation of the modern American ranch home. Designed for today’s families, this single-story layout strikes a thoughtful balance between everyday functionality, visual appeal, and long-term comfort. As part of the STÛV house plan Collection, known for its beautifully crafted fireplaces, HUBERT 3 delivers a living environment that feels both welcoming and enduring.
From the moment you arrive, the covered front porch sets a friendly, practical tone—perfect for relaxed ranch-style living. At the rear, a spacious covered patio extends the main living areas outdoors. This space is ideal for an outdoor dining set and lounge seating, creating a natural gathering spot for family time and casual entertaining across the seasons.
Bright, Well-Planned Ranch Architecture
Inside, the main level offers a flowing, open layout designed for effortless living. Nine-foot ceilings throughout the primary living spaces enhance the home’s airy feel, while the cathedral ceiling in the living and dining areas rises to an impressive 16 feet 10 inches. Large rear windows flood the interior with natural light, highlighting the clean lines and inviting proportions typical of a well-designed ranch home.
The entry vestibule includes a built-in bench and integrated storage, making daily routines more organized. The kitchen—truly the heart of the home—features a generous central island, walk-in pantry, and wine storage. Open to the dining and living areas, it encourages conversation and connection while maintaining excellent sightlines.
STÛV Wood Fireplace at the Heart of the Home
In the living room, the STÛV 21.1-85 wood-burning fireplace serves as a striking focal point. Combining performance, refined design, and a warm ambiance, it integrates seamlessly into the open ranch layout. This signature element of the STÛV Collection adds character and comfort, making the living area especially inviting during cooler months.
Everyday Comfort and Privacy
The primary suite, located on the main floor, offers a peaceful retreat. It includes a private bathroom with dual vanities, a freestanding soaking tub, and a large glass-enclosed shower. Elegant ceiling arches guide the eye toward the bedroom and the rear home office, which enjoys views of the backyard and is ideal for remote work. A discreet powder room and a practical laundry room with utility sink complete this level.
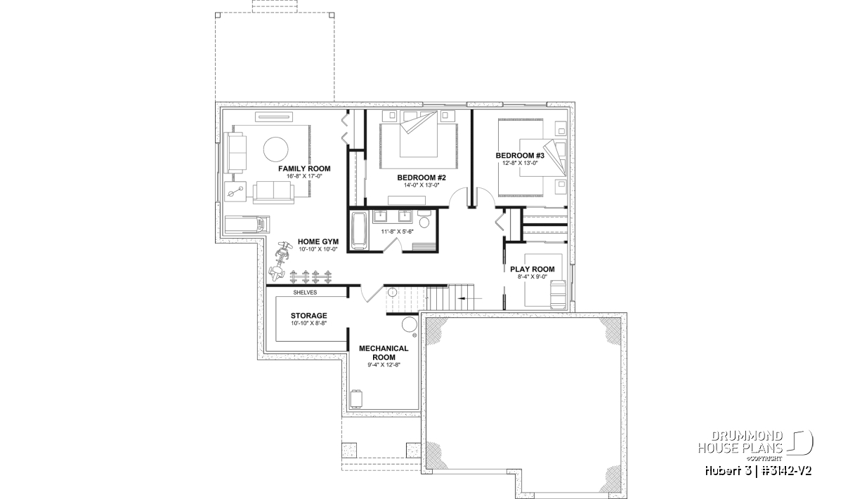
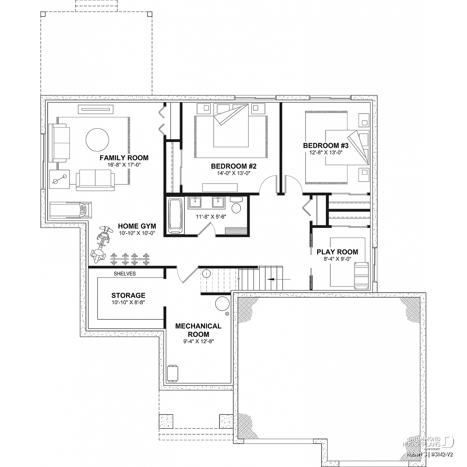
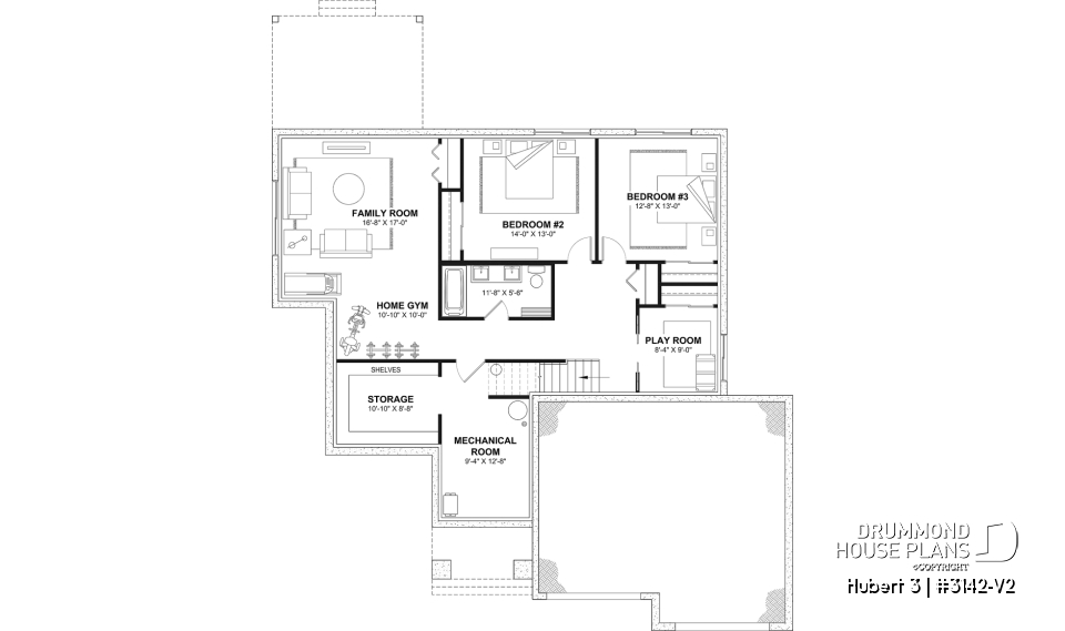
A Flexible Basement for Future Needs
The unfinished basement is included in the base plan, providing excellent flexibility. As an option, it can be finished to include two well-sized secondary bedrooms, a full bathroom with dual sinks, a bright family room, a home gym, a game room with pocket door, and generous storage with a functional mechanical room.
With its double garage offering direct access to the mudroom area, the HUBERT 3 house plan (#3142-V2) delivers a balanced, welcoming, and adaptable ranch-style home—perfectly suited to contemporary American living.
Distinctive elements
Spacious single-story house plan with a double garage, designed for everyday comfort.
Modern rustic style blending warmth, elegance, and timeless appeal.
Large covered rear terrace, perfect for creating an inviting outdoor dining and lounge area.
Covered front porch, both practical and welcoming.
9-foot ceilings throughout the main floor, with a cathedral ceiling in the dining room and living room reaching 16'10".
Generous rear windows providing beautiful natural light.
Functional vestibule with built-in bench and storage.
Welcoming kitchen with a large central island, walk-in pantry, and wine cellar.
Open-concept kitchen flowing into the dining and living areas, enhanced by a cathedral ceiling.
**STÛV wood-burning fireplace integrated into the living room for a warm ambiance.
**STÛV wood-burning fireplace model 21.1-85.
Elegant ceiling arches leading to the primary bedroom and the home office.
Primary suite on the main floor with a private bathroom featuring dual vanities, a freestanding tub, and a large glass shower.
Home office located at the rear with a view of the backyard.
Powder room discreetly set back.
Practical laundry room with utility sink.
Unfinished basement included in the base plan.
Spacious double garage with direct access to the mudroom area.
---
Optional finished basement including two well-sized secondary bedrooms.
Full bathroom with tub-shower combination and double vanity.
Large, bright family room with an oversized window.
Dedicated home gym area.
Game room with pocket door, ideal for hiding the mess.
Large storage area and functional mechanical room.
---
*If you wish to purchase the finished basement plan, as presented on this plan page, please select this option in the shopping cart, in the "Selection of foundation type" section. If you do not select this option, you will receive the unfinished full basement option, at no extra charge.
Plan feature(s)
Bench seat(s), Wine cellar, Entrance hall, Built-ins, Island, Open floor layout, Pantry, Gound floor laundry room, Wash tank, Master suite on main, Separate bath and shower, Double sinks, Arch, Panoramic view, Shelves, Fireplace, Cathedral ceiling, Ceiling over 8', Game room, Builder
Plan architectural style(s)
. Transitional, Trending, . Modern rustic, . Contemporary, Modern Craftsman, . Ranch, Modern farmhouse
Similar plans
Previously Viewed Plans
Thank you for your comment! It must be approved before being put online, please allow a period of 24 hours.
Error with google reCaptcha! Try again
Here is a brief description of our different plan packages. Please select the plan package that suits your needs. You can change the package at the next step, if necessary.
PDF VERSION OF PLAN:
Complete digital version of plan (pdf format) sent by email (original plan format 18" x 24'' or 24" x 36'')
5 copies of plan + PDF:
Includes: 5 copies of plan, plan in PDF format (reduced size version), materials list.
Foundation type
Additional foundation types are available, a fee may apply. Please indicate your choice on the online order form, or to our customer service representative, when placing your house plan order.
If your desired foundation type is not available, please contact our customer service to receive your free plan modification quote.
Explanation of bonus space types
UNFINISHED BONUS ROOM
The bonus rooms are often planned above the garage and are accessible from the house. They are designed to be converted as an office, a laundry area, a bathroom, a library corner or even an additional bedroom for which homeowners must make sure to have a window that complies with current codes & standards.
STORAGE AREA
Often located above the garage, our storage areas are used only as storage and are usually accessible from the garage via a retractable staircase.
Do you like this plan but want it to be modified to suit your needs?
To add a garage, another bedroom, finish the basement or any other modification, click here and let us know about your desired changes and to get your free quote for the modification of your plan.
Conditions of use
Important copyright notice! Please take note of these copyright conditions before printing:
By printing this house plan, cottage or garage or the floorplan(s), you confirm being informed that every house plan on this website is the exclusive property of Drummond House
Plans and is protected by Canadian copyright law. You are aware that these prints cannot be used to build or even obtain a building permit. The graphic representations of these
models are offered by Drummond House Plans for the sole purpose of allowing you to notate modifications of a model and then take it to one of the Drummond House Plans Canadian dealers for
modification of the plan.
The purchase of a house plan, cottage or garage from Drummond House Plans is mandatory if you wish to build any of our models. The plan purchase allows you to build a single unit; you cannot resell or give your plan to anyone once the house, cottage or garage has been built. If you wish to build the same house, cottage or garage more than once, you need to obtain the licence to this effect. Please contact us for more details.
All plans from Drummond House Plans can only be modified by a licensed Drummond House Plan Canadian dealer. If any other business or individual with no affiliation to Drummond House Plans modifies a Drummond House Plan on your behalf, please ensure this business or individual has a licence to modify this specific plan or you will be subject to prosecution on the same level as the business or individual who modified or reproduced the plan.
For more details, do not hesitate to contact u by e-mail or by phone at 1-800-567-1413.
I agree to respect the conditions above to not reproduce, modify or build a model from Drummond House Plans without previously purchasing a complete house plan.
















