There are no shipping fees if you buy one of our 2 plan packages "PDF file format" or "5 sets of blueprints + PDF". Shipping charges may apply if you buy additional sets of blueprints.
House plan Saint-Georges (3061)
Buy this planFrom 2175$ See prices and options
House plan Saint-Georges (3061)
Intergenerational home plan featuring 3 bedrooms and a covered terrace for the main unit.
Virtual visit
Buy this plan
Special: Free shipping!
Need help?
Come see us
View the size of the rooms and height of the ceilings
| 1st level | ||
|---|---|---|
| Rooms | Sizes | Ceiling |
| Foyer | 7'4" x 6'4" | ~ 9'0" |
| Home office | 11'0" x 8'0" | ~ 9'0" |
| Closet | 2'6" x 2'0" | ~ 9'0" |
| Master suite | 13'0" x 12'10" | ~ 9'0" |
| Walk-in closet | 9'4" x 4'6" | ~ 9'0" |
| Full bathroom | 9'4" x 11'10" | ~ 9'0" |
| Enclosed toilet space | 2'8" x 5'6" | ~ 9'0" |
| Linen | 1'4" x 1'6" | N/A |
| Shower | 6'0" x 3'0" | N/A |
| Covered deck | 18'0" x 12'0" | ~ 8'10" |
| Foyer | 6'8" x 6'0" | ~ 9'0" |
| Closet | 3'4" x 2'0" | ~ 9'0" |
| Bedroom | 9'0" x 11'0" | ~ 9'0" |
| Walk-in closet | 5'4" x 3'6" | ~ 9'0" |
| Mechanical room | 4'4" x 8'4" | ~ 9'0" |
| Kitchen | 8'4" x 12'8" | ~ 9'0" |
| Mud room | 10'0" x 5'10" | ~ 9'0" |
| Kitchen | 10'4" x 15'2" | ~ 9'0" |
| Kitchen island | 8'6" x 3'2" | N/A |
| Pantry | 5'8" x 6'0" | ~ 9'0" |
| Terrace | 21'4" x 8'0" | N/A |
| Dining room | 11'4" x 9'8" | ~ 9'0" |
| Laundry space | 3'6" x 3'2" | ~ 9'0" |
| Linen | 2'8" x 2'2" | ~ 9'0" |
| Bathroom | 8'0" x 8'0" | ~ 9'0" |
| Linen | 1'6" x 1'6" | N/A |
| Living room | 9'4" x 10'6" | ~ 9'0" |
| Porch | 4'0" x 3'10" | N/A |
| Covered porch | 8'10" x 4'0" | ~ 9'4" |
| Powder room | 4'0" x 7'4" | ~ 9'0" |
| Laundry room | 8'0" x 8'0" | ~ 9'0" |
| Closet | 2'6" x 1'10" | ~ 9'0" |
| Living room | 14'0" x 16'10" | ~ 9'0" |
| 2nd level | ||
|---|---|---|
| Rooms | Sizes | Ceiling |
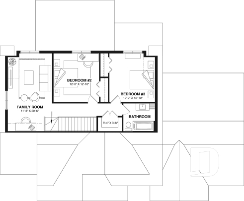
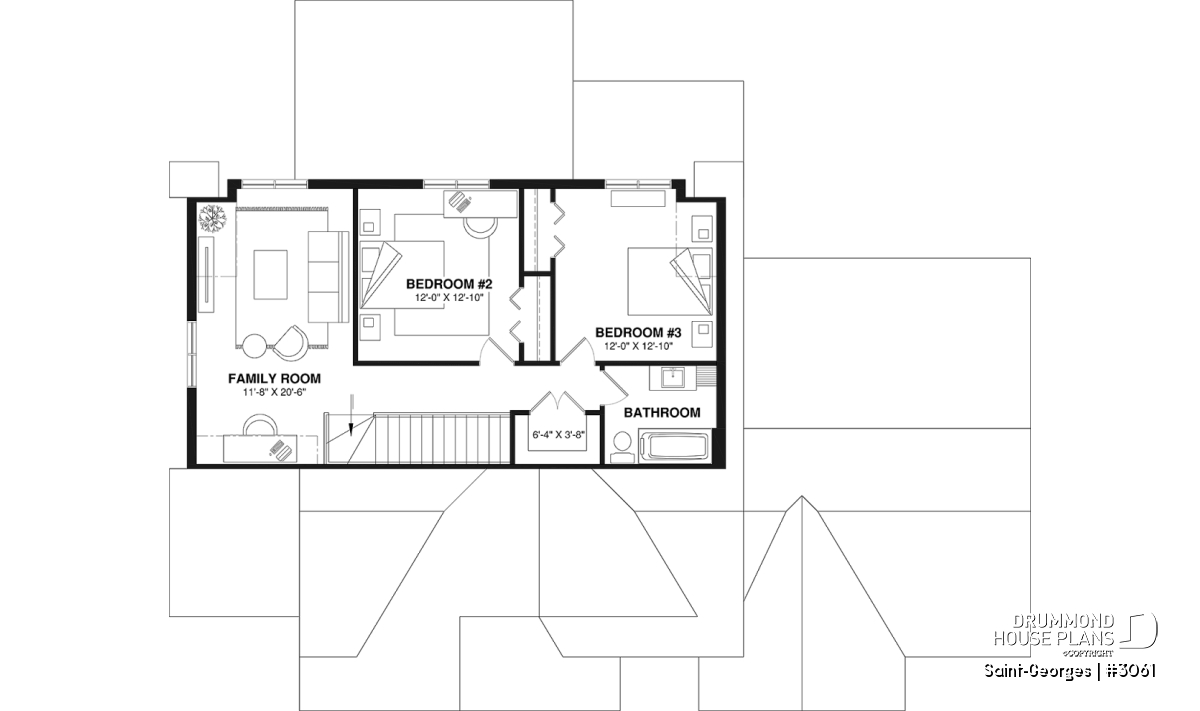
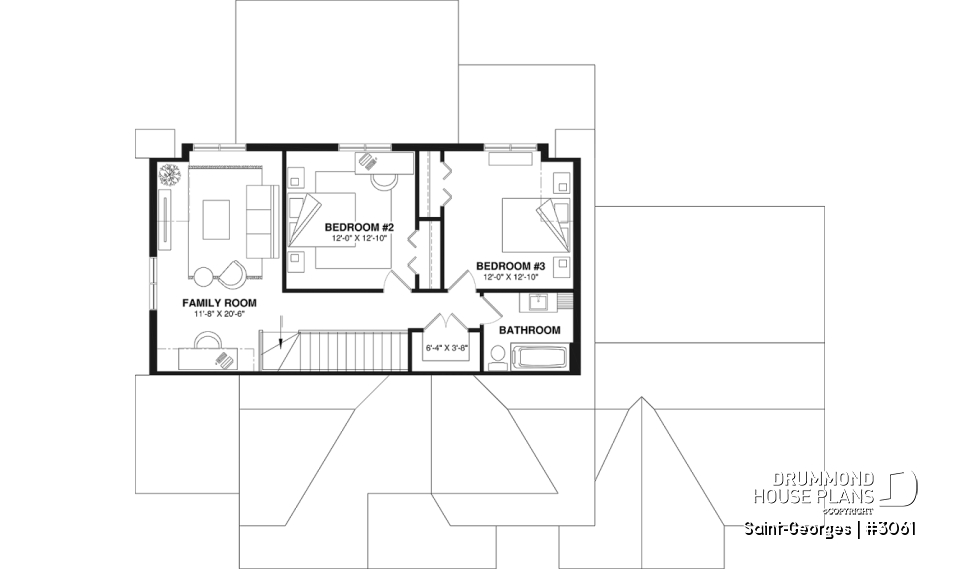
| Bedroom | 12'0" x 12'10" | ~ 8'0" |
| Closet | 6'4" x 2'0" | ~ 8'0" |
| Bathroom | 8'4" x 7'4" | ~ 8'0" |
| Linen | 1'6" x 1'6" | N/A |
| Storage | 6'4" x 3'8" | ~ 8'0" |
| Bedroom | 12'0" x 12'10" | ~ 8'0" |
| Closet | 6'2" x 2'0" | ~ 8'0" |
| Great room or Family room | 11'8" x 20'6" | ~ 8'0" |
General specifications
| Total living area | 2925 sq.ft. |
| 1st level | 2089 sq.ft. |
| 2nd level | 836 sq.ft. |
| Width | 61'4" |
| Depth | 44'2" |
| Ridge height from top of foundation | 26'11" |
| Exterior wall | 2 X 6 |
| Foundation type included in the plan | Floating Slab |
| Other available foundations (a fee may apply) | Unfinished Basement, Crawl space, Monolithic Slab |
| Builder price code | MC |
Rooms specifications
| Bedroom(s) | 3, 4 |
| Full baths | 3 |
| Half baths | 1 |
| Garage type | - |
| Living bonus space | - |
| Bonus storage | - |
| Covered porch area | 48 sq.ft. |
| Unit 2 (In-Law) | Unit 1 (Main) | |
| Total living area | 640 sq.ft. | 2288 sq.ft. |
| 1st level | 640 sq.ft. | 1452 sq.ft. |
| 2nd level | 836 sq.ft. | |
| Width | 22' 0" | 39' 4" |
| Depth | 31' 0" | 44' 2" |
| Ridge height from top of foundation | 26' 11" | 26' 11" |
| Exterior wall | 2 X 6 | 2 X 6 |
| Foundation type | Floating Slab | Floating Slab |
| Bedroom(s) | 1 | 3 |
| Full baths | 1 | 2 |
| Half baths | - | 1 |
| Garage type | - | - |
| Living bonus space | - | - |
| Bonus storage | - | - |
General specifications
| Total living area | 2925 sq.ft. |
| 1st level | 2089 sq.ft. |
| 2nd level | 836 sq.ft. |
| Width | 61'4" |
| Depth | 44'2" |
| Ridge height from top of foundation | 26'11" |
| Exterior wall | 2 X 6 |
| Foundation type included in the plan | Floating Slab i |
| Other available foundations (a fee may apply) | Unfinished Basement, Crawl space, Monolithic Slab |
| Builder price code | MC |
Rooms specifications
| Bedroom(s) | 3, 4 |
| Full baths | 3 |
| Half baths | 1 |
| Garage type | - |
| Living bonus space | - i |
| Bonus storage | - i |
| Covered porch area | 48 sq.ft. |
Units specifications
| Unit 2 (In-Law) | Unit 1 (Main) | |
| Total living area | 640 sq.ft. | 2288 sq.ft. |
| 1st level | 640 sq.ft. | 1452 sq.ft. |
| 2nd level | 836 sq.ft. | |
| Width | 22' 0" | 39' 4" |
| Depth | 31' 0" | 44' 2" |
| Ridge height from top of foundation | 26' 11" | 26' 11" |
| Exterior wall | 2 X 6 | 2 X 6 |
| Foundation type | Floating Slab | Floating Slab |
| Bedroom(s) | 1 | 3 |
| Full baths | 1 | 2 |
| Half baths | - | 1 |
| Garage type | - | - |
| Living bonus space | - | - |
| Bonus storage | - | - |
Kitchen
Photos represent a modified version of the original plan and are not available for sale. We invite you to get your free plan modification cost estimate if you would like any changes to the original plan.
Half bath
Photos represent a modified version of the original plan and are not available for sale. We invite you to get your free plan modification cost estimate if you would like any changes to the original plan.
Bathroom
Photos represent a modified version of the original plan and are not available for sale. We invite you to get your free plan modification cost estimate if you would like any changes to the original plan.
Bathroom
Photos represent a modified version of the original plan and are not available for sale. We invite you to get your free plan modification cost estimate if you would like any changes to the original plan.
Kitchen
Photos represent a modified version of the original plan and are not available for sale. We invite you to get your free plan modification cost estimate if you would like any changes to the original plan.
Home office
Photos represent a modified version of the original plan and are not available for sale. We invite you to get your free plan modification cost estimate if you would like any changes to the original plan.
Living room
Photos represent a modified version of the original plan and are not available for sale. We invite you to get your free plan modification cost estimate if you would like any changes to the original plan.
Dining room
Photos represent a modified version of the original plan and are not available for sale. We invite you to get your free plan modification cost estimate if you would like any changes to the original plan.
Dining room
Photos represent a modified version of the original plan and are not available for sale. We invite you to get your free plan modification cost estimate if you would like any changes to the original plan.
Pantry
Photos represent a modified version of the original plan and are not available for sale. We invite you to get your free plan modification cost estimate if you would like any changes to the original plan.
Sitting room
Photos represent a modified version of the original plan and are not available for sale. We invite you to get your free plan modification cost estimate if you would like any changes to the original plan.
Sitting room
Photos represent a modified version of the original plan and are not available for sale. We invite you to get your free plan modification cost estimate if you would like any changes to the original plan.
Other useful information on this plan
Together, yet with space for everyone – Single-Story Intergenerational Farmhouse-Style Home
The SAINT-GEORGES house plan (#3061) is a beautifully designed intergenerational farmhouse-style home, offering 2,925 sq. ft. of living space spread over two levels. Thoughtfully created for families who wish to bring generations together under one roof, this home strikes the perfect balance between comfort, privacy, and timeless charm.
From the moment you step inside, you’re welcomed by a spacious shared vestibule with a generous closet for both units. The 9-foot ceilings throughout the main floor, the slab-on-grade foundation (with other options available), and the decorative arches throughout the home add personality and warmth, setting the tone for a stylish and inviting living environment.
The main unit, spread across both floors, features a layout that’s as functional as it is cozy. A practical home office near the entrance, a reading nook tucked under the stairs that could double as a kids’ play space, and a dining area with a built-in bench to maximize square footage—all designed with modern family life in mind. The bright, open-concept living room flows into a welcoming kitchen with a large central island and walk-in pantry for added convenience. A double patio door floods the area with natural light and opens onto a beautiful covered rear terrace, perfect for relaxing or entertaining.
Also on the main floor, you'll find a powder room, a laundry room, and a spacious primary bedroom featuring a walk-in closet and a private en-suite bathroom with a separate tub and shower, as well as dual sinks. Upstairs, two lovely secondary bedrooms, a full bathroom, storage space, and a large family room complete the main living quarters in style.
The secondary unit, ideal for grandparents or guests, offers its own private entrance with a closet and a charming arched hallway that leads into a peaceful and luminous space. It includes a comfortable bedroom with a walk-in closet, a full bathroom with a combined tub and shower, and a bright open-concept kitchen and living area that offers both independence and comfort.
Distinctive elements
Single-Story Farmhouse-Style Intergenerational Home
Spacious shared vestibule for both units.
9-foot ceilings throughout the entire main floor.
Foundation: Floating slab. Multiple foundation types are available for all of our home plans.
Several decorative architectural arches set the tone for the warm, inviting interior of this farmhouse-style intergenerational home.
Unit #1 (Main Unit):
Practical home office located near the entrance.
Cozy reading nook under the staircase, which can easily be transformed into a small play area for kids.
Dining area with a built-in bench, maximizing square footage.
Open-concept living room and kitchen, featuring a large, friendly central island and a walk-in pantry.
Plenty of natural light in this area thanks to the double patio doors.
Laundry room and powder room located on the main floor.
Master bedroom with a well-sized walk-in closet and a private en-suite bathroom including a separate tub and shower, and double sinks.
Beautiful covered rear terrace.
Two beautiful secondary bedrooms, a full bathroom, a storage space, and a spacious family room complete this family-friendly unit.
Unit #2 (Secondary Unit):
Entrance with closet and a lovely archway leading to the hallway.
Bedroom with walk-in style closet.
Bathroom with combined tub and shower, located near the main bedroom.
Open-concept kitchen and living room with great natural light throughout.
Plan feature(s)
Arch, Open floor layout, Pantry, Ceiling over 8', Deck, Gound floor laundry room, Walk-in master bed., Island, Bench seat(s), Separate bath and shower, Double sinks, Office / Study / Den, Master suite on main
Plan architectural style(s)
. Farmhouse, . Ranch, Modern farmhouse, . Country, . American, . Transitional, . Modern rustic
Similar plans
Previously Viewed Plans
Thank you for your comment! It must be approved before being put online, please allow a period of 24 hours.
Error with google reCaptcha! Try again
Want to modify this plan?
Free plan modification quoteNeed help?
Contact usCome see us
Our 31 regional officesYou may also like
Similar plans
Description
Unit #1 (Main Unit):
Main Floor:
Entrance, shared vestibule with Unit #2, office, laundry room, powder room, kitchen, pantry, living room, dining room, reading nook, and master bedroom.
Upper Floor:
2 bedrooms, family room, office nook, storage space, and full bathroom.
Covered rear terrace.
Unit #2 (Secondary Unit):
Main Floor:
Entrance, bedroom, bathroom, living room, kitchen/dining area, and uncovered rear patio.
Foundation: Slab-on-grade. Multiple foundation options are available for each of our home plans.
Awards and
Recognition
Here is a brief description of our different plan packages. Please select the plan package that suits your needs. You can change the package at the next step, if necessary.
PDF VERSION OF PLAN:
Complete digital version of plan (pdf format) sent by email (original plan format 18" x 24'' or 24" x 36'')
5 copies of plan + PDF:
Includes: 5 copies of plan, plan in PDF format (reduced size version), materials list.
Foundation type
Additional foundation types are available, a fee may apply. Please indicate your choice on the online order form, or to our customer service representative, when placing your house plan order.
If your desired foundation type is not available, please contact our customer service to receive your free plan modification quote.
Explanation of bonus space types
UNFINISHED BONUS ROOM
The bonus rooms are often planned above the garage and are accessible from the house. They are designed to be converted as an office, a laundry area, a bathroom, a library corner or even an additional bedroom for which homeowners must make sure to have a window that complies with current codes & standards.
STORAGE AREA
Often located above the garage, our storage areas are used only as storage and are usually accessible from the garage via a retractable staircase.
Do you like this plan but want it to be modified to suit your needs?
To add a garage, another bedroom, finish the basement or any other modification, click here and let us know about your desired changes and to get your free quote for the modification of your plan.
Conditions of use
Important copyright notice! Please take note of these copyright conditions before printing:
By printing this house plan, cottage or garage or the floorplan(s), you confirm being informed that every house plan on this website is the exclusive property of Drummond House
Plans and is protected by Canadian copyright law. You are aware that these prints cannot be used to build or even obtain a building permit. The graphic representations of these
models are offered by Drummond House Plans for the sole purpose of allowing you to notate modifications of a model and then take it to one of the Drummond House Plans Canadian dealers for
modification of the plan.
The purchase of a house plan, cottage or garage from Drummond House Plans is mandatory if you wish to build any of our models. The plan purchase allows you to build a single unit; you cannot resell or give your plan to anyone once the house, cottage or garage has been built. If you wish to build the same house, cottage or garage more than once, you need to obtain the licence to this effect. Please contact us for more details.
All plans from Drummond House Plans can only be modified by a licensed Drummond House Plan Canadian dealer. If any other business or individual with no affiliation to Drummond House Plans modifies a Drummond House Plan on your behalf, please ensure this business or individual has a licence to modify this specific plan or you will be subject to prosecution on the same level as the business or individual who modified or reproduced the plan.
For more details, do not hesitate to contact u by e-mail or by phone at 1-800-567-1413.
I agree to respect the conditions above to not reproduce, modify or build a model from Drummond House Plans without previously purchasing a complete house plan.























