There are no shipping fees if you buy one of our 2 plan packages "PDF file format" or "5 sets of blueprints + PDF". Shipping charges may apply if you buy additional sets of blueprints.
House plan Summit (90109)
Modern eco-friendly house plan with a greehouse and a private master bedroom and home office on second floor
Other useful information on this plan
Eco-friendly home with an exhilarating summit
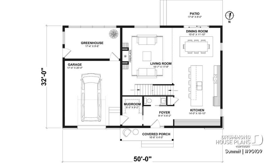
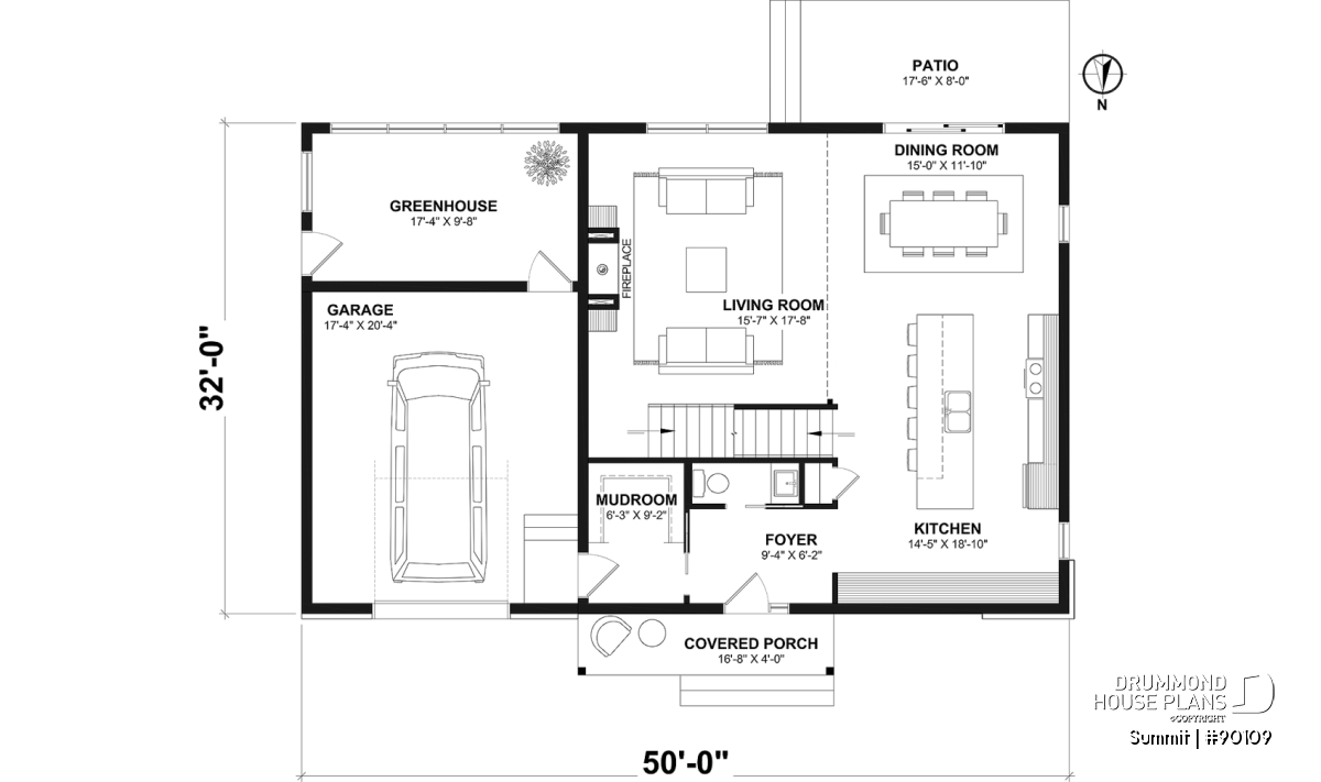
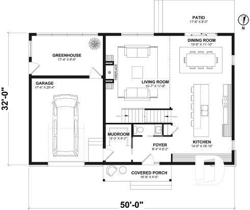
The design of the SUMMIT house (plan #90109) was carried out on a plot of land whose facade is located to the north. When entering the house, we find ourselves in an entrance which communicates with that of the garage and which gives access to a “walk-in” type cloakroom. On this floor there is also a powder room, a very large kitchen perfect for entertaining, a double height living room and a dining room.
Arrived at the top, we find ourselves on a mezzanine which could very well serve as an office. There is also the master suite with private bathroom and a large walk-in closet.
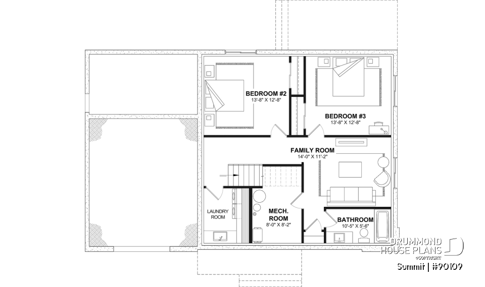
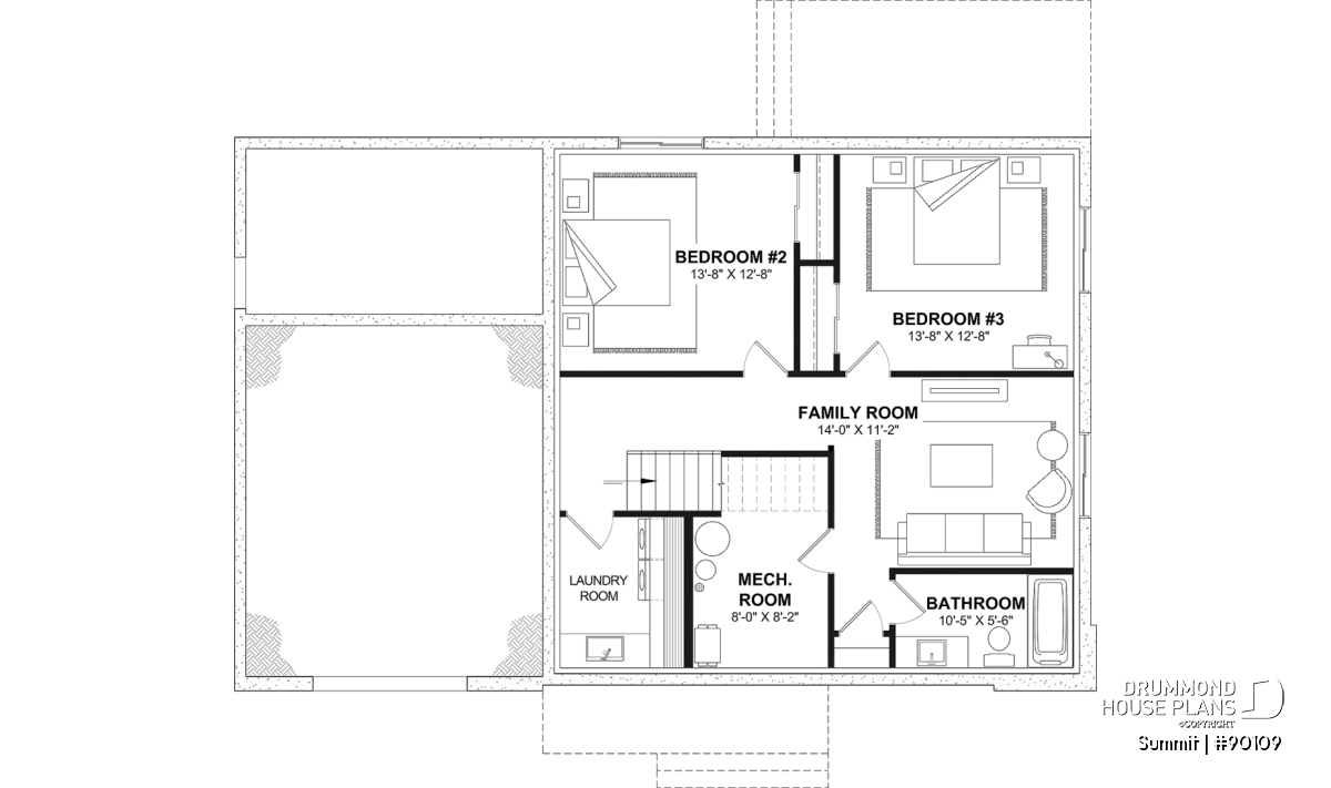
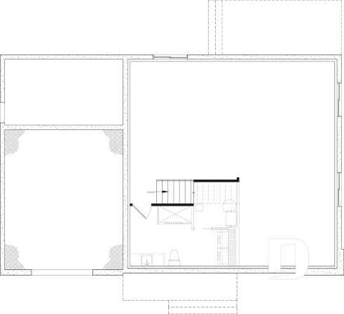
In the *optional finished basement, there are two large bedrooms with storage, a practical family room and a full bathroom. There are also technical parts such as the laundry room, the mechanical room and storage.
Additionally, although the original plan included a garage and greenhouse, this section could be added a few years after the house was built. This way you will save costs up front and can invest in higher quality materials.
Like a hike, when you reach the top of this house you will discover a whole other place. SUMMIT perfectly integrates fun with functionality as well as privacy.
*If you wish to purchase the finished basement plan, please select this option in the shopping cart, in the "Selection of foundation type" section. If you do not select this option, you will receive the unfinished full basement option, at no extra charge.
ECO-FRIENDLY HOUSE PLAN
This house plan is part of our “Eco-friendly house plan collection” and here is what distinguishes all the plans included in this selection:
Sun:
The orientation of the house according to the sun’s daily path, combined with the thermal capture of the sun's rays using optimal fenestration, minimizing heating costs and maximizing the presence of natural light.
Simplicity:
A house with modest volumes ensuring simplified construction, while favoring the maximization of interior spaces, to reduce the number of square feet and the construction cost.
Sound Mind & Body:
A home designed to promote the well-being and health of its occupants by being well ventilated, using durable and non-toxic materials (steel, wood, lightweight cladding, fiber cement, among others) and maximizing natural light.
Distinctive elements
**Contemporary and eco-friendly 2-storey house plan with garage.
A beautiful greenhouse is set up at the back of the house.
Very large island in the kitchen.
Living room with fireplace and open on 2 floors.
Mezzanine upstairs leading to a large open office.
Master bedroom with private ensuite and large walk-in closet, on second floor.
*Optional finished basement designed for families with teenagers offering 2 to 3 bedrooms, a full bathroom, the laundry room and a cozy family room (or bedroom #4).
---
*If you wish to purchase the finished basement plan, please select this option in the shopping cart, in the "Selection of foundation type" section. If you do not select this option, you will receive the unfinished full basement option, at no extra charge.
---
**This house plan is part of our “Eco-friendly house plan’ collection” and here is what distinguishes all the plans included in this selection:
SUN:
The orientation of the house according to the sun’s daily path, combined with the thermal capture of the sun's rays using optimal fenestration, minimizing heating costs and maximizing the presence of natural light.
SIMPLICITY:
A house with modest volumes ensuring simplified construction, while favoring the maximization of interior spaces, to reduce the number of square feet and the construction cost.
SOUND MIND & BODY:
A home designed to promote the well-being and health of its occupants by being well ventilated, using durable and non-toxic materials (steel, wood, lightweight cladding, fiber cement, among others) and maximizing natural light.
Plan feature(s)
Split bedrooms, Island, Greenhouse, Master suite upstairs, Mud room, Planning desk, Mezzanine, Fireplace, Open floor layout, Panoramic view, Master suite upstairs, Walk-in master bed., Separate bath and shower, Double sinks
Plan architectural style(s)
. Contemporary, . Modern / Design, . Rustic, . Modern rustic
Previously Viewed Plans
Thank you for your comment! It must be approved before being put online, please allow a period of 24 hours.
Error with google reCaptcha! Try again
Here is a brief description of our different plan packages. Please select the plan package that suits your needs. You can change the package at the next step, if necessary.
PDF VERSION OF PLAN:
Complete digital version of plan (pdf format) sent by email (original plan format 18" x 24'' or 24" x 36'')
5 copies of plan + PDF:
Includes: 5 copies of plan, plan in PDF format (reduced size version), materials list.
Foundation type
Additional foundation types are available, a fee may apply. Please indicate your choice on the online order form, or to our customer service representative, when placing your house plan order.
If your desired foundation type is not available, please contact our customer service to receive your free plan modification quote.
Explanation of bonus space types
UNFINISHED BONUS ROOM
The bonus rooms are often planned above the garage and are accessible from the house. They are designed to be converted as an office, a laundry area, a bathroom, a library corner or even an additional bedroom for which homeowners must make sure to have a window that complies with current codes & standards.
STORAGE AREA
Often located above the garage, our storage areas are used only as storage and are usually accessible from the garage via a retractable staircase.
Do you like this plan but want it to be modified to suit your needs?
To add a garage, another bedroom, finish the basement or any other modification, click here and let us know about your desired changes and to get your free quote for the modification of your plan.
Conditions of use
Important copyright notice! Please take note of these copyright conditions before printing:
By printing this house plan, cottage or garage or the floorplan(s), you confirm being informed that every house plan on this website is the exclusive property of Drummond House
Plans and is protected by Canadian copyright law. You are aware that these prints cannot be used to build or even obtain a building permit. The graphic representations of these
models are offered by Drummond House Plans for the sole purpose of allowing you to notate modifications of a model and then take it to one of the Drummond House Plans Canadian dealers for
modification of the plan.
The purchase of a house plan, cottage or garage from Drummond House Plans is mandatory if you wish to build any of our models. The plan purchase allows you to build a single unit; you cannot resell or give your plan to anyone once the house, cottage or garage has been built. If you wish to build the same house, cottage or garage more than once, you need to obtain the licence to this effect. Please contact us for more details.
All plans from Drummond House Plans can only be modified by a licensed Drummond House Plan Canadian dealer. If any other business or individual with no affiliation to Drummond House Plans modifies a Drummond House Plan on your behalf, please ensure this business or individual has a licence to modify this specific plan or you will be subject to prosecution on the same level as the business or individual who modified or reproduced the plan.
For more details, do not hesitate to contact u by e-mail or by phone at 1-800-567-1413.
I agree to respect the conditions above to not reproduce, modify or build a model from Drummond House Plans without previously purchasing a complete house plan.










