There are no shipping fees if you buy one of our 2 plan packages "PDF file format" or "5 sets of blueprints + PDF". Shipping charges may apply if you buy additional sets of blueprints.
House plan Bergen 2 (6100-V1)
2 bedroom modern rustic house plan, cathedral ceiling, large covered terrace, unfinished basement
Other useful information on this plan
Modern Scandinavian house plan with 2 bedrooms and beautiful open floor plan layout
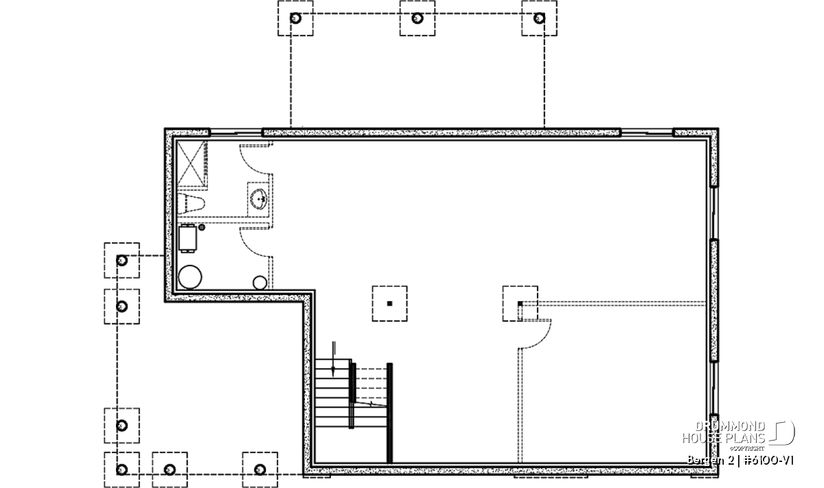
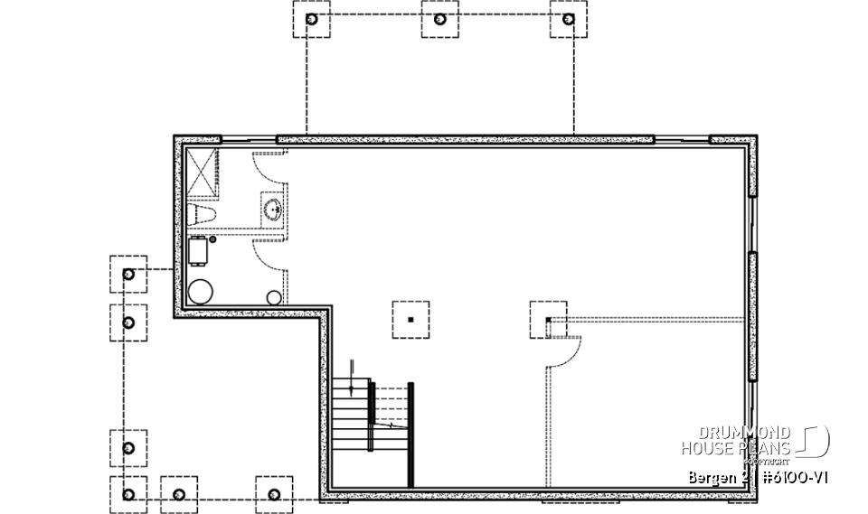
House plan Bergen 2 (# 6100-V1) offers 1260 sq.ft. on a single floor, excluding the basement which is unfinished. This Scandinavian-style house is a slightly reworked version of its base model, Bergen (# 6100).
In fact, the kitchen has been rearranged and enlarged, the laundry room has disappeared to make room for a laundry area in the bathroom, and the bedrooms have been repositioned.
A large sheltered terrace welcomes owners and visitors, implying the possibility of a plot with a view to the front of the house. At the entrance there is a large and very practical mudroom. Then we discover a kitchen with large island, a good-sized dining room and an open concept living room. This area also receives a lot of natural light as well as a cathedral ceiling.
The parents' bedroom has a large walk-in closet and is separated from the other bedroom by a large bathroom. The latter includes a large separate shower and bath, as well as a laundry room area. Bedroom # 2 could also easily be transformed into an office for teleworking.
The basement is unfinished, and you can arrange it as you see fit, when the time is right.
Distinctive elements
Superb modern rustic house plan.
Large master bedroom with walk-in closet.
Secondary bedroom that can easily be converted into an office.
Practical large mudroom, at the entrance.
Cathedral ceiling in the kitchen, dining room and living room.
Beautiful large covered front porch.
Lots of natural light.
Unfinished basement,
Plan feature(s)
Open floor layout, Pergola, Gound floor laundry room, Deck, Mud room, Island, Walk-in master bed., Separate bath and shower, Cathedral ceiling
Plan architectural style(s)
. Scandinavian, . Mountain, . Rustic, . Modern / Design, . Modern rustic, . Vacation and waterfront, . Contemporary, . Transitional
Similar plans
Previously Viewed Plans
Thank you for your comment! It must be approved before being put online, please allow a period of 24 hours.
Error with google reCaptcha! Try again
Here is a brief description of our different plan packages. Please select the plan package that suits your needs. You can change the package at the next step, if necessary.
PDF VERSION OF PLAN:
Complete digital version of plan (pdf format) sent by email (original plan format 18" x 24'' or 24" x 36'')
5 copies of plan + PDF:
Includes: 5 copies of plan, plan in PDF format (reduced size version), materials list.
Foundation type
Additional foundation types are available, a fee may apply. Please indicate your choice on the online order form, or to our customer service representative, when placing your house plan order.
If your desired foundation type is not available, please contact our customer service to receive your free plan modification quote.
Explanation of bonus space types
UNFINISHED BONUS ROOM
The bonus rooms are often planned above the garage and are accessible from the house. They are designed to be converted as an office, a laundry area, a bathroom, a library corner or even an additional bedroom for which homeowners must make sure to have a window that complies with current codes & standards.
STORAGE AREA
Often located above the garage, our storage areas are used only as storage and are usually accessible from the garage via a retractable staircase.
Do you like this plan but want it to be modified to suit your needs?
To add a garage, another bedroom, finish the basement or any other modification, click here and let us know about your desired changes and to get your free quote for the modification of your plan.
Conditions of use
Important copyright notice! Please take note of these copyright conditions before printing:
By printing this house plan, cottage or garage or the floorplan(s), you confirm being informed that every house plan on this website is the exclusive property of Drummond House
Plans and is protected by Canadian copyright law. You are aware that these prints cannot be used to build or even obtain a building permit. The graphic representations of these
models are offered by Drummond House Plans for the sole purpose of allowing you to notate modifications of a model and then take it to one of the Drummond House Plans Canadian dealers for
modification of the plan.
The purchase of a house plan, cottage or garage from Drummond House Plans is mandatory if you wish to build any of our models. The plan purchase allows you to build a single unit; you cannot resell or give your plan to anyone once the house, cottage or garage has been built. If you wish to build the same house, cottage or garage more than once, you need to obtain the licence to this effect. Please contact us for more details.
All plans from Drummond House Plans can only be modified by a licensed Drummond House Plan Canadian dealer. If any other business or individual with no affiliation to Drummond House Plans modifies a Drummond House Plan on your behalf, please ensure this business or individual has a licence to modify this specific plan or you will be subject to prosecution on the same level as the business or individual who modified or reproduced the plan.
For more details, do not hesitate to contact u by e-mail or by phone at 1-800-567-1413.
I agree to respect the conditions above to not reproduce, modify or build a model from Drummond House Plans without previously purchasing a complete house plan.























