There are no shipping fees if you buy one of our 2 plan packages "PDF file format" or "5 sets of blueprints + PDF". Shipping charges may apply if you buy additional sets of blueprints.
House plan London Fog (3522)
English cottage style home with 4 bedrooms and bonus space above garage, walkout basement
Other useful information on this plan
Sweet comfort for this magnificent English cottage-inspired house!
The LONDON FOG house plan (plan #3522) was designed by our head designer, Jenn, for a young family who wanted an “English cottage” style house with steep roof slopes, dormer windows and a brick fireplace. They wanted a different and classic style that would stand the test of time. With its 3,294 square feet, spread over 3 floors and its garage with unfinished bonus space, each member of your family will find their space for happiness!
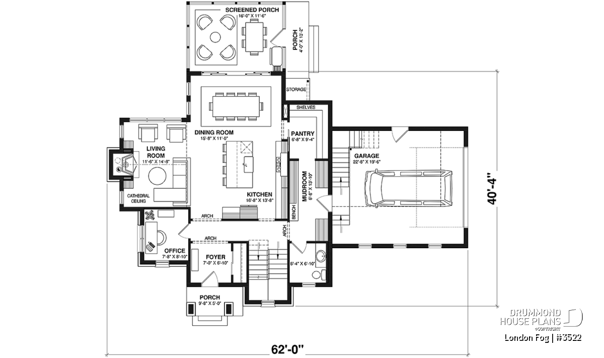
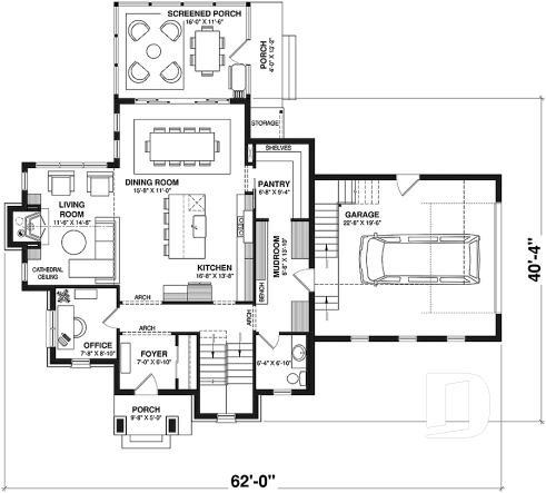
The ground floor offers an ergonomic floor that offers very fluid circulation between the garage, the mudroom, the pantry and the kitchen. Along the way, a small and practical half bath is set back from the common areas. Note the addition of architectural arches that add style and create a separation between the different spaces on the ground floor. A good-sized office is set up near the front entrance, and could easily be converted into a playroom if the need arises. The kitchen is open to the living room with fireplace and television, convenient for chatting away with family and friends while preparing dinner! The living room offers a cathedral ceiling while the rest of this floor has a 9’ high ceiling.
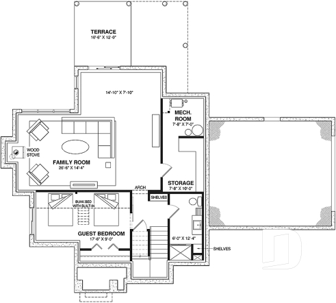
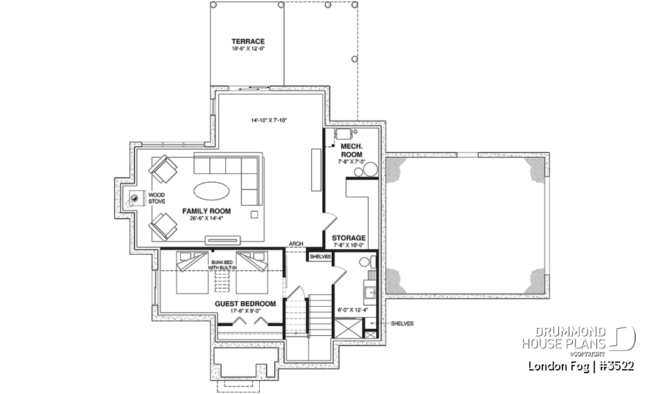
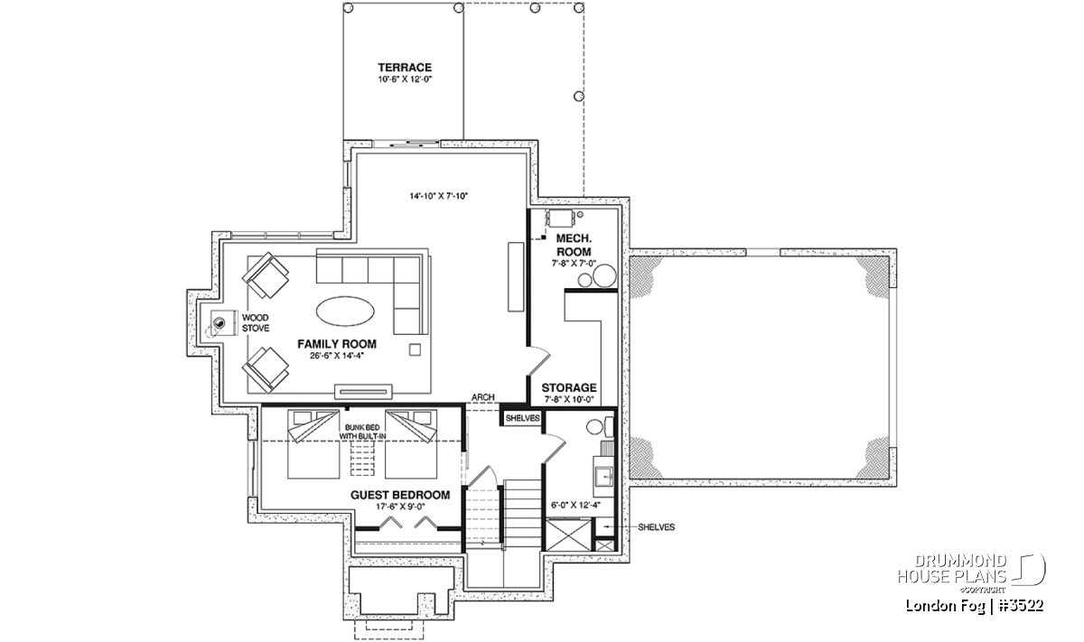
A family room is located in the walkout basement and therefore offers direct access to the outside to a sheltered terrace. A good size guest bedroom (bedroom #4), a bathroom and storage complete this floor.
Upstairs is the parents' suite which has a booth area for reading, a private bathroom and a walk-in closet. In addition, this area includes a stacked washer-dryer area. Two additional bedrooms upstairs share a bathroom.
A rear screened in terrace is accessible through two double patio doors located in the dining room. In addition, a small log storage area is provided outside not far from the doors... perfect for your living room fireplace!!
Distinctive elements
English-inspired house plan (English cottage) with several roof slopes and dormer windows, and a stone fireplace.
Office located near the front entrance.
Mudroom conveniently placed between the garage entrance and the kitchen.
Kitchen with island and pantry, open to the dining room and living room.
9’ ceilings everywhere on the ground floor except in the living room where there is a cathedral ceiling (and a fireplace!).
Screened in rear porch.
Outdoor covered storage area for wood logs used for the indoor fireplace.
Basement with family room and wood stove, as well as access to a sheltered terrace at ground level.
Upstairs master suite with walk-in closet and private bathroom.
Washer/dryer area provided upstairs.
Bonus space above the garage, to be designed according to your needs.
Plan feature(s)
Screened porch, Side load garage, Office / Study / Den, Fireplace, Living bonus space, Cathedral ceiling, Master suite upstairs, Panoramic view, Mud room, Open floor layout, Pantry, Bench seat(s), Shelves, Second floor laundry room, Wood stove, Ceiling over 8', Separate bath and shower, Double sinks, Arch
Plan architectural style(s)
. English, French Country, Modern farmhouse, . Manors and small castles, Tudor, Classic, . European, Trending
Similar plans
Previously Viewed Plans
Thank you for your comment! It must be approved before being put online, please allow a period of 24 hours.
Error with google reCaptcha! Try again
Here is a brief description of our different plan packages. Please select the plan package that suits your needs. You can change the package at the next step, if necessary.
PDF VERSION OF PLAN:
Complete digital version of plan (pdf format) sent by email (original plan format 18" x 24'' or 24" x 36'')
5 copies of plan + PDF:
Includes: 5 copies of plan, plan in PDF format (reduced size version), materials list.
Foundation type
Additional foundation types are available, a fee may apply. Please indicate your choice on the online order form, or to our customer service representative, when placing your house plan order.
If your desired foundation type is not available, please contact our customer service to receive your free plan modification quote.
Explanation of bonus space types
UNFINISHED BONUS ROOM
The bonus rooms are often planned above the garage and are accessible from the house. They are designed to be converted as an office, a laundry area, a bathroom, a library corner or even an additional bedroom for which homeowners must make sure to have a window that complies with current codes & standards.
STORAGE AREA
Often located above the garage, our storage areas are used only as storage and are usually accessible from the garage via a retractable staircase.
Do you like this plan but want it to be modified to suit your needs?
To add a garage, another bedroom, finish the basement or any other modification, click here and let us know about your desired changes and to get your free quote for the modification of your plan.
Conditions of use
Important copyright notice! Please take note of these copyright conditions before printing:
By printing this house plan, cottage or garage or the floorplan(s), you confirm being informed that every house plan on this website is the exclusive property of Drummond House
Plans and is protected by Canadian copyright law. You are aware that these prints cannot be used to build or even obtain a building permit. The graphic representations of these
models are offered by Drummond House Plans for the sole purpose of allowing you to notate modifications of a model and then take it to one of the Drummond House Plans Canadian dealers for
modification of the plan.
The purchase of a house plan, cottage or garage from Drummond House Plans is mandatory if you wish to build any of our models. The plan purchase allows you to build a single unit; you cannot resell or give your plan to anyone once the house, cottage or garage has been built. If you wish to build the same house, cottage or garage more than once, you need to obtain the licence to this effect. Please contact us for more details.
All plans from Drummond House Plans can only be modified by a licensed Drummond House Plan Canadian dealer. If any other business or individual with no affiliation to Drummond House Plans modifies a Drummond House Plan on your behalf, please ensure this business or individual has a licence to modify this specific plan or you will be subject to prosecution on the same level as the business or individual who modified or reproduced the plan.
For more details, do not hesitate to contact u by e-mail or by phone at 1-800-567-1413.
I agree to respect the conditions above to not reproduce, modify or build a model from Drummond House Plans without previously purchasing a complete house plan.





























