There are no shipping fees if you buy one of our 2 plan packages "PDF file format" or "5 sets of blueprints + PDF". Shipping charges may apply if you buy additional sets of blueprints.
House plan Italianate (3411)
Elegant 2-storey French-style home with garage, fireplace, and island kitchen.
Other useful information on this plan
French-inspired two-storey country house plan with garage and open, inviting living spaces
This two-storey French-inspired country house beautifully combines elegance, comfort, and practicality. Its timeless architecture and refined proportions give it undeniable charm, while the integrated garage blends seamlessly with the home’s classic façade. This plan offers the perfect balance between traditional French style and modern living spaces tailored to today’s families.
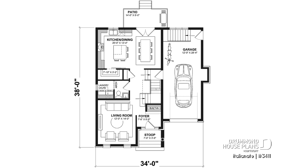
The main entrance, featuring custom built-in furniture, sets the tone with its functional elegance. Designed for both beauty and practicality, it provides a well-organized transition into the home.
The living room and dining room are separated to create distinct, warm, and inviting spaces that foster family moments and intimate gatherings. Nearby, a powder room and convenient laundry area enhance everyday comfort — an appreciated feature for busy households.
The kitchen, both stylish and functional, stands at the heart of this design. It features a central island ideal for meal prep or casual dining, and a generous pantry that adds valuable storage. A clever laundry chute from the children’s bathroom upstairs connects directly to the laundry area below — a thoughtful touch that makes household chores simpler and more efficient.
Upstairs, the primary suite offers a peaceful retreat with its walk-in closet and private shower room, combining comfort and refinement. The two secondary bedrooms, bright and well-sized, share a large family bathroom, perfectly suited for children or guests.
The family room, with its sloped ceiling and central fireplace, creates a cozy atmosphere that invites relaxation and togetherness. It’s an ideal space for family gatherings, movie nights, or quiet evenings by the fire.
The unfinished basement offers outstanding flexibility and can be customized to meet your lifestyle needs — whether you envision a family room, guest bedrooms, home office, or hobby space.
With its timeless French charm, well-planned layout, and warm, welcoming ambiance, this country-style house plan is the perfect choice for families looking for a home that blends classic beauty with modern functionality. It captures the essence of French-inspired living — elegant, inviting, and made for real life.
Distinctive elements
French-inspired two-storey country house with garage.
Entrance with fitted furniture.
Living room and dining room, separated.
Shower room and laundry room adjoining the kitchen.
Laundry chute from the children's bathroom, upstairs.
Kitchen with island and pantry.
Upstairs parents' suite with walk-in closet and private shower room.
Large family bathroom shared by the 2 secondary bedrooms.
Family room with sloping ceiling and central fireplace.
unfinished basement, to be fitted out according to the needs of the occupants.
Plan feature(s)
Fireplace, Basement access from garage, Master suite upstairs, Pantry, Laundry chute, Island, Built-ins, Gound floor laundry room
Plan architectural style(s)
French Country, Modern French Country, . American, . Traditional, . Country, Trending, . English
Similar plans
Previously Viewed Plans
Questions and comments
March 10
Joe
Hi, would you roughly know how much the cost of building this house would be?
March 10
Customer service
Good day and thank you for taking the time to write
Although we do no actual construction, the ballpark estimate to build this home in Quebec (Canada) starts at around $266,000.
This estimate is based on professional grade materials and includes ceramic in the foyer, the kitchen and the bathrooms with hardwood flooring throughout the common areas and carpet in the bedrooms. The kitchen cabinetry is wood grain melamine. This construction estimate to build in Quebec is for a turn key project.
The cost of the land and its excavation, taxes and hook-ups to municipal or other services is not included in the calculation and it is highly recommended to consult local contractors and materials suppliers to get a better idea of the actual cost to build in your area.
I hope that this provides some helpful information and I invite you to contact me if you have any other questions or comments
Regards
Deb
Thank you for your comment! It must be approved before being put online, please allow a period of 24 hours.
Error with google reCaptcha! Try again
Here is a brief description of our different plan packages. Please select the plan package that suits your needs. You can change the package at the next step, if necessary.
PDF VERSION OF PLAN:
Complete digital version of plan (pdf format) sent by email (original plan format 18" x 24'' or 24" x 36'')
5 copies of plan + PDF:
Includes: 5 copies of plan, plan in PDF format (reduced size version), materials list.
Foundation type
Additional foundation types are available, a fee may apply. Please indicate your choice on the online order form, or to our customer service representative, when placing your house plan order.
If your desired foundation type is not available, please contact our customer service to receive your free plan modification quote.
Explanation of bonus space types
UNFINISHED BONUS ROOM
The bonus rooms are often planned above the garage and are accessible from the house. They are designed to be converted as an office, a laundry area, a bathroom, a library corner or even an additional bedroom for which homeowners must make sure to have a window that complies with current codes & standards.
STORAGE AREA
Often located above the garage, our storage areas are used only as storage and are usually accessible from the garage via a retractable staircase.
Do you like this plan but want it to be modified to suit your needs?
To add a garage, another bedroom, finish the basement or any other modification, click here and let us know about your desired changes and to get your free quote for the modification of your plan.
Conditions of use
Important copyright notice! Please take note of these copyright conditions before printing:
By printing this house plan, cottage or garage or the floorplan(s), you confirm being informed that every house plan on this website is the exclusive property of Drummond House
Plans and is protected by Canadian copyright law. You are aware that these prints cannot be used to build or even obtain a building permit. The graphic representations of these
models are offered by Drummond House Plans for the sole purpose of allowing you to notate modifications of a model and then take it to one of the Drummond House Plans Canadian dealers for
modification of the plan.
The purchase of a house plan, cottage or garage from Drummond House Plans is mandatory if you wish to build any of our models. The plan purchase allows you to build a single unit; you cannot resell or give your plan to anyone once the house, cottage or garage has been built. If you wish to build the same house, cottage or garage more than once, you need to obtain the licence to this effect. Please contact us for more details.
All plans from Drummond House Plans can only be modified by a licensed Drummond House Plan Canadian dealer. If any other business or individual with no affiliation to Drummond House Plans modifies a Drummond House Plan on your behalf, please ensure this business or individual has a licence to modify this specific plan or you will be subject to prosecution on the same level as the business or individual who modified or reproduced the plan.
For more details, do not hesitate to contact u by e-mail or by phone at 1-800-567-1413.
I agree to respect the conditions above to not reproduce, modify or build a model from Drummond House Plans without previously purchasing a complete house plan.









March 10
Joe
Hi, would you roughly know how much the cost of building this house would be?