Rear view - BASE MODEL - Rustic cottage house plan with mezzanine, cathedral ceiling and bright, inviting open-concept living space - Laurentides

Rear view - BASE MODEL

1st level - Rustic cottage house plan with mezzanine, cathedral ceiling and bright, inviting open-concept living space - Laurentides

1st level

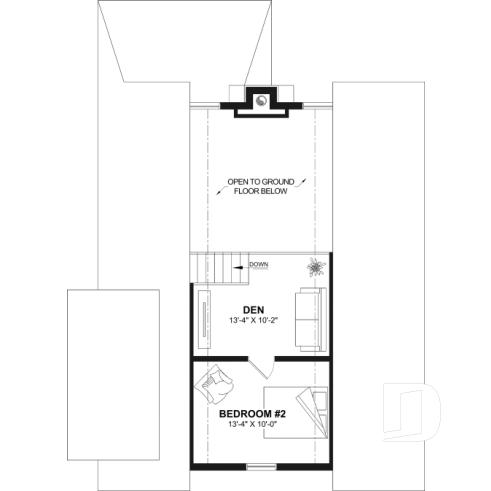
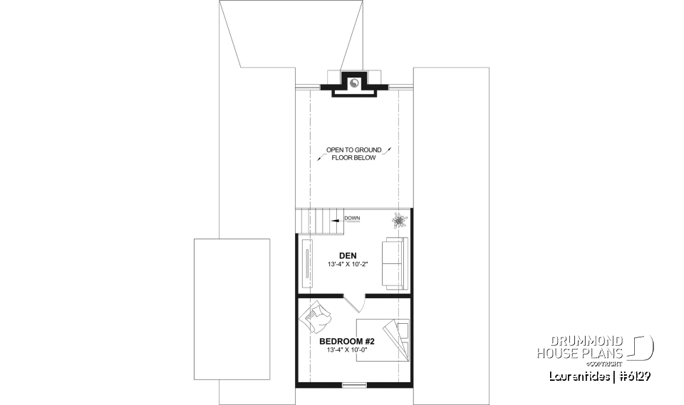
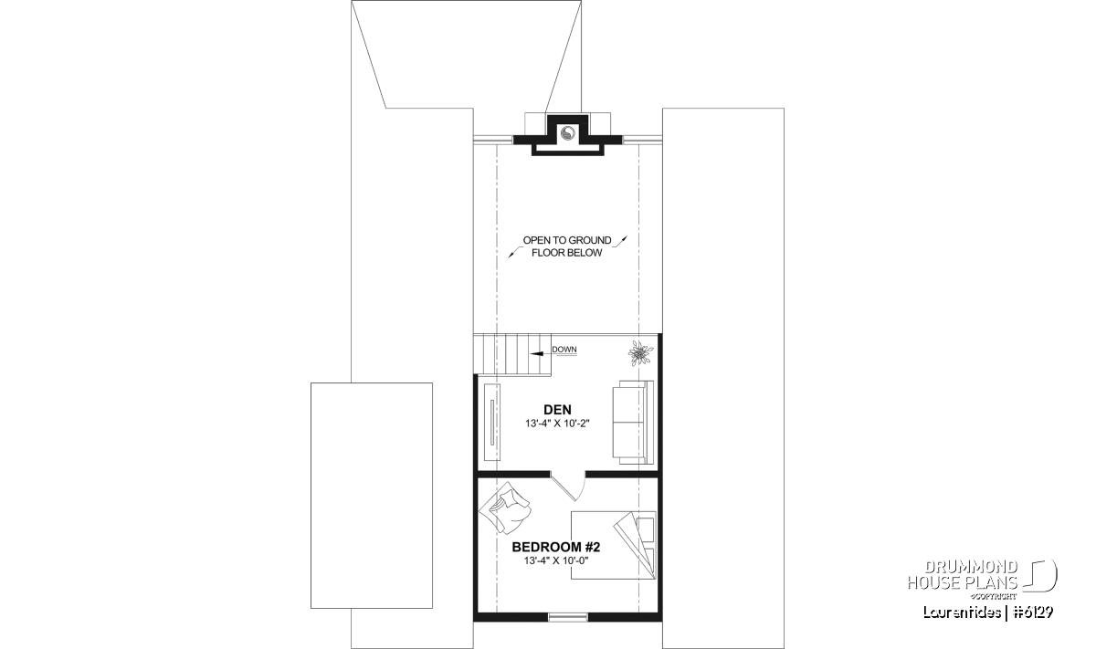
2nd level - Rustic cottage house plan with mezzanine, cathedral ceiling and bright, inviting open-concept living space - Laurentides

2nd level

front - BASE MODEL - Laurentides

front - BASE MODEL

front elevation - Laurentides

front elevation

alternate - Laurentides

alternate

alternate - Laurentides

alternate

alternate - Laurentides

alternate

interior view - Laurentides

interior view

Laurentides House plan 6129

Rustic cottage house plan with mezzanine, cathedral ceiling and bright, inviting open-concept living space

Starting from

1515$

Technical details summary Plan #6129
Total living area 1285 sq.ft. Bedroom 2
Full baths 1 Half baths -
Foundation included Floating Slab Garage -
Width 28'0" Depth 36'0"

Need help ?

Our experts are here to guide you to make your dream project come to life.

Contact us

Come see us

Visit one of our 30 regional offices.

Our offices

Need a home insurance ?

To get your price, it's just here

Get a quote Advertisement

Additional details

General specifications

Total living area
1285 sq.ft.
1st level
1017 sq.ft.
2nd level
268 sq.ft.
Width
28'0"
Depth
36'0"
Ridge height from top of foundation
26'4"
Exterior wall
2 X 6
Other available foundations (a fee may apply)
Monolithic Slab
Builder price code
C

Rooms specifications

Bedroom(s)
2
Full baths
1
Half baths
-
Garage type
-
Covered porch area
65 sq.ft.

1st level

Rooms
Sizes
Ceiling
Covered deck
14'0" x 9'0"
~ 10'0"
Covered porch
4'4" x 15'4"
~ 10'0"
Deck
14'0" x 9'0"
N/D
Living room
15'2" x 14'0"
~ 18'4"
Dining room
11'6" x 8'0"
~ 16'0"
Kitchen
11'6" x 11'4"
~ 9'0"
Kitchen island
6'4" x 3'6"
N/A
Full bathroom
9'6" x 11'0"
~ 9'0"
Shower
4'0" x 3'0"
N/A
Enclosed toilet space
5'2" x 2'8"
~ 9'0"
Mechanical room
9'6" x 3'8"
~ 9'0"
Bedroom
13'0" x 11'0"
~ 9'0"
Walk-in closet
6'8" x 3'6"
~ 9'0"
Laundry space
3'6" x 3'10"
~ 9'0"
Foyer
6'0" x 6'0"
~ 9'0"

2nd level

Rooms
Sizes
Ceiling
Den
13'4" x 10'2"
~ 8'0"
Bedroom
13'4" x 10'0"
~ 8'0"

Rustic cottage house plan Laurentides (#6129) – 2-bedroom with mezzanine and cathedral ceiling

The Laurentides (#6129) model is a warm and inviting rustic chalet-style house plan that immediately stands out with its striking dark exterior and authentic character. Designed to blend beautifully into a natural setting, this model is equally suited as a ski chalet or a countryside retreat, offering a cozy and welcoming atmosphere in every season.

The covered main entrance is a practical and appreciated feature, especially during snowy winters or rainy days. As you step inside, you are welcomed into a bright and thoughtfully designed interior, where 9’ ceilings throughout the main floor create a spacious and airy feel. The stunning cathedral ceiling in the living room and kitchen enhances this sense of openness while allowing natural light to flood the space.

The main floor offers 1,017 sq. ft. of well-optimized living space, centered around a warm and inviting open-concept layout that combines the kitchen, dining area, and living room. A central fireplace becomes the heart of the home, creating the perfect ambiance for relaxing evenings with family and friends. The kitchen features a central island, making it both functional and ideal for entertaining.

The primary bedroom is conveniently located on the main floor, close to a full bathroom that is easily accessible for both residents and guests. A stacked washer and dryer area is discreetly integrated near the bedroom, adding everyday practicality without compromising the overall design.

Upstairs, a 268 sq. ft. mezzanine overlooks the main living areas, adding architectural interest and a sense of connection between spaces. This level also includes a cozy TV lounge, perfect for unwinding, along with a secondary bedroom that is ideal for guests or children.

The included foundation is a slab-on-grade, well suited to this type of construction, although other foundation options are available depending on your needs and lot conditions.

Distinctive elements

Warm and inviting rustic chalet-style house plan.
Covered main entrance, practical in all seasons.
9’ ceilings throughout the main floor for a spacious feel.
Striking cathedral ceiling in the living room and kitchen, filled with natural light.
Primary bedroom located on the main floor, near a full bathroom.
Functional bathroom with easy access for occupants and guests.
Stacked washer and dryer, discreetly integrated near the bedroom.
Open-concept layout combining kitchen, dining, and living areas.
Central fireplace creating a warm and welcoming focal point.
Kitchen with central island, ideal for cooking and entertaining.
Open mezzanine overlooking the main living spaces.
Cozy upstairs TV lounge, perfect for relaxing.
Secondary bedroom on the upper floor, ideal for guests or children.

Plan feature(s)

Open floor layout, Built-ins, Separate bath and shower, Ceiling over 8', Cathedral ceiling, Island, Panoramic view, Covered patios, Fireplace, Mezzanine, Sitting area

Plan architectural style(s)

Rustic, Modern farmhouse, Trending, Canadian, Cottage, chalet, cabin, Ski chalets, Modern rustic, Vacation and waterfront, Country, Mountain

Similar plans
Logo Drummond House Plans image drummond house plans
The plan Laurentides is protected by the copyright law.

The illustrations shown may differ from the detailed construction plans you will receive, as plans are regularly updated to comply with current building codes.

Photos displayed on this page may reflect modifications made by homeowners and may vary from the original plan.

Learn more

A question or a comment on this plan ?

Contact information

Your request

Add your pictures or photos

To add one or more photos, click or drag your files into the area below. You may upload up to eight JPG or JPEG images. This step is optional.

Sorry, your browser does not support file uploads.