Login
Starting from $695
The Laurentides (#6129) model is a warm and inviting rustic chalet-style house plan that immediately stands out with its striking dark exterior and authentic character. Designed to blend beautifully into a natural setting, this model is equally suited as a ski chalet or a countryside retreat, offering a cozy and welcoming atmosphere in every season.
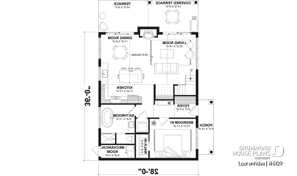
The covered main entrance is a practical and appreciated feature, especially during snowy winters or rainy days. As you step inside, you are welcomed into a bright and thoughtfully designed interior, where 9’ ceilings throughout the main floor create a spacious and airy feel. The stunning cathedral ceiling in the living room and kitchen enhances this sense of openness while allowing natural light to flood the space.
The main floor offers 1,017 sq. ft. of well-optimized living space, centered around a warm and inviting open-concept layout that combines the kitchen, dining area, and living room. A central fireplace becomes the heart of the home, creating the perfect ambiance for relaxing evenings with family and friends. The kitchen features a central island, making it both functional and ideal for entertaining.
The primary bedroom is conveniently located on the main floor, close to a full bathroom that is easily accessible for both residents and guests. A stacked washer and dryer area is discreetly integrated near the bedroom, adding everyday practicality without compromising the overall design.
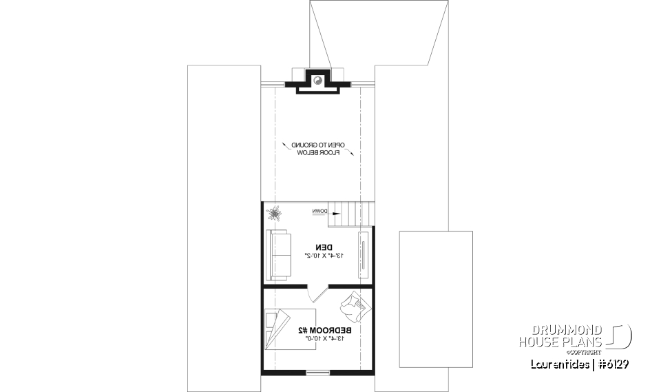
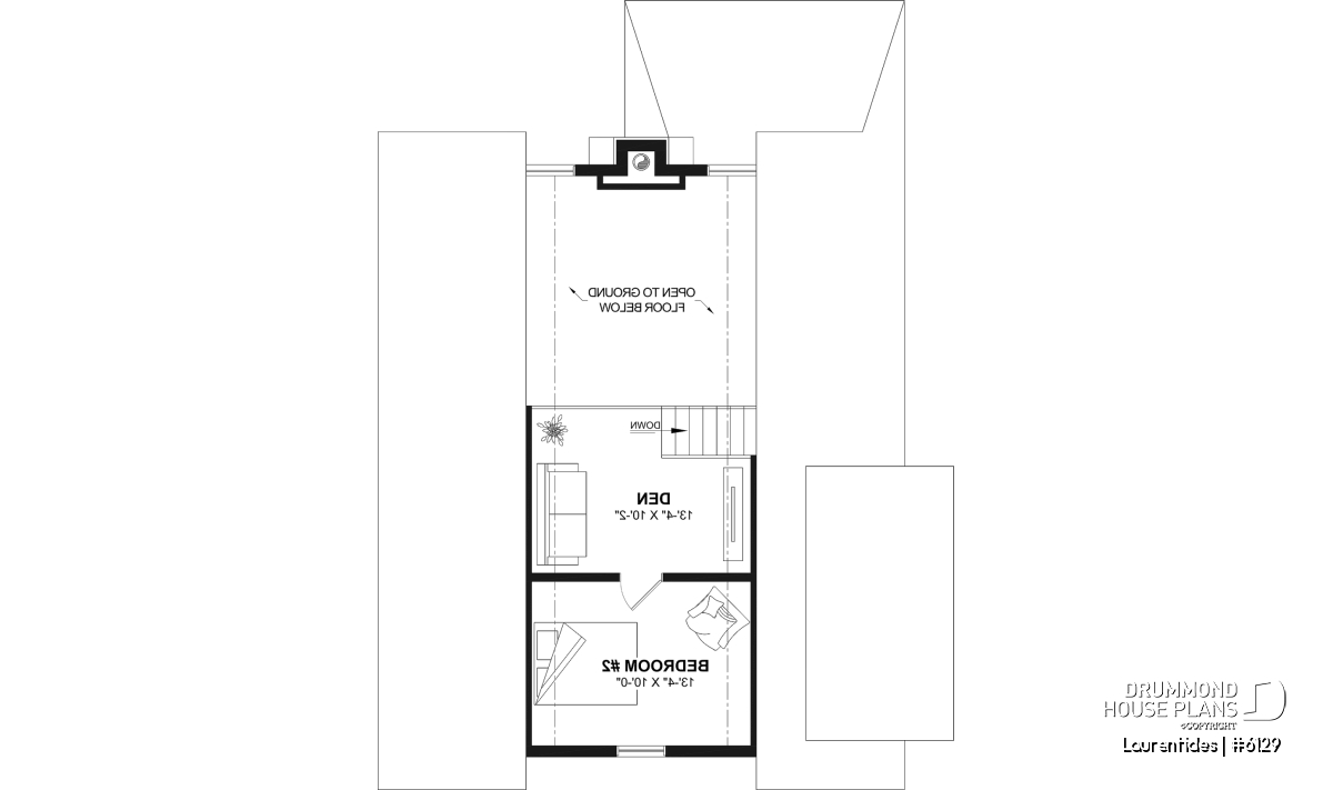
Upstairs, a 268 sq. ft. mezzanine overlooks the main living areas, adding architectural interest and a sense of connection between spaces. This level also includes a cozy TV lounge, perfect for unwinding, along with a secondary bedroom that is ideal for guests or children.
The included foundation is a slab-on-grade, well suited to this type of construction, although other foundation options are available depending on your needs and lot conditions.
Warm and inviting rustic chalet-style house plan.
Covered main entrance, practical in all seasons.
9’ ceilings throughout the main floor for a spacious feel.
Striking cathedral ceiling in the living room and kitchen, filled with natural light.
Primary bedroom located on the main floor, near a full bathroom.
Functional bathroom with easy access for occupants and guests.
Stacked washer and dryer, discreetly integrated near the bedroom.
Open-concept layout combining kitchen, dining, and living areas.
Central fireplace creating a warm and welcoming focal point.
Kitchen with central island, ideal for cooking and entertaining.
Open mezzanine overlooking the main living spaces.
Cozy upstairs TV lounge, perfect for relaxing.
Secondary bedroom on the upper floor, ideal for guests or children.
Open floor layout, Built-ins, Separate bath and shower, Ceiling over 8', Cathedral ceiling, Island, Panoramic view, Covered patios, Fireplace, Mezzanine, Sitting area
Rustic, Modern farmhouse, Trending, Canadian, Cottage, chalet, cabin, Ski chalets, Modern rustic, Vacation and waterfront, Country, Mountain