There are no shipping fees if you buy one of our 2 plan packages "PDF file format" or "5 sets of blueprints + PDF". Shipping charges may apply if you buy additional sets of blueprints.
House plan Auburn (6101)
Charming 3 bedroom Modern Rustic home plan with finished basement incl. home theater, and large covered deck
Other useful information on this plan
Great open floor plan concept and a stunning covered porch!
The Auburn home plan (6101) offers a ton of surprises in its 1,190 square feet. With 3 bedrooms and two bathrooms, this house can accommodate a large or a blended family.
From the outside, the house catches the eye with its vertical siding. The brick and wood gables complete chic country style of the house.
As you enter, a vestibule-style space is offered as well as a storage area separated by a sliding door. The first two bedrooms and the bathroom are located at the front of the house. The master bedroom is very bright, with three windows, two of which are on each side of the bed. In addition, space is freed up thanks to the walk-in closet. The second bedroom has enough space to contain a queen-size bed. In the bathroom there is a bath and a separate shower. As a bonus, a laundry chute is installed there.
Moving on, we come to the kitchen, which is open to the dining room and the living room. There is a large island perfect for evenings with friends. A walk-in style pantry can hold everything needed to feed a large family!
One of the main elements of this house is undoubtedly the central double-sided fireplace which separates the living room from the dining room. The latter gives access to the second main element on the ground floor, the covered terrace with a cathedral roof. The effect of continuity is very interesting, especially on beautiful summer evenings.
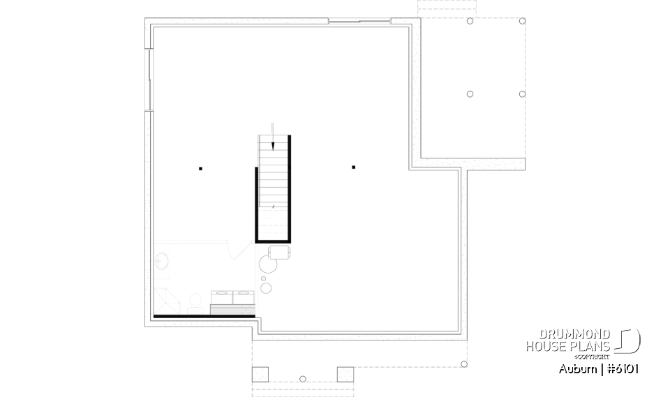
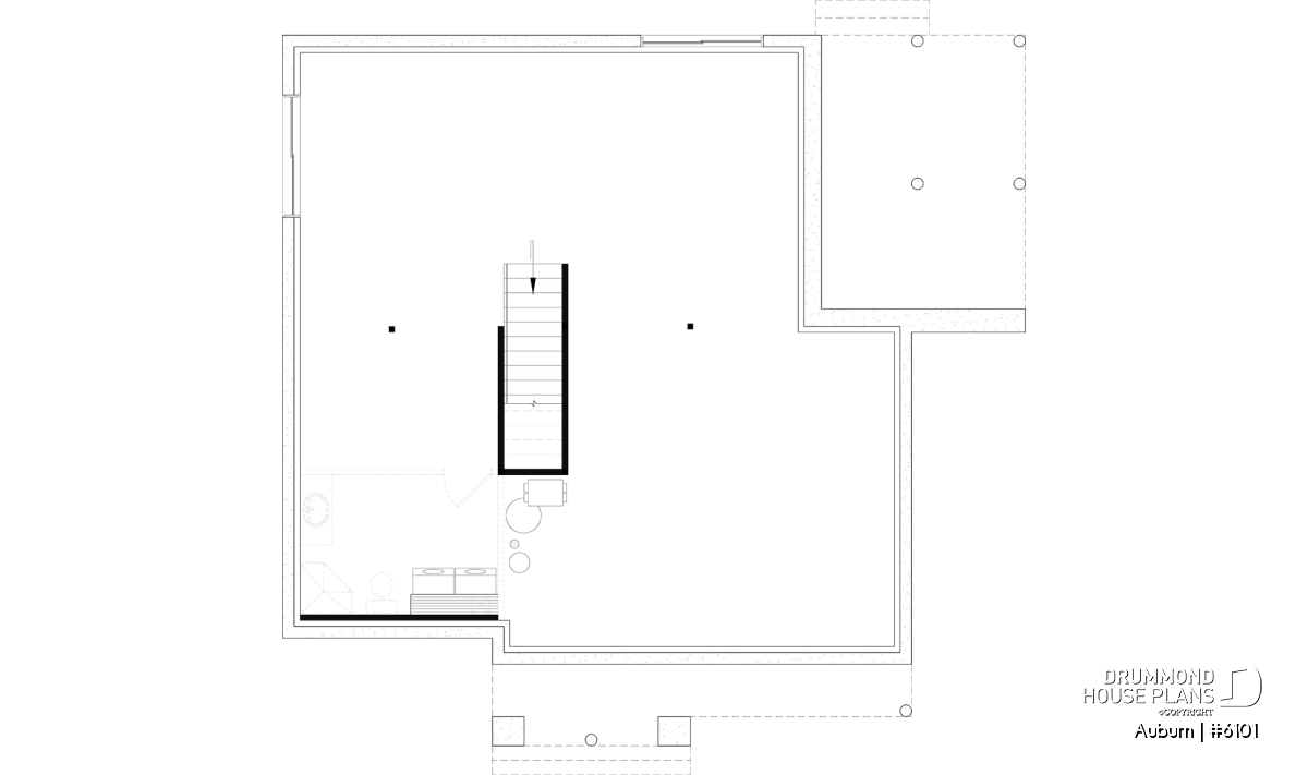
In the basement you can find a good-sized family room with a wardrobe for storage. Additionally, for an amazing experience with the whole family, the 18x18 cinema room will amaze many! There is also the third bedroom and the second bathroom, including laundry appliances with the laundry chute and a large practical counter as well as a corner shower.
This house hides several interesting advantages, which allow in their own way, to live in this house for many wonderful years.
Distinctive elements
Superb open concept floor layout on the back of the house.
Large kitchen with pantry and island.
Dining room open to the kitchen and the living room.
Double-sided, central fireplace.
Sheltered terrace with cathedral ceiling.
The parents' bedroom with walk-in closet.
The front entrance with mudroom including shelves and bench.
The finished basement offers bedroom # 3, a family room, a home theater, the laundry room with laundry chute from the ground floor as well as a shower room.
If you want a different layout for the basement, you can contact one of our offices to make the desired modification to the plan.
Plan feature(s)
Laundry chute, Deck, Mud room, Walk-in master bed., Pantry, Island, Open floor layout, Fireplace, Media Room, Planning desk, Bench seat(s), Shelves
Plan architectural style(s)
. Craftsman / Northwest, . American, . Ranch, . Rustic, . Traditional, . Cottage, chalet, cabin, . Country, . Vacation and waterfront, . Modern / Design, . Modern rustic
Similar plans
Previously Viewed Plans
Thank you for your comment! It must be approved before being put online, please allow a period of 24 hours.
Error with google reCaptcha! Try again
Here is a brief description of our different plan packages. Please select the plan package that suits your needs. You can change the package at the next step, if necessary.
PDF VERSION OF PLAN:
Complete digital version of plan (pdf format) sent by email (original plan format 18" x 24'' or 24" x 36'')
5 copies of plan + PDF:
Includes: 5 copies of plan, plan in PDF format (reduced size version), materials list.
Foundation type
Additional foundation types are available, a fee may apply. Please indicate your choice on the online order form, or to our customer service representative, when placing your house plan order.
If your desired foundation type is not available, please contact our customer service to receive your free plan modification quote.
Explanation of bonus space types
UNFINISHED BONUS ROOM
The bonus rooms are often planned above the garage and are accessible from the house. They are designed to be converted as an office, a laundry area, a bathroom, a library corner or even an additional bedroom for which homeowners must make sure to have a window that complies with current codes & standards.
STORAGE AREA
Often located above the garage, our storage areas are used only as storage and are usually accessible from the garage via a retractable staircase.
Do you like this plan but want it to be modified to suit your needs?
To add a garage, another bedroom, finish the basement or any other modification, click here and let us know about your desired changes and to get your free quote for the modification of your plan.
Conditions of use
Important copyright notice! Please take note of these copyright conditions before printing:
By printing this house plan, cottage or garage or the floorplan(s), you confirm being informed that every house plan on this website is the exclusive property of Drummond House
Plans and is protected by Canadian copyright law. You are aware that these prints cannot be used to build or even obtain a building permit. The graphic representations of these
models are offered by Drummond House Plans for the sole purpose of allowing you to notate modifications of a model and then take it to one of the Drummond House Plans Canadian dealers for
modification of the plan.
The purchase of a house plan, cottage or garage from Drummond House Plans is mandatory if you wish to build any of our models. The plan purchase allows you to build a single unit; you cannot resell or give your plan to anyone once the house, cottage or garage has been built. If you wish to build the same house, cottage or garage more than once, you need to obtain the licence to this effect. Please contact us for more details.
All plans from Drummond House Plans can only be modified by a licensed Drummond House Plan Canadian dealer. If any other business or individual with no affiliation to Drummond House Plans modifies a Drummond House Plan on your behalf, please ensure this business or individual has a licence to modify this specific plan or you will be subject to prosecution on the same level as the business or individual who modified or reproduced the plan.
For more details, do not hesitate to contact u by e-mail or by phone at 1-800-567-1413.
I agree to respect the conditions above to not reproduce, modify or build a model from Drummond House Plans without previously purchasing a complete house plan.



















