There are no shipping fees if you buy one of our 2 plan packages "PDF file format" or "5 sets of blueprints + PDF". Shipping charges may apply if you buy additional sets of blueprints.
House plan Willowgate (3946)
2 bedroom modern style cottage design, with mezzanine and cathedral ceiling, affordable construction
Other useful information on this plan
Quaint and comfortable 2 bedroom modern cottage plan
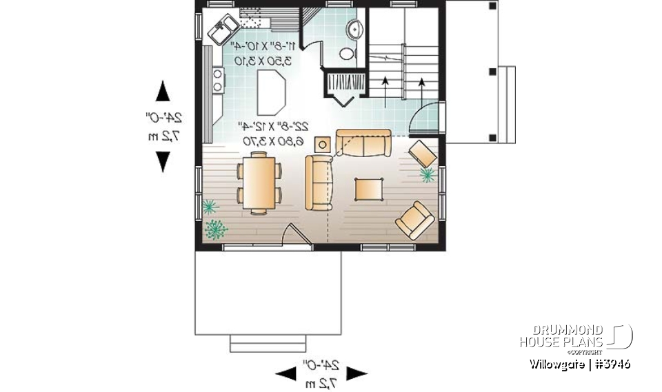
A side covered entry leads to an open concept living area on the main floor of this bright cottage. A vaulted ceiling in the living room makes the 576 sq on the main floor feel open and spacious.
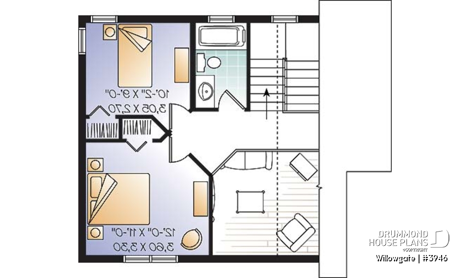
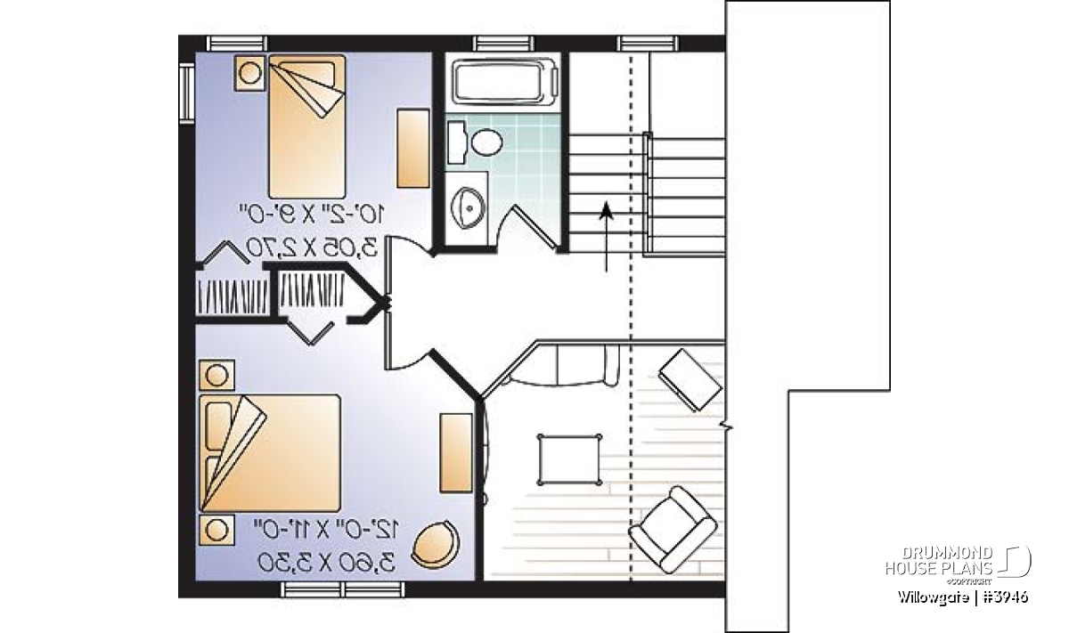
Upstairs, we find an equally open sleeping floor with mezzanine views of the living room below. Two bedrooms share a family bathroom.
If more space is required, a full basement allows additional development of living areas or storage.
Distinctive elements
Cathedral ceiling in the living room.
Kitchen with central island.
The staircase is close to the entry for an easy access to the basement.
Plan feature(s)
Mezzanine, Panoramic view, Island, Cathedral ceiling, Open floor layout
Plan architectural style(s)
. Cottage, chalet, cabin, . Vacation and waterfront, . Craftsman / Northwest, . Ski chalets, . Rustic, . A-Frame, . American, . Cabin plans, . Modern rustic, . Country, . Scandinavian, . Transitional
Similar plans
Previously Viewed Plans
Questions and comments
January 11
Candace darnforth
We like this plan just wonder if you have a similar onE but Including a wood fireplace
April 23
Renae Klein
Is there someway to incorporate a washer and dryer on either the first or second floor.
Thanks
April 23
Customer service
Good day Ms. Klein and thank you for your interest in this plan.
The solution would be to extend the 2nd floor hallway into the mezzanine which would thus enable installation of the washer and dryer at the end of the upstairs hall, side by side, along the wall on the right.
Please let me know if you have any other questions or comments.
Regards
Deb
January 29
Dolly D. Famor
Hello,I do liked this plan .just wandering if we can build another bedroom in the basement ? please let me know .many thanks.
Dolly Famor
January 29
Customer service
Good day Ms. Famor and thank you for taking the time to write.
You can build another bedroom or customize the full basement in any way that suits your needs.
We would be happy to send you a free estimate for the required floor plan within two business days after receipt of this on line form.
Please let me know if I can further assist you
Regards
Deb
January 08
Dave Topel
does the set include a basement plan?
January 08
Customer service
Good day Mr. Topel and thank you for your interest in this plan.
The plan set includes a foundation plan for the full basement that has an 8' ceiling and a dotted outline to indicate the location of a future bathroom, within which the washer and dryer are located.
Please let me know if you have any other questions or comments.
Regards
Deborah
January 06
frank calvert
I would like to see some vary small two story house plans. no more then 800ft-1100ft
January 06
Customer service
Good day and thank you for taking the time to write.
May I suggest W2597, W2947 and W2919.
You may also find what you are looking for by consulting
http://www.drummondhouseplans.com/2-story-home-and-cottage/info
or
http://www.drummondhouseplans.com/2-story-floor-plans-without-garages.html
Please don't hesitate to contact me if you have any other questions or comments.
Regards
Deborah
Thank you for your comment! It must be approved before being put online, please allow a period of 24 hours.
Error with google reCaptcha! Try again
Here is a brief description of our different plan packages. Please select the plan package that suits your needs. You can change the package at the next step, if necessary.
PDF VERSION OF PLAN:
Complete digital version of plan (pdf format) sent by email (original plan format 18" x 24'' or 24" x 36'')
5 copies of plan + PDF:
Includes: 5 copies of plan, plan in PDF format (reduced size version), materials list.
Foundation type
Additional foundation types are available, a fee may apply. Please indicate your choice on the online order form, or to our customer service representative, when placing your house plan order.
If your desired foundation type is not available, please contact our customer service to receive your free plan modification quote.
Explanation of bonus space types
UNFINISHED BONUS ROOM
The bonus rooms are often planned above the garage and are accessible from the house. They are designed to be converted as an office, a laundry area, a bathroom, a library corner or even an additional bedroom for which homeowners must make sure to have a window that complies with current codes & standards.
STORAGE AREA
Often located above the garage, our storage areas are used only as storage and are usually accessible from the garage via a retractable staircase.
Do you like this plan but want it to be modified to suit your needs?
To add a garage, another bedroom, finish the basement or any other modification, click here and let us know about your desired changes and to get your free quote for the modification of your plan.
Conditions of use
Important copyright notice! Please take note of these copyright conditions before printing:
By printing this house plan, cottage or garage or the floorplan(s), you confirm being informed that every house plan on this website is the exclusive property of Drummond House
Plans and is protected by Canadian copyright law. You are aware that these prints cannot be used to build or even obtain a building permit. The graphic representations of these
models are offered by Drummond House Plans for the sole purpose of allowing you to notate modifications of a model and then take it to one of the Drummond House Plans Canadian dealers for
modification of the plan.
The purchase of a house plan, cottage or garage from Drummond House Plans is mandatory if you wish to build any of our models. The plan purchase allows you to build a single unit; you cannot resell or give your plan to anyone once the house, cottage or garage has been built. If you wish to build the same house, cottage or garage more than once, you need to obtain the licence to this effect. Please contact us for more details.
All plans from Drummond House Plans can only be modified by a licensed Drummond House Plan Canadian dealer. If any other business or individual with no affiliation to Drummond House Plans modifies a Drummond House Plan on your behalf, please ensure this business or individual has a licence to modify this specific plan or you will be subject to prosecution on the same level as the business or individual who modified or reproduced the plan.
For more details, do not hesitate to contact u by e-mail or by phone at 1-800-567-1413.
I agree to respect the conditions above to not reproduce, modify or build a model from Drummond House Plans without previously purchasing a complete house plan.











January 11
Candace darnforth
We like this plan just wonder if you have a similar onE but Including a wood fireplace