There are no shipping fees if you buy one of our 2 plan packages "PDF file format" or "5 sets of blueprints + PDF". Shipping charges may apply if you buy additional sets of blueprints.
House plan Vistas (2939)
Very Charming Cottage house plan, large covered deck, open floor plan concept, mezzanine
Other useful information on this plan
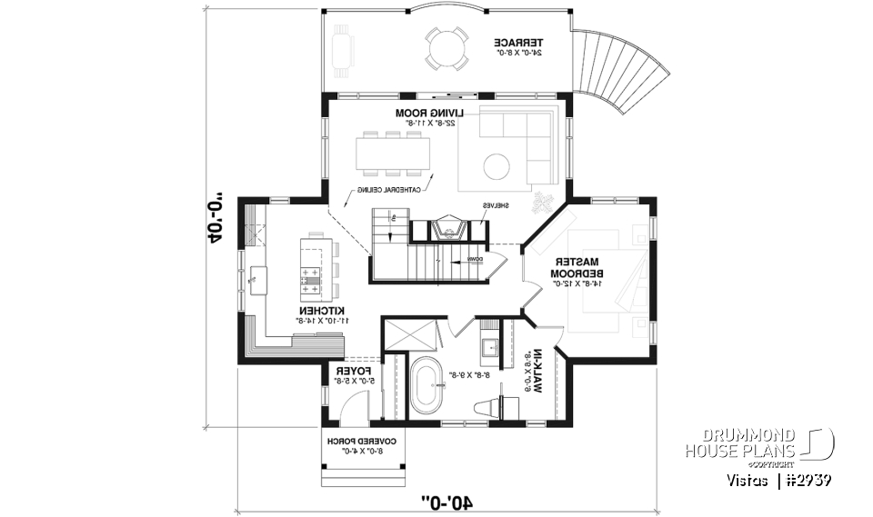
Panoramic views throughout the main floor for this economical country cottage home plan
This member of our collection is much appreciated by owners of a panoramic lot. Because of the several rooms which offer a view of the scenery, this plan is especially well suited to this kind of scenery.
Inside, whether in the kitchen, dining room, living room or master bedroom the panoramic view is visible throughout the entire main level which is what adds to the unique appeal of the interior spaces in this home. Special features of this plan include an abundantly fenestration kitchen with its central island and fireplace between the living and dining rooms and the large closet in the master bedroom with its private access to the complete bathroom.
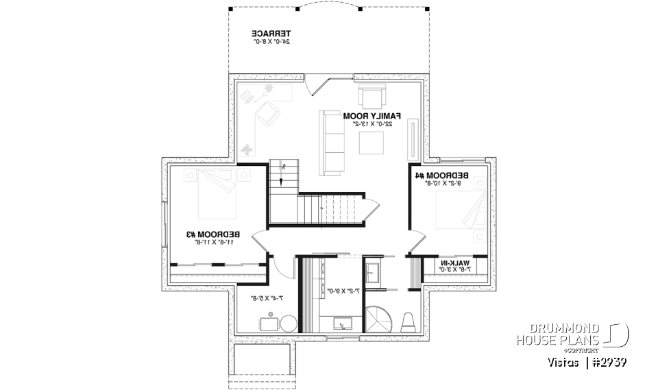
Add to the preceding features a second floor with a second bedroom along with a full bathroom at the opposite end of the hallway from the second family room off of the mezzanine which can also double as a spare bedroom for guests.
Outside, a large covered porch insures the comfort of the occupants both inside and out. If insects are a problem, it would be easy to screen in the porch to keep the bugs out...How’s that for adaptable!?!
Distinctive elements
Main-floor master suite.
Abundant windows in the rear of the house.
Fireplace and cathedral ceiling in the dining/living rooms.
Large covered rear porch.
Plan feature(s)
Fireplace, Cathedral ceiling, Mezzanine, Deck, Access to basement from exterior, Open floor layout, Lunch counter, Panoramic view, Island, Walk-in master bed.
Plan architectural style(s)
. Cottage, chalet, cabin, . Country, . Vacation and waterfront, . Ski chalets, . American, . A-Frame, . Traditional
Similar plans
Previously Viewed Plans
Questions and comments
December 28
JL
Can the roof be modified to cover the entire front of the building. I like the layout but I have a a few changes i think would make this way more appealing.
January 06
Customer Service
Hello Mr. Daigle,
Yes absolutely!
Simply fill this form to get your free estimate for the plan modifications:
drummondhouseplans.com/plan-modification-request-form/1000310
PLEASE TAKE NOTE that there is currently a 30% OFF any stock plan purchase + FREE Shipping from Jan 6 - 13, 2020, incl.
Please let us know if you have any more questions:
Email:
[email protected]
or call us: 1-800-567-5267 ext. 109
Customer service
DrummondHousePlans.com
February 16
omar
who is the designer?
where is the location of the built house?
what is the name of this design?
what is the concept?
February 16
Customer service
Good day and thank you for your interest in this plan.
We are the designers of this original plan whose name is Visas and it is a chalet designed for panoramic views of either a mountain side lot or a lake front property.
Since we do no actual building there is no house built which you can visit as we do not provide the addresses of our clients to respect their confidentiality.
Please let me know if I can further assist you
Regards
Deb
November 10
sadik gazitepe
? wrote from turkey could you arrenge kitchen closed type and stairs begins towars foyer
November 10
Customer service
Good day and thank you for taking the time to write
We can arrange the kitchen in this way and would be happy to send you a free estimate for the changes within two business days after receipt of this on line request.
Please let me know if you have any other questions or comments
Regards
Deb
November 04
Dusty
Hey there,
Do you have any idea what it would cost to build this in Irmo,SC? Also, it looks like there is an unfinished walk-out basement here. Is that correct?
Thanks, Dusty
November 04
Customer service
Good day and thank you for your interest in this plan.
Although we do no actual construction, the ballpark estimate to build this home in Quebec (Canada) starts at around $246,000.
This estimate is based on professional grade materials and includes ceramic in the foyer, the kitchen and the bathrooms with hardwood flooring throughout the common areas and carpet in the bedrooms. The kitchen cabinetry is wood grain melamine. This construction estimate was updated on January 10th 2014 and is for a turn key project.
The cost of the land and its excavation, taxes and hook-ups to municipal or other services is not included in the calculation and it is highly recommended to consult local contractors and materials suppliers to get a better idea of the actual cost to build in your area.
The foundation included with this plan is a full, unfinished basement with walk-out but other optional foundations are available at an additional charge.
Please let me know if I can further assist you.
Regards
Deb
September 22
Aaron Lescault
How much would it cost to build this house from the foundation up. My well and septic are already in. The house would be in area code 06255. Ty
September 22
Customer service
Good day and thank you for taking the time to write
Although we do no actual construction, the ballpark estimate to build this home in Quebec (Canada) starts at around $250,000.
This estimate is based on professional grade materials and includes ceramic in the foyer, the kitchen and the bathrooms with hardwood flooring throughout the common areas and carpet in the bedrooms. The kitchen cabinetry is wood grain melamine. This construction estimate to build in Quebec was updated on January 10th 2014 and is for a turn key project.
The cost of the land and its excavation, taxes and hook-ups to municipal or other services is not included in the calculation and it is highly recommended to consult your local power and materials suppliers to get a better idea of the actual cost to build in your area.
I hope that this provides some helpful information and I invite you to contact me if you have any other questions or comments
Regards
Deb
Thank you for your comment! It must be approved before being put online, please allow a period of 24 hours.
Error with google reCaptcha! Try again
Here is a brief description of our different plan packages. Please select the plan package that suits your needs. You can change the package at the next step, if necessary.
PDF VERSION OF PLAN:
Complete digital version of plan (pdf format) sent by email (original plan format 18" x 24'' or 24" x 36'')
5 copies of plan + PDF:
Includes: 5 copies of plan, plan in PDF format (reduced size version), materials list.
Foundation type
Additional foundation types are available, a fee may apply. Please indicate your choice on the online order form, or to our customer service representative, when placing your house plan order.
If your desired foundation type is not available, please contact our customer service to receive your free plan modification quote.
Explanation of bonus space types
UNFINISHED BONUS ROOM
The bonus rooms are often planned above the garage and are accessible from the house. They are designed to be converted as an office, a laundry area, a bathroom, a library corner or even an additional bedroom for which homeowners must make sure to have a window that complies with current codes & standards.
STORAGE AREA
Often located above the garage, our storage areas are used only as storage and are usually accessible from the garage via a retractable staircase.
Do you like this plan but want it to be modified to suit your needs?
To add a garage, another bedroom, finish the basement or any other modification, click here and let us know about your desired changes and to get your free quote for the modification of your plan.
Conditions of use
Important copyright notice! Please take note of these copyright conditions before printing:
By printing this house plan, cottage or garage or the floorplan(s), you confirm being informed that every house plan on this website is the exclusive property of Drummond House
Plans and is protected by Canadian copyright law. You are aware that these prints cannot be used to build or even obtain a building permit. The graphic representations of these
models are offered by Drummond House Plans for the sole purpose of allowing you to notate modifications of a model and then take it to one of the Drummond House Plans Canadian dealers for
modification of the plan.
The purchase of a house plan, cottage or garage from Drummond House Plans is mandatory if you wish to build any of our models. The plan purchase allows you to build a single unit; you cannot resell or give your plan to anyone once the house, cottage or garage has been built. If you wish to build the same house, cottage or garage more than once, you need to obtain the licence to this effect. Please contact us for more details.
All plans from Drummond House Plans can only be modified by a licensed Drummond House Plan Canadian dealer. If any other business or individual with no affiliation to Drummond House Plans modifies a Drummond House Plan on your behalf, please ensure this business or individual has a licence to modify this specific plan or you will be subject to prosecution on the same level as the business or individual who modified or reproduced the plan.
For more details, do not hesitate to contact u by e-mail or by phone at 1-800-567-1413.
I agree to respect the conditions above to not reproduce, modify or build a model from Drummond House Plans without previously purchasing a complete house plan.
















December 28
JL
Can the roof be modified to cover the entire front of the building. I like the layout but I have a a few changes i think would make this way more appealing.