There are no shipping fees if you buy one of our 2 plan packages "PDF file format" or "5 sets of blueprints + PDF". Shipping charges may apply if you buy additional sets of blueprints.
House plan Nordika (6102)
NORDIKA 6102 Ranch Home Plan: Flexible 1–3 Bedroom Modern Farmhouse with Optional Finished Basement
Other useful information on this plan
NORDIKA (6102) House Plan: Modern Rustic Farmhouse Bungalow With 1 to 3 Bedrooms and Optional Fully Finished Basement
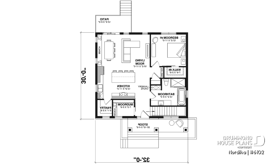
The NORDIKA (6102) is a modern rustic farmhouse bungalow designed to deliver maximum charm, comfort and functionality within a beautifully efficient footprint. Whether you’re looking for your first home, downsizing in style, or planning a cozy family nest, this thoughtful layout adapts naturally to a wide range of lifestyles. Offering 1 to 3 bedrooms and 1 or 2 bathrooms depending on the optional finished basement, this plan stands out for its warm aesthetics, smart storage solutions, and surprisingly spacious feel.
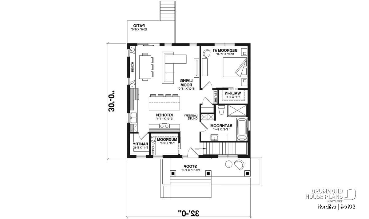
From the moment you arrive, the inviting covered front porch sets the tone. Decorative gable beams reinforce the farmhouse character, while the well-organized vestibule with large walk-in closet provides everyday practicality. Inside, you’re greeted by 9-foot ceilings and a bright, airy open-concept living area where the kitchen, dining room and living room flow together effortlessly—perfect for hosting friends, enjoying family time or relaxing after a busy day.
The kitchen features a generous central island ideal for meal prep or casual dining, along with a well-designed pantry that maximizes storage. Large windows and abundant natural light enhance the welcoming atmosphere, while stylish built-ins add both character and convenience.
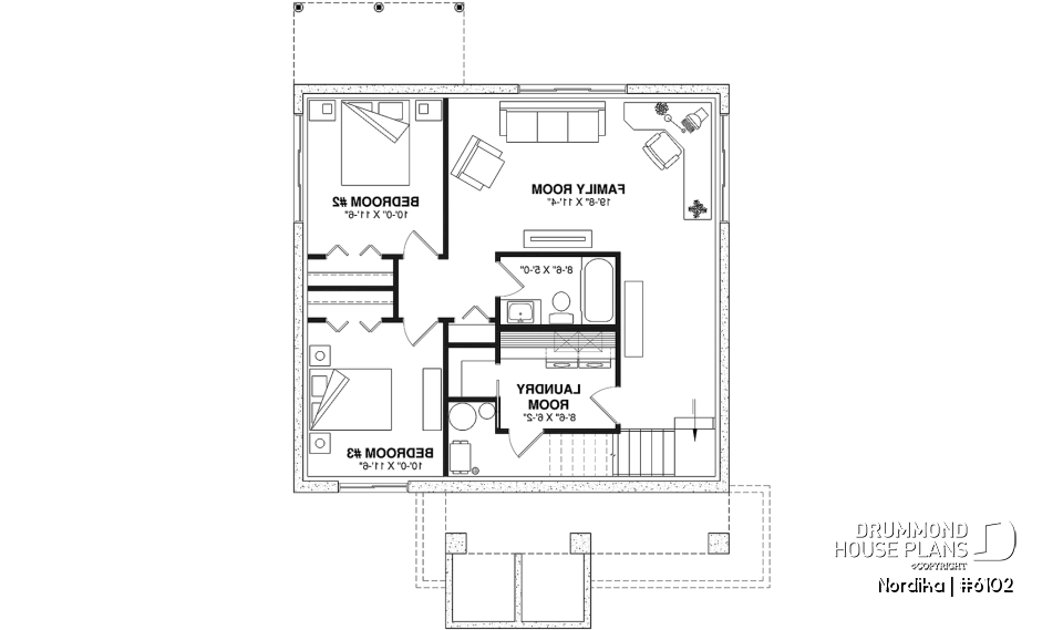
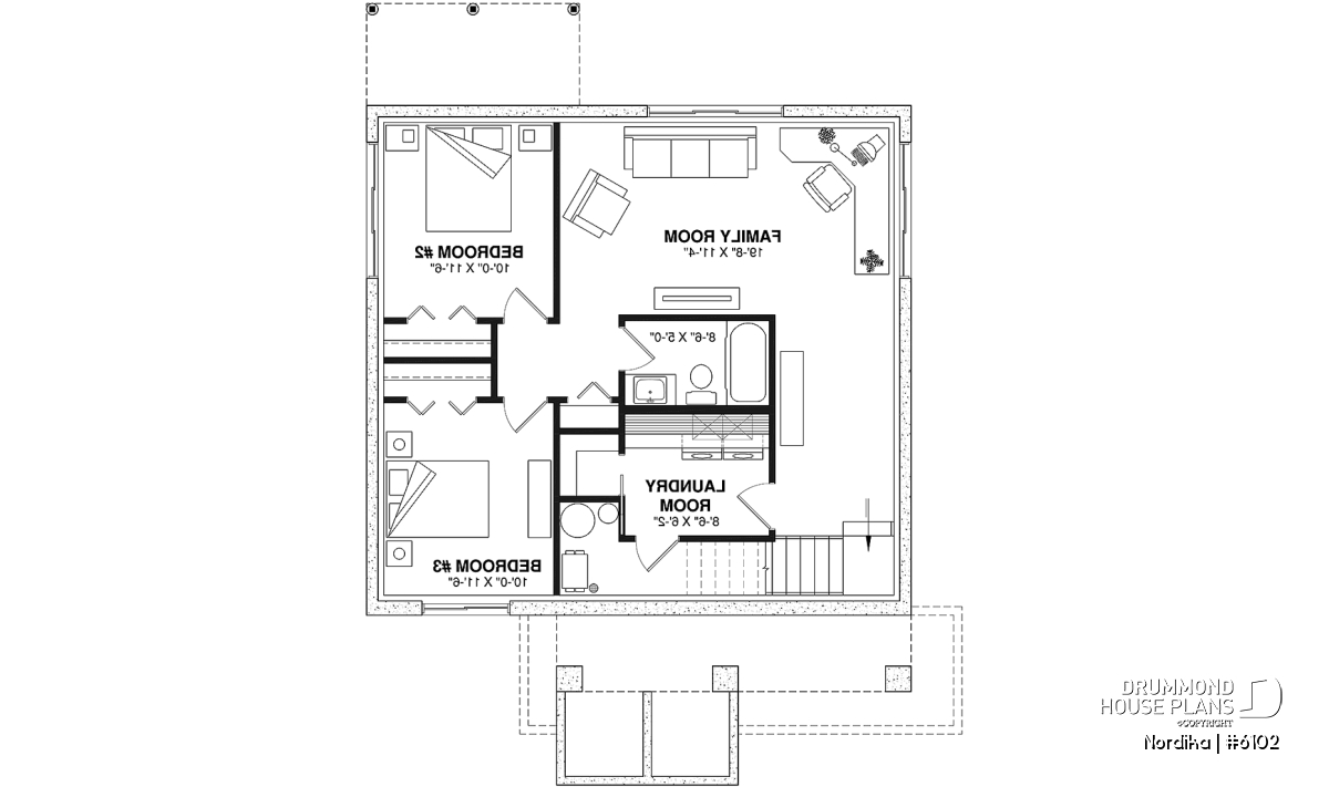
The master bedroom on the main level ensures optimal comfort, while a beautiful, spacious bathroom with an integrated laundry chute makes daily routines easier. A dedicated laundry room is located in the basement to free up space on the main level.
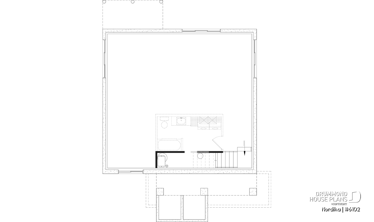
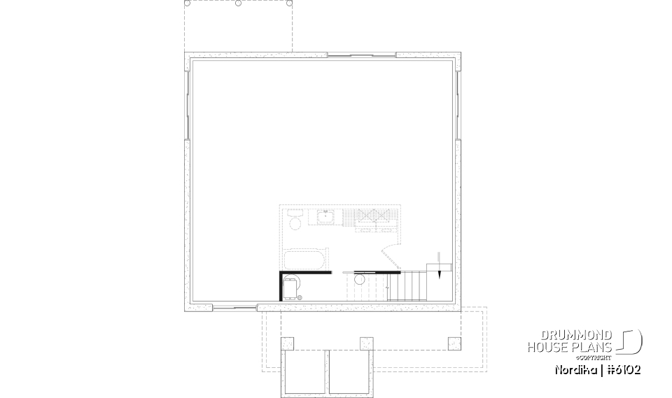
The unfinished basement offers tremendous potential for personalization, whether you envision extra bedrooms, a recreation room, a home office or all of the above. When finished, this level can comfortably accommodate two additional bedrooms, a flexible family room, a convenient home office, a well-organized laundry room with built-in storage, and a generous walk-in closet—ideal for growing families or multigenerational living.
With its adaptable layout, timeless rustic-modern architecture and abundant storage solutions, the NORDIKA (6102) is designed to meet the needs of many lifestyles. From young couples to teleworking professionals and small families, this home offers the perfect blend of comfort, efficiency and charm.
Distinctive elements
Modern farmhouse bungalow plan offering 1 to 3 bedrooms and 1 or 2 bathrooms depending on the finished basement layout.
Inviting covered front porch.
Gable with decorative beams for a warm architectural touch.
Practical, well-organized mudroom entry with a large walk-in closet.
9' ceilings for a spacious and airy feel.
Bright open-concept living area, perfect for gatherings.
Welcoming kitchen with a large central island.
Well-designed pantry maximizing storage.
Bright and cozy living room.
Built-in cabinetry adding both style and functionality.
Primary bedroom located on the main floor for added comfort.
Spacious, elegant bathroom with an integrated laundry chute to simplify daily life.
Laundry room located in the basement to optimize main-floor space.
*Unfinished basement offering flexible customization potential.—
*Optional finished basement:
Two additional bedrooms.
Versatile family room.
Dedicated home-office space.
Laundry room with integrated storage and a generous walk-in closet.
---
*If you wish to purchase the finished basement plan, please select this option in the shopping cart, in the "Selection of foundation type" section. If you do not select this option, you will receive the unfinished full basement option, at no extra charge.
Plan feature(s)
Laundry chute, Lunch counter, Pantry, Island, Open floor layout, Ceiling over 8', Walk-in master bed., Mud room, Game room, Separate bath and shower, Builder, Self-Build
Plan architectural style(s)
. Modern rustic, . Craftsman / Northwest, . Rustic, . Transitional, . Country, . Mountain, . Ranch, Modern farmhouse, . Farmhouse
Similar plans
Previously Viewed Plans
Thank you for your comment! It must be approved before being put online, please allow a period of 24 hours.
Error with google reCaptcha! Try again
Here is a brief description of our different plan packages. Please select the plan package that suits your needs. You can change the package at the next step, if necessary.
PDF VERSION OF PLAN:
Complete digital version of plan (pdf format) sent by email (original plan format 18" x 24'' or 24" x 36'')
5 copies of plan + PDF:
Includes: 5 copies of plan, plan in PDF format (reduced size version), materials list.
Foundation type
Additional foundation types are available, a fee may apply. Please indicate your choice on the online order form, or to our customer service representative, when placing your house plan order.
If your desired foundation type is not available, please contact our customer service to receive your free plan modification quote.
Explanation of bonus space types
UNFINISHED BONUS ROOM
The bonus rooms are often planned above the garage and are accessible from the house. They are designed to be converted as an office, a laundry area, a bathroom, a library corner or even an additional bedroom for which homeowners must make sure to have a window that complies with current codes & standards.
STORAGE AREA
Often located above the garage, our storage areas are used only as storage and are usually accessible from the garage via a retractable staircase.
Do you like this plan but want it to be modified to suit your needs?
To add a garage, another bedroom, finish the basement or any other modification, click here and let us know about your desired changes and to get your free quote for the modification of your plan.
Conditions of use
Important copyright notice! Please take note of these copyright conditions before printing:
By printing this house plan, cottage or garage or the floorplan(s), you confirm being informed that every house plan on this website is the exclusive property of Drummond House
Plans and is protected by Canadian copyright law. You are aware that these prints cannot be used to build or even obtain a building permit. The graphic representations of these
models are offered by Drummond House Plans for the sole purpose of allowing you to notate modifications of a model and then take it to one of the Drummond House Plans Canadian dealers for
modification of the plan.
The purchase of a house plan, cottage or garage from Drummond House Plans is mandatory if you wish to build any of our models. The plan purchase allows you to build a single unit; you cannot resell or give your plan to anyone once the house, cottage or garage has been built. If you wish to build the same house, cottage or garage more than once, you need to obtain the licence to this effect. Please contact us for more details.
All plans from Drummond House Plans can only be modified by a licensed Drummond House Plan Canadian dealer. If any other business or individual with no affiliation to Drummond House Plans modifies a Drummond House Plan on your behalf, please ensure this business or individual has a licence to modify this specific plan or you will be subject to prosecution on the same level as the business or individual who modified or reproduced the plan.
For more details, do not hesitate to contact u by e-mail or by phone at 1-800-567-1413.
I agree to respect the conditions above to not reproduce, modify or build a model from Drummond House Plans without previously purchasing a complete house plan.



























