Rear view - BASE MODEL - Ski or mountain cottage plan with walkout basement, large covered deck, 3  beds, 2 bathrooms, open  concept - Malbaie

Rear view - BASE MODEL

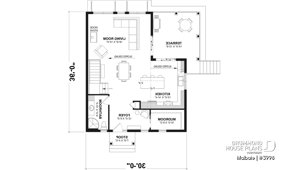
1st level - Ski or mountain cottage plan with walkout basement, large covered deck, 3  beds, 2 bathrooms, open  concept - Malbaie

1st level

Basement - Ski or mountain cottage plan with walkout basement, large covered deck, 3  beds, 2 bathrooms, open  concept - Malbaie

Basement

Left elevation - Malbaie

Left elevation

front elevation - Malbaie

front elevation

rear elevation - Malbaie

rear elevation

Color version 2 - Rear - Malbaie

Color version 2 - Rear

Color version 4 - Rear - Malbaie

Color version 4 - Rear

Color version 5 - Rear - Malbaie

Color version 5 - Rear

Malbaie House plan 3998

Ski or mountain cottage plan with walkout basement, large covered deck, 3 beds, 2 bathrooms, open concept

Starting from

1740$

Technical details summary Plan #3998
Total living area 2085 sq.ft. Bedroom 3
Full baths 2 Half baths -
Foundation included Finished basement with walkout Garage -
Width 34'0" Depth 36'0"

Need help ?

Our experts are here to guide you to make your dream project come to life.

Contact us

Come see us

Visit one of our 30 regional offices.

Our offices

Need a home insurance ?

To get your price, it's just here

Get a quote Advertisement

Additional details

General specifications

Total living area
2085 sq.ft.
1st level
940 sq.ft.
Basement
1145 sq.ft.
Width
34'0"
Depth
36'0"
Ridge height from top of foundation
21'10"
Exterior wall
2 X 6
Finished basement with walkout
Builder price code
E

Rooms specifications

Bedroom(s)
3
Full baths
2
Half baths
-
Garage type
-
Covered porch area
-

Basement

Rooms
Sizes
Ceiling
Bedroom
13'0" x 13'0"
~ 8'0"
Walk-in closet
5'10" x 3'0"
~ 8'0"
Bedroom
12'8" x 11'4"
~ 8'0"
Closet
2'0" x 4'6"
~ 8'0"
Bedroom
12'8" x 10'0"
~ 8'0"
Shower
2'0" x 4'6"
~ 8'0"
Bathroom/laundry room
11'6" x 5'2"
~ 8'0"
Enclosed shower space
5'0" x 3'0"
~ 8'0"
Great room or Family room
18'4" x 13'8"
~ 8'0"
Mechanical room
3'8" x 6'6"
~ 8'0"
Laundry space
5'0" x 3'0"
~ 8'0"

1st level

Rooms
Sizes
Ceiling
Covered deck
14'0" x 14'0"
N/D
Kitchen
13'0" x 14'4"
~ 8'0"
Mud room
10'0" x 6'0"
~ 8'0"
Foyer
12'0" x 6'0"
~ 13'0"
Living room
18'8" x 14'0"
~ 8'0"
Dining room
12'8" x 12'0"
~ 8'0"
Shower room or three quarter bath
6'0" x 10'4"
~ 8'0"
Linen
1'8" x 2'0"
~ 8'0"

Perfect cottage plan for the mountain or lots with panoramic views

Discover this wonderful cottage plan that allows for much natural light that also offers a cathedral ceiling, two patio doors, an open floor and a large sheltered outdoor terrace. With a rustic style, the new plan # 3998 by Drummond Designs, also named Malbaie, fits perfectly with any nature lots or countryside.

The main entrance has a large walk-in closet that is ideal for storage of any of your sports accessories such as skiing, snowboarding, cycling etc. In addition, this area that is set back from the kitchen includes a shower room, convenient for the return home.

The kitchen is open to the dining room as well as the living room and also includes a large island and a convenient access to the sheltered terrace, making outdoor dining more enjoyable. The large terrace has a size of 14 'x 14' which easily allows for a table for 6 people and a BBQ.

In the basement of this cottage plan you find 3 large bedrooms, a large bathroom with separate bath and shower as well as washer/dryer, and extra storage.

Do you like this model but want to make some adjustments like adding a garage or an extension? Please contact us to obtain your free estimate for the modification of your plan.

Distinctive elements

Ideal rustic cottage plan for mountain or lakefront lot.
3 good size bedrooms and 2 bathrooms.
Cathedral ceiling on main floor.
Large entrance walk-in closet, perfect for ski, snowboards, bikes or else.
Kitchen with island and open to the dining and living room.
Great windows and patio doors on main floor bringing lots of natural light.
Fireplace.
Large covered terrace.

Plan feature(s)

Access to basement from exterior, Lunch counter, Panoramic view, Fireplace, Island, Open floor layout, Covered patios, Separate bath and shower, Walk-in master bed., Mud room, Sloped ceiling

Plan architectural style(s)

Cottage, chalet, cabin, Rustic, Vacation and waterfront, Ski chalets, Contemporary, Mid-century, Mountain, Modern / Design

Similar plans
Logo Drummond House Plans image drummond house plans
The plan Malbaie is protected by the copyright law.

The illustrations shown may differ from the detailed construction plans you will receive, as plans are regularly updated to comply with current building codes.

Photos displayed on this page may reflect modifications made by homeowners and may vary from the original plan.

Learn more

A question or a comment on this plan ?

Contact information

Your request

Add your pictures or photos

To add one or more photos, click or drag your files into the area below. You may upload up to eight JPG or JPEG images. This step is optional.

Sorry, your browser does not support file uploads.