There are no shipping fees if you buy one of our 2 plan packages "PDF file format" or "5 sets of blueprints + PDF". Shipping charges may apply if you buy additional sets of blueprints.
House plan Campbell 2 (4676)
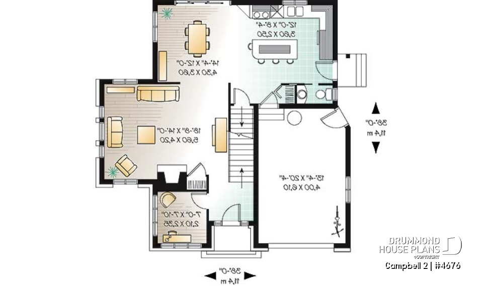
2-storey house plan, garage, narrow lot, master suite, 3 to 4 bedrooms, 2.5 baths, laundry on second floor
Other useful information on this plan
Beautiful country style house plan with great master suite!
.
Distinctive elements
Ideal 2-storey home for narrow lot (38' wide).
Home office located near front entrance.
Fireplace in living room.
Kitchen island.
Open kitchen and dining room concept.
Half-bath near kitchen.
Master suite with ensuite and 2 closets.
2 secondary bedrooms share a full bathroom.
Second floor laundry.
Unfinished daylight basement.
One-car garage access to the house, near kitchen.
Plan feature(s)
Fireplace, Office / Study / Den, Panoramic view, Island, Open floor layout, Cathedral ceiling, Master suite upstairs, Narrow lot, Second floor laundry room, 2-Story foyer, Mezzanine, Double sinks, Separate bath and shower
Plan architectural style(s)
. American, . European, . Traditional, . Craftsman / Northwest, . English, . Modern rustic, . Country, . Mountain
Similar plans
Previously Viewed Plans
Questions and comments
August 18
Me
I like the layout of the first floor. Can you make this plan with a 3 car garage?
Also I am looking to have an entertainment area for a pool table and media room upstairs. Is there a way to have this on top of garage? Thanks.
August 18
Customer service
Good day and thank you for your interest in this plan.
The addition of a 3 car garage with an entertainment/media room upstairs is possible and we would be happy to provide you with a free estimate within two business days after receipt of this
on line request
Please let me know if I can further assist you
Regards
Deb
Thank you for your comment! It must be approved before being put online, please allow a period of 24 hours.
Error with google reCaptcha! Try again
Here is a brief description of our different plan packages. Please select the plan package that suits your needs. You can change the package at the next step, if necessary.
PDF VERSION OF PLAN:
Complete digital version of plan (pdf format) sent by email (original plan format 18" x 24'' or 24" x 36'')
5 copies of plan + PDF:
Includes: 5 copies of plan, plan in PDF format (reduced size version), materials list.
Foundation type
Additional foundation types are available, a fee may apply. Please indicate your choice on the online order form, or to our customer service representative, when placing your house plan order.
If your desired foundation type is not available, please contact our customer service to receive your free plan modification quote.
Explanation of bonus space types
UNFINISHED BONUS ROOM
The bonus rooms are often planned above the garage and are accessible from the house. They are designed to be converted as an office, a laundry area, a bathroom, a library corner or even an additional bedroom for which homeowners must make sure to have a window that complies with current codes & standards.
STORAGE AREA
Often located above the garage, our storage areas are used only as storage and are usually accessible from the garage via a retractable staircase.
Do you like this plan but want it to be modified to suit your needs?
To add a garage, another bedroom, finish the basement or any other modification, click here and let us know about your desired changes and to get your free quote for the modification of your plan.
Conditions of use
Important copyright notice! Please take note of these copyright conditions before printing:
By printing this house plan, cottage or garage or the floorplan(s), you confirm being informed that every house plan on this website is the exclusive property of Drummond House
Plans and is protected by Canadian copyright law. You are aware that these prints cannot be used to build or even obtain a building permit. The graphic representations of these
models are offered by Drummond House Plans for the sole purpose of allowing you to notate modifications of a model and then take it to one of the Drummond House Plans Canadian dealers for
modification of the plan.
The purchase of a house plan, cottage or garage from Drummond House Plans is mandatory if you wish to build any of our models. The plan purchase allows you to build a single unit; you cannot resell or give your plan to anyone once the house, cottage or garage has been built. If you wish to build the same house, cottage or garage more than once, you need to obtain the licence to this effect. Please contact us for more details.
All plans from Drummond House Plans can only be modified by a licensed Drummond House Plan Canadian dealer. If any other business or individual with no affiliation to Drummond House Plans modifies a Drummond House Plan on your behalf, please ensure this business or individual has a licence to modify this specific plan or you will be subject to prosecution on the same level as the business or individual who modified or reproduced the plan.
For more details, do not hesitate to contact u by e-mail or by phone at 1-800-567-1413.
I agree to respect the conditions above to not reproduce, modify or build a model from Drummond House Plans without previously purchasing a complete house plan.













August 18
Me
I like the layout of the first floor. Can you make this plan with a 3 car garage?
Also I am looking to have an entertainment area for a pool table and media room upstairs. Is there a way to have this on top of garage? Thanks.