There are no shipping fees if you buy one of our 2 plan packages "PDF file format" or "5 sets of blueprints + PDF". Shipping charges may apply if you buy additional sets of blueprints.
House plan Nordika 2 (6102-V1)
Compact Modern Rustic Home Plan with 2–4 Bedrooms, Open Living Space and Covered Porch
Other useful information on this plan
NORDIKA 2 House Plan: A Modern Rustic Home Offering 2 to 4 Bedrooms and Exceptional Comfort
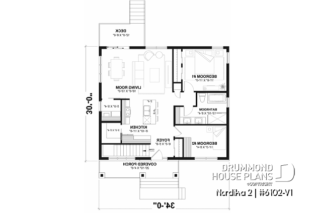
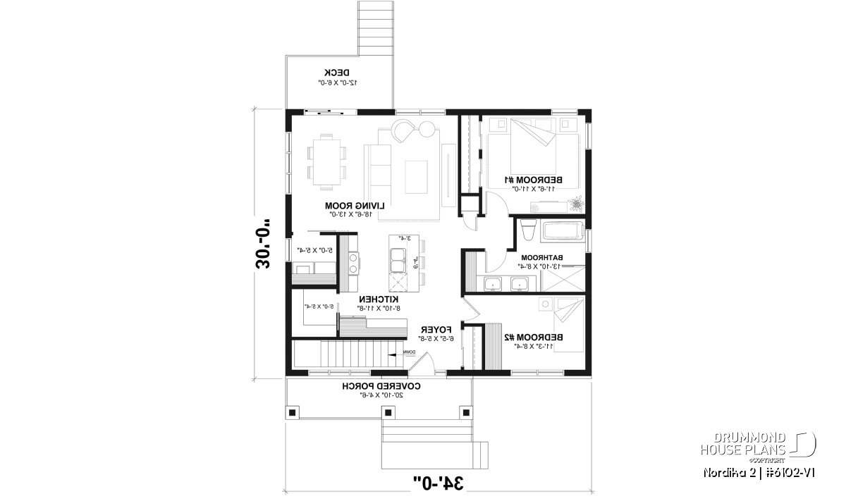
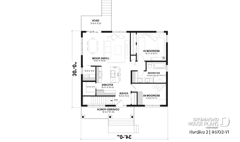
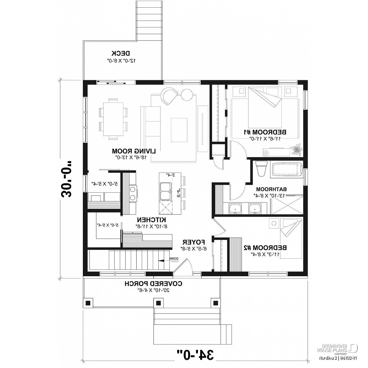
The NORDIKA 2 house plan (6102-V1) is as surprising as it is stylish, showcasing strong modern-rustic appeal both inside and out. Measuring 1,020 sq.ft. on the main level, this elegant home stands out with its impressive façade, featuring over 50% masonry and bold timber gables that instantly create character and presence. The rustic charm continues indoors, where beautiful exposed wood beams echo the architectural accents found on the exterior.
Upon entering, a spacious foyer welcomes you with a convenient closet and access to the stairs leading to the fully developable basement. From there, the space opens into a bright, seamless living area that includes the kitchen, dining room, and living room. This is where the magic truly happens: generous windows in the dining and living areas, along with the patio door leading to the covered porch, flood the space with natural light that reflects warmly off the rustic beams.
Though compact in appearance, this home is full of delightful surprises. The 9-foot ceilings create an immediate sense of openness, while the kitchen offers remarkable storage thanks to a full wall of high-quality built-ins that integrate the oven and refrigerator. The large central island—with its double sink and dishwasher—enhances both practicality and style. A walk-in pantry measuring 5'0" x 5'3" and a 5' x 5'6" laundry room add even more storage and efficiency to daily living.
The primary bedroom comfortably fits a queen-size bed, features a double closet, and is brightened by two corner windows that offer flexible furniture placement. Across the hall, the bathroom includes a double vanity, a separate bathtub, a spacious shower, and generous storage. The second bedroom is perfectly sized for a child, a guest room, or a dedicated home office.
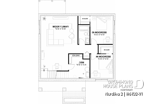
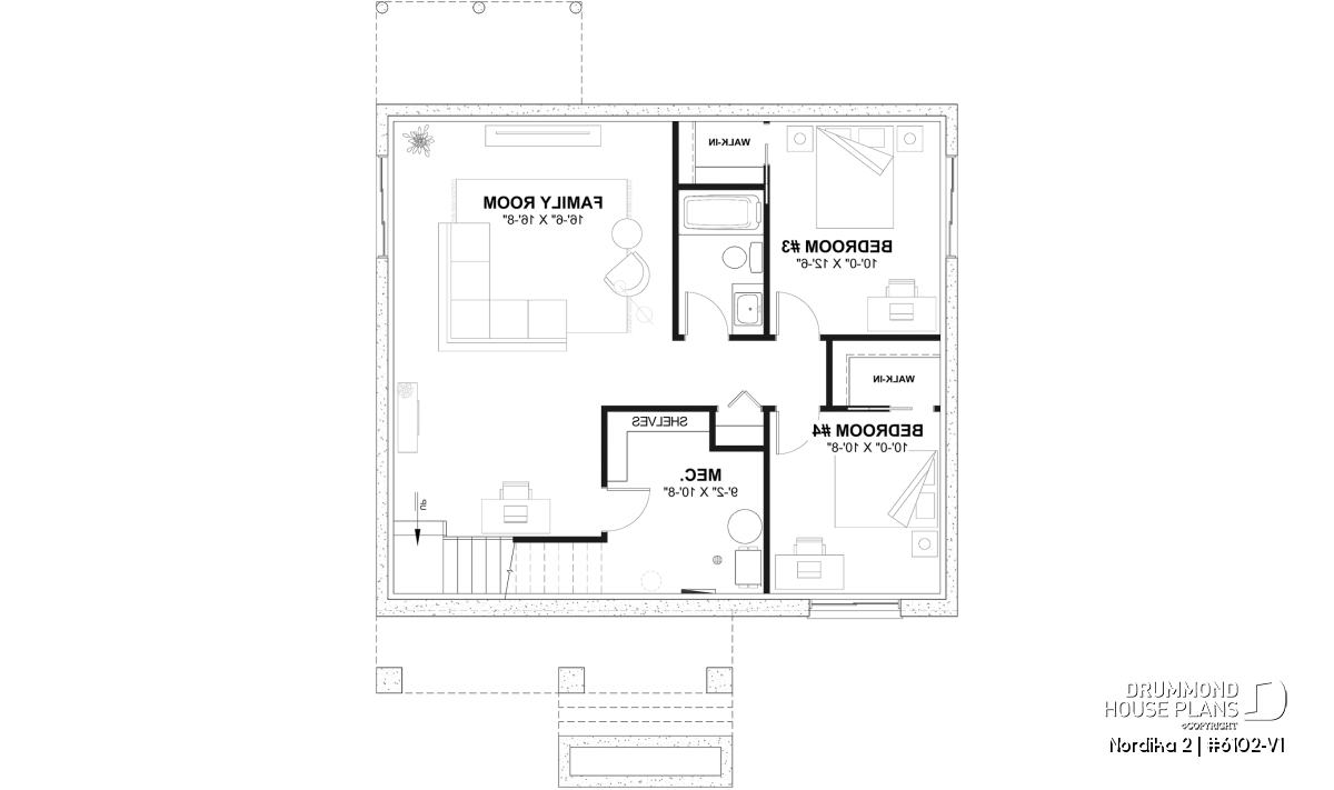
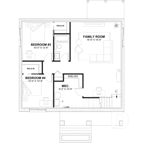
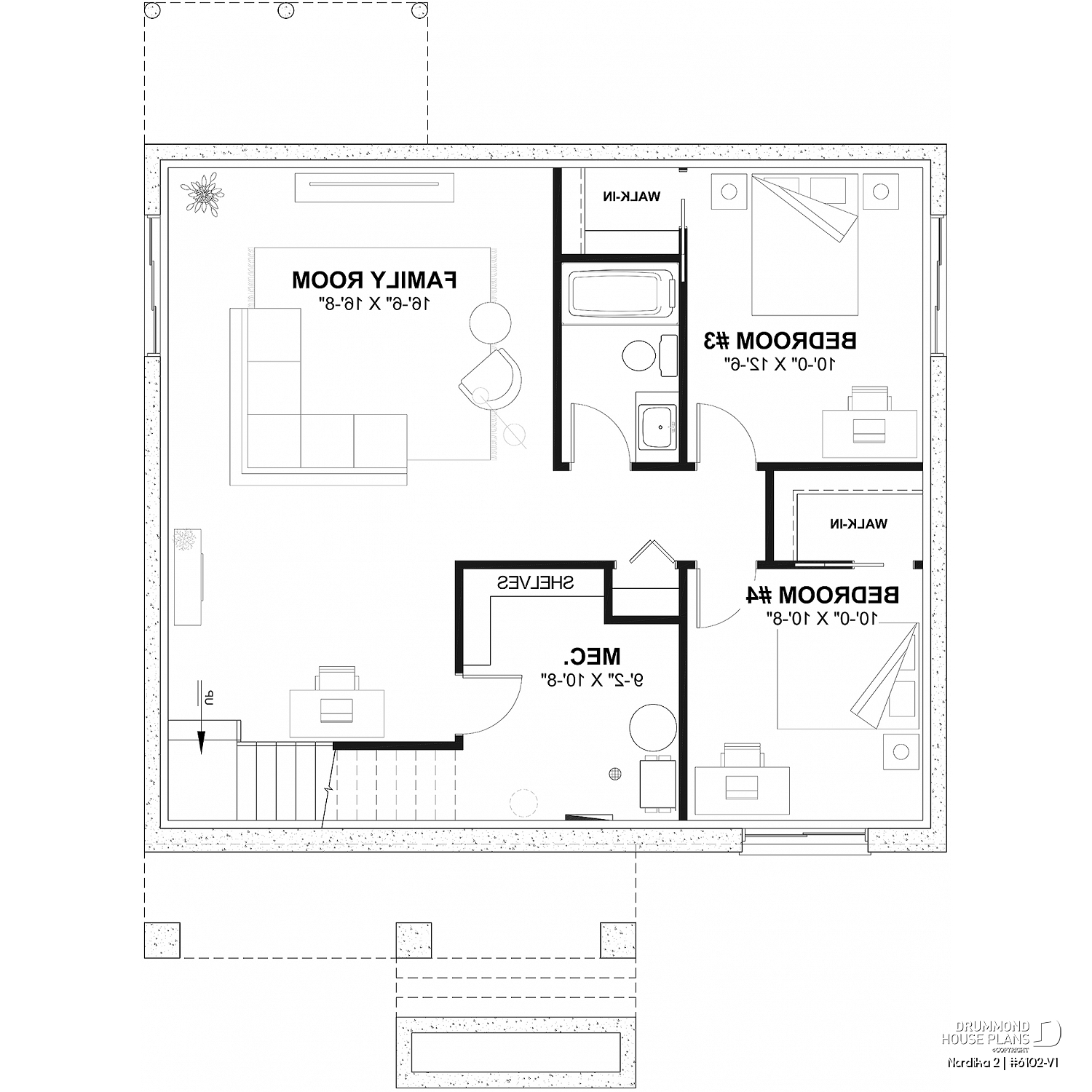
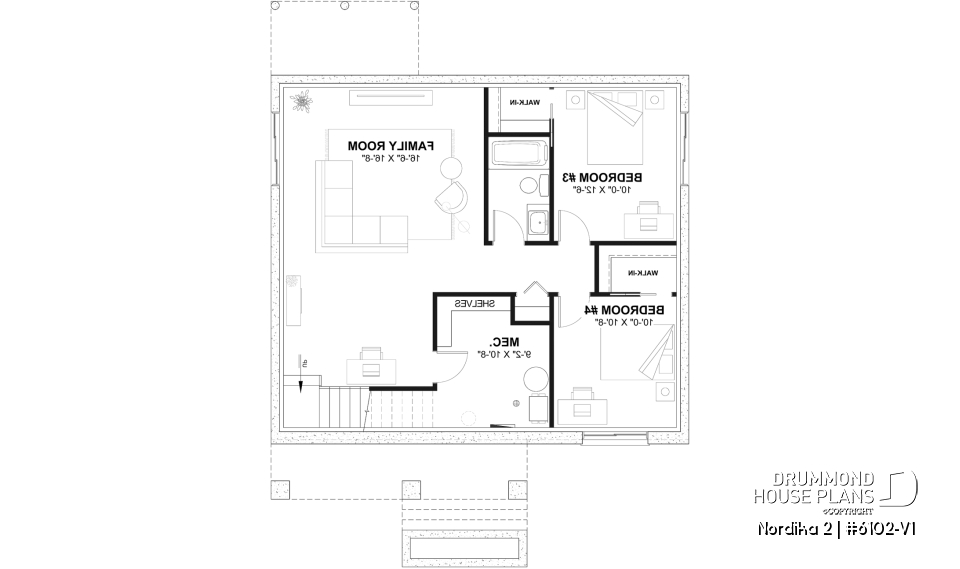
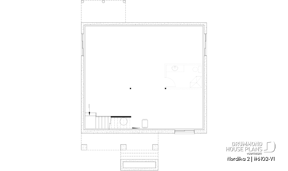
Optional Finished Basement
The optional finished lower level can greatly expand the home’s potential, adding two additional bedrooms, a family room, a full bathroom, and a mechanical room—ideal for growing families, hobbies, or multigenerational living.
Above all, the NORDIKA 2 is designed to meet the needs of a wide variety of homeowners: young families, couples working from home, first-time buyers, or anyone looking to downsize intelligently without sacrificing convenience or charm. Let your imagination reveal everything this unique modern-rustic home can offer.
Distinctive elements
**Modern rustic home plan featuring 2 main-floor bedrooms and the option for 2 additional bedrooms in the basement.
Spacious covered porch, perfect for enjoying the outdoors even in bad weather.
9' ceilings on the main level create an airy, welcoming atmosphere.
Bright open-concept layout designed for easy living.
Generous entry hall with practical storage.
Functional kitchen with pantry and large central island.
Two bedrooms on the same floor, including one that can double as a home office.
Abundant windows that fill the home with natural light and warmth.
Bathroom with ample storage and an optimized layout.
Main-floor laundry room for everyday convenience.
Optional barn door for a charming rustic touch.
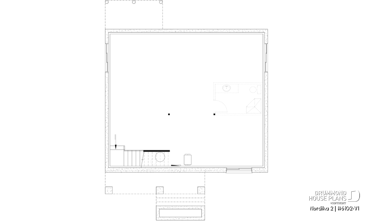
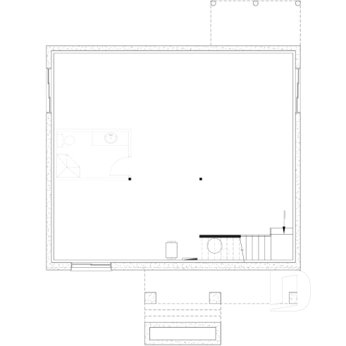
*Unfinished basement ready to customize to your needs.
Front exterior enhanced with an attractive wood gable and over 50% masonry.
---
*Optional finished basement:
2 bedrooms, family room, bathroom and mechanical room.
---
*If you wish to purchase the finished basement plan, as presented on this plan page, please select this option in the shopping cart, in the "Selection of foundation type" section. If you do not select this option, you will receive the unfinished full basement option, at no extra charge.
Plan feature(s)
Pantry, Gound floor laundry room, Panoramic view, Ceiling over 8', Island, Narrow lot, Open floor layout, Separate bath and shower, Double sinks, Builder, Self-Build
Plan architectural style(s)
. Craftsman / Northwest, . American, . Rustic, . Transitional, . Country, . Modern rustic, . Mountain, . Ranch, . Farmhouse, Modern farmhouse
Similar plans
Previously Viewed Plans
Thank you for your comment! It must be approved before being put online, please allow a period of 24 hours.
Error with google reCaptcha! Try again
Here is a brief description of our different plan packages. Please select the plan package that suits your needs. You can change the package at the next step, if necessary.
PDF VERSION OF PLAN:
Complete digital version of plan (pdf format) sent by email (original plan format 18" x 24'' or 24" x 36'')
5 copies of plan + PDF:
Includes: 5 copies of plan, plan in PDF format (reduced size version), materials list.
Foundation type
Additional foundation types are available, a fee may apply. Please indicate your choice on the online order form, or to our customer service representative, when placing your house plan order.
If your desired foundation type is not available, please contact our customer service to receive your free plan modification quote.
Explanation of bonus space types
UNFINISHED BONUS ROOM
The bonus rooms are often planned above the garage and are accessible from the house. They are designed to be converted as an office, a laundry area, a bathroom, a library corner or even an additional bedroom for which homeowners must make sure to have a window that complies with current codes & standards.
STORAGE AREA
Often located above the garage, our storage areas are used only as storage and are usually accessible from the garage via a retractable staircase.
Do you like this plan but want it to be modified to suit your needs?
To add a garage, another bedroom, finish the basement or any other modification, click here and let us know about your desired changes and to get your free quote for the modification of your plan.
Conditions of use
Important copyright notice! Please take note of these copyright conditions before printing:
By printing this house plan, cottage or garage or the floorplan(s), you confirm being informed that every house plan on this website is the exclusive property of Drummond House
Plans and is protected by Canadian copyright law. You are aware that these prints cannot be used to build or even obtain a building permit. The graphic representations of these
models are offered by Drummond House Plans for the sole purpose of allowing you to notate modifications of a model and then take it to one of the Drummond House Plans Canadian dealers for
modification of the plan.
The purchase of a house plan, cottage or garage from Drummond House Plans is mandatory if you wish to build any of our models. The plan purchase allows you to build a single unit; you cannot resell or give your plan to anyone once the house, cottage or garage has been built. If you wish to build the same house, cottage or garage more than once, you need to obtain the licence to this effect. Please contact us for more details.
All plans from Drummond House Plans can only be modified by a licensed Drummond House Plan Canadian dealer. If any other business or individual with no affiliation to Drummond House Plans modifies a Drummond House Plan on your behalf, please ensure this business or individual has a licence to modify this specific plan or you will be subject to prosecution on the same level as the business or individual who modified or reproduced the plan.
For more details, do not hesitate to contact u by e-mail or by phone at 1-800-567-1413.
I agree to respect the conditions above to not reproduce, modify or build a model from Drummond House Plans without previously purchasing a complete house plan.






















