There are no shipping fees if you buy one of our 2 plan packages "PDF file format" or "5 sets of blueprints + PDF". Shipping charges may apply if you buy additional sets of blueprints.
                                                                                                                                                                                                                                                                                                                                                                                                                                                                                                                                                                                                                                                                                                                                                                          House plan Joshua  (1703)                
                                      
                                  
              
              Compact Modern Home Plan with Open Floor Plan, Upstairs Suite and Spacious Terrace
Virtual visit
Other useful information on this plan
Compact and Bright Modern Home Plan with Warm and Contemporary Design
This compact modern home stands out with its clean architectural lines and warm, inviting materials that blend modern style with timeless charm. Designed for comfort and efficiency, it offers a perfect balance between elegance, functionality, and natural light, making it ideal for today’s lifestyle.
The front façade immediately draws attention with its tasteful mix of stone, decorative columns, and refined trim details. A covered front porch adds to its curb appeal while providing a welcoming space to enjoy every season.
Inside, a practical entryway with a closed vestibule and spacious closet ensures everything stays organized and clutter-free. From there, the home opens into a bright, open-concept living area that seamlessly connects the living room, dining room, and kitchen. Large windows allow abundant natural light to flood the space, creating a warm and airy atmosphere perfect for everyday living.
The well-planned kitchen offers both style and practicality, featuring a patio door leading to the backyard—ideal for summer barbecues or morning coffee outdoors. Just steps away, a compact laundry area accommodates a stacked washer and dryer setup, maximizing convenience without compromising space.
On the main floor, a versatile secondary room can serve as a home office, guest bedroom, or hobby space, adapting easily to your lifestyle. A full bathroom completes this level, providing comfort and functionality for both residents and visitors.
Upstairs, the primary suite offers a peaceful retreat, occupying the entire floor. This private space includes a modern shower room and direct access to a large outdoor terrace through a patio door—an inviting spot to unwind, enjoy the sunshine, or admire the surrounding views.
Built on a floating slab foundation, this design is ideal for flat lots or for homeowners who prefer a home without a basement, offering durability and energy efficiency.
With its compact footprint, luminous interiors, and contemporary design, this house is perfect for those seeking a modern home that combines comfort, simplicity, and timeless elegance. Whether as a main residence, a cottage, or a downsized living option, it delivers the perfect blend of style and practicality in every square foot.
Distinctive elements
Compact Contemporary Home Filled with Natural Light
Modern architecture with warm materials such as stone accents, decorative columns, and elegant trim details.
Covered front porch offering charm and a welcoming outdoor space to enjoy throughout the seasons.
Practical entryway with a closed vestibule and spacious closet for everyday convenience.
Bright open-concept living area, featuring abundant natural light and a functional family layout.
Efficient kitchen with patio door access to the backyard and a nearby laundry nook designed for stacked washer and dryer.
Versatile main-floor room, ideal as a secondary bedroom or home office, plus a full bathroom on the same level.
Private master suite upstairs, occupying the entire floor, with a modern shower room and direct access to a large terrace through a patio door.
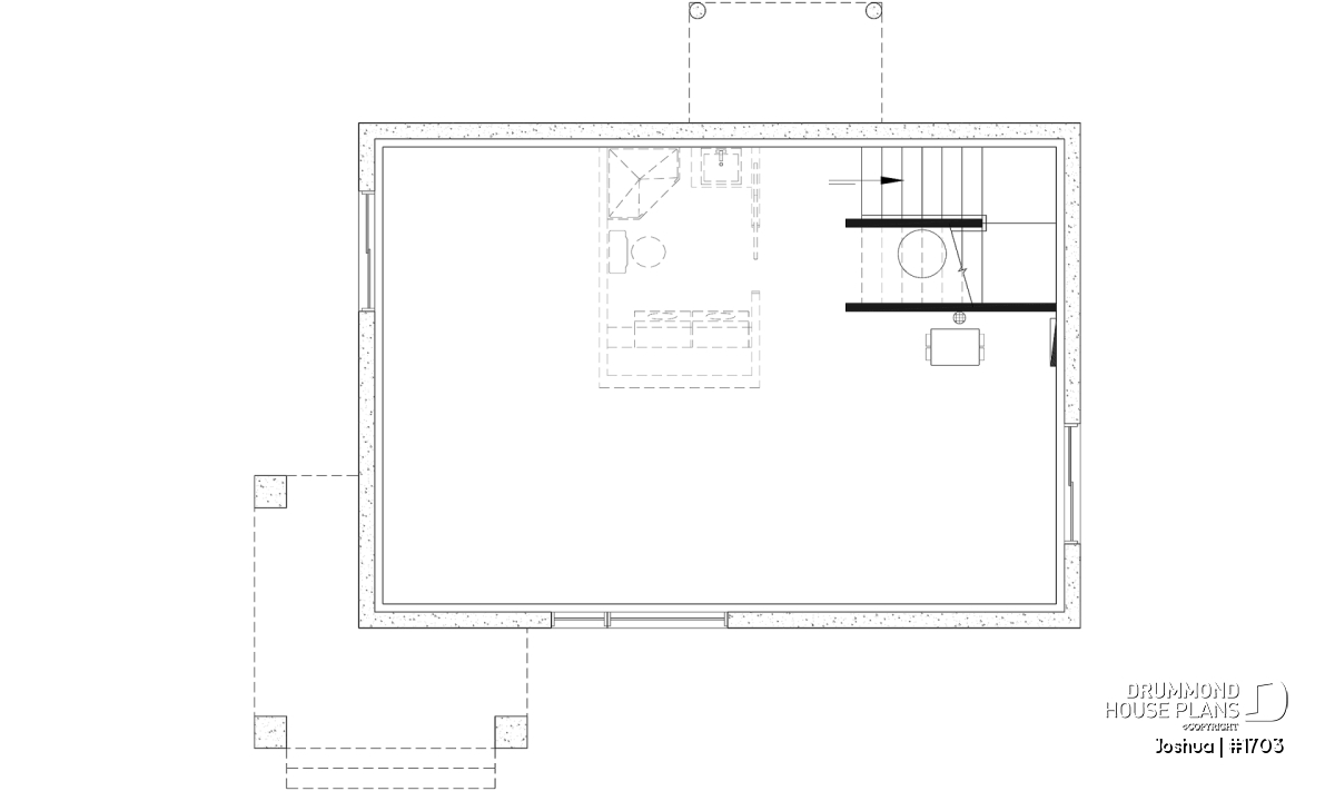
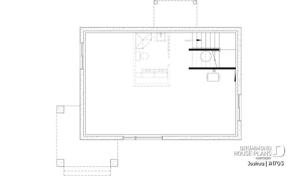
*Floating slab foundation included in the base plan. 
---
*Unfinished Basement (optional $):
If you wish to purchase the unfinished basement plan option ($), please select this option in the shopping cart, in the "Select your foundation" section. If you do not select this option, you will receive a floating slab as your foundation, at no extra cost.
Plan feature(s)
Balcony 2nd floor, Gound floor laundry room, Open floor layout, Master suite upstairs
Plan architectural style(s)
. Contemporary, . Modern / Design, . Modern rustic, . Cottage, chalet, cabin, . Mid-century
Similar plans
Previously Viewed Plans
Questions and comments
August 28
Alex
Hello, this plan is listed as having "affordable building costs". Can I build this house with $100,000? I'm looking for a plan that can be built with $100k - $120K complete (not including cost of land).
If this one cannot be built within that price range, can you point me to some plans that can?
Thanks!!
Alex
Thank you for your comment! It must be approved before being put online, please allow a period of 24 hours.
Error with google reCaptcha! Try again
Here is a brief description of our different plan packages. Please select the plan package that suits your needs. You can change the package at the next step, if necessary.
PDF VERSION OF PLAN:
Complete digital version of plan (pdf format) sent by email (original plan format 18" x 24'' or 24" x 36'')
5 copies of plan + PDF:
Includes: 5 copies of plan, plan in PDF format (reduced size version), materials list.
Foundation type
Additional foundation types are available, a fee may apply. Please indicate your choice on the online order form, or to our customer service representative, when placing your house plan order.
If your desired foundation type is not available, please contact our customer service to receive your free plan modification quote.
Explanation of bonus space types
UNFINISHED BONUS ROOM
The bonus rooms are often planned above the garage and are accessible from the house. They are designed to be converted as an office, a laundry area, a bathroom, a library corner or even an additional bedroom for which homeowners must make sure to have a window that complies with current codes & standards.
STORAGE AREA
Often located above the garage, our storage areas are used only as storage and are usually accessible from the garage via a retractable staircase.
Do you like this plan but want it to be modified to suit your needs?
To add a garage, another bedroom, finish the basement or any other modification, click here and let us know about your desired changes and to get your free quote for the modification of your plan.
Conditions of use
Important copyright notice! Please take note of these copyright conditions before printing:
        By printing this house plan, cottage or garage or the floorplan(s), you confirm being informed that every house plan on this website is the exclusive property of Drummond House
          Plans and is protected by Canadian copyright law. You are aware that these prints cannot be used to build or even obtain a building permit. The graphic representations of these
        models are offered by Drummond House Plans for the sole purpose of allowing you to notate modifications of a model and then take it to one of the Drummond House Plans Canadian dealers for
        modification of the plan.
The purchase of a house plan, cottage or garage from Drummond House Plans is mandatory if you wish to build any of our models. The plan purchase allows you to build a single unit; you cannot resell or give your plan to anyone once the house, cottage or garage has been built. If you wish to build the same house, cottage or garage more than once, you need to obtain the licence to this effect. Please contact us for more details.
All plans from Drummond House Plans can only be modified by a licensed Drummond House Plan Canadian dealer. If any other business or individual with no affiliation to Drummond House Plans modifies a Drummond House Plan on your behalf, please ensure this business or individual has a licence to modify this specific plan or you will be subject to prosecution on the same level as the business or individual who modified or reproduced the plan.
For more details, do not hesitate to contact u by e-mail or by phone at 1-800-567-1413.
I agree to respect the conditions above to not reproduce, modify or build a model from Drummond House Plans without previously purchasing a complete house plan.










 
                           
                           
                           
                           
                           
                           
                           
                          



 
                             
                             
                             
                            



















 
                                   
                                   
                                   
                                   
                                   
                                   
                                   
                                   
                                   
                                   
                                   
                                   
                                   
                                   
                                   
                                   
                                   
                                   
                                   
                                  
 
                               
                         
                         
                         
                         
                         
                         
                         
                         
                         
                         
                         
                         
                         
                         
                         
                         
                         
                         
                         
                         
                         
                         
                         
                         
                         
                         
                         
                         
                         
               
               
               
               
               
               
               
               
               
              
August 28
Alex
Hello, this plan is listed as having "affordable building costs". Can I build this house with $100,000? I'm looking for a plan that can be built with $100k - $120K complete (not including cost of land).
If this one cannot be built within that price range, can you point me to some plans that can?
Thanks!!
Alex