There are no shipping fees if you buy one of our 2 plan packages "PDF file format" or "5 sets of blueprints + PDF". Shipping charges may apply if you buy additional sets of blueprints.
House plan Elia (1701)
Contemporary 3 floor house design for narrow lot, affordable urban design, open concept, large covered deck
Other useful information on this plan
Modern urban house plan, ideal for narrow lot and small budget!
The blend of colors and materials used in this small, modern style home and its long, contemporary lines are sure to catch the eye of those who enjoy living in the city.
Elia is a home that respects the size and budget concerns enabling transition of first time ownership from dream to reality while offering the comfort of a 3 bedroom home with an attached garage whose style is especially suited to urban surroundings.
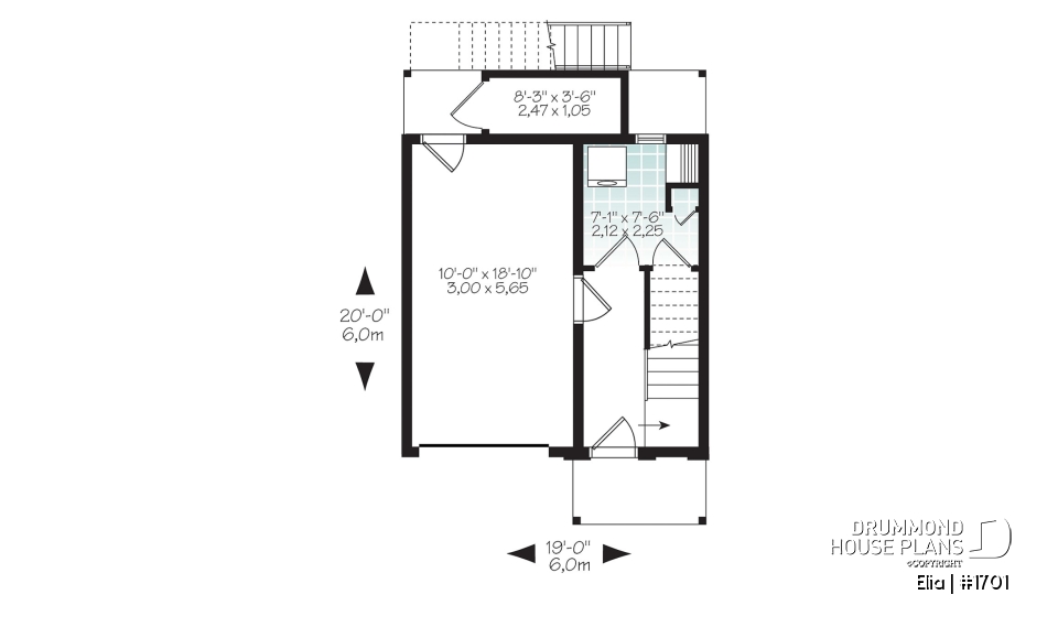
Practical features include direct access into the house from the garage. A laundry room on this level has a convenient laundry chute from the bedroom level to help eliminate the clutter upstairs.
The main level has an open floor plan that enhances the feeling of size despite the unconventional shape of this home. The living room has space for standard furnishings, including a 3+ seat sofa and the kitchen table seats 6 or it could be replaced by an island with seating. The covered porch in back is accessible through patio doors in the kitchen and serves to enlarge the living space during warmer months. A powder room and a storage closet near the stairs to the garage add to the practical features.
Upstairs there are 3 bedrooms, of which the master has room for a Queen (or maybe even a King) sized bed. The two other bedrooms have ample closet space. A bathroom with shower and the laundry chute complete the upper level.
Distinctive elements
3 floor Modern home, perfect for narrow lot (19'-0''). Garage direct access to the ground floor. Kitchen can contain a table for 6 people or a large kitchen island. Large covered back porch with direct access to kitchen. Laundry chute from bedroom floor.
Plan feature(s)
Laundry chute, Gound floor laundry room, Built-ins, Narrow lot, Balcony 2nd floor, Deck, Open floor layout
Plan architectural style(s)
. Contemporary, . Modern / Design, . Modern rustic, . Scandinavian
Similar plans
Previously Viewed Plans
Thank you for your comment! It must be approved before being put online, please allow a period of 24 hours.
Error with google reCaptcha! Try again
Here is a brief description of our different plan packages. Please select the plan package that suits your needs. You can change the package at the next step, if necessary.
PDF VERSION OF PLAN:
Complete digital version of plan (pdf format) sent by email (original plan format 18" x 24'' or 24" x 36'')
5 copies of plan + PDF:
Includes: 5 copies of plan, plan in PDF format (reduced size version), materials list.
Foundation type
Additional foundation types are available, a fee may apply. Please indicate your choice on the online order form, or to our customer service representative, when placing your house plan order.
If your desired foundation type is not available, please contact our customer service to receive your free plan modification quote.
Explanation of bonus space types
UNFINISHED BONUS ROOM
The bonus rooms are often planned above the garage and are accessible from the house. They are designed to be converted as an office, a laundry area, a bathroom, a library corner or even an additional bedroom for which homeowners must make sure to have a window that complies with current codes & standards.
STORAGE AREA
Often located above the garage, our storage areas are used only as storage and are usually accessible from the garage via a retractable staircase.
Do you like this plan but want it to be modified to suit your needs?
To add a garage, another bedroom, finish the basement or any other modification, click here and let us know about your desired changes and to get your free quote for the modification of your plan.
Conditions of use
Important copyright notice! Please take note of these copyright conditions before printing:
By printing this house plan, cottage or garage or the floorplan(s), you confirm being informed that every house plan on this website is the exclusive property of Drummond House
Plans and is protected by Canadian copyright law. You are aware that these prints cannot be used to build or even obtain a building permit. The graphic representations of these
models are offered by Drummond House Plans for the sole purpose of allowing you to notate modifications of a model and then take it to one of the Drummond House Plans Canadian dealers for
modification of the plan.
The purchase of a house plan, cottage or garage from Drummond House Plans is mandatory if you wish to build any of our models. The plan purchase allows you to build a single unit; you cannot resell or give your plan to anyone once the house, cottage or garage has been built. If you wish to build the same house, cottage or garage more than once, you need to obtain the licence to this effect. Please contact us for more details.
All plans from Drummond House Plans can only be modified by a licensed Drummond House Plan Canadian dealer. If any other business or individual with no affiliation to Drummond House Plans modifies a Drummond House Plan on your behalf, please ensure this business or individual has a licence to modify this specific plan or you will be subject to prosecution on the same level as the business or individual who modified or reproduced the plan.
For more details, do not hesitate to contact u by e-mail or by phone at 1-800-567-1413.
I agree to respect the conditions above to not reproduce, modify or build a model from Drummond House Plans without previously purchasing a complete house plan.







