There are no shipping fees if you buy one of our 2 plan packages "PDF file format" or "5 sets of blueprints + PDF". Shipping charges may apply if you buy additional sets of blueprints.
House plan Rifugio (1919)
Small and charming 2 bedroom cottage plan with lots of natural light!
Other useful information on this plan
Bright & luxurious compact cottage that will delight your family, the time of a beautiful vacation in the countryside!
This cabin is available for rent : https://www.instagram.com/lerifugio/
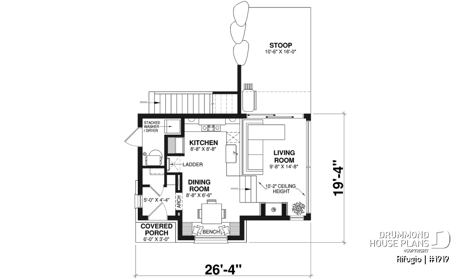
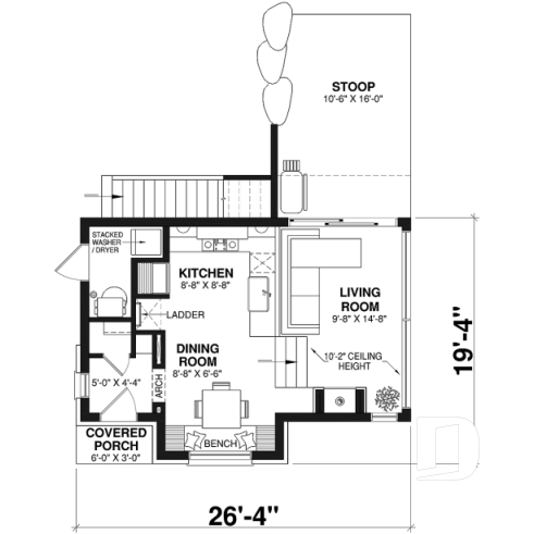
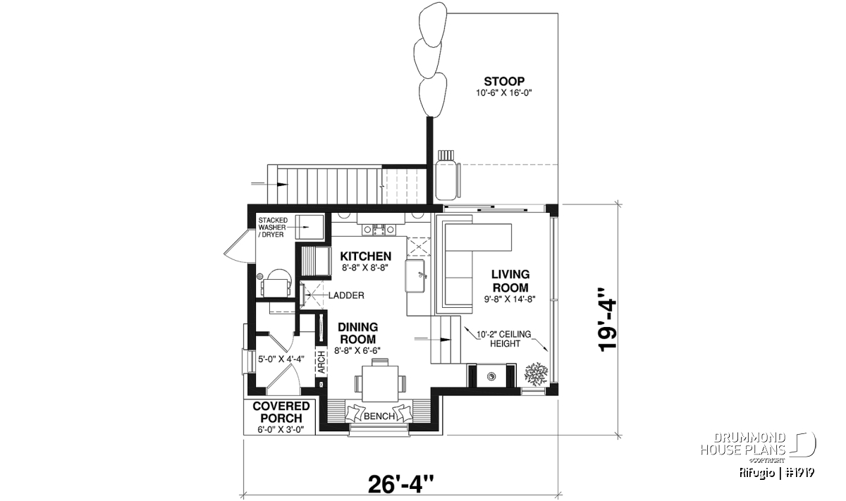
The "Rifugio" cottage plan (#1919) offers 741 sq.ft., thoughtfully laid out over 2 floors. Despite its compact size, it offers several attractions that will appeal to a small family or two couples on vacation. It was also designed with a thought of possible rental. Its stone and wood exterior look blends perfectly with a forest decor and immediately offers the prospect of a restful, zen and hassle-free stay!
The front porch is sheltered and leads to an entrance with a small walk-in closet. Immediately to the right, a stone wall with an arch gives the rustic and warm tone found throughout the interior. The kitchen is of a good size and has all the attributes sought to make good meals there. The dining room is large enough to comfortably accommodate 4 guests with its bench seat and chairs. The sunken living room has a ceiling of over 10' high as well as a fireplace and a window offering breathtaking views of the outside. It should be noted that the purchase of a sofa bed in the living room could make it possible to receive 2 additional people.
The floor is accessible by an outside staircase and also by a fun ladder, judiciously located set back from the kitchen, far from the living room for more peace of mind. On this level, we find the master bedroom which has its own terrace and by the same token, a superb panoramic view of the exterior. In addition, a secondary bedroom with bunk beds will delight your children, or your guests! And finally, a shower room completes this floor.
The laundry room is located on the left side of the house and is accessed from the outside. In addition, it has a small section that can for example be used for storing gardening accessories. The foundation provided for this plan is a floating slab. To explore other types of foundations or for modifications to this plan, please contact our customer service.
This beautiful, versatile and light-filled little cottage has everything you need to provide you with good times with family or friends, regardless of the season!!
Distinctive elements
Compact cottage plan.
Modern rustic style, warm and very fenestrated.
Dining room with bench seat.
Living room with fireplace, sunken floor and high ceiling.
Access to the second floor by a ladder located in the kitchen, and also by a staircase outside the chalet.
Laundry room located on the side of the house and accessible from the outside.
Master bedroom upstairs offers a large reading bench and access to the large 19'4'' x 10' terrace.
Additional bedroom upstairs with bunk beds, ideal for children or friends.
The foundation is a floating slab.
Plan feature(s)
Sunken living room, Panoramic view, Bench seat(s), Fireplace, Arch
Plan architectural style(s)
. Cottage, chalet, cabin, Modern Craftsman, . Mountain, . European, . Rustic, Modern French Country, . Ski chalets, . Cabin plans, . Vacation and waterfront, . English, Trending
Similar plans
Previously Viewed Plans
Thank you for your comment! It must be approved before being put online, please allow a period of 24 hours.
Error with google reCaptcha! Try again
Here is a brief description of our different plan packages. Please select the plan package that suits your needs. You can change the package at the next step, if necessary.
PDF VERSION OF PLAN:
Complete digital version of plan (pdf format) sent by email (original plan format 18" x 24'' or 24" x 36'')
5 copies of plan + PDF:
Includes: 5 copies of plan, plan in PDF format (reduced size version), materials list.
Foundation type
Additional foundation types are available, a fee may apply. Please indicate your choice on the online order form, or to our customer service representative, when placing your house plan order.
If your desired foundation type is not available, please contact our customer service to receive your free plan modification quote.
Explanation of bonus space types
UNFINISHED BONUS ROOM
The bonus rooms are often planned above the garage and are accessible from the house. They are designed to be converted as an office, a laundry area, a bathroom, a library corner or even an additional bedroom for which homeowners must make sure to have a window that complies with current codes & standards.
STORAGE AREA
Often located above the garage, our storage areas are used only as storage and are usually accessible from the garage via a retractable staircase.
Do you like this plan but want it to be modified to suit your needs?
To add a garage, another bedroom, finish the basement or any other modification, click here and let us know about your desired changes and to get your free quote for the modification of your plan.
Conditions of use
Important copyright notice! Please take note of these copyright conditions before printing:
By printing this house plan, cottage or garage or the floorplan(s), you confirm being informed that every house plan on this website is the exclusive property of Drummond House
Plans and is protected by Canadian copyright law. You are aware that these prints cannot be used to build or even obtain a building permit. The graphic representations of these
models are offered by Drummond House Plans for the sole purpose of allowing you to notate modifications of a model and then take it to one of the Drummond House Plans Canadian dealers for
modification of the plan.
The purchase of a house plan, cottage or garage from Drummond House Plans is mandatory if you wish to build any of our models. The plan purchase allows you to build a single unit; you cannot resell or give your plan to anyone once the house, cottage or garage has been built. If you wish to build the same house, cottage or garage more than once, you need to obtain the licence to this effect. Please contact us for more details.
All plans from Drummond House Plans can only be modified by a licensed Drummond House Plan Canadian dealer. If any other business or individual with no affiliation to Drummond House Plans modifies a Drummond House Plan on your behalf, please ensure this business or individual has a licence to modify this specific plan or you will be subject to prosecution on the same level as the business or individual who modified or reproduced the plan.
For more details, do not hesitate to contact u by e-mail or by phone at 1-800-567-1413.
I agree to respect the conditions above to not reproduce, modify or build a model from Drummond House Plans without previously purchasing a complete house plan.

































